华润外滩瑞府(售楼处)官方网站-华润外滩瑞府销售中心(营销中心)-华润外滩瑞府楼盘欢迎您-小区环境-户型-价格-地址-楼盘详情-周边配套-售楼处电话-交房时间
扫描到手机,新闻随时看
扫一扫,用手机看文章
更加方便分享给朋友
华润外滩瑞府售楼处电话:400-8878-824
华润外滩瑞府营销中心热线400-887-8824(官方预约看房热线)
建面约124-330㎡无界大宅
认购时间:10月17日-10月21日
华润外滩瑞府售楼处电话:400-8878-824
华润外滩瑞府营销中心热线400-887-8824(官方预约看房热线)
虹口内环内的外滩瑞府,就在这个“金九”,外滩上演了一场现象级的热销。首开119套房源,去化率100%,劲销24.8亿+。
从俯览外滩全景的城市展厅亮相,到认购率超168%,首开即罄的优越表现,外滩瑞府持续以顶序瑞系产品力回应外滩,以热销数据印证百年价值高地上的一致选择。
外滩瑞府二批次新品即将载誉而来,更将首次揭幕项目的重磅藏品---建面约240㎡「摘星平墅」。
由全球知名设计师吴滨先生亲自主笔,于外滩云端之上,为全球塔尖人物量身定制一席无界视野的“摘星”大宅。
它不仅是空间的极致演绎,更是身份与品位的象征,一部真正意义上的“隐奢”藏品,注定只为少数人私有。未来期待与远见者再度相逢,共启外滩生活的崭新篇章。
华润置地“瑞系”顶序首座「华润·外滩瑞府」二批次加推1#、3#,建面约124-330㎡无界大宅即将加推;10月17日开启认购!
华润外滩瑞府售楼处电话:400-8878-824
华润外滩瑞府营销中心热线400-887-8824(官方预约看房热线)
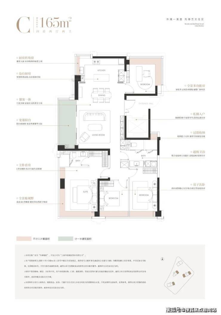
四房中的天花板
突破空间尺度做出「定制感」
随着好房子时代的拉开,“客户究竟需要怎样的生活”,也成为开发商们不断思考的问题。
而看完外滩瑞府的样板间,你能明显感受到华润置地从生活场景、使用功能等方面对各个户型进行了升级、定制,以及对未来生活的进阶探索与全新创造。
就拿160平左右四房户型来说,绝对是上海4房户型中的天花板。
定制美学,奢侈品级的空间叙事
外滩瑞府摒弃传统豪宅产品浮夸的重奢风格,转而采用香奈儿式的黑白撞色美学,将高级定制理念注入每一寸空间;
无论是材质、配色,还是功能、细节,都让人忍不住心生赞叹。
1.小香风设计语言,打造定制美学
经典的香奈儿黑白配色在入户时便映入眼帘,黑色法式镶板收纳柜,哑光皮革饰面的柜门如丝绒般细腻,搭配精致黄铜拉手,从入户第一步就奠定奢侈品般的归家仪式感。
样板间实拍示意图,实际以交付为准
步入客厅,客厅悬浮吊顶的弧形边缘,辅以简约环形灯带,让光影在顶部自然晕染,打破传统平顶的压抑感。

样板间实拍示意图,实际以交付为准
2.三大定制细节,重塑空间体验
定制细节一:主卧套房、北向书房、还有厨房,三处空间皆以少见的270°全景转角飘窗点睛。
这三大转角飘窗,不仅最大化引入自然光,更将上海最珍贵的城市景观,变成了日常生活的一部分。
像是首开楼栋2号楼的中高区,于主卧270°转角飘窗可以观瞻陆家嘴三件套与浦西第一高楼(在建中)遥相呼应,观景视野绝佳。

样板间实拍示意图,实际以交付为准
定制细节二:超大尺度的中西岛台餐厨区,是「中西生活的交响场」。
它以大岛台为核心枢纽,既扎根于中式烹饪的实用逻辑,又吸纳西式餐厨的社交属性,让厨房从“单一空间”升级为“多元生活场景发生器”。

样板间实拍示意图,实际以交付为准
定制细节三:公卫以五星级酒店为范本,打造独特的四分离系统,实现独立洗漱台、卫生间、淋浴间、洗衣区互不打扰,将酒店化体验引入住宅。

样板间实拍示意图,实际以交付为准
淋浴区配置汉斯格雅花洒(或同等品牌),卫生间选用伊奈智能马桶(或同等品牌),洗漱区与独立家政间完美解决早高峰的使用冲突。

样板间实拍示意图,实际以交付为准
3.高定材质体系,彰显非凡品质
看完样板间,就会发现项目在材质选择上,也是华润置地一直带给大家的感觉:低调却不失质感,整体看上去特别高级。
不同材质的碰撞与融合,创造出丰富的感官体验。
主卧背景墙采用编织皮革工艺,既保留了皮革的挺括质感,又增添了柔软触感,成为空间中独特的视觉元素。
主卫地面采用威尼斯白与奥兰灰石材拼花,两种石材的纹理自然交错,让人仿佛置身于上海外滩的经典建筑之中。

样板间实拍示意图,实际以交付为准
主卫台盆柜,更是创新性地运用柔韧防潮皮革材质,打破了传统卫浴空间的冰冷感,让日常洗漱也充满温度感。
厨房采用水波纹玻璃推拉门,功能性与艺术性相得益彰。
样板间实拍示意图,实际以交付为准

可以说,每一处材质的选择都兼顾了视觉美感与实用功能,让居住者在日常中也能感受到细致入微的品质追求,高级感十足。
还有让人叹为观止的收纳体系,不止“巨量”,整体设计更是相当的精细!
很多细节我们也是第一次看到。
收纳体系精准布局,优化空间效率
厨房作为家的核心,其收纳设计直接影响着日常生活的便利与品质。
在外滩瑞府,厨房空间被巧妙地规划,依托博洛尼整体橱柜(或同等品牌),利用转角空间、钻石台面及下拉式拉篮等设计,配合可按压开柜、反光镜等巧思,大幅提升空间利用率与取物便利性。

无论是常用厨具,还是低频使用的食材,都能各得其所。
让厨房,真正成为实用与美感兼具的生活场域。

样板间实拍示意图,实际以交付为准
中西双厨岛台下方也可以利用双层抽屉与侧边滑轨柜,藏起餐具与小家电,让台面永远清爽干净。
此外室内还打造了隐形的嵌入式过道收纳,利用过道空间,增加储物容量,充分利用每一寸空间,让杂乱物品各归其位。

样板间实拍示意图,实际以交付为准
特别值得一提的是衣帽解决方案。
除了主卧配置步入式衣帽间,公卫还有全尺寸衣帽收纳空间以及配备洗烘套装的家政间,共同构成了一个高效、便捷的收纳体系。

样板间实拍示意图,实际以交付为准
智能健康体系,隐形的未来生活内核
在当代豪宅居所的演进中,智能与健康已从加分项变为必答题。
最近实地探访发现,外滩瑞府将这两个维度深度融合,构建了一套同行很难抄作业的“守护系统”。
你能深刻感受到,这个项目对生活痛点的解决方案,展现了一种近乎偏执的体系化思考。
像是厨房这个传统痛点空间,在这里获得了三重科技赋能:
1)采用嘉格纳高端厨电大风量油烟机(或同等品牌),从源头实现油烟快速秒吸;
2)再有大金厨房专用空调(或同等品牌),搭载双层滤网设计,在制冷同时让二次过滤油烟效率高达95%;
3)屋顶增设中央排烟系统构成最后防线,彻底杜绝公共烟道返味。

示意图仅供参考,以实际交付为准
这种“即时清除-空气净化-系统防护”的多重立体防御,将油烟问题分解在三个物理维度,让厨房不再油腻,维持清爽干净。
这种系统化思维,甚至体现在水质管理上。
外滩瑞府厨房选择了316L不锈钢水管,搭配了净软四件套,怡口(或同等品牌)的前置过滤和未端净水直饮,滨特尔(或同等品牌)的中央净水和中央软水。
可以实现:医用级不锈钢管材能够保证50年以上不被腐蚀;直饮水余氯清除能达到98%;做到了0.0001µm级过滤直饮水……
再如照明设计,也完美避免进屋开灯光线太亮刺激眼睛等生活痛点。
选用德国朗德万斯专业灯具(或同等品牌),其独特性在于:
1)采用类太阳光谱技术,使室内光环境更接近自然光;
2)创新渐进式开关模式,避免瞳孔的瞬间刺激。
这种设计既呼应了建筑弧线语言,更从视觉健康维度重新定义了豪宅照明标准。
样板间实拍示意图,实际以交付为准
但真正的革新,藏在厨房安全系统里。
项目独创的“三重防护机制”突破了当下市场上的空白:当传感器检测到燃气泄漏、烟雾超标或水浸发生,系统会瞬间自动关阀断源,快速响应,扼杀隐患。
同时会立即在手机APP报警,及时通知用户处置。
更重要的是,系统还会自动打开窗户,主动改善室内环境,将燃气泄漏风险降至最低。
这个主动安全防御系统背后,是外滩瑞府搭载华为AI系统“超级大脑”,兼容2900+品牌。

样板间实拍示意图,实际以交付为准
业主还能通过APP远程智控实现预热烤箱、调节冰箱温度;也能联动空调、地暖、新风,智慧调节室内的“小气候”。
这种隔空操控的智能生态,将科技真正转化为居住的温度。
在智能家居同质化的当下,外滩瑞府这种将科技隐于无形的设计哲学,或许正是未来住宅的进化方向。
不仅如此,社区还打造了无感通行系统。
人脸识别技术化身“隐形钥匙”,联动单元门、社区大堂门自动开启,户内即可提前呼梯,无需等待;
电梯内专属宠物按钮与电梯厅提醒灯,人性化考量养宠家庭带宠出行的场景需求。
这样隐秘的生活细节,只有真正懂生活的人才会明白。也正因于此,我在外滩瑞府样板间,看到了很多客户对于细节“刨根问底”般的追问,因为细节真的做得太“细节”了。
另外还有建面约124㎡稀缺高端改善户型
南北通透全明户型,三开间朝南设计;“S”墙收纳、卧室全飘窗延伸空间,据说每个卧室开间尺度均超过3米,完全满足改善居住的收纳需求!室内空间尺度优秀!
整体动静分区的格局下,U型厨房不只是烹饪场域,更因融入“社交属性”而成为家庭互动的温情角落,烹饪的同时可与客厅的家人交流。
三间卧室更是将“大”落到实处,面宽近乎均等设计,且全部超过3米,在120㎡级户型普遍存在次卧面宽不足3米的市场现状下,这样的尺度彻底打破了主次之分,没有谁的房间在采光、视野上被妥协,实现了家庭成员居住上的“平权”,孩子的房间能放下书桌与玩具柜。
再加上大面宽阳台、5飘窗,实用面积很可观。
还有一个我很喜欢的设计,北房间无墙垛设计,几乎一整面都是窗,大大增加了通透性
主力2000-3000万级
新房地段“天花板”
华润外滩瑞府售楼处电话:4008878824【售楼中心热线】华润外滩瑞府营销中心热线400-887-8824华润外滩瑞府售楼处地址400-8878-824,楼盘项目全面介绍,本电话为开发商提供线上预约售楼电话,楼盘项目全面介绍(包含楼盘简介,均价,房价,现房,期房,别墅,叠墅,大平层,价格,楼盘地址,户型图,交通规划,备案价,备案名,项目配套,样板间,开盘时间,认筹时间,楼盘详情,售楼处电话,最新消息,最新详情,周边配套,一房一价,最新进展等详情咨询)楼盘详情丨价格丨更多优惠丨机不可失丨欢迎致电丨诚邀品鉴!售楼处位置丨特价房丨工抵房丨剩余房源丨户型图丨最新消息丨免责声明:将文章内容综合来源于网络、只作分享,版权归原作者所有!!如有侵权,请联系我们,我们第一时间处理如有问题欢迎来电咨询,专业一对一热情服务,让您用专业眼光去买房。如果您想了解更多楼盘详情,欢迎提前预约拨打华润外滩瑞府售楼处电话400-887-8824
声明:本文由入驻焦点开放平台的作者撰写,除焦点官方账号外,观点仅代表作者本人,不代表焦点立场。
