西溪铭庭售楼处电话☎:400-998-9694 西溪铭庭售楼处电话☎:400-998-9694 西溪铭庭位于蒋村板块,300方改善型住宅,性价比高,临近西溪湿地,40年产权,预计2023年底交付。
西溪铭庭
售楼处电话☎:400-998-9694
如有问题欢迎来电咨询,来电即可享受买房优惠!
预约来电尊享购房优惠,可预约案场内部销售人员,专业一对一热情服务,让您用专业眼光去买房。
西溪铭庭售楼处电话☎:400-998-9694
西溪湿地旁 难得300方

西溪铭庭售楼处电话☎:400-998-9694
西溪铭庭售楼处电话☎:400-998-9694
【项目信息】
西溪铭庭售楼处电话☎:400-998-9694
● 项目名称:西溪铭庭
● 项目区域:蒋村板块
● 项目体量
总占地面积3.5万方
总建筑面积13.9万方
● 产权:40年
● 套数:8幢共94套
● 梯户比:两梯两户
● 主力面积:约307方
● 层高:约3.5米
● 容积率:2.5
● 得房率:84%
● 物业费:4元/平米.月
西溪铭庭售楼处电话☎:400-998-9694
● 交付时间:预计2023年年底
【项目价值】
西溪铭庭售楼处电话☎:400-998-9694
● 稀贵板块 西溪之上未来为邻
择址蒋村板块,地理位置优越。东接繁华的文教区,西临“宇宙中心”未来科技城,距离西溪湿地直线距离仅800米,闹中取静,拥享静谧诗意生活。

西溪铭庭售楼处电话☎:400-998-9694

西溪铭庭售楼处电话☎:400-998-9694
● 蒋村西溪 难得性价比高地
作为城西品质标杆区域,蒋村板块断供多年。本案作为整个蒋村板块目前唯一在售的、拥有大面积改善产品的一手楼盘,错过不再。
西溪铭庭售楼处电话☎:400-998-9694 板块内200方以上户型极为稀缺,且西溪诚园二手房价格已高达10万+,西溪铭庭目前在售均价仅3.8万,仅为周边二手房的5折左右,性价比极高,总价仅需1200万左右即可享受300方奢享空间。

西溪铭庭售楼处电话☎:400-998-9694
● 生态绿化环绕的低密住区
整个项目的三面被生态绿化和水系环绕,是目前杭州主城区唯一一个被生态绿化包围的大平层项目,不仅是居住面积的改善,更是居住环境和居住品质的改善。
西溪铭庭售楼处电话☎:400-998-9694 项目北面一线滨水,形成河流川流而过的风水佳地,打造散步游玩的休闲滨水空间。
项目南面和西面规划40亩都市农业公园,作为目前杭州市芯唯一的观光农业与房地产相结合的项目,打造兼田园观光、私人种植、绿色生态、休闲娱乐等多项功能的臻稀天然氧吧,体验别墅、排屋才有的耕种乐趣,将健康生活方式融入日常。

西溪铭庭售楼处电话☎:400-998-9694


西溪铭庭售楼处电话☎:400-998-9694
● 醇熟配套 聚焦万象繁华
多维交通:无缝连接文一西路和余杭塘路两大主干道,闹中取静,快速通达全城。紧邻“换乘之王”地铁5号线(蒋村站)与机场快线,畅享交通便利。
西溪铭庭售楼处电话☎:400-998-9694 商业汇集:2公里范围内聚集了龙湖西溪天街、西溪银泰城两大商业综合体,以及项目自带的8000方商业叠加,生活配套一应俱全。
教育医疗:绿城育华学校、学军中学、行知二小、求是小学和杭州维翰学校等优质教育资源环伺,名校群集。距离浙一医院总部仅约6公里,为家人健康保驾护航。

西溪铭庭售楼处电话☎:400-998-9694

西溪铭庭售楼处电话☎:400-998-9694
●全明玻璃盒子,缔造无敌采光及视野
建筑的外立面采用铝板+玻璃幕墙的现代造型,更大窗墙比,打造“玻璃盒子”般更为通透明亮的室内环境。采用10+12+10的双层中空Low-E玻璃,有效阻隔外界噪音。

西溪铭庭售楼处电话☎:400-998-9694

西溪铭庭售楼处电话☎:400-998-9694

西溪铭庭售楼处电话☎:400-998-9694
● 两梯两户 互不干扰
西溪铭庭售楼处电话☎:400-998-9694 每层两梯两户的设计,每户可私享一部楼梯、一部电梯和一个约10平米的电梯前室,空间互不干扰。且项目最高为9层的小高层,每幢仅18户,出行便利,尊享奢适品质人生。

西溪铭庭售楼处电话☎:400-998-9694
● 精研户型 定制精装
根据客户不同需求,两种户型、两种装修风格任选其一,萃集高端精装品牌,奢享品质生活。
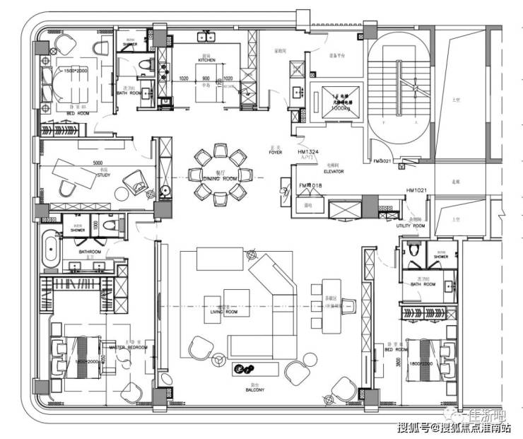
【可选户型一】300方打造舒适5房

西溪铭庭售楼处电话☎:400-998-9694
【可选户型二】300方奢阔4+1房

西溪铭庭售楼处电话☎:400-998-9694
【装修方案一】


西溪铭庭售楼处电话☎:400-998-9694


西溪铭庭售楼处电话☎:400-998-9694
【项目价值】
●稀贵改善产品:本案作为板块内唯一在售的大面积改善一手楼盘,稀缺改善,错过不再;
●纯粹大户型设计:整个项目户型均为300方改善户型,让整个社区圈层更纯粹;
● 步行距离可达西溪湿地:距离国家5A级湿地公园-西溪湿地直线距离仅约800米,步行即可到达,近揽11平方公里生态美景;
●被生态绿化环绕:北面紧邻五常港河,南面和西侧紧邻40亩都市农业公园,三面被生态绿化包围,闹中取静,且能够享受家门口耕种乐趣;
●性价比极高:在售房源均价仅3.8万,仅约周边二手房价的5折。2个车位仅需30万,相比周边近50万/个的车位价格实惠实打实;
●舒适5房设计:84%超高得房率 ,18.3米南向四开间,以及3.5米层高,打造尺度奢阔的5房舒适空间。
1、什么是房产:房屋产权的简称。
2、什么是地产:是指土地财产。
3、什么是房地产:是房产和地产的总称。
4、什么是房地产业:从事房地产开发、建设、经营、管理以及维修、装饰和服务的综合性产业。
5、什么是房地产开发:是指在依法取得土地使用权的土地上按照使用性质的要求进行基础设施、房屋建筑的活动。
6、什么是土地开发:是将“生地”开发成可供使用的土地。
7、集体土地是指:农村集体所有的土地。
8、征用土地是指:国家为了公共利益的需要,可依照法律规定对集体所有的土地实行征用。
9、什么是土地所有权:是指国家或集体经济组织对国家土地和集体土地依法享有的占有、使用、收益和处分的权能。
10、什么是土地使用权的出让:指国家以协议、招标、拍卖的方式将土地所有权在一定年限内出让给土地使用者,由使用者向国家支付土地使用权出让金的行为。
11、什么是土地使用权转让:是指土地使用者通过出售、交换、赠与和继承的方式将土地使用权再转移的行为。
12、什么是地籍、产籍:是对在房地产调查登记过程产生的各种图表、证件等登记资料,经过整理、加工、分类而形成的图、档、卡、册等资料的总称。
13、生地是指:不具备开发条件的土地。
14、熟地是指:已完成三通一平(水、电、道路,土地平整)或七通一平,具备开发条件的土地。
15、什么是宗地:是地籍的最小单元,是指以权属界线组成的封闭地块。
16、什么是宗地图:是土地使用合同书附图及房地产登记卡附图。它反映一宗地的基本情况。包括:宗地权属界线、界址点位置、宗地内建筑位置与性质、与相邻宗地的关系等。
17、证书附图是指:房地产后面的附图,主要反映房地产情况及房地产所在宗地情况。
18、什么是物业管理:泛指一切有关房地产开发、经营、商品房销售、租赁及售后服务。
19、什么是业主委员会:是在物业管理区域内代表全体业主实施自治管理的组织。是代表
物业全体业主合法权益的社会团体,其合法权益受国家法律保护。
20、业主委员会是如何产生的:由业主大会从全体业主中选举产生。
21、住房补贴是指:国家为职工解决住房问题而给予的补贴资助。
22、房屋的所有权是指:对房屋全面支配的权利。
23、房地产交易的两种主要形式是:地产交易形式与房产交易形式。
24、建筑物是指:人工建造而成的房屋和构筑物。
25、构筑物是指:建筑物中除房屋以外的东西。
26、什么是期房:是指消费者在购买时不具备即买即可入住的商品房。
27、期房是如何介定的:房地产开发商拿到商品房预售许可证开始至取得房地产权证大产证或竣工验收合格可以直接入住使用)为止。
28、什么是预售合同:消费者在购买期房时签定的销售合同。
29、什么是现房:是指消费者在购买时具备即买即可入住的商品房,即开发商已办妥所售的商品房的大产证(或已经竣工验收合格并交付使用)的商品房。
30、什么是毛坯房:房地产商交付屋内只有门框没有门,墙面地面仅做基础处理而未做表面处理的房叫毛坯房。
31、什么是成品房:是指对墙面、天花、门套、地板实行装修。
32、什么是商品房:是指以完全的市场价格向购房者出售的房子。
33、商品房预售是指:在房地产尚未建成以前,房地产的经销商在取得受买人一定数量的定金后,将期房出售给受买人。
34、商品房现售是指:指房地产开发企业将竣工验收合格的商品房出售给买受人。
35、二手房通常指的是:再次进行买卖交易的住房。
36、经济适用房指的是:面向中低收入家庭的普通住宅。
37、例出3种以上的安居房的种类:准成本房、全成本房、全成本微利房和社会微利房。
38、低层住宅的介定:1-3层的住宅。
39、多层住宅的介定:4-6层的住宅。
40、小高层住宅的介定:7-11层的住宅。
41、中高层住宅的介定:12-16层的住宅。
42、高层住宅的介定:16层以上为高层住宅。
43、超高层建筑的介定:总高度超过100米的建筑。
44、商品房的结构是指:房屋主体所使用的施工工艺和用材。
45、钢结构的意思是:承重的主要结构是用钢材料建造的,包括悬索结构。
46、钢混结构的意思是:承重的主要结构是用钢和混凝上建造的。
47、砖木结构的意思是:承重的主要结构是用砖、木材建造的。
48、砖混结构的意思是:主要是砖墙承重,部分是钢盘混凝土承重的结构。
49、框架结构的意思是:以钢筋混凝土浇捣成承重梁柱,再用预制的隔墙分户的结构。
50、开间指的是:一间房屋内一面墙的定位轴线到另一面墙的定位轴线之间的实际距离。
西溪铭庭
售楼处电话☎:400-998-9694
如有问题欢迎来电咨询,来电即可享受买房优惠!
预约来电尊享购房优惠,可预约案场内部销售人员,专业一对一热情服务,让您用专业眼光去买房。
西溪铭庭售楼处电话☎:400-998-9694
楼盘项目全面介绍,本电话为开发商提供线上预约售楼电话,楼盘项目全面介绍(包含楼盘简介,均价,房价,现房,期房,别墅,叠墅,大平层,价格,楼盘地址,户型图,交通规划,备案价,备案名,项目配套,样板间,开盘时间,认筹时间,楼盘详情,售楼处电话,最新消息,最新详情,周边配套,一房一价,最新进展等详情咨询)楼盘详情丨价格丨更多优惠丨机不可失丨欢迎致电丨诚邀品鉴!售楼处位置丨特价房丨工抵房丨剩余房源丨户型图丨最新消息丨免责声明:将文章内容综合来源于网络、只作分享,版权归原作者所有!!如有侵权,请联系我们,我们第一时间处理如有问题欢迎来电咨询,专业一对一热情服务,让您用专业眼光去买房。如果您想了解更多楼盘详情,欢迎提前预约拨打