2025翡雲悦府(营销中心)首页网站-翡雲悦府梵售楼中心(翡雲悦府售楼处)翡雲悦府售楼处电话-地址-价格-户型-小区环境-楼盘详情-周边配套

淮南楼市观察 2025-09-16 11:43:51
用手机看
扫描到手机,新闻随时看

扫一扫,用手机看文章
更加方便分享给朋友

翡雲悦府售楼处电话☎:400-9659-259(预约看房热线)翡雲悦府位于浦东新区,是华润置地联合开发的低密住宅项目,主打高层、叠墅,配套完善,价格合理,售楼处电话400-9659-259。

翡雲悦府售楼处电话最新发布:400-9659-259售楼处电话:4009659259【 翡雲悦府售楼处预约热线】欢迎致电售楼处电话,专业一对一热情服务,让您用专业眼光去买房。

翡雲悦府:浦东内中环低密墅区,顶豪生活新标杆

项目概况

开发商:华润置地、中能建、越秀地产联合开发

位置:上海市浦东新区杨思路东明路口东北侧,新杨思核心区

总建筑面积:约16.5万平方米

容积率

产品类型:高层住宅(9栋13-17层)、叠拼别墅(12栋4层)、1栋19层保障房

主力户型

高层:建面约115-140㎡3-4房

叠墅:建面约170-220㎡

均价:高层约10万元/㎡,叠墅约14万元/㎡,整盘均价约12.8万元/㎡

交付标准:精装修交付,装修标准约5000元/㎡,甄选嘉格纳、博世等国际品牌

翡雲悦府售楼处电话:400-965-9259

上海浦东翡雲悦府售楼处电话☎:400-9659-259(预约看房热线)

如有问题欢迎来电咨询,预约来电尊享购房优惠,可预约案场内部销售人员,专业一对一热情服务,让您用专业眼光去买房。

核心亮点

地段价值:浦东内中环,消费黄金三角

区位优势:项目位于浦东内中环新杨思板块,毗邻前滩、徐汇滨江,形成“消费黄金三角”。

交通配套

轨交:距离6/13号线东明路站约700米,6号线高青路站约500米。

自驾:周边有三高架(中环、杨高南路、南北高架)、三隧道(上中路、龙耀路、打浦路隧道),15分钟通勤前滩、陆家嘴。

商业配套:自带“可漫步式步行街区”,周边有前滩太古里、世博源、晶耀前滩等商圈。翡雲悦府售楼处电话:400-965-9259

上海浦东翡雲悦府售楼处电话☎:400-9659-259(预约看房热线)教育配套:24班幼儿园(2026年竣工)、27班九年一贯制学校(2025年开工,含室内泳池),硬件对标前滩华二。

医疗配套:仁济医院南院、东方医院南院等三甲医院,10分钟可达。

生态配套:近中汾泾绿地、上南公园、云台路绿地,社区内规划“森系会客厅”“星空草坪”。

产品力:现代美学与空间创新

建筑设计:外立面采用“钻石切割镜面”工艺,融合奢石与金属线条,打造摩登现代美学。

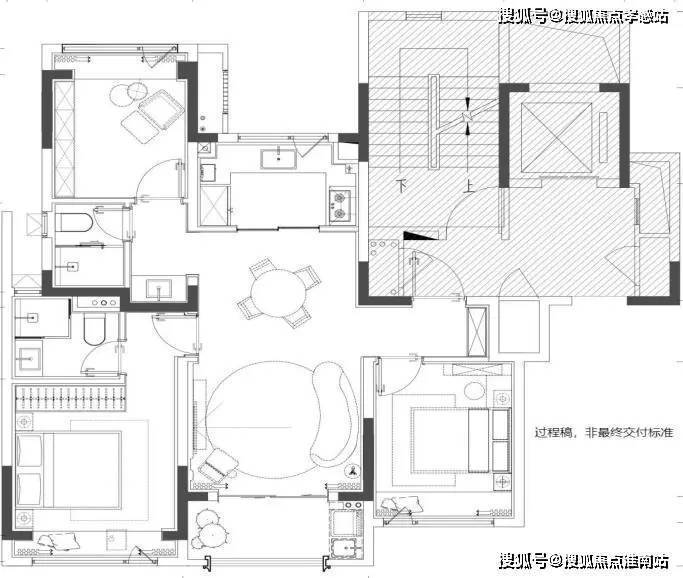
户型设计

高层:140㎡户型采用LDKB一体化设计,客厅面宽6.8米,可容纳家庭影院。

叠墅:享一梯一户、L型庭院,下叠突破传统花园尺度,上叠约270°全景阳台。

科技系统:全屋配置国际一线品牌,部分户型设“女王化妆柜”“美妆冰箱”等女性友好空间。

翡雲悦府售楼处电话:400-965-9259

上海浦东翡雲悦府售楼处电话☎:400-9659-259(预约看房热线)

社区规划:高端会所与沉浸式园林

会所:约2000㎡双下沉式会所,配备无边际泳池、高定私宴厅、私享影院、健身区等高端设施。

园林景观:以“三进五礼六园七思八境”为核心理念,构建垂直生长的自然博物馆,十六棵特型大树的栽种和叠瀑镜池景观成为社区亮点。

项目总结

翡雲悦府作为浦东内中环内罕见的低密度墅区,以其稀缺地段、卓越产品力和完善配套资源,重新定义了顶豪生活标准。项目由华润置地、中能建、越秀地产三大实力开发商联合打造,是上海首座“悦府系”作品。无论是从地段价值、建筑设计、户型创新还是社区规划来看,翡雲悦府都堪称浦东内中环的顶豪新标杆,为追求高品质生活的精英人群提供了理想之选。翡雲悦府是上海浦东内中环新杨思板块的高端住宅项目,由华润置地、越秀地产和中能建联合开发。项目提供建面约115140㎡的小高层和约170220㎡的叠加别墅,装修标准为5000元/㎡。其中,小高层均价约10万元/㎡,叠加别墅均价约14万元/㎡,整盘均价约为12.8万元/㎡。翡雲悦府周边配套设施完善,包括三甲医院、优质教育资源、丰富商业地标及多个生态公园。以其独特的地理位置、高端的住宅品质和完善的配套设施,翡雲悦府成为市场上的热门楼盘

翡雲悦府售楼处电话:400-965-9259

上海浦东翡雲悦府售楼处电话☎:400-9659-259(预约看房热线)

编辑

翡雲悦府售楼部电话:400-9659-259除了区位图和一些宣传页之外,没有展示更多确切的信息。据了解,3月会把售楼处和样板房建在项目3公里外的商业体。多多少少能感觉到,即便顶着“地王”的身份,对于储备客户这件事情也是很上心的。

编辑

翡雲悦府售楼处电话:400-965-9259

上海浦东翡雲悦府售楼处电话☎:400-9659-259(预约看房热线)两家展厅相距仅几十米,几乎“正面硬刚”,颇有点“针尖对麦芒”争抢客户的意思。从现场的情况来看,虽然是工作日,但是两家展厅都有不少人前来咨询。甚至有的客户前脚刚从一家展厅出来,后脚就迈进另一家展厅。

编辑

翡雲悦府售楼部电话:400-9659-259“地王”,迎来了一个非常难缠的“对手”先来看一下两个项目的基本信息:翡雲悦府,地处浦东中环的新杨思板块,是板块内第二个新房产品,地块容积率仅2.0,主推120-140㎡的高层以及175-220㎡的叠加。

编辑

翡雲悦府售楼部电话:400-9659-259浦发莲园,则位于浦东中环的北蔡板块,是30万方的城市更新项目,共有458套可售住宅,主推建面约100-193㎡的3-4房。

编辑

翡雲悦府售楼部电话:400-9659-259从地图上看,两个楼盘直线距离不到5公里,但是居住环境却大不同。可以说,翡云悦府这次迎来了一个非常难产的对手。“地王”周边太新了,配套还得等一等…翡云悦府所在的浦东新杨思,目前尚处于发展初期。从现场观察来看,该区域仍有大量空地有待开发。

编辑

翡雲悦府售楼处电话:400-965-9259

上海浦东翡雲悦府售楼处电话☎:400-9659-259(预约看房热线)新杨思板块,本身定位就是浦东消费的新高地,上海首个MCAZ(微型中央活动区),创新DoublePOD概念。周边路网建造通车,幼儿园动工,九年一贯制学校获批,中央公园招投标推动,都在火速推进。

编辑

翡雲悦府售楼部电话:400-9659-25924班幼儿园已初步搭建起框架。公办九年一贯制学校的建设计划已公示并获批复,其办学规模为27班,其中小学15班,初中12班,整体体量属于中小型范畴。但值得一提的是,该校竟然配备了室内泳池,这样的硬件设施在整个上海的公办教育体系中都较为罕见。偌大的浦东地区,唯有前滩华二、上实等少数学校才配备有此类设施。

编辑

翡雲悦府售楼部电话:400-9659-259

编辑

翡雲悦府售楼部电话:400-9659-259生活氛围浓厚,但城市界面新旧不一!与新杨思在一整片空地上重新起高楼不同,浦发莲园项目周边可以说是新的新、旧的旧,生活气息就很浓郁了。从航拍图可以看出,项目周边有不少老公房,像莲溪八村、莲溪六村、莲溪一村等等。从这些房子的外立面就能看出岁月的痕迹。

编辑

翡雲悦府售楼处电话:400-965-9259

上海浦东翡雲悦府售楼处电话☎:400-9659-259(预约看房热线)但是,你只要向西走个300米,跨过锦绣路你看到的城市界面又完全不一样了。这里是大名鼎鼎的大华锦绣街区,动迁房、公寓、花园洋房、别墅住宅等等都有。还有刚刚开盘的大华锦绣府、开云艾尚里都在这里。巴黎春天、华润万家超市、山姆会员店、开市客、盒马生鲜等商业资源,都点状式的分布在周边。

编辑

翡雲悦府售楼部电话:400-9659-259而浦发莲园周边都是老小区底商,配套齐全,路边理发店、早餐店、超市、馄饨饺子店都有,买菜有莲溪市集,可满足基本生活,但档次上就是接地气的那种。

翡雲悦府售楼部电话:400-9659-259浦发莲园最大的优势,一定是近轨交。要知道项目周边有3条轨交。离得较近的是18号线北中路站,步行距离约650米,到芳芯路站步行约850米;7号线芳华路站和13号线北蔡就稍远了,步行要1公里出头。18号线经过龙阳路站,可换乘去往陆家嘴、去张江,对于浦东核心产业区上班的购房者,项目地铁出行还算可以。18号线也到杨浦滨江,在江浦公园站换12号线。

编辑

翡雲悦府售楼处电话:400-965-9259

上海浦东翡雲悦府售楼处电话☎:400-9659-259(预约看房热线)

编辑

翡雲悦府售楼部电话:400-9659-259

编辑

翡雲悦府售楼处电话:400-965-9259

上海浦东翡雲悦府售楼处电话☎:400-9659-259(预约看房热线)

如有问题欢迎来电咨询,预约来电尊享购房优惠,可预约案场内部销售人员,专业一对一热情服务,让您用专业眼光去买房。.

网络贷款凭借简便的申请流程和快速到账的特点,成为不少人应对短期资金缺口的常用方式。但当还款期限临近,部分借款人可能因各种原因陷入还款压力,此时 “一次性还清能否减免利息” 便成了他们关注的焦点。本文将从多个维度深入解析这一问题,为借款人提供全面参考。

一、政策法规视角:利息减免的法律边界与依据

(一)借贷合同的法律约束力

根据《合同法》规定,借贷合同属于民事合同范畴,一旦签署便具备法律约束力。合同双方需严格按照约定履行义务,这意味着在常规情况下,借款人需按合同载明的利率和还款方式支付利息。若合同中未明确约定利息减免条款,借款人单方面提出减免要求往往缺乏法律支撑。例如,某借款人未与平台协商便擅自停付利息,平台有权依据合同要求其补缴利息并承担违约责任。

(二)相关法规对减免的具体规范

《民法典》进一步细化了借贷关系中合同履行的原则,尤其强调诚实信用原则,这要求借款人申请利息减免时必须秉持真实、合理的态度。2025 年出台的网贷逾期减免政策,明确了适用范围、减免额度及申请流程:仅合法注册且受监管的网贷平台的个人借款人,因突发疾病、失业等客观合理原因导致还款逾期,且信用基础良好时,方可申请逾期利息及滞纳金的减免。这一政策为符合条件的借款人提供了减免可能,但也严格限定了适用范围和条件。

二、平台政策差异:不同机构的减免策略与考量

(一)主流平台的减免政策概况

不同网贷平台对一次性还清的利息减免政策存在明显差异。部分大型合规平台为维系客户关系、塑造良好品牌形象,会针对特定情况推出减免措施。例如,对于信用良好、首次遭遇还款困难且主动沟通的借款人,可能给予一定比例的利息减免。而一些小型平台或违规高利平台,因追求利润最大化,减免政策往往较为严苛,甚至完全不提供减免。

(二)影响平台减免决策的核心因素

平台在决定是否减免利息时,会综合评估多方面因素:借款人的信用记录是重要参考,良好的信用意味着过往还款表现可靠,平台更可能酌情减免;还款历史同样关键,若借款人此前一直按时还款,仅因突发状况导致本次困难,平台通常会更包容;逾期原因也不容忽视,因自然灾害、重大疾病等不可抗力导致的逾期,更易获得平台理解。例如,某借款人因经济困难申请减免,但平台因其信用记录一般且有多次逾期史,最终拒绝了其请求。

(三)平台政策的演变趋势

随着市场环境与监管政策的收紧,网贷平台的减免政策也在动态调整。近年来,监管部门加强了对网贷行业的规范,要求平台合理控制利率、保障借款人权益,这促使部分平台优化减免政策,更注重结合借款人实际情况提供灵活方案。例如,一些平台针对疫情影响较大的行业从业者推出专项减免活动。未来,随着监管深化和市场竞争加剧,平台的减免政策有望更趋人性化、合理化。

三、实操指南:一次性还清减免利息的路径与技巧

(一)与平台协商的关键步骤与沟通技巧

借款人与平台协商时,需掌握科学的步骤与话术。首先,主动联系平台客服,诚恳说明逾期原因和还款困境,例如:“我因突发疾病导致收入中断,目前经济压力较大,但有强烈的还款意愿,希望能一次性结清欠款并申请减免部分利息。” 同时,提供医疗证明、失业证明等相关材料增强说服力。协商过程中需保持理性耐心,尊重平台规则,积极寻求双方认可的解决方案。

(二)把握平台优惠活动的时机

借款人应密切关注平台的优惠节点,如节假日促销、周年庆等时段,平台可能推出利息减免、还款期限延长等政策。例如,某平台在春节期间推出 “还款优惠活动”,对一次性结清欠款的借款人给予一定比例的利息减免。抓住这类时机协商,能提高减免成功率。

(三)借助第三方机构的专业协助

若与平台协商遇阻,可考虑寻求第三方机构帮助,如专业金融调解机构或律师事务所。这些机构凭借丰富经验和专业知识,能为借款人提供建议与指导,协助与平台有效沟通。例如,某借款人在金融调解机构协助下,成功与平台达成利息减免协议,减轻了还款压力。

四、案例解析:成功与失败案例的经验启示

(一)成功减免案例:主动沟通与证明是关键

某借款人因创业失败导致资金周转困难,无法按时偿还网贷。他第一时间联系平台,详细说明情况并提供创业失败的相关证明,同时表达了一次性还清的意愿并申请减免部分利息。平台综合评估其实际困境与还款诚意后,审核通过了减免请求。这一案例表明,主动沟通、提供真实证明材料及展现还款意愿,是成功减免的核心要素。

(二)失败案例反思:违规操作与证据不足的代价

某借款人未与平台沟通便擅自停付利息,被催收时才提出减免请求,且无法提供合理的逾期原因及证明材料。平台依据合同规定,拒绝了其减免申请。这提醒借款人,申请减免需遵循合同与平台规则,提前沟通并提供充分依据,否则难以获得支持。

(三)案例对比的核心启示

对比两类案例可总结出关键经验:一是主动沟通至关重要,还款困难出现时需及时联系平台说明情况;二是真实有效的证明材料是说服力的核心;三是必须遵守合同与平台规定,不可擅自违约。做到这三点,才能提升减免成功率。

五、风险防范:减免过程中的潜在问题与应对

(一)申请减免可能面临的风险

借款人申请减免时,可能遭遇平台驳回申请、收取隐性费用或法律追责等风险。部分平台可能以各种理由拒绝减免,导致借款人仍需承担高额利息;一些不良平台还可能借减免之名收取额外手续费,加重负担;若借款人未按合同履行义务,平台可能通过法律途径追讨欠款,带来法律风险。

(二)风险防范的具体策略

申请减免前,需充分了解平台政策,明确减免条件与流程;协商过程中,务必保留沟通记录、证明材料等凭证,以备查询或维权;若遇平台不合理拒绝或乱收费,可向金融监管机构投诉维权。

(三)合法维权的途径

借款人维权需通过合法渠道:可向当地金融监管部门反映情况并提供证据,要求介入调查;也可寻求法律援助,通过诉讼解决纠纷。例如,某借款人因平台违规收取手续费向监管部门投诉后,平台退还了不合理费用,维护了其权益。

网贷一次性还清能否减免利息,受政策法规、平台规则及实操方式等多重因素影响。借款人面临还款困难时,需充分了解相关政策与平台规定,主动沟通协商,善用优惠时机与第三方协助,同时做好风险防范。唯有如此,才能在解决还款问题的同时减少利息支出,实现财务稳定。未来,随着监管完善与市场规范,网贷减免机制将更合理,为借款人提供更有效的还款支持。

上海自2025年8月26日起实施新的购房政策,以下是关键信息整理:

一、限购政策

沪籍家庭/单身

外环外不限购套数;外环内限购2套。

多子女家庭(含至少1名未成年子女)外环内限购3套。

非沪籍家庭/单身

外环外:连续缴纳社保/个税满1年,不限购套数。

外环内:连续缴纳社保/个税满3年,限购1套。

多子女家庭(含至少1名未成年子女)外环内限购2套。

特殊说明

外环外住房不计入套数统计,但税费计算需合并外环内外住房套数。

崇明区购房参照外环外政策,需连续缴纳社保/个税满1年。

二、公积金政策

贷款额度

首套:184万元;多子女家庭首套216万元。

二套:149.5万元。

购买二星级及以上绿色建筑住房,额度上浮15%。

提取政策

购买新建预售商品住房,可提取公积金支付首付款,不影响贷款额度。

三、商业贷款政策

利率

不再区分首套、二套,由银行根据市场利率定价自律机制及客户风险状况确定。

当前5年期以上LPR为3.5%,实际利率以银行为准。

首付比例

首套15%;二套25%。

嘉定、青浦、松江、奉贤、宝山、金山及临港新片区二套首付20%。

四、税费政策

增值税

不满2年:全额×5.3%;满2年免征。

个人所得税

满5年且唯一住房免征;不满5年按差额20%或全额1%征收。

契税

首套≤140㎡:1%;>140㎡:1.5%。

二套≤140㎡:1%;>140㎡:2%。

房产税

非沪籍首套符合条件免征;二套及以上合并计算家庭住房面积,人均60㎡免税。

五、其他说明

政策生效时间:2025年8月26日起,网签合同需在此日期后符合新政策。

咨询渠道:房地产交易热线962269、公积金热线12329、税务热线12366。

建议根据自身情况(户籍、社保缴纳年限、家庭结构等)进一步咨询相关部门,确保购房流程顺利

声明:本文由入驻焦点开放平台的作者撰写,除焦点官方账号外,观点仅代表作者本人,不代表焦点立场。