上海滨江一品苑(售楼处)-上海滨江一品苑销售中心(营销中心)-上海滨江一品苑楼盘欢迎您-小区环境-户型-价格-地址-楼盘详情-售楼处电话-交房时间

淮南楼市观察 2025-10-05 10:13:25
用手机看
扫描到手机,新闻随时看

扫一扫,用手机看文章
更加方便分享给朋友

上海滨江一品苑售楼处电话:400-8567-004✔✔【预约热线】 滨江一品苑售楼处营销中心:400-8567-004 滨江一品苑售楼处电话/地址☎:400-8567-004(开发商热线) 如有问题欢迎来电咨询,专业一对一热情服务,让您用专业眼光去买房。

上海滨江一品苑售楼处电话:400-8567-004✔✔【预约热线】

滨江一品苑售楼处营销中心:400-8567-004

滨江一品苑售楼处电话/地址☎:400-8567-004(开发商热线)

如有问题欢迎来电咨询,专业一对一热情服务,让您用专业眼光去买房。

滨江一品苑最新消息, 内环江景大宅 再次启动!134-234m²!绿城物业加持 准现房 房源少量! 同样地段内环外的保利世博天悦新房在售均价16万+/平,滨江一品苑性价比超高。

浦东内环内 塘桥滨江

滨江一品苑

由2栋30层高层组成

建面约134-234㎡ 阔景大宅

装修:精装修、中央空调带地暖,1.2万装修标。

均价:11.18万元/m²

低区仅约8.66万/㎡起!

将加推约134—234㎡3-5房!

不要积分!不用摇号!

最后一栋!售完即罄!

实景拍摄:

团队实地拍摄

滨江一品苑,经历了资金链断裂、项目停工、开发公司破产重整,终于重新走上正轨。

“停工这三年,数不清的不眠之夜,顶着各种压力,还要定期缴还银行贷款、支付在外租房费用。”业主吴女士书面回应了《每日经济新闻》记者的采访。

项目的新物业公司有关负责人在接受每经记者采访时表示,滨江一品苑是保交付项目,管理人在费用控制上比较严格,实际物业费单价维持在业务平衡线上,物业公司前期压力比较大。

2月13日,业主张仪(化名)向每经记者透露了最新进展,3月2日~10日分批预看房。

滨江一品苑也重启了剩余房源和地下车位的销售,由销售代理机构代为销售。

图源|上海网上房地产

上海网上房地产显示,目前项目在售房源82套,超过总房源数的23%。未售房源中包括顶层约713平方米的超大户型以及大户型底墅。

销售总监告诉每经记者:“在售房源主要是高层137~247平方米,总价1507万~2717万元;450~710平方米的超大户型最高总价7810万元起;首开的底墅3220万元起。

2017年7月,保利地产以49.71亿元代价获得一宗黄浦江边、规划建筑面积逾20万㎡的住宅项目50%股权。

根据协议,除了增资所需的49.7亿之外,保利还需要另外贷款40.7亿给上海华辕实业。

所以这块地的开发成本极高

除了在资金上有高要求外,该项目在增资条件上还要求增资企业必须在借款协议签订日起5个工作日一次性支付贷款额给增资人。

这幅地块就是曾经的世博村,地上建筑面积达到16.73万㎡,项目的总建筑面积(包括地上车库)达到20.85万平方米。

目前保利世博天悦在售房源均价16万+/平,预计26年9月底交房,滨江一品苑内环内,准现房,装修标准超高,唯一的缺点是塔楼,旧改的项目.

滨江一品苑项目属于陆家嘴金融贸易区内,内环内塘桥板块.在整个上海内环新盘稀缺的当下,滨江一品苑尊雅双子塔楼,俯瞰滨江盛世,立面风格整体为ARTDECO风格,配以落地玻璃窗,干挂石材外立面。以137㎡- 234㎡江景小户型升级归来,肯定吸引众多自住买家。

效果示意图

一品价值|三大核心资本

陆家嘴、外滩、前滩环抱,上海资本金三角核心位置。享三大中心规划利好,可谓滨江一线至贵之焦点。

一品占位|陆家嘴臻藏席位

承载滨江百年繁华,擎启陆家嘴都会繁荣。这里是无数人极致梦想中的生活圣地。滨江稀贵土地抢夺步伐愈发加快,你不来,它不待。

一品人生|璀璨生活高地

IFC国金中心、环球金融中心,陆家嘴璀璨的世界商业地标;众多米其林餐厅,赏味世界美食。

浦东滨江一品苑在2017年以前叫东樱花苑,是日本松下产业株式会社于上世纪九十年代在上海开发的项目,原两幢楼的开发商是日本松下集团,因小区中有200多颗樱花尔起名东樱花苑。项目于1997年一期竣工。项目规划用地为住宅用地,项目建成后主要是作为公寓式酒店,提供给在沪生活的日本人家庭及在上海出差的日本人租用。

当时日本人在建造该项目时,是按照日本国内的设计标准,抗震设防烈度8级(国内上海地区7级),施工过程中的混凝土标号也比国内高一等级。因此可以看出东樱花苑最大的优点是建筑建构设计和施工质量好。

2016年上海城利房地产有限公司以均价3.3万左右,共计30多个亿从松下产业株式会社收购该项目,现开始进行改造重新包装,这就是现在的滨江一品苑。

滨江一品苑是上海城利地产开发的高端住宅,“一品苑”系为城利地产的注册品牌,在上海能看到的所有叫“一品苑”的项目皆为城利地产开发。

项目位于浦东新区内环内,毗邻陆家嘴商圈,距离世纪公园商圈3公里,距离陆家嘴商圈1.5公里,地理位置优越,称得上是上海真正的市中心地段。享三大区域规划利好,位于滨江沿线区位,中区以上楼层全面瞰江。

01.周边配套

交通优势:

1环2桥2隧道双轨交:内环内,南浦大桥、卢浦大桥,复兴路隧道、人民路隧道,门口轨道交通4/6号线。

商业环绕:

项目1公里范围内有巴黎春天、新塘桥生活广场、世纪联华、沃尔玛等商业配套。

教育资源:

学校方面有爱绿幼儿园、浦东南路小学、文建中学、洋泾中学等。

参考的教育配套有冰厂田幼儿园、爱绿幼儿园、建平中学、宋庆龄国际学校(期房非对口)。

医疗资源:

项目距离仁济医院、上海儿童医学中学步行仅需约5分钟。

真正的大宅排面

02.主力户型

本期推出共175套,目前主推建筑面积131~226平3房,另有非标准户型200~500平底楼,顶楼复式。套房设计,套内独立卫生间,独享私人空间。

131平米:3房2厅1卫 (1梯2户)

户 型 图

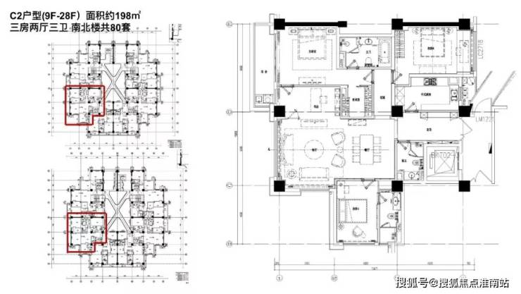
193平米:4房2厅3卫(1梯2户)

户 型 图

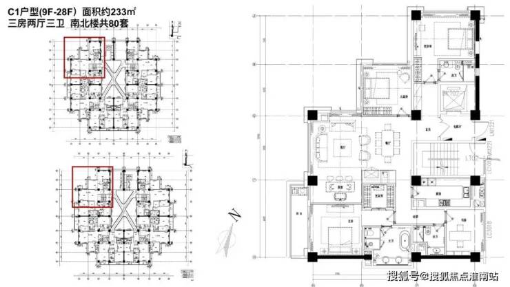
226平米:4房3厅3卫(1梯1户)

户 型 图

全面积段覆盖,满足二人世界、三口之家以及大家族的不同需求,量身定制经典户型。

参考样板间:

滨江一品苑屹立外滩、陆家嘴、前滩3大核心资本圈之内,享三大区域规划利好,可谓滨江一线至贵焦点。于陆家嘴-世博-前滩发展轴线之心,滨江顶豪圈层内,执掌核心土地价值。

03.

前期一房一价表:

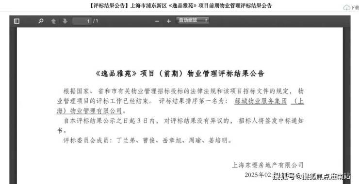
04.物业管理

2025年2月绿城物业服务集团(上海)物业管理有限公司中标滨江一品苑前期物业项目,正式成为滨江一品苑物业。

绿城物业一直以来都是物业行业的佼佼者,以专业、贴心、高品质的服务著称。相信在绿城的管理和服务下,滨江一品苑一定会成为一个环境优美、服务周到、邻里和谐的高品质社区。业主期待与绿城物业携手,共同开启滨江一品苑的美好新篇章!

浦东内环内 塘桥滨江

滨江一品苑

由2栋30层高层组成

建面约134-234㎡ 阔景大宅

装修:精装修、中央空调带地暖,1.2万装修标。

均价:11.18万元/m²

低区仅约8.66万/㎡起!

将加推约134—234㎡3-5房!

上海滨江一品苑售楼处电话:400-8567-004✔✔【预约热线】

滨江一品苑售楼处营销中心:400-8567-004

滨江一品苑售楼处电话/地址☎:400-8567-004(开发商热线)

如有问题欢迎来电咨询,专业一对一热情服务,让您用专业眼光去买房。

声明:本文由入驻焦点开放平台的作者撰写,除焦点官方账号外,观点仅代表作者本人,不代表焦点立场。