中环置地中心望云售楼处电话→华润望云售楼中心电话→2025中环置地中心望云楼盘百科→首页网站→楼盘测评→售楼处电话→楼盘百科→24小时热线电话
扫描到手机,新闻随时看
扫一扫,用手机看文章
更加方便分享给朋友
【中环置地中心望云】
上海宝山中环置地中心望云售楼处电话:400-8815-114(预约热线)
中环置地中心望云营销中心
服务热线:400-8815-114(已认证)
预约看房请提前联系案场销售
宝山·南大 全新盘
加推建面约108-188㎡3-4房
均价6.9万/㎡ 总价约670万起
中环旁双轨交地铁上盖 共300套房源
万象汇TOD综合体
售楼处线上预约中
项目一房一价表▼
上海宝山中环置地中心望云
售楼处电话:400-8815-114(预约热线)
中环置地中心望云营销中心
服务热线:400-8815-114(已认证)
预约看房请提前联系案场销售
项目基本信息
上半年的上海楼市,有这样一个“神盘”,六开六捷,同时以住宅套数销售TOP1、销售面积TOP2的断层级领先优势,问鼎楼市天花板!

去年10月25日,上海第六批次土拍,华润置地以46亿总价拿下宝山南大W12-1301单元32-04 、11-01地块,打造润府二期!
效果图展示,实际以交付为准

迭代到二期,中環置地中心·望雲的审美又得到了再度突破和提升。
据悉将融入“华润·D-MONDE”的设计理念,呈现“秩序”和“经典”的建筑灵感,以框架感、构成感、群落感形成独特的城市天际线,为中环呈鉴极具美感的城市封面;融合“经典、华丽、松弛”的设计风格,借鉴新加坡高端住宅景观理念,引入度假式生活体验,实现建筑、生活和自然三者和谐共存。
效果图展示,实际以交付为准

项目本次的边套设计了大量的飘窗、转角飘窗、主卧270度落地窗等设计,所以整个立面运用了大量的玻璃,构建出了非常极致的窗墙比。

单看华润置地给出的资料和由GAD设计的外立面效果图,可以看到,是铜色铝板搭配浅白色陶瓷板,和超大比例类似玫瑰金色系的玻璃幕墙,这种海派雅奢的腔调和质感,一下就拿捏住上海人的心巴。
效果图展示,实际以交付为准

效果图展示,实际以交付为准 景观方面,

上海宝山中环置地中心望云
售楼处电话:400-8815-114(预约热线)
中环置地中心望云营销中心
服务热线:400-8815-114(已认证)
预约看房请提前联系案场销售
景观:城市中央的国际海派社区,归家即是度假!
项目由 翊象设计主创设计团队操刀设计。
整个社区 以主景花园 联动自然教室 、休闲交谊 与艺术空间 ,形成婉转游园的酒店式迎宾水院。
效果图仅供参考,具体以实际交付为准
效果图仅供参考,具体以实际交付为准
同时,以超奢戏水池 与尊享休闲会所 为核心,联动架 空层 ,串联休憩廊架 与横向端景 ,打造核心奢享场景。
效果图仅供参考,具体以实际交付为准
另外,整个项目拥有包 括泛会所 (戏水池、健身场所)、场景化网红架空层泛会所 等全维社交场景。

效果图仅供参考,具体以实际交付为准
该宗地块与华润置地中心润府相邻,将打造全新万象汇TOD综合体——中環置地中心·望雲
32-04地块,规划8幢住宅,总高8-26F,可售套数约580套左右。

2#、7#、8#有连廊,其中2#预估是3梯5户,7#、8#是3梯6户。其余楼栋无连廊,1梯2户;
5#、6#总高8层,无架空层,其余楼栋1层均有架空;9#、10#总高17F,其余楼栋总高22-26F;
该地块无保障房,地面无车位,人车分流。
11-01地块是商业、住宅混合地块。

规划3栋总高17-29层住宅,商业部分有2栋总高30F的酒店、23F的综合楼、以及2栋3F的商业;
住宅和商业部分通过公共通道分隔;
住宅部分人车分流,无地面车位。车行入口在西侧祁健路上。

「丰翔路站TOD!北上海商业旗舰曝光」
上海宝山中环置地中心望云
售楼处电话:400-8815-114(预约热线)
中环置地中心望云营销中心
服务热线:400-8815-114(已认证)
预约看房请提前联系案场销售
项目推售详情
据悉,中環置地中心·望雲 将加推约108-188㎡3-4房,本次首开4号楼,户型建面约108-133㎡3-4房,望雲楼尊9# 建面约188㎡,即将点燃南大!现望雲实景示范区-雲境美学生活馆已全城开放,恭迎品鉴。
产品方面,相比一期润府,望雲的户型设计可谓一脉相承,切中购房者“痛点”;在室内装修上的品质呈现,其审美也得到了进一步提升。
加推房源全套户型图如下:
108㎡的入门级三房,起步门槛相比润府提高不少。
这个户型,入户玄关收纳、双开间的阳台、宽大的U型厨房,和套房主卧带步入式衣帽间+全景式飘窗,是比较突出的亮点;

上海宝山中环置地中心望云
售楼处电话:400-8815-114(预约热线)
中环置地中心望云营销中心
服务热线:400-8815-114(已认证)
预约看房请提前联系案场销售
中环置地中心望云约108㎡ 3房样板间实拍▼
上海宝山中环置地中心望云
售楼处电话:400-8815-114(预约热线)
中环置地中心望云营销中心
服务热线:400-8815-114(已认证)
预约看房请提前联系案场销售
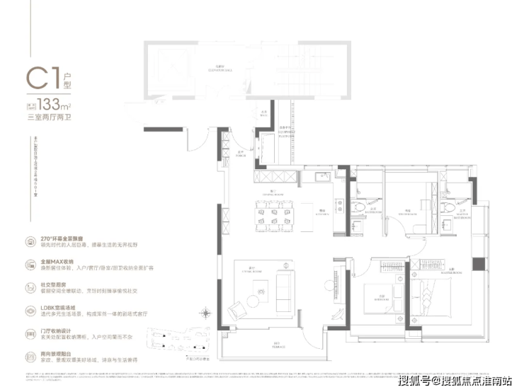
133㎡可以说是108㎡的进阶款,同样的三房两厅两卫,大面宽横厅、半开放式厨房设置岛台,加上主卧L型飘窗,再一次验证了华润置地豪宅化的产品思路。

上海宝山中环置地中心望云
售楼处电话:400-8815-114(预约热线)
中环置地中心望云营销中心
服务热线:400-8815-114(已认证)
预约看房请提前联系案场销售
中环置地中心望云约133㎡ 3房样板间实拍▼
上海宝山中环置地中心望云
售楼处电话:400-8815-114(预约热线)
中环置地中心望云营销中心
服务热线:400-8815-114(已认证)
预约看房请提前联系案场销售
来到165㎡个户型,已经上升到上海主流的大户型改善面积段,但看设计思路,可以看出是为满足多胎家庭成长而服务的。
近日中寰置地中心·望雲开放了165㎡样板间,楼典实地参观感受一番下来,整个户型动静分区的布局空间感很出众,人性化收纳设计细节很多,几乎每个房间都做了开窗面极大的飘窗,另外,装标也在润府的基础上升级了不少。

上海宝山中环置地中心望云
售楼处电话:400-8815-114(预约热线)
中环置地中心望云营销中心
服务热线:400-8815-114(已认证)
预约看房请提前联系案场销售
上海宝山中环置地中心望云
售楼处电话:400-8815-114(预约热线)
中环置地中心望云营销中心
服务热线:400-8815-114(已认证)
预约看房请提前联系案场销售
首先推开入户门,映入视线的是LDKB一体化客餐厅,家庭的核心活动区域,整个户型动静分区的布局一览无余,无走廊设计,空间利用率极高,走下来显得十分敞阔。
其次是收纳空间非常丰富,玄关、餐边柜、厨房、卫浴、主卧、阳台六大功能空间,随处可见。
比如,厨房配了珍珠白吊柜、三组抽屉式拉篮合理搭配,调料架收纳、大容量踢脚抽、清洁用品收纳区,米面粮油、碗碟刀叉都可完美隐身。
上海宝山中环置地中心望云
售楼处电话:400-8815-114(预约热线)
中环置地中心望云营销中心
服务热线:400-8815-114(已认证)
预约看房请提前联系案场销售
下图蓝色为收纳区域,绿色部分即飘窗区域:

入户门厅也非常讲究,定制级的玄关柜,包括鞋柜+收纳柜+卡座+衣帽区,整齐有序。

此外,像私享的入户梯厅可以做家庭小型储藏库;沙发后面的空间可以摆放大体量壁柜;大面宽阳台两侧也可作为定制储藏空间;



整个户型的飘窗面积总和达到了约14.3㎡。
其中主卧的270°转角飘窗就有约5.7m²,通过与外立面的结合,直接做了梳妆台和储物柜,拓展了飘窗的实用性。


同时室内精装交付标准上,也再度升级,从墙面、地板到厨卫品牌,都是国内外一线品牌。


上海宝山中环置地中心望云
售楼处电话:400-8815-114(预约热线)
中环置地中心望云营销中心
服务热线:400-8815-114(已认证)
预约看房请提前联系案场销售
188户型2梯2户,有独立的电梯厅。4房3卫设计,还是3明卫,这两点还是不错的。
客餐厅净面宽约5.45m、进深约6.85m左右。北侧是厨房和家政间,南侧是净面宽约5m的阳台。
南次卧也是套间设计,而且也是明卫,设计上还是用了心思的。卧室部分净面宽约2.9m、进深约3.7m。根据测算,可以放置6尺的床(宽度约1.8m)+2个床头柜(宽度约45cm/个)+衣柜(深约60cm)是可以的。
主卧转角落地窗+飘窗,也算是非常少见的了。净面宽约3.6m,不算进门的衣柜,进深大约5.7m左右。根据测算,可以放置宽约2m的床+2个床头柜(宽度约45cm/个)是可以的。
上海宝山中环置地中心望云
售楼处电话:400-8815-114(预约热线)
中环置地中心望云营销中心
服务热线:400-8815-114(已认证)
预约看房请提前联系案场销售
上海宝山中环置地中心望云
售楼处电话:400-8815-114(预约热线)
中环置地中心望云营销中心
服务热线:400-8815-114(已认证)
预约看房请提前联系案场销售
上海宝山中环置地中心望云
售楼处电话:400-8815-114(预约热线)
中环置地中心望云营销中心
服务热线:400-8815-114(已认证)
预约看房请提前联系案场销售
项目区位配套
中环置地中心地处宝山南大板块!作为宝山4个重点发展区域之一,南大同时也是上海北部最大的待开发区域之一。
待开发,也就意味着尚未建成!但不管是从规划还是位置来看,南大都是上海少有的能兼顾产业和居住的板块之一。
首先南大被称为中心城区一块不可多得的“大衣料子”,总开发体量约540万方,包含两大TOD及约250米天际地标,规划绿地面积占比高达43%(来源:上海宝山)!
和其他区域边拆边建式的零散开发不同,而是统一拆改后再集中规划,这样的开发形式,也决定了这里的规划从一开始就会相对完整且高能级。
比如它的产业先行,整个区域内分布了不少的科创产业。

而且,从2035总体规划中,其实也能看出来,南大定位很高,属于全市重点推进的整体转型区域,是宝山建设上海科创中心主阵地的核心载体。

所以不管是放在全上海还是宝山,这都是一块举足轻重的产业基地。
而除此之外,前面也提到,南大板块规划的绿地面积占比高达43%。特色公园40余个,人均绿色面积约39.38㎡,是上海人均绿地面积的约3倍。未来可能会是一个超越碧云的大型生态居住区。(数据来源:上海宝山区政府官网)

也就是说,在这个重点产业区域,其实早就考虑到了与生活相融的问题。
讲真,在环线外的空白区域这样规划不是难事,但在上海的中环附近,近乎预留了一半的土地给到绿化,给到生活,这算的上是一件吃力不讨好的事儿。
但南大有宜人的生态,而且还是高规格。
中环置地中心·望雲 位于南大智慧城C位,周边生活配套非常成熟且距离相对较近,未来随着板块规划逐步兑现,地段价值将会更加凸显。

交通配套方面:北侧丰翔路、西侧祁健路、东侧汇丰路已建成通车,07-01地块南侧丰皓路(祁健路-工学路)计划2024年开工建设。
项目距离15号线丰翔路站步行可达,日常出行非常方便。
商业配套方面:项目本身就是一个自带商业的TOD,华润置地规划以万象系列融汇轻奢时尚、休闲生活、运动潮流等多元业态,打造北中环“都市商业新旗舰。
除了未来的万象系商业(规划中),周边还有经纬汇、聚丰购物广场、上坤城市广场、山姆会员店等,购物还是比较方便的。
医疗资源方面:项目周边有两大三甲级医院为健康保驾护航,本别是:仁济医院宝山分院和华山医院(宝山院区)。
教育资源方面:周边荟萃南大实验幼儿园、宝山区南大实验学校、上大附小、上大附中、上海大学附属学校、上海大学等全龄化教育资源。

上海宝山中环置地中心望云售楼处电话:400-8815-114(预约热线)
中环置地中心望云营销中心
服务热线:400-8815-114(已认证)
预约看房请提前联系案场销售
【中环置地中心望云】
——诚邀品鉴——
上海购房政策
上海购房政策在2025年8月26日进行了优化调整,以下是最新政策要点:
一、限购政策
外环外
上海户籍家庭/单身:不限购套数。
非上海户籍家庭/单身:需在沪缴纳1年社保或个税,即可不限购。
多子女家庭(含至少1名未成年子女):外环外不限购。
外环内
上海户籍家庭/单身:限购2套。
非上海户籍家庭/单身:需在沪缴纳3年社保或个税,限购1套。
多子女家庭:上海户籍限购3套,非上海户籍限购2套。
特殊政策
非沪籍置换性购房:出售上海唯一住房后,可再购1套,无需社保或个税。
崇明区购房参照外环外政策,只需满足1年社保或个税。
二、贷款政策
商业贷款
利率不再区分首套、二套,由银行根据市场和客户风险自主定价。
首套首付15%,二套首付25%;购买临港、嘉定、青浦等区域二套,首付20%。
公积金贷款
首套最高贷款额度184万,多子女家庭首套可达216万;二套最高149.5万。
购买二星级及以上绿色建筑住房,贷款额度上浮15%。
新建预售房可提取公积金支付首付,不影响贷款额度。
三、税费政策
房产税
非沪籍首套房免征,二套房人均60㎡免征面积。
持《上海市居住证》连续满3年或积分达120分,首套房免征。
增值税
满2年免征,不满2年按税务核定价÷1.05×5.3%征收。
契税
家庭唯一住房,面积≤140㎡按1%征收,>140㎡按1.5%征收;
第二套住房,面积≤140㎡按1%征收,>140㎡按2%征收。
四、其他政策
新房摇号积分制
认购率超过1:1.3启动积分制,按社保缴纳年限等打分排序。
企业购房
购买2000年前竣工、面积≤70㎡的二手房用于员工租住,不限购。
以上政策自2025年8月26日起施行,具体执行以官方最新文件为准。建议购房前咨询相关部门或专业机构,确保符合资格。
声明:本文由入驻焦点开放平台的作者撰写,除焦点官方账号外,观点仅代表作者本人,不代表焦点立场。
