保利新江湾售楼处电话☎:400-998-9694✔✔保利新江湾售楼处电话☎:400-998-9694✔✔保利新江湾项目拟推出洋房、叠拼及合院产品,售楼处电话400-998-9694,24小时服务。
保利新江湾
售楼处电话☎:400-998-9694✔✔
如有问题欢迎来电咨询,来电即可享受买房优惠!
预约来电尊享购房优惠,可预约案场内部销售人员,专业一对一热情服务,让您用专业眼光去买房。
保利新江湾售楼处电话☎:400-998-9694✔✔
保利新江湾售楼处电话☎:400-998-9694✔✔
杨浦·新江湾城 全新盘
「保利发展新江湾项目」
将拟建洋房+叠加+联排产品
将推约100-300㎡左右
项目信息
2025年9月,保利发展与上海地产联手,通过股权转让方式拿下新江湾城一宗地块,这是保利发展首次在新江湾城板块拿地。

保利新江湾售楼处电话☎:400-998-9694✔✔保利新江湾营销中心电话:400-9989-694【24小时热线】保利新江湾预约热线:4009989694【售楼处电话】
该地块位于新江湾城北侧,江湾城路与国秀路交汇处东侧。
项目用地面积约5.71万㎡,建筑面积约6.28万㎡,出让总价为37亿元,折合楼板价约5.89万/㎡,住宅套数下限为455套。

保利新江湾售楼处电话☎:400-998-9694✔✔保利新江湾营销中心电话:400-9989-694【24小时热线】保利新江湾预约热线:4009989694【售楼处电话】
在现场看到,围栏上已经展示开放商和1.1的容积率。


保利新江湾售楼处电话☎:400-998-9694✔✔保利新江湾营销中心电话:400-9989-694【24小时热线】保利新江湾预约热线:4009989694【售楼处电话】
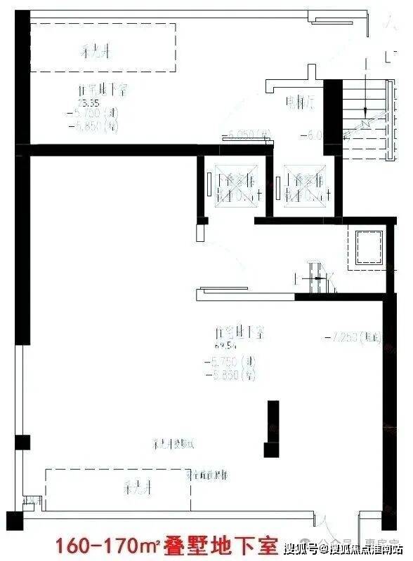
据悉,项目将推出建面约103-140㎡洋房、建面约160-185㎡叠拼,以及建面约192-320㎡合院产品。部分户型过程稿:(仅供参考,最终以开发商发布为准)



保利新江湾售楼处电话☎:400-998-9694✔✔保利新江湾营销中心电话:400-9989-694【24小时热线】保利新江湾预约热线:4009989694【售楼处电话】




保利新江湾售楼处电话☎:400-998-9694✔✔保利新江湾营销中心电话:400-9989-694【24小时热线】保利新江湾预约热线:4009989694【售楼处电话】

保利新江湾售楼处电话☎:400-998-9694✔✔保利新江湾营销中心电话:400-9989-694【24小时热线】保利新江湾预约热线:4009989694【售楼处电话】




保利新江湾售楼处电话☎:400-998-9694✔✔保利新江湾营销中心电话:400-9989-694【24小时热线】保利新江湾预约热线:4009989694【售楼处电话】
新江湾题材一箩
南北两大副中心
新江湾城的北翼,上海9大主城副中心之一的吴淞创新城,正在经历“北转型”科创产业大升级。新江湾城的南翼,另一个主城副中心江湾五角场,作为“金色中环发展带”,串起上海北部核心商务区,正从传统都市商圈向产学研复合城区变迁。
如大弓一般伸展的杨浦区,正在推动落实“三区联动”,也就是创新空间、产业空间、生活空间融合。作为杨浦区的核心发展引擎——江湾五角场的辐射生活带,新江湾城顺其自然坐享周边产业区、校区发展所带来的溢出机遇。
中环北扩

保利新江湾售楼处电话☎:400-998-9694✔✔保利新江湾营销中心电话:400-9989-694【24小时热线】保利新江湾预约热线:4009989694【售楼处电话】
2025年,新江湾城板块迎来军工路、长江西路快速化改造工程的持续推进。军工路快速路是“中环北扩”规划(军工路—长江路—真北路快速通道)重要成员。它沿着杨浦、宝山两区滨江地带行走,线路全长约7.5公里,它是上海北部高速联通中、外环线的主要干道之一,战略地位向来很重。该路段2025年内建设完工。
它将加速新江湾城与中心城区联系,同时串起黄浦江下游多条越江通道,减轻中环北段、逸仙路高架、南北高架等快速路的拥堵压力,功能非常丰富,意义非常重大。

长江西路快速路已被列入2025重大工程预备项目,所谓预备项目,是指项目现阶段手续暂未齐全,待齐全后预备近期实施的项目。换句话说,中环向北扩展的总体目标,2025年有望全面启动。

保利新江湾售楼处电话☎:400-998-9694✔✔保利新江湾营销中心电话:400-9989-694【24小时热线】保利新江湾预约热线:4009989694【售楼处电话】
20号线
除了10号线、18号线直接穿越新江湾城外,一条新轨交又要来了, 20号线被称为“北上海副中心联络线”。全长约30公里,共21个站点。它不仅串联起了真如、五角场两大主城副中心,并且将桃浦智创城、大宁商圈、新江湾、曲阳(大柏树)、杨浦滨江中北段和浦东外高桥一线连接。这条新地铁将为新江湾城的东西两翼点开通勤出行新地图。
产业中心

“夹”在中间的新江湾城,区内坐拥抖音、哔哩哔哩、叠纸、美国耐克、德国汉高等头部企业,精英人才汇聚。北部以湾谷科技园为核心,形成“2+4+N”产业矩阵——电子通信、生命健康为主导,智能科技、绿色低碳等为优势产业。新江湾城作为生态型花园国际社区,不但要接住南北两翼齐飞的泼天“城运”,顺势还要承接周边不断溢出的庞大职住需求。


保利新江湾售楼处电话☎:400-998-9694✔✔保利新江湾营销中心电话:400-9989-694【24小时热线】保利新江湾预约热线:4009989694【售楼处电话】
大型生态湿地
新江湾区域内绿化覆盖率高达60%,已经形成 "湿地-公园-绿廊" 三级生态体系。占地7.35公顷的新江湾城湿地公园,是上海中心城区最大一块天然湿地,负氧离子浓度达2000个/立方厘米以上,堪称超大型城市绿肺。

杨浦大学城
新江湾区域内有复旦、同济、财大等10多所著名高校,100多家科研院所,以及复旦附中、交大附中等重点高中。早在1996,该区域第一个高科技园区“五角场高新技术产业园”正式建立,从此杨浦开始走上产学研一体化道路,比如建设国家创新型试点城区,将杨浦园构建为张江示范区的重要组成部分等。杨浦还打出了一个大大的标语:至2030年,形成“大学的城市、城市的大学”。
15分钟社区生活圈

新江湾城街道聚焦居民、企业员工生活、工作上的需求,推行“15分钟社区生活圈”,建立“3+8+N”服务体系(3个核心生活圈+8个分中心),覆盖全年龄人群需求。
保利新江湾售楼处电话☎:400-998-9694✔✔保利新江湾营销中心电话:400-9989-694【24小时热线】保利新江湾预约热线:4009989694【售楼处电话】
经过逾20年的建设,新江湾城已成为一个以中高端住宅为主的知识型、生态型花园社区。
项目直线距离10号线新江湾城站约1.1公里,无需换乘可直达五角场、南京东路、豫园等各大商圈。
自驾方面,项目经由淞沪路-黄兴路及逸仙高架路可连通内环,日常通勤动线流畅。

商业方面,板块内有悠方购物公园,可满足日常生活需求。五角场则包含万达广场、百联又一城、合生汇等一站式购物中心。

保利新江湾售楼处电话☎:400-998-9694✔✔保利新江湾营销中心电话:400-9989-694【24小时热线】保利新江湾预约热线:4009989694【售楼处电话】
此外项目南侧直线距离约500米,上海交大附中杨浦实验学校将于2027年9月落成启用。


保利新江湾
售楼处电话☎:400-998-9694✔✔
如有问题欢迎来电咨询,来电即可享受买房优惠!
预约来电尊享购房优惠,可预约案场内部销售人员,专业一对一热情服务,让您用专业眼光去买房。
保利新江湾售楼处电话☎:400-998-9694✔✔
楼盘项目全面介绍,本电话为开发商提供线上预约售楼电话,楼盘项目全面介绍(包含楼盘简介,均价,房价,现房,期房,别墅,叠墅,大平层,价格,楼盘地址,户型图,交通规划,备案价,备案名,项目配套,样板间,开盘时间,认筹时间,楼盘详情,售楼处电话,最新消息,最新详情,周边配套,一房一价,最新进展等详情咨询)楼盘详情丨价格丨更多优惠丨机不可失丨欢迎致电丨诚邀品鉴!售楼处位置丨特价房丨工抵房丨剩余房源丨户型图丨最新消息丨免责声明:将文章内容综合来源于网络、只作分享,版权归原作者所有!!如有侵权,请联系我们,我们第一时间处理如有问题欢迎来电咨询,专业一对一热情服务,让您用专业眼光去买房。如果您想了解更多楼盘详情,欢迎提前预约拨打