华发海上都荟官方网站-华发海上都荟售楼处电话-华发海上都荟楼盘详情-交房时间-地址-最新房价户型图-小区环境-楼盘详情-交房时间-周边配套-售楼处电话
扫描到手机,新闻随时看
扫一扫,用手机看文章
更加方便分享给朋友
华发海上都荟售楼处电话☎:400-9659-259【售楼热线】✔✔✔营销中心热☎400-9659-259售楼处地址☎400-9659-259
9/12号线西延伸售楼处电话☎:400-9659-259✔✔(在建中)双地铁房上海西南新一代高品质封面之作华发·海上都荟二期建面约101㎡高层三房建面约90-136㎡叠加均价49100元/㎡,总价401万起!开盘热销中! 线上接待预约中!!
售楼处电话☎:400-9659-259✔✔
看房请务必致电与销售确认时间,避免空跑

华发·海上都荟售楼处电话☎:400-9659-259【售楼热线】✔
华发·海上都荟售楼处电话☎:400-9659-259【售楼热线】✔
在上海新房市场不温不火的背景下,双地铁口红盘华发海上都荟的首开可谓给市场打了剂强心剂!
项目售楼处电话☎:400-9659-259✔✔首开现场人气爆棚,热度非凡,堪称一场全市级的盛宴。
项目售楼处电话☎:400-9659-259✔✔首开当月劲销7成,约200余套房源名花有主,总销金额高达约11.5亿!

华发·海上都荟售楼处电话☎:400-9659-259【售楼热线】✔

华发·海上都荟售楼处电话☎:400-9659-259【售楼热线】✔
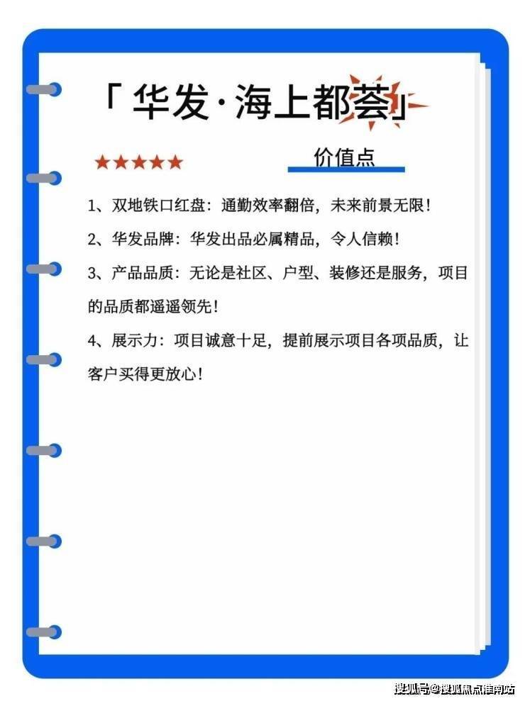
项目推荐 · 理由
华发·海上都荟售楼处电话☎:400-9659-259【售楼热线】✔
项目推荐理由丨展开动画
*
内容提要:
*01.基本信息
*02.推售信息
*03.周边配套

华发·海上都荟售楼处电话☎:400-9659-259【售楼热线】✔
2023年7月11日售楼处电话☎:400-9659-259✔✔,上海二批次土拍,华发以总价706310万元成交松江区洞泾镇SJS30006单元04-04、05-01、05-05号地块,地块出让面积130113.2㎡,容积率2.1,溢价率10%,楼板价25850元/㎡,房地联动价50000元/㎡。
项目售楼处电话☎:400-9659-259✔✔四至范围,东至百尧村路、南至联营村路、西至04-03地块、北至城桂路。
根据土地转让合同显示,
04-04地块售楼处电话☎:400-9659-259✔✔的规划住宅套数下限为942套、05-01地块的规划住宅套数下限为1055套、05-05地块的规划住宅套数下限为735套、
总体量超过了2700套,是个超大体量盘。

华发·海上都荟售楼处电话☎:400-9659-259【售楼热线】✔
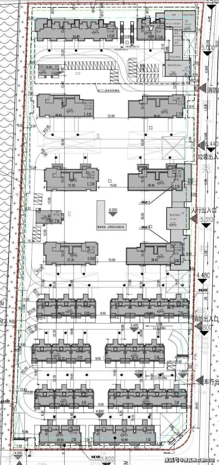
根据项目售楼处电话☎:400-9659-259✔✔设计方案显示,拟建56幢4-18F的住宅、保障房以及其他配套用房,其产品为高层&洋房&叠加的组合。

华发·海上都荟售楼处电话☎:400-9659-259【售楼热线】✔
具体经济指标如下:

华发·海上都荟售楼处电话☎:400-9659-259【售楼热线】✔
三块地的各自规划如下:
04-04地块的门位售楼处电话☎:400-9659-259✔✔于东面与南面,根据设计方案显示,有8栋18层高高楼,6栋6层楼栋以及6栋4层高楼栋。18层高度约为57.2m,6层为18.55m,4层为12.55m。
华发·海上都荟售楼处电话☎:400-9659-259【售楼热线】✔
05-01地块的售楼处电话☎:400-9659-259✔✔门位于西面与东南角,根据设计方案显示,有9栋18层高高楼,6栋6层楼栋以及5栋4层高楼栋。18层高度约为57.2m,6层为18.55m,4层为12.55m。
华发·海上都荟售楼处电话☎:400-9659-259【售楼热线】✔
05-05地块的售楼处电话☎:400-9659-259✔✔门位于西南角与东面,根据设计方案显示,有一栋保障房、7栋18层高高楼、6栋6层楼栋以及2栋4层高楼栋。18层高度约为57.2m,6层为18.55m,4层为12.55m,保障房也为18层,高度为57.2m。

华发·海上都荟售楼处电话☎:400-9659-259【售楼热线】✔
9/12号线西延伸售楼处电话☎:400-9659-259✔✔(在建中)双地铁房,上海西南新一代高品质封面之作,华发·海上都荟二期,建面约101㎡高层三房,建面约90-136㎡叠加,均价49100元/㎡,总价401万起!开盘热销中!
户型图赏鉴
华发·海上都荟售楼处电话☎:400-9659-259【售楼热线】✔
华发·海上都荟售楼处电话☎:400-9659-259【售楼热线】✔
华发·海上都荟售楼处电话☎:400-9659-259【售楼热线】✔
华发·海上都荟售楼处电话☎:400-9659-259【售楼热线】✔
叠墅户型图赏鉴
华发·海上都荟售楼处电话☎:400-9659-259【售楼热线】✔
华发·海上都荟售楼处电话☎:400-9659-259【售楼热线】✔
华发·海上都荟售楼处电话☎:400-9659-259【售楼热线】✔
华发·海上都荟售楼处电话☎:400-9659-259【售楼热线】✔
高层样板间赏鉴
华发·海上都荟售楼处电话☎:400-9659-259【售楼热线】✔
华发·海上都荟售楼处电话☎:400-9659-259【售楼热线】✔
华发·海上都荟售楼处电话☎:400-9659-259【售楼热线】✔
华发·海上都荟售楼处电话☎:400-9659-259【售楼热线】✔
华发·海上都荟售楼处电话☎:400-9659-259【售楼热线】✔
一房一价表如下:
华发·海上都荟售楼处电话☎:400-9659-259【售楼热线】✔
华发·海上都荟售楼处电话☎:400-9659-259【售楼热线】✔
华发·海上都荟售楼处电话☎:400-9659-259【售楼热线】✔
华发·海上都荟售楼处电话☎:400-9659-259【售楼热线】✔
华发·海上都荟售楼处电话☎:400-9659-259【售楼热线】✔
点击浏览一房一价表
点击查看一房一价表
项目售楼处电话☎:400-9659-259✔✔自带约2000㎡社区配套,此前实景示范区已惊艳亮相!据悉项目社区配套、下沉式庭院、会所、入户大堂、地下车库等都做了实景展示,项目售楼处未来交付后也将规划为邻里空间配套!满屏所见即所得,让业主看得舒心买得放心~

华发·海上都荟售楼处电话☎:400-9659-259【售楼热线】✔
售楼处实景图
比如说售楼处电话☎:400-9659-259✔✔,项目主入口做了环岛式酒店大堂设计,风雨回廊在天气炎热或者下雨天时让人更舒适;地下车库沿袭市场流行的网红星空顶设计,兼具美观度和实用性,头顶是璀璨的星空顶,绚丽氛围直接拉满;
华发·海上都荟售楼处电话☎:400-9659-259【售楼热线】✔
实景图
社区会所健身房售楼处电话☎:400-9659-259✔✔也已惊喜亮相,所见即所得,此外会所还配备有恒温泳池,不用出小区,在家门口就可以游泳健身;
华发·海上都荟售楼处电话☎:400-9659-259【售楼热线】✔
实景图

华发·海上都荟售楼处电话☎:400-9659-259【售楼热线】✔
实景图
不仅如此,社区内部还配置下沉式花园、悬浮客厅、咖啡书吧、儿童游乐室、生鲜超市等等,不出小区就能散步、会客、赏景、遛娃、购物!
华发·海上都荟售楼处电话☎:400-9659-259【售楼热线】✔
实景图
华发·海上都荟售楼处电话☎:400-9659-259【售楼热线】✔
实景图
除了一系列配套的实景呈现,项目在景观以及建筑营造上亦是不遗余力。景观园林上,项目邀请朗道国际景观设计倾力打造,众所周知的上海融创滨江壹号院、上海万科中兴路一号、上海万科翡翠滨江都是其代表作。
华发·海上都荟售楼处电话☎:400-9659-259【售楼热线】✔
项目效果图示意图,仅供参考非交付标准
项目社区打造“都市园林,无界生活”的概念,创造开放、生活活力的城市街角空间。同时内向造景,打造三大组团景观、各类活动休闲场地,可满足全年龄段生活空间需求。
华发·海上都荟售楼处电话☎:400-9659-259【售楼热线】✔
实景图
建筑设计上,具有现代设计风格的外立面,以浅色涂料及灰色涂料搭配为主,门头局部采用石材及铝板,色彩以暖白色与香槟色为基调,整体看上去端庄、高雅,质感十足。

华发·海上都荟售楼处电话☎:400-9659-259【售楼热线】✔
效果图
对于城市精英们而言,结束一整天的工作,步入高颜值、低密度的墅质社区之中,身心都能不由自主的休憩、放松下来。不仅产品优秀,华发物业的口碑已经在业主圈内颇受好评!保障业主们在后续居住中拥有更好的体验!
华发物业是全国最早一批通过ISO9001国际质量管理体系认证的国家一级资质物业管理企业,目前在管项目200余个,面积超4000万平米,荣膺“2021中国物业服务百强企业TOP21”。
华发·海上都荟售楼处电话☎:400-9659-259【售楼热线】✔✔✔营销中心热☎400-9659-259售楼处地址☎400-9659-259
声明:本文由入驻焦点开放平台的作者撰写,除焦点官方账号外,观点仅代表作者本人,不代表焦点立场。
