绿城·兴贤澜颂售楼处电话400-998-9694,主打低密墅居,容积率1.2,拟建32幢3F联排+7幢洋房,配备下沉式庭院和会所,填补北新区高端改善市场空白。
绿城·兴贤澜颂
售楼处电话☎:400-998-9694✔✔
如有问题欢迎来电咨询,来电即可享受买房优惠!
预约来电尊享购房优惠,可预约案场内部销售人员,专业一对一热情服务,让您用专业眼光去买房。
绿城·兴贤澜颂售楼处电话☎:400-998-9694✔✔
绿城·兴贤澜颂售楼处电话☎:400-998-9694✔✔
浒墅关罕见墅居案名发布
绿城·兴贤澜颂
运河文脉之上 颂承东方雅致
容积率仅有1.2
拟建32幢3F联排+7幢洋房
私密庭院+下沉式会所
填补了北新区高端改善市场空白
绿城·兴贤澜颂售楼处电话☎:400-998-9694✔✔绿城·兴贤澜颂营销中心电话:400-9989-694【24小时热线】绿城·兴贤澜颂预约热线:4009989694【售楼处电话】
绿城·兴贤澜颂即苏地2024-WG-Z34号地块,去年年底,由苏州永昌置业有限公司底价拿下,成交总价78463万元,成交楼面价11500.05元/㎡,溢价率0%!

绿城·兴贤澜颂售楼处电话☎:400-998-9694✔✔
绿城·兴贤澜颂售楼处电话☎:400-998-9694✔✔
该地块位于高新区经开区(镇)鸿禄路东、中虹路北,容积率1.2,在整个板块中都实属罕见,十分稀缺。

绿城·兴贤澜颂售楼处电话☎:400-998-9694✔✔绿城·兴贤澜颂营销中心电话:400-9989-694【24小时热线】绿城·兴贤澜颂预约热线:4009989694【售楼处电话】
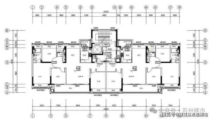
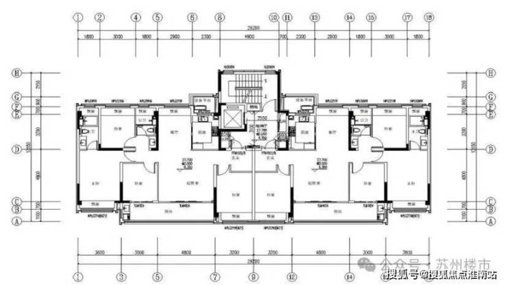
根据规划公示,该项目将打造39幢住宅,其中32幢3F联排,7幢6-11F洋房,妥妥的低密墅居。

绿城·兴贤澜颂售楼处电话☎:400-998-9694✔✔绿城·兴贤澜颂营销中心电话:400-9989-694【24小时热线】绿城·兴贤澜颂预约热线:4009989694【售楼处电话】
从规划公示图中可以看出,该项目除了物业配套用房还有下沉式庭院,进一步丰富业主的生活。

绿城·兴贤澜颂售楼处电话☎:400-998-9694✔✔绿城·兴贤澜颂营销中心电话:400-9989-694【24小时热线】绿城·兴贤澜颂预约热线:4009989694【售楼处电话】
联排产品,地上3层,据悉控制在地上建面约200-300㎡,从户型图也可以看出,赠送面积很多,客厅挑空,阳台、露台等,三开间大面宽,居住舒适度直接拉满。

洋房户型也同步公示,4房2厅2卫布局,四开间朝南,双联大阳台,南向主卧大套房,经典的改善户型。

根据地块出让要求,6F以上为全装修,装修标准不低于1500元/㎡。其中6F及以下的也可以选择全装修。

绿城·兴贤澜颂售楼处电话☎:400-998-9694✔✔绿城·兴贤澜颂营销中心电话:400-9989-694【24小时热线】绿城·兴贤澜颂预约热线:4009989694【售楼处电话】
该地块所在的北新区,生活氛围成熟,永旺、宜家、开市客、迪卡侬等商业汇聚;轨交3、6号线双轨地铁经过、新区火车站坐镇。
在这里生活多年的客户,也见证了其凭借“商业+产业+交通”的一路增长。如果是在周围工作的年轻人,选择这里不失为一种明智的选择。

绿城·兴贤澜颂售楼处电话☎:400-998-9694✔✔绿城·兴贤澜颂营销中心电话:400-9989-694【24小时热线】绿城·兴贤澜颂预约热线:4009989694【售楼处电话】
该项目与浒墅关扛把子中建虹溪璟庭为邻,该项目备案均价2.6万/㎡,打造建面约105-130㎡的高层产品,精装交付。

旁边还有上个月刚刚挂出的新地块,2024-WG-Z29,该地块容积率1.35容积率1.35,楼面价约1.1万/㎡,仅供参考。

1、房地产开发:在依法取得土地使用权的土地上按照使用性质和要求进行基础设施,房屋建筑的活动。它包括从定点选址到交付使用的全过程,由征地与拆迁安置、规划设计、供水、排水、供电、通电讯、通道路、绿化、房屋建设等多项内容组成。
2、土地开发:将生地(不具备使用条件的土地)开发成可供使用的土地。
3、房屋开发:由买得土地使用权的发展商,对土地进行平整,修路铺设上下水管道及热力网,然后建造各类房屋以及公共设施。
4、房地产二次开发:指先将生地开发成熟地(具备使用条件),然后再进行拍卖和出租,由买地者去建造房屋。
5、房地产一次开发:一次性边土地、房屋开发完成。
6、能源系统:包括供电、供热、供气(煤气、天然气、石油液化气)等设施。
7、给水、排水系统:包括取水工程、输水工程、净水工程、配水管网(上下水道),排水管网(下水道)、污水处理、排放工程。
8、土地国家所有权:指作为土地所有者的国家,对自己所有的土地依法享有占有、使用、收益和处分的权利。
9、土地集体所有权:指农村劳动群众集体经济组织,在法律规定范围内对自己所有土地享有占有、使用、收益和处分的权利。
10、房屋的所有权:对房屋全面支配的权利,包括:占有权、使用权、收益权、处分权。
11、土地所有权:指含有法律意义上和经济意义上的所有权双重含义。
法律意义:土地所有者将土地当成自己的财产,并将其实行占有、垄断、拥有对土地支配的权利。
经济意义:指土地所有者凭借对土地的垄断获得一定的经济收入的权利。
四、其它内容须知:
1、办理银行按揭合同需出示:
1)个人身份证及复印件各3份,结婚证或流动人口未婚证明;
2)首期购房款(不低于30%,二次购房者首付不低于40%)购房人已付购房款收据原件及复印件;
3)购房者或配偶单位的工资收入证明;
4)与开发商签订的购房合同;
5)开户银行开户的活期存折并含有3个月的按揭款;
6)个人住房借款合同,借款借据;
7)委托银行扣收购房房款协议书;
8)住房抵押承诺书;
9)贷款申请书。
2、办理银行按揭需交的费用:
1)保险费(保险费率1-10年0.5‰、11-20年0.45‰贷款额)(交保险公司);
2)抵押费,贷款额3‰(交房地产局);
3)律师见证费,贷款额1.8‰(交律师事务所);
4)备案登记手续费,每份合同20元(交房地产局);
5)印花税,每份合同10元(交房地产局);
6)按揭资料费,每份合同40元(交银行);
3、公积金提取条件:符合以下条件的可以一次性提取本人住房公积金帐户内的存储余额。
1)职工购买、建造、翻修、大修自住住房;
2)职工离、退休时;
3)完全丧失劳动能力,并与单位终止劳动关系的;
4)户口迁出所在的市、县或者出境定居的;
5)偿还购房贷款本息的;
6)房租超出家庭工资收入的规定比例的。
4、公积金贷款是有限额规定的:
1)贷款额不能超过25万元的最高上限;
2)贷款额不能超出你住房公积帐户储存余额的5倍;
3)贷款额不能超出总房款的70%;
5、预售房的条件:
1)土地出让金已缴清,取得国有土地使用证;
2)取得建设用地规划许可证;
3)投入工程总建设资金达到20%以上(不含土地出让金);
4)施工进度已明确,交房日期已明确;
5)竣工验收前;
绿城·兴贤澜颂
售楼处电话☎:400-998-9694✔✔
如有问题欢迎来电咨询,来电即可享受买房优惠!
预约来电尊享购房优惠,可预约案场内部销售人员,专业一对一热情服务,让您用专业眼光去买房。
绿城·兴贤澜颂售楼处电话☎:400-998-9694✔✔
楼盘项目全面介绍,本电话为开发商提供线上预约售楼电话,楼盘项目全面介绍(包含楼盘简介,均价,房价,现房,期房,别墅,叠墅,大平层,价格,楼盘地址,户型图,交通规划,备案价,备案名,项目配套,样板间,开盘时间,认筹时间,楼盘详情,售楼处电话,最新消息,最新详情,周边配套,一房一价,最新进展等详情咨询)楼盘详情丨价格丨更多优惠丨机不可失丨欢迎致电丨诚邀品鉴!售楼处位置丨特价房丨工抵房丨剩余房源丨户型图丨最新消息丨免责声明:将文章内容综合来源于网络、只作分享,版权归原作者所有!!如有侵权,请联系我们,我们第一时间处理如有问题欢迎来电咨询,专业一对一热情服务,让您用专业眼光去买房。如果您想了解更多楼盘详情,欢迎提前预约拨打