(同济蟠龙里售楼处)首页网站丨2025【同济蟠龙里】欢迎您/同济蟠龙里售楼处电话/地址/备案价/同济蟠龙里楼盘详情

淮南楼市观察 2025-09-16 14:44:31
用手机看
扫描到手机,新闻随时看

扫一扫,用手机看文章
更加方便分享给朋友

青浦同济蟠龙里售楼处线上预约看房热线电话:400-891-9910(24小时热线)同济蟠龙里售楼处提供预约看房服务,主打高端三房四房户型,均价约6.5万/㎡,周边配套完善,24小时热线400-891-9910。

同济蟠龙里售楼处电话:400-891-9910✔✔✔

青浦同济蟠龙里售楼处线上预约看房热线电话:400-891-9910(24小时热线)

上海青浦同济蟠龙里售楼处电话☎:400-891-9910【开发商售楼处预约看房热线】

看房请提前致电预约,可享受内部渠道优惠!联系销售人员获取最新一房一价表,售楼处最新优惠底价!开发商销售人员将详细介绍每个户型的独特设计和优势,带您参观样板间,感受精装修的品质和温馨氛围。您还可以了解周边配套设施,包括高端购物中心、优质学校和便捷交通网络,让您的居住体验更加完美。

双轨交+超百万方高端商业

1站直达虹桥天地

品质红盘「蟠龙里」

100-145㎡三房四房

均价约6.5万/㎡ 入驻虹桥C位

火热在售中

同济蟠龙里售楼处电话:400-891-9910✔✔✔

同济蟠龙里售楼处电话:400-891-9910✔✔✔

青浦同济蟠龙里售楼处线上预约看房热线电话:400-891-9910(24小时热线)

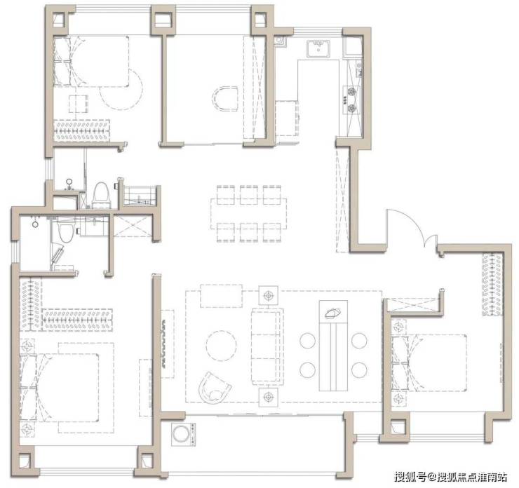
建面约100㎡3房2厅2卫户型图

同济蟠龙里售楼处电话:400-891-9910✔✔✔

青浦同济蟠龙里售楼处线上预约看房热线电话:400-891-9910(24小时热线)

非常标准的飞机户型,室内无过道,几乎没有空间浪费。同济蟠龙里售楼处电话:400-891-9910✔✔✔

同时,全卧室带飘窗,客厅+次卧带宽面阳台,在加上南北通透的设计,这个户型的采光、视野以及通风都非常出众。

细节方面,入户玄关+主卧套房+客卫干湿分离,这个户型几乎做到了一个好户型应该有的所有。

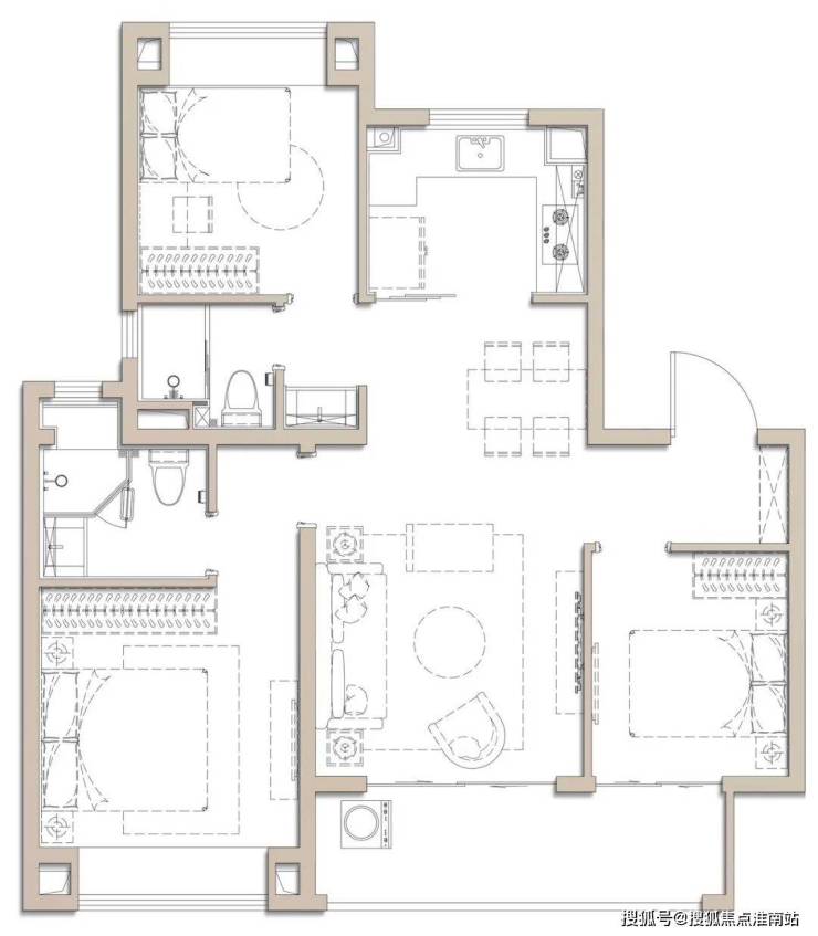
建面约145㎡4房2厅2卫户型图同济蟠龙里售楼处电话:400-891-9910✔✔✔

同济蟠龙里售楼处电话:400-891-9910✔✔✔

青浦同济蟠龙里售楼处线上预约看房热线电话:400-891-9910(24小时热线)

大横厅的设计,让这个户型拥有堪比别墅的南向采光面,这个尺度感以及采光通透度非常出众。

同时,横厅也可以当做一个灵动空间,不管是作为孩子的游玩天地、父母的瑜伽空间还是健身区域,都是很好的选择。这个灵动空间让这个户型承载了更多的生活想象。同济蟠龙里售楼处电话:400-891-9910✔✔✔

最后,项目是精装交付,交付标准颇高:日立的中央空调+地暖,德普莱太的新风系统,并且是包含了热交换和PM2.5过滤功能的高端系列。同济蟠龙里售楼处电话:400-891-9910✔✔✔

卫生间方面:摩恩的马桶、单柄冷热水龙头、台下盆、手持花洒;科勒的玻璃淋浴房。

厨房方面:科勒的单斗不锈钢水槽、抽拉式龙头;方太的双头燃气灶、平板顶排式吸油烟机、洗碗机。

当然,不仅仅是大品牌,在细节上同济蟠龙里更是匠心十足。例如:同济蟠龙里售楼处电话:400-891-9910✔✔✔

洗碗机是方太的高端型号,15套大容量可洗锅。

灶台下方,铺设了全覆盖的台面撑板,可大大降低高强度使用后台面开裂的可能性。

客厅预留电动窗帘插座,方便业主后期加装等。

精装标准如下:

最新效果图如下:

(过程稿仅供参考,以开发商正式公示为准)

同济蟠龙里售楼处电话:400-891-9910✔✔✔

青浦同济蟠龙里售楼处线上预约看房热线电话:400-891-9910(24小时热线)

同济蟠龙里售楼处电话:400-891-9910✔✔✔

青浦同济蟠龙里售楼处线上预约看房热线电话:400-891-9910(24小时热线)

同济蟠龙里的社区有三大亮点:

第一,项目为综合体住宅。

项目北侧为文体和商业用地,总用地面积超过1万㎡。

规划功能业态要求基本配置为:

同济蟠龙里售楼处电话:400-891-9910✔✔✔

青浦同济蟠龙里售楼处线上预约看房热线电话:400-891-9910(24小时热线)

18-03地块:室内社区多功能运动中心,体育场地设施不少于8项,如乒乓球室、多功能馆(篮球、排球、羽毛球综合)、多功能房、器械健身房等。同济蟠龙里售楼处电话:400-891-9910✔✔✔

18-04地块:智慧菜市场。同时除菜场部分积极引入社区便民商业,统一营运。

同济蟠龙里售楼处电话:400-891-9910✔✔✔

青浦同济蟠龙里售楼处线上预约看房热线电话:400-891-9910(24小时热线)

第二,项目的容积率仅有2、由4幢14-16F小高层住宅围合而成。

整个虹桥,如今轨交旁的住宅,容积率起码约2.5,在加上一些18层以上的楼栋,整个社区的人均绿化率、私密性以及安全是无法保障的。同济蟠龙里售楼处电话:400-891-9910✔✔✔

而同济蟠龙里不仅社区容积率更低、并且均是小高层住宅,这个社区天赋带来的居住舒适度与其他新房,会有非常明显的差距。同济蟠龙里售楼处电话:400-891-9910✔✔✔

同济蟠龙里售楼处电话:400-891-9910✔✔✔青浦同济蟠龙里售楼处线上预约看房热线电话:400-891-9910(

同济蟠龙里售楼处电话:400-891-9910✔✔✔

青浦同济蟠龙里售楼处线上预约看房热线电话:400-891-9910(24小时热线)

更重要的是,开发商并没有浪费这一天赋,在这个社区内打造了包括:极具仪式感的归家入口、六大景观特色、架空层等。青浦同济蟠龙里售楼处线上预约看房热线电话:400-891-9910(24小时热线)

让业主拥有更加出众的人均绿化率、景观视野、仪式感。同济蟠龙里售楼处电话:400-891-9910✔✔✔

同济蟠龙里售楼处电话:400-891-9910✔✔✔

青浦同济蟠龙里售楼处线上预约看房热线电话:400-891-9910(24小时热线)

第三,低能耗住宅:

同济蟠龙里售楼处电话:400-891-9910✔✔✔

青浦同济蟠龙里售楼处线上预约看房热线电话:400-891-9910(24小时热线)

项目拥有24小时新风系统、所有外窗均采用三玻两腔节能窗,具备更佳的保温隔热效果,降低50%建筑能耗。

同济蟠龙里售楼处电话:400-891-9910✔✔✔

青浦同济蟠龙里售楼处线上预约看房热线电话:400-891-9910(24小时热线)

就在项目南侧,总部经济已蔚然成势。瑞安、虹桥豪盛广场、BU资本、中建、美的、安踏、中核建股份公司总部等名企总部商办项目一路连缀,体量、能级媲美徐汇滨江、北外滩。同济蟠龙里售楼处电话:400-891-9910✔✔✔

这里聚集了大虹桥更高能级、更大体量的高端配套。虹桥主城区汇聚了约140万方文化商业综合体——首位SHOWAY,涵盖奥特莱斯、剧场群等业态;附近还有虹桥天地、龙湖天街等。同济蟠龙里售楼处电话:400-891-9910✔✔✔

同济蟠龙里售楼处电话:400-891-9910✔✔✔

青浦同济蟠龙里售楼处线上预约看房热线电话:400-891-9910(24小时热线)

还汇聚了同步纽约百老汇及伦敦西区的大虹桥百老汇、22万方兰韵文化中心、蟠龙天地等文化综合体,以及约60万方的生态绿地。青浦同济蟠龙里售楼处线上预约看房热线电话:400-891-9910(24小时热线)

并且,这些配套均已开工建设,像蟠龙天地以及兰韵文化中心等甚至已经建成,一个伟大的国际居住区已经跃然纸上。

同济蟠龙里售楼处电话:400-891-9910✔✔✔

青浦同济蟠龙里售楼处线上预约看房热线电话:400-891-9910(24小时热线)

这里拥有整个大虹桥宜居的生活环境!整个区域内拥有约23万方蟠龙公园、安踏体育主题公园(在建中)、蟠龙路站约11万方公共绿地(规划中)。同济蟠龙里售楼处电话:400-891-9910✔✔✔

尤其是蟠龙公园,还以科技为主题建造了儿童游乐场地,未来茶余饭后周边业主们也可带孩子来感受下多层次游乐体验!

同济蟠龙里售楼处电话:400-891-9910✔✔✔

青浦同济蟠龙里售楼处线上预约看房热线电话:400-891-9910(24小时热线)

目前,蟠龙里正在热销中,样板房全新升级开放!建面约100-145m23-4房,均价约6.5万/m2!首套首付约118万起,2/13(在建)/17号线三轨交交汇!

同济蟠龙里售楼处电话:400-891-9910✔✔✔

青浦同济蟠龙里售楼处线上预约看房热线电话:400-891-9910(24小时热线)

上海青浦同济蟠龙里售楼处电话☎:400-891-9910【开发商售楼处预约看房热线】

看房请提前致电预约,可享受内部渠道优惠!联系销售人员获取最新一房一价表,售楼处最新优惠底价!开发商销售人员将详细介绍每个户型的独特设计和优势,带您参观样板间,感受精装修的品质和温馨氛围。您还可以了解周边配套设施,包括高端购物中心、优质学校和便捷交通网络,让您的居住体验更加完美。

上海2025年8月最新限购政策汇总

外环外购房不限套数:对符合本市住房购买条件的居民家庭(包括本市户籍居民家庭、在本市连续缴纳社会保险或个人所得税满1年及以上的非本市户籍居民家庭),在外环外购买住房(含新建商品住房和二手住房)不限套数

单身人士购房政策调整:成年单身人士(含沪籍和非沪籍)按照居民家庭标准执行限购政策。具体为:沪籍居民家庭/单身人士:外环外不限购,外环内限购2套;

非沪籍居民家庭/单身人士:社保/个税满1年可在外环外不限购;满3年可在外环内限购1套

崇明区:根据上海8月26日最新楼市政策,在崇明区购房参考外环外购房政策。只需在购房网签合同前1个月满足连续15个月累计12个月的上海的社会保险或者个人所得税即可购买崇明区住房,无需单独在崇明缴纳社保或者个税或者在崇明工作。

上海2025年8月最新购房商贷/公积金贷款政策

注意:根据最新政策,上海购房商业房贷利率不再区分首套住房和二套住房。

现阶段上海商贷利率执行情况如下:

首套:3.5%-45BP=3.05%

二套(主城):3.5%-5BP=3.45%

二套(临港、嘉定、青浦、松江、奉贤、宝山、金山):3.5%-25BP=3.25%

公积金贷款政策:

贷款额度提升:购买二星级及以上绿色建筑住房的,公积金最高贷款额度上浮15%

首套:160万元→184万元(多子女家庭可叠加至216万元)

二套:130万元→149.5万元

提取支付首付:支持提取本人及配偶公积金支付新建预售商品住房首付款

“又提又贷”:提取公积金支付首付不影响贷款额度计算

温馨提示tips:

二手房贷款“三价就低”

自2021年8月6日起,上海二手房房贷再出新规,执行“三价就低”:购房者申请贷款时,将从买卖合同价、交易中心核验价、银行评估价中,选择最低的一项,作为贷款申请房价标准。

声明:本文由入驻焦点开放平台的作者撰写,除焦点官方账号外,观点仅代表作者本人,不代表焦点立场。