大华公园柏翠(营销中心)首页网站-大华公园柏翠销售中心(售楼处)-大华公园柏翠欢迎您-电话地址-价格-户型-小区环境-楼盘详情-交房时间-翠售楼处电话
扫描到手机,新闻随时看
扫一扫,用手机看文章
更加方便分享给朋友
大华公园柏翠售楼处电话:400-891-9910✔✔✔(已认证)
宝山大华公园柏翠售楼处线上预约看房热线电话:400-891-9910(24小时热线)
上海宝山大华公园柏翠售楼处电话☎:400-891-9910【开发商售楼处预约看房热线】
看房请提前致电预约,可享受内部渠道优惠!联系销售人员获取最新一房一价表,售楼处最新优惠底价!开发商销售人员将详细介绍每个户型的独特设计和优势,带您参观样板间,感受精装修的品质和温馨氛围。您还可以了解周边配套设施,包括高端购物中心、优质学校和便捷交通网络,让您的居住体验更加完美。
收官房源开盘热卖中!
建面约101-124-142m²3-4房
过会均价65327元/m²,总价650万起
124㎡户型已售罄,仅少量101、142户型在售
清盘在即,错过不再有!大华公园柏翠售楼处电话:400-891-9910✔✔✔(已认证)
Part01
静安400米、大宁下一站
南北高架旁距离中心城区最近的新房!
大华公园柏翠售楼处电话:400-891-9910✔✔✔(已认证)
关于大华公园柏翠的地段,有几大关键词:
第一,南北高架+中环,大华公园柏翠串联起了上海更昂贵的置业地。
大华公园柏翠距离北中环直线约3km,通过南北高架几乎可以实现无缝衔接。
而如今整条北中环线上的房价相当昂贵,整体均价都在约11万+。但这些置业地距离大华公园柏翠不过是一脚油门的事情。大华公园柏翠售楼处电话:400-891-9910✔✔✔(已认证)
这是大华公园柏翠性价比和潜力的体现,也是未来业主出行的保障。
第二,静安400米,与大宁新房房价相差一半有余。大华公园柏翠售楼处电话:400-891-9910✔✔✔(已认证)
大华公园柏翠距离静安区只有约400米左右的直线距离,是整个宝山距离中心城区最近的新房。
同时,项目距离大宁的市北高新园区直线仅约2.5km。大华公园柏翠售楼处电话:400-891-9910✔✔✔(已认证)
一方面,这是地段价值的体现,尤其是在康宁路-万荣路、南北高架、1号线等三条超级大动脉的加持下。
大宁的配套、产业几乎与大华公园柏翠共享。大华公园柏翠售楼处电话:400-891-9910✔✔✔(已认证)
另外一方面,在大宁在前不久出让的土地,其可售楼板价约8.6万/㎡,网上猜测这块宅地未来售价的声音很多,例如12万、14万甚至是16万。大华公园柏翠售楼处电话:400-891-9910✔✔✔(已认证)
但不管卖多少钱,这个大宁新房都比大华公园柏翠的价格高出一倍有余。
这意味着什么?大华公园柏翠售楼处电话:400-891-9910✔✔✔(已认证)
首先,上海新房的定价确实与所在区域有很大的关系,举个例子:大华公园柏翠售楼处电话:400-891-9910✔✔✔(已认证)
大华公园柏翠与大宁之间的关系,与宝山新江湾城与杨浦新江湾之间的关系很相似。
不同区,但几乎享受相同的配套、交通以及产业利好。大华公园柏翠售楼处电话:400-891-9910✔✔✔(已认证)
在新房定价时,宝山新房均价约7万/㎡、杨浦新江湾约10万+/㎡,这无可厚非。
但一旦步入二手,这两者之间的房价差距迅速拉近,因为在配套、交通、产业相近的情况下,产品力才是决定一切的根本。大华公园柏翠售楼处电话:400-891-9910✔✔✔(已认证)
大华公园柏翠售楼处电话:400-891-9910✔✔✔(已认证)
而大华公园柏翠的产品力,有着不输任何对手的底气!一旦步入二手,这就是整个北中环的王者,拥有极强的未来潜力。
第三,四大顶级规划围绕下的“北中环真核心”,无限潜力。大华公园柏翠售楼处电话:400-891-9910✔✔✔(已认证)
除了出众的地段、配套、价格优势外,大华公园柏翠享受的利好和潜力,同样惊人。
一方面,大宁市北高新园区就在项目南侧,咫尺的距离。大华公园柏翠售楼处电话:400-891-9910✔✔✔(已认证)
这座园区对于北中环的意义,与张江对于浦东的意义是相同的,代表着更高阶、更高能级的产业规模和能级。
更重要的是,市北高新园区的重点项目正在不断加码!大华公园柏翠售楼处电话:400-891-9910✔✔✔(已认证)
在上海建设“科创中心”的大目标下,上海市大数据中心已带头落址市北高新。这里将会是上海数据资源最丰富、数据类企业最集中、数据应用场景最广泛的区域。大华公园柏翠售楼处电话:400-891-9910✔✔✔(已认证)
大宁北部的投资强度和经济密度都会进一步加强。大华公园柏翠售楼处电话:400-891-9910✔✔✔(已认证)
另外一方面,宝山其实从去年南北转型开始,就展现出了完全不同以往的发展势头来。
大华公园柏翠以西的南大智慧城、以东的吴淞创新城,在规划中都是科创产业的主阵地建设的两大核心承载区,建设速度肉眼可见。大华公园柏翠售楼处电话:400-891-9910✔✔✔(已认证)
同时,今年宝山公示了《吴淞江-蕰藻浜沿线地区专项规划》大华公园柏翠售楼处电话:400-891-9910✔✔✔(已认证)
就在大华公园柏翠北侧,将规划整体打造一条蓝绿交织、清新明亮、连湖串链、通江达海和水韵特色鲜明、创新功能集聚、滨水活力彰显的上海大都市江南水廊发展带,体现中华风范、江南风光、创新风尚。
大华公园柏翠售楼处电话:400-891-9910✔✔✔(已认证)
以大华公园柏翠为核心,周边聚集了宝山最重要的科创产业、资源能级。
同时,项目又是整个北中环距离静安、大宁,以及上海主动脉南北高架更近的项目。
大华公园柏翠售楼处电话:400-891-9910✔✔✔(已认证)
可以预想到,未来以项目为中心,周边未来聚集的高薪产业、高知人口以及城市菁英不计其数。
而大华公园柏翠遥遥领先的产品力,未来将吸引这些改善置业客户的不断追逐,直至将其顶上北境之王的价格和地位。
这样的潜力和未来预期,是其他单核发展的板块所无法比拟的。大华公园柏翠售楼处电话:400-891-9910✔✔✔(已认证)
Part02
约80米门头、星级酒店大堂
内外双公园,比肩千万级豪宅的公区
大华公园柏翠售楼处电话:400-891-9910✔✔✔(已认证)
大华公园柏翠西侧是60多万方的规划绿地,接近1.5个长风公园大小。
而项目是一个容积率约2.2的全17F以下低密小高层社区。大华公园柏翠售楼处电话:400-891-9910✔✔✔(已认证)
在叠加项目距离静安直线约400米的地段,这几乎就是一个位于城市中央、生长在森林里的低密大居。
同时,大华公园城市一二三期均已交付入住,整个大社区的居住环境、氛围已经非常浓郁。大华公园柏翠这个王冠之上的作品一旦交付,即刻就能享受生活。大华公园柏翠售楼处电话:400-891-9910✔✔✔(已认证)
项目在归家动线上特别打造了“三进式”归家礼序,并且每一层归家礼序的打造,都是按照千万级豪宅才有的规格。
一进:宽约80米、高约6米的气派大门。大华公园柏翠售楼处电话:400-891-9910✔✔✔(已认证)
并且在选材上选用来自吴哥窟的进口石材,尽显静谧奢华的气质。
主入口利用108片伯爵灰大理石打造12座景墙单元,辅以香槟色不锈钢修饰。
整体迎宾空间耗材约1800片大理石,这样的大门规格、石材用料以及用心程度,无不体现出大华公园柏翠对标豪宅的决心。大华公园柏翠售楼处电话:400-891-9910✔✔✔(已认证)
社区实景图
二进:围合庭院。
大华公园柏翠售楼处电话:400-891-9910✔✔✔(已认证)
庭院由4处归家通道、8扇造型屏风和1座水景雕塑的一体化设计打造而成,由此开始拉开了低密森氧居住生活的大幕,这是市面上其他新房所没有的高规格。大华公园柏翠售楼处电话:400-891-9910✔✔✔(已认证)
用料上,庭院两侧设计师选用大理石与镂空铝板虚实结合,利用2层柏翠造型铝线条错拼而成,更显精致;
这样的设计和用料,在600万级的新房市场中,简直是降维打击。大华公园柏翠售楼处电话:400-891-9910✔✔✔(已认证)
社区实景图
三进:宅门。
大华公园柏翠售楼处电话:400-891-9910✔✔✔(已认证)
归家大堂能给业主更尊贵归家体验的同时,也能作为柏翠业主专属的城市会客厅。
整座大堂外墙采用伯爵灰大理石满铺高墙,电动门镶嵌宝格绿奢石,实现无感通行;
大华公园柏翠售楼处电话:400-891-9910✔✔✔(已认证)
内墙材料选用来自保加利亚的维纳多石材,整块大理石圆弧拉槽,这是顶级豪宅才有的用料和细节。
大华公园柏翠售楼处电话:400-891-9910✔✔✔(已认证)
大堂接待台选用产自意大利山脉的宝格绿奢石一体打造而成。
大华公园柏翠售楼处电话:400-891-9910✔✔✔(已认证)
这些用料和最终呈现出来的浓郁海派氛围,是对大华集团实力和匠心最好的体现。
丰富的架空层空间,足不出楼就能享受生活。大华公园柏翠售楼处电话:400-891-9910✔✔✔(已认证)
社区内还在部分楼栋内设置了架空层泛会所空间,用于亲子陪伴或是朋友会面。
大华公园柏翠售楼处电话:400-891-9910✔✔✔(已认证)
对于有孩子的家长而言,足不出户就能让孩子有更安全、更具乐趣的成长空间,这是多少人的梦想。
社区还拥有极高的审美和艺术表达能力。大华公园柏翠售楼处电话:400-891-9910✔✔✔(已认证)
对于很多新房而言,公区的用料可能就代表一切,因为这个只要“肯花钱”,很容易就能达成。
真正考验开发商能力和匠心的,是审美和艺术表达能力。大华公园柏翠售楼处电话:400-891-9910✔✔✔(已认证)
而大华公园柏翠在这一点上,值得全上海的豪宅学习和模仿。大华公园柏翠售楼处电话:400-891-9910✔✔✔(已认证)
首先,大华公园柏翠利用12级叠水、2座树池、9步水上汀步,运用六重造景的手法打造近500平的中央水景!
用一颗柏翠树型的构筑物形成独具艺术气质的“大树咖啡厅”,不仅拔高了社区的整体审美艺术和品味,也可供业主闲时聊天赏景、遛宠遛娃。大华公园柏翠售楼处电话:400-891-9910✔✔✔(已认证)
大华公园柏翠售楼处电话:400-891-9910✔✔✔(已认证)
并且将中心场地抬高1米,在水系池底通铺1300多片的PRADA绿石(仿石砖)、精选斜飘乌桕、造型紫薇等名贵树种...
不难看出,大华公园柏翠不仅卷用料,更在审美艺术、生活方式上接轨国际前沿,拔升了高端住宅的品味和调性,整体的公区用料更是媲美高端豪宅!大华公园柏翠售楼处电话:400-891-9910✔✔✔(已认证)
就比如前不久刚刚举办的大树生活节&光年社的社群启幕活动。大华公园柏翠售楼处电话:400-891-9910✔✔✔(已认证)
现场不仅有巨型圣诞树,大宁久光同款小食屋,还飘下了2024年上海的“第一场雪”。现场的圣诞氛围满满,人气火热。
大华公园柏翠售楼处电话:400-891-9910✔✔✔(已认证)
Part03
中环之上、大宁之上
上海距离静安更近的新房
大华公园柏翠售楼处电话:400-891-9910✔✔✔(已认证)
2024年静安的新房供应主要集中在西藏北路和江宁路板块,均价都是12万/㎡起步。大宁已经许久没有新房供应,但是中外环的静安府、仁恒静安世纪、融创静安映等挂牌价都来到11-13万/㎡。
为什么说「大华·公园柏翠」的地理位置绝佳?大华公园柏翠售楼处电话:400-891-9910✔✔✔(已认证)
在地段上,项目有三个标签:大华公园柏翠售楼处电话:400-891-9910✔✔✔(已认证)
项目距离静安直线约400米、地铁3站大宁核心区!
项目距离中环线约3km!大华公园柏翠售楼处电话:400-891-9910✔✔✔(已认证)
繁华配套!大华公园柏翠售楼处电话:400-891-9910✔✔✔(已认证)
我们来解析以上这三个标签。大华公园柏翠售楼处电话:400-891-9910✔✔✔(已认证)
第一,距离静安直线约400米、地铁3站大宁核心意味着什么?
一方面,这意味着距离静安、黄浦更近,直接影响上班通勤便捷性,即使你将来换工作,只要还占位外环内,不管单位在哪里,都能从容应对。大华公园柏翠售楼处电话:400-891-9910✔✔✔(已认证)
大华公园柏翠售楼处电话:400-891-9910✔✔✔(已认证)
要知道,如今置业肉眼可见的边缘化,主力供应已到外环外5-10公里,如今却还能碰到大华公园柏翠,甚是难得。
尤其对于工作在大宁的小伙伴来说,1号线3站就是上海马戏城,大宁核心区。
大华公园柏翠售楼处电话:400-891-9910✔✔✔(已认证)
地理位置决定了享受到的资源浓度,大宁的繁华咫尺可得。
目前的大宁已是大家公认的北上海新的商业、产业中心。大华公园柏翠售楼处电话:400-891-9910✔✔✔(已认证)
约56万平大宁音乐广场、约25万平大宁国际商业广场、约30万平大宁久光百货,静安大融城等商场一路连缀。
大华公园柏翠售楼处电话:400-891-9910✔✔✔(已认证)
这个出行便捷度,在同能级的板块中,几乎是属于一梯队。
另外一方面,这意味着大华公园柏翠有出众的未来前景。
举个例子:整个浦东外环外,唐镇无疑是王者级的。约10万+的二手房房价、约7万+的新房价格,板块价值可见一斑。
而造成这种原因也很简单:唐镇距离张江仅3站。大华公园柏翠售楼处电话:400-891-9910✔✔✔(已认证)
于是,唐镇就成为了张江精英们外溢的首站。而围绕着这些精英,唐镇落地了大量高能级的教育、商业、生态等资源。
这样的良性循环,让这个板块的价值水涨船高,甚至突破环线价格限制。大华公园柏翠售楼处电话:400-891-9910✔✔✔(已认证)
大华公园柏翠售楼处电话:400-891-9910✔✔✔(已认证)
同样道理,大华公园柏翠距离静安直线约400米、1号线3站即大宁核心商圈,是整个上海距离静安最近的新房。
对于工作在大宁、苏河湾、静安寺、南京西路、人民广场、虹口等区域的购房者来说,大华公园柏翠就是地段更好的新房。大华公园柏翠售楼处电话:400-891-9910✔✔✔(已认证)
并且相比静安、大宁的约1500万级置业门槛,大华公园柏翠的价格几乎是差了一半多,这样的性价比谁能抵挡?
未来当大水漫灌下,大华公园柏翠的项目价值、配套能级、居住氛围和圈层,都会有大提升。
第二,项目距离中环线约3km!大华公园柏翠售楼处电话:400-891-9910✔✔✔(已认证)
与大华公园柏翠同纬度的板块,新房均价起码约8.58万/㎡起,单价约10万+的区域比比皆是。
大华公园柏翠售楼处电话:400-891-9910✔✔✔(已认证)
第三,已经成熟的繁华配套!大华公园柏翠售楼处电话:400-891-9910✔✔✔(已认证)
商业配套方面,项目周边从生活配套到高端商场到大型商超,应有尽有。
· 地铁3站直达:大宁久光中心、大宁音乐广场、大宁国际商业广场等
· 周边约900M范围:共康商圈、社区邻里中心商业广场、场北集贸市场、北斗星广场
· 直线距离约1.5KM范围内:宝山万达广场、宝山购物中心等大华公园柏翠售楼处电话:400-891-9910✔✔✔(已认证)
· 直线距离约2.7KM:宝山日月光,多类型商业形态荟萃大华公园柏翠售楼处电话:400-891-9910✔✔✔(已认证)
大华公园柏翠售楼处电话:400-891-9910✔✔✔(已认证)
教育方面,项目周边教育资源丰富,包括陈伯吹实验幼儿园(上海市示范幼儿园)、陈伯吹实验小学,华师大宝山实验学校等学校。大华公园柏翠售楼处电话:400-891-9910✔✔✔(已认证)
项目正南侧一墙之隔,还有九年一贯制公办学校在建设中。免责声明:以上教育资源整理仅代表楼盘与学校的距离,该房屋所在项目暂未划分学区,开发商不对项目交房后所属学区、学校做任何承诺。教育资源分配或学校/学区划分以及学校的具体招生规则等请以政府相关主管部门、教育机构公开的最新信息为准。
生态方面,项目坐拥五大公园:大华公园柏翠售楼处电话:400-891-9910✔✔✔(已认证)
约80万方伟岸绿境环抱,包括千亩绿境(约60万方绿化在侧),约3万方庙行公园、约4.2万方共和公园,约2.7万方三泉公园、约9.3万方彭浦四季公园等。大华公园柏翠售楼处电话:400-891-9910✔✔✔(已认证)
这样的生态能级,媲美“新江湾湿地公园、世纪公园、长风公园”等,拥享“自然生态+稀臻难寻”双重价值属性。
大华公园柏翠售楼处电话:400-891-9910✔✔✔(已认证)
不管是从出行便捷度、未来潜力、现有配套还是同纬度的对比中,大华公园柏翠的地段都是更具竞争力的。光凭这一点,这个项目就已经足够有吸引力了。大华公园柏翠售楼处电话:400-891-9910✔✔✔(已认证)
但在产品力上,大华依旧给了我们足够的诚意和惊喜。大华公园柏翠售楼处电话:400-891-9910✔✔✔(已认证)
Part04
建面约101-142㎡神户型
一梯两户的无连廊飞机户型
大华公园柏翠售楼处电话:400-891-9910✔✔✔(已认证)
项目整个社区由4栋16层、10栋17层小高层组成,是纯粹的低密小高层住宅。
一方面, 小高层在近期的上海市场中非常稀缺,尤其是在中环线上的位置上,小高层住宅凤毛麟角。
但另外一方面,小高层天然的高得房率、私密性和居住舒适度也保证了这个产品的受欢迎程度。
换句话说,大华公园柏翠的产品力,从天赋上就已经与其他项目拉开了差距。
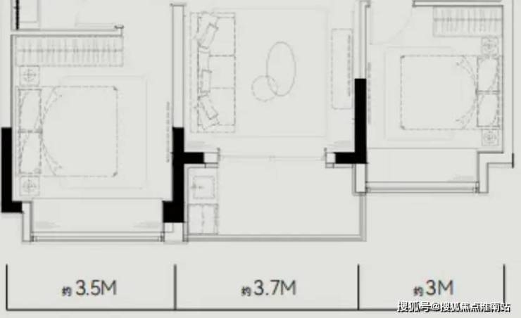
其次,产品上:项目建面约101-124㎡房源一梯两户、建面约142㎡两梯两户。
而这意味着,大部分的房源均是无连廊的设计,将带来更高的采光通透度、更好的通风以及更高的得房率。
再加上项目飞机户型的设计,室内几乎0空间浪费,即使是小户型也有超高的尺度感。
具体来看下:大华公园柏翠售楼处电话:400-891-9910✔✔✔(已认证)
建面约101㎡的三房两厅两卫
大华公园柏翠售楼处电话:400-891-9910✔✔✔(已认证)
建面约101㎡3房2卫户型,非常标准的飞机户型。大华公园柏翠售楼处电话:400-891-9910✔✔✔(已认证)
三开间朝南整体约11.5米的面宽。什么概念呢?大华公园柏翠售楼处电话:400-891-9910✔✔✔(已认证)
上海这些年其实也有不少三开间朝南的飞机户型,但都不如了大华公园柏翠。
例如以下这个:总价约千万左右,建面约104㎡的房源。大华公园柏翠售楼处电话:400-891-9910✔✔✔(已认证)
这个项目凭借着出色的户型,获得了不少高净值人群的青睐,但他约104㎡的户型南向面宽只有10.2米,比大华公园柏翠约101㎡的户型还小了约1.3米。大华公园柏翠售楼处电话:400-891-9910✔✔✔(已认证)
别小看这约1.3米,整体的尺度感完全不同。大华公园柏翠售楼处电话:400-891-9910✔✔✔(已认证)
大华公园柏翠售楼处电话:400-891-9910✔✔✔(已认证)
更重要的是,项目是大横厅+超大阳台的设计。撑起气场的同时,也能为家庭带来更多的生活想象。
另外,南北通透+3房5飘窗的设计,保证了户型的通风以及视野。
超大的U型厨房十分宽绰,让切配煮更加合理从容。大华公园柏翠售楼处电话:400-891-9910✔✔✔(已认证)
细节方面,次卫的干湿分离也能保证室内的干燥,入户的玄关、主卧的套房,保证了主人的私密空间。
这个户型拥有一个“好户型”的所有特质,上车必看的首选户型!
建面约142㎡的四房两厅两卫 大华公园柏翠售楼处电话:400-891-9910✔✔✔(已认证)
大华公园柏翠售楼处电话:400-891-9910✔✔✔(已认证)
真正一步到位的改善型4房产品,大横厅的设计,
四开间朝南+大横厅,约15.4米的南向面宽堪比别墅。
大横厅也可以灵活运用在各种生活场景,例如作为妈妈的瑜伽室、孩子的游乐天地等,都是很好的选择。
这样的户型,能满足各个家庭成员的需求!
最后,还有一点:项目将标配国际家装大牌、臻选精奢材质、把关精细施工,悉心规划4大定制系统、100+精工细节,精琢非凡空间。大华公园柏翠售楼处电话:400-891-9910✔✔✔(已认证)
大华公园柏翠售楼处电话:400-891-9910✔✔✔(已认证)
注:以下为项目概念展示间实景图,非交付标准
大华公园柏翠售楼处电话:400-891-9910✔✔✔(已认证)
大华公园柏翠售楼处电话:400-891-9910✔✔✔(已认证)
大宁之上 双轨交1/18号线
『大华·公园柏翠』
低密小高层+超大面宽“神”户型
四期建面约101㎡精装3房在售中
均价62480元/㎡
价格比前三期更低,性价比更高!
大华公园柏翠售楼处电话:400-891-9910✔✔✔(已认证)
宝山大华公园柏翠售楼处线上预约看房热线电话:400-891-9910(24小时热线)
上海宝山大华公园柏翠售楼处电话☎:400-891-9910【开发商售楼处预约看房热线】
看房请提前致电预约,可享受内部渠道优惠!联系销售人员获取最新一房一价表,售楼处最新优惠底价!开发商销售人员将详细介绍每个户型的独特设计和优势,带您参观样板间,感受精装修的品质和温馨氛围。您还可以了解周边配套设施,包括高端购物中心、优质学校和便捷交通网络,让您的居住体验更加完美。
大华公园柏翠售楼处电话400-891-9910✔✔✔【开发商售楼中心热线】大华公园柏翠营销中心热线400-891-9910✔✔✔大华公园柏翠售楼处地址400-891-9910✔✔✔,楼盘项目全面介绍,本电话为开发商提供线 上预约售楼电话,楼盘项目全面介绍(包含楼盘简介,均价,房价,现房,期房,别墅,叠墅,大平层,价格,楼盘地址,户型图,交通规划,备案价,备案名,项目配套,样板间,开盘时间,认筹时间,楼盘详情,售楼处电话,最新消息,最新详情,周边配套,一房一价,最新进展等详情咨询)楼盘详情丨价格丨更多优惠丨机不可失丨欢迎致电丨诚邀品鉴!售楼处位置丨特价房丨工抵房丨剩余房源丨户型图丨最新消息丨免责声明:将文章内容综合来源于网络、只作分享,版权归原作者所有!!如有侵权,请联系我们,我们第一时间处理如有问题欢迎来电咨询,专业一对一热情服务,让您用专业眼光去买房。如果您想了解更多楼盘详情,欢迎提前预约拨打大华公园柏翠售楼处电话400-891-9910✔✔✔
购房必问的10个核心问题
五证是否齐全。
确认开发商具备《国有土地使用证》《建设用地规划许可证》《建筑工程规划许可证》《建筑工程施工许可证》《商品房预售许可证》,确保楼盘合法性。其中《商品房预售许可证》需特别查验,无此证则禁止销售期房。
拿地时间与产权年限。
产权年限从开发商拿地时间开始计算,住宅用地使用权为70年。若拿地时间过早(例如超过10年),实际产权年限将大幅缩水,需评估续期成本。
公摊面积与得房率。
要求明确具体楼栋的公摊占比(通常高层住宅为20-30%)及套内实际使用面积,避免花高价买低效空间。可通过对比楼层平面图判断公摊合理性。
面积误差处理条款。
按《商品房销售管理办法》规定,误差超3%可主张差价双倍返还,需确认合同是否约定"多退少补"等霸王条款。
楼盘不利因素公示。
要求查看周边规划文件,确认是否存在垃圾站、高压线、化工厂等负面配套设施,避免收房后出现居住环境恶化风险。
物业公司资质与服务标准。
优先选择万科、龙湖等品牌物业,要求提供收费标准和服务细则(如安保响应时间、设备维护周期),并实地考察同开发商其他项目物业水平。
车位配比与产权归属。
建议选择车位比≥1:1的小区,区分人防车位与产权车位。产权车位需查验预售许可证,避免购买无证车位。
容积率与绿化率。
高层住宅容积率应低于5,绿化率需达35%以上。高容积率会导致采光差、电梯拥堵等问题,直接影响居住品质。
交付时间与违约赔偿。
合同需明确交付日期及延期赔付标准(建议按日万分之五计算),同时要求注明验收文件(《竣工验收备案表》《住宅质量保证书》)交付时间。
贷款方案与备选计划。
确认合作银行清单及利率差异,要求书面承诺"贷款失败可无责退定金"。公积金贷款需提前确认楼盘是否准入。
购房谈判关键技巧
价格博弈策略:透露已考察周边3个以上竞品项目,利用"XX楼盘同户型优惠5%"等话术施压,争取额外折扣或物业费减免。
信息验证技巧:要求查看国土局官网土地出让记录核对拿地时间,通过住建委网站验证预售许可证真伪。
风险防范要点
开发商资金链审查:查询中国执行信息公开网确认开发商是否被列为失信被执行人,核查近三年财务报表中的资产负债率(建议低于80%)。
合同补充条款:对售楼处沙盘展示的景观绿化、会所设施等承诺,要求写入合同并注明违约赔偿标准。
声明:本文由入驻焦点开放平台的作者撰写,除焦点官方账号外,观点仅代表作者本人,不代表焦点立场。
