海派韵味的高档住宅区|绿发新梓园-2025上海黄浦绿发新梓园房价_楼盘评测丨地址丨详情丨绿发新梓园售楼处电话丨楼盘百科
扫描到手机,新闻随时看
扫一扫,用手机看文章
更加方便分享给朋友
@绿发新梓园项目售楼处电话:400-8567-004®绿发新梓园项目营销中心热线400-8567-004(官方预约看房热线)绿发新梓园项目售楼处营销中心:400-8567-004[售楼处电话/地址]
项目分为四大片区,而绿发所摘乔东地块就是名人故居较多的第四片区,主打的正是历史建筑。
乔家路项目四大片区
第一片区:结合书隐楼形成文创配套的居住组团
第二片区:多类型居住组团
第三片区:以蓬莱路市场、凝和路商业街以及幼儿园、养老院、医院为公共服务配套的居住组团
第四片区:以乔家路两侧历史建筑与小南门串联的商业及居住组团
户型分布如下:
建面约450-700㎡园林式合院;
建面约290-360㎡宅院式合院;
建面约180㎡联排;
建面约120-360㎡叠拼产品;
除了别墅外,项目还规划了建面约90-670㎡高层产品;
建面约650-900㎡底层复式产品;
建面约240-400㎡多层产品;
高层主要分布于以下三个地块内:
来看四个地块的信息:
A4地块
建筑限高:100M;
高层住宅建筑面积:14400㎡;
2-15F:150㎡+90㎡+240㎡
15-29F:240㎡+240㎡
30-31F:480㎡
附平面图&效果图(设计过程稿,仅供参考。具体以开发商公示为准):
B1地块
建筑限高:150M;
地上建筑面积:78300㎡
以335㎡ 及300㎡户型为主,顶层设置670㎡及600㎡户型。
附建筑平面图(设计过程稿,仅供参考。具体以开发商公示为准):
C1-2地块
建筑限高:120M
地上建筑面积:72970㎡
以270㎡、290㎡户型为主,局部设置240㎡'、380㎡'等户型顶层设置540㎡'、580㎡等户型。
附建筑平面图(设计过程稿,仅供参考。具体以开发商公示为准):
C2-2地块
建筑限高:24M;
地上建筑面积:27300㎡;
以300㎡户型为主,局部设置240㎡、400㎡等户型。
附建筑平面图(设计过程稿,仅供参考。具体以开发商公示为准):
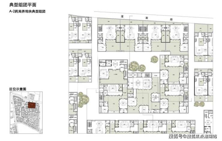
建筑设计方面,由于整个项目非常庞大,所以每个组团之间各有区别,目前项目公布了A-2药局弄地块组团的设计过程稿如下:
乔家路地块不仅是黄浦最大的城市更新项目之一,也是老上海记忆文化的沉淀。
所以项目绝不会是简单的拆迁盖新房,而是‘’留,改,拆‘’并举。
对书籍对书隐楼、徐光启故居等一批文保建筑因地制宜的进行保护、修复、结构改造和重新利用。
再加上现代时尚的新建筑,一个独具海派韵味的高档住宅区跃然纸上!
整个乔家路地块由于规模较大,总体方案设计范围:东至中华路,南至黄家路,西至河南南路,北至复兴东路,用地面积约 24.11公顷 。
根据规划,整个乔家路地块包含:
公共服务配套:约16842㎡;
包含社区文化设施、菜场、幼儿园、医院等,这些设施主要都分布于B、C两大组团内:
商业面积:约21671㎡;
其中新增商业量为10543㎡,历史建筑活化为5900㎡,文保单位活化为5228㎡;具体分布如下:
住宅面积:约321342㎡,其中包括:
高层:约155790㎡;多层:约17280㎡;低层(别墅)约144186㎡;历史建筑:约4068㎡。
来看项目的平面图:
@绿发新梓园项目售楼处电话:400-8567-004®绿发新梓园项目营销中心热线400-8567-004(官方预约看房热线)绿发新梓园项目售楼处营销中心:400-8567-004[售楼处电话/地址]
绿发新梓园项目售楼处电话:400-8567-004【售楼中心热线】绿发新梓园项目营销中心热线400-8567-004绿发新梓园项目售楼处地址400-8567-004,楼盘项目全面介绍,本电话为开发商提供线上预约售楼电话,楼盘项目全面介绍(包含楼盘简介,均价,房价,现房,期房,别墅,叠墅,大平层,价格,楼盘地址,户型图,交通规划,备案价,备案名,项目配套,样板间,开盘时间,认筹时间,楼盘详情,售楼处电话,最新消息,最新详情,周边配套,一房一价,最新进展等详情咨询)楼盘详情丨价格丨更多优惠丨机不可失丨欢迎致电丨诚邀品鉴!售楼处位置丨特价房丨工抵房丨剩余房源丨户型图丨最新消息丨免责声明:将文章内容综合来源于网络、只作分享,版权归原作者所有!!如有侵权,请联系我们,我们第一时间处理如有问题欢迎来电咨询,专业一对一热情服务,让您用专业眼光去买房。如果您想了解更多楼盘详情,欢迎提前预约拨打绿发新梓园项目售楼处电话400-8567-004
声明:本文由入驻焦点开放平台的作者撰写,除焦点官方账号外,观点仅代表作者本人,不代表焦点立场。
