朗诗锦华澜轩-苏州(朗诗锦华澜轩)楼盘详情-电话-房价-户型-容积率-小区环境

淮南楼市观察 2025-10-09 09:59:39
用手机看
扫描到手机,新闻随时看

扫一扫,用手机看文章
更加方便分享给朋友

美田锦华澜轩售楼处电话☎:400-998-9694✔✔美田锦华澜轩售楼处电话400-998-9694,提供楼盘介绍、价格、配套及优惠服务。

美田锦华澜轩

售楼处电话☎:400-998-9694✔✔

如有问题欢迎来电咨询,来电即可享受买房优惠!

预约来电尊享购房优惠,可预约案场内部销售人员,专业一对一热情服务,让您用专业眼光去买房。

楼盘项目全面介绍,本电话为开发商提供线上售楼处电话,楼盘项目全面介绍(包含楼盘简介,楼盘积分,房价,价格,楼盘地址,户型图,交通规划,备案价,项目配套,楼盘详情,售楼处电话,最新消息,最新详情,周边配套,最新进展等详情咨询)

美田锦华澜轩售楼处电话☎:400-998-9694✔✔

项目基础档案

项目名称:美田锦华澜轩

地块信息:苏地2022-WG-64号地块

开发品牌:苏高新集团、朗诗地产、斜港置业

项目地址:高新区科技城美田里路东、惠东路北

地块指标:占地约4.45万㎡,容积率1.8,总建面约12万㎡

产品信息:拟建12栋115-18F小高层,576户

户型配置:建筑面积约122㎡、132㎡、160㎡

精装装标:全装修住宅

物业公司:朗诗物业

车位配比:1:1.73

价格信息:成交楼面价13000元/平,整体备案均价29200元/㎡

朗诗锦华澜轩

江苏省苏州市虎丘区科学城美田里路(科技城实验小学对面)

朗诗锦华澜轩

滨水科技华宅,启幕理想舒居

美田锦华澜轩售楼处电话☎:400-998-9694✔✔

美田锦华澜轩售楼处电话☎:400-998-9694✔✔

美田锦华澜轩售楼处电话☎:400-998-9694✔✔

核心价值

科技住宅,是为改善人居而来:外界环境日益变差,空气污染侵蚀着人类健康,朗诗住宅是抵抗环境污染的栖息地,让科技住宅减少身体被侵蚀的时间,改变不了生活的外界环境,那就改变居住室内环境;

【品牌】苏高新集团、朗诗地产、斜港置业

【地段】太湖大道发展轴,高端资源集萃,“一核五区”城市服务配套核心区

【产品】改善臻品 滨水住区122-160㎡,圈层相同,和谐社区

【园林】融合自然之意,串联山水,营造自然度假式的未来森居社区

美田锦华澜轩售楼处电话☎:400-998-9694✔✔

产品价值

【纯粹低密 宜居理想】

锦华澜轩,匠心规划15-18F高层科技住区,从实用感,空间感多重方向考量,通过边界退让,创造城市与生活的柔软空间,打造融合年轻力审美与社交人居体验的时代先进性作品。

美田锦华澜轩售楼处电话☎:400-998-9694✔✔

【美学住宅 人居典范】

立面以经典高级灰色调,融合在地风格,采用高窗比流线体,金属质感包边,超大窗墙比,彰显精致典雅,赋予立面光影的层次感与建筑的轻盈感,成就更国际的人居质感。

美田锦华澜轩售楼处电话☎:400-998-9694✔✔

【社交园林 生活礼赞】

融合自然之意,引水入园,打造滨水长廊将不同功能的景观有机串联成意境和谐、空间递进的景观 “游廊”,营造舒适归家,品位精致,自然度假式的未来森居社区。

美田锦华澜轩售楼处电话☎:400-998-9694✔✔

【改善臻品 滨水住区】

定制建面约122-160㎡滨水华宅,精选臻装品牌,南北通透布局,以奢适尺度和功能分区,重构空间生活秩序,满足高端改善居住需求。

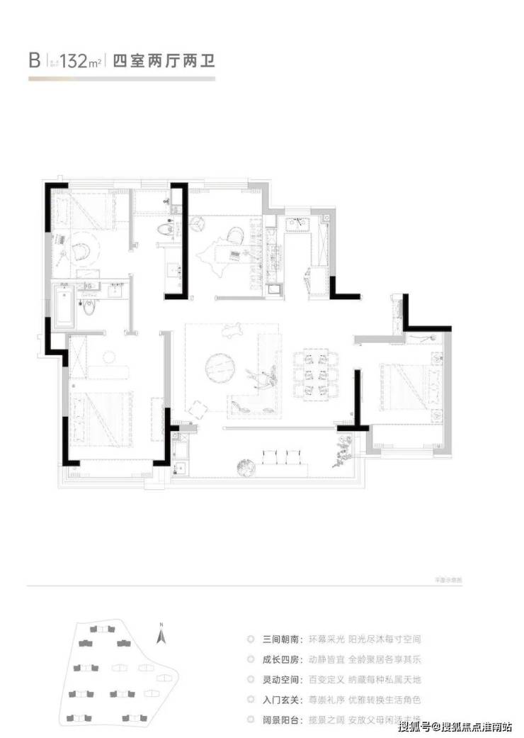
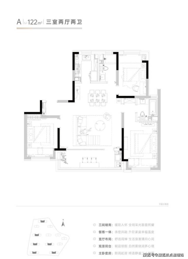
【户型赏析】

—————————

美田锦华澜轩售楼处电话☎:400-998-9694✔✔

朗诗锦华澜轩A户型

美田锦华澜轩售楼处电话☎:400-998-9694✔✔

朗诗锦华澜轩B户型

美田锦华澜轩售楼处电话☎:400-998-9694✔✔

朗诗锦华澜轩C户型

朗诗科技

脉承朗诗,“恒温”·“恒湿”·“恒氧”·低噪·适光

区别于市面上常见的“三大件+小系统科技”,朗诗主打的“恒温、恒湿、恒氧、低噪、适光”,才是真正做到了解决生活痛点,改善人居品质。

【恒温】——全年约18-26℃的无微呵护

【恒氧】——24小时全天候鲜氧

【恒湿】——保持室内相对湿度在30%-70%

【低噪】——360°的隔音降噪

【适光】——外遮阳卷帘系统自由定制室内柔光

【节能】——综合节能率80%

【温馨】——提供24小时生活热水

无空调,四季如春

美田锦华澜轩售楼处电话☎:400-998-9694✔✔

365天,室温恒定18-26℃

全屋通过 地源热泵系统和顶棚辐射系统,实现室内全年 18-26℃的恒定温度。

(前者相当于是外机,在地底下以水为媒介,通过地源热泵将能量送入室内,后者相当于是内机,在天花板内通过循环冷却或加热的水温,将能量辐射进室内。)

美田锦华澜轩售楼处电话☎:400-998-9694✔✔

样板间实景图

实际解决的生活痛点:

#

没有吹风感,告别空调病

没有吹风感和噪音,也不会占据室内空间、影响美观,更不会对人体造成伤害。

#

解决厨房、卫生间、走廊的温度荒漠

这三处一般不会装空调,只能靠空调的有限辐射,在朗诗系统内也能保证处于常温,这样夏季在厨房烹饪不会再大汗淋漓;冬季夜间起床上厕所,也不用大裹小裹。

美田锦华澜轩售楼处电话☎:400-998-9694✔✔

省钱+节约收纳空间

空调、电风扇、取暖器等一系列取暖或降温神器可以不必要买了,也不用为了收纳而绞尽脑汁。

#

关爱老人、小孩、孕妇等敏感人群

身体免疫力或抵抗力相对较差的人群,对忽冷忽热的温度变化最为敏感,很容易诱发感冒或是发烧,朗诗恒温能有效避免这一点。

而屋顶地面保温系统和外墙保温系统的作用,相当于是“恒温”的双道保险,即使断电24小时,室温最多也就1-2°的悬殊。

美田锦华澜轩售楼处电话☎:400-998-9694✔✔

不用开窗,恒温+恒湿

美田锦华澜轩售楼处电话☎:400-998-9694✔✔

相对湿度保持在30%-70%之间,24h呼吸鲜氧

独创的 全置换式新风系统,可以把室内的相对湿度保持在 30%-70%之间

同时采用“ 下送上排”换气模式,实现室内空气 不交叉、不混合、不回流

美田锦华澜轩售楼处电话☎:400-998-9694✔✔

样板间实景图

尤其是,对进入室内的空气还做了“粗效+高效+静电吸附”的 三级过滤,且 每2小时全屋空气就会置换一次除霾率90%以上,相当于生活在森林里。

美田锦华澜轩售楼处电话☎:400-998-9694✔✔

实际解决的生活痛点:

#

夏天不湿热,冬天不湿冷

苏州的黄梅天和湿冷的冬天,身上没有粘腻感或湿冷的刺骨感,被子、衣物也不易发霉。

#

火锅、榴莲等美食尽情享受

火锅、榴莲、螺蛳粉等味道过大的美食,不用担心长时间不散味。

#

有效避免有害气体

常见的就是不用担心吸“二手烟”,10多分钟快速排出室外,源源不断向室内输入新鲜空气。特别是在疫情期,也做到了隔绝病毒传播与感染。

美田锦华澜轩售楼处电话☎:400-998-9694✔✔

低噪、适光

美田锦华澜轩售楼处电话☎:400-998-9694✔✔

深度睡眠,一觉到天亮

《2023中国健康白皮书》指出,76%的受调者存在失眠问题。

睡不好成为很多都市人的“隐疾”,所以一个能够让人安心入睡的房子,成了很多买房人的刚性需求。

朗诗也是高度重视这一点, 四道系统层层加码,只为打造一个“好眠环境”

外窗系统——安装三玻两腔玻璃,有效阻隔车流等外界声音;

隔声降噪系统——在外墙、外窗和楼板采用隔音构造措施,有效阻隔外界及楼层间的噪声;

同层排水系统——降低不同楼层的用水干扰,减少排水噪音;

外遮阳卷帘系统——遮阳率80%,遮光率达95%以上。

除了外遮阳卷帘系统,买房人最满意的系统还有 全天候生活热水系统,不用花钱安装热水器,即开即用,非常便捷。

区位价值

美田锦华澜轩售楼处电话☎:400-998-9694✔✔

看得见的发展潜力和超强兑现力

继南大落址新区,高新区政府积极抢抓机遇,在科技城的肩膀上,升级打造太湖科学城;在2035苏州国土规划中提出了:引领共建太湖世界级湖区,衔接G60科创走廊,共建环太湖科创圈,太湖科学城与苏州工业园区并级,成为苏州两极之一;

区域内打造国家级战略“中国太湖科学城”,建设世界级生态湖区、创新湖区;整体规划是“一山一湖、一轴一带,一核多区”;

美田锦华澜轩售楼处电话☎:400-998-9694✔✔

本案位于太湖大道发展主轴上,占位城市服务配套区,串联新区行政中心、文体中心、时尚水岸商业街、科技城医院、南大、太湖等现有资源,新区未来发展看科技城,科技城发展以太湖大道为主轴,向两侧扩容,堪比园区现代大道。

美田锦华澜轩售楼处电话☎:400-998-9694✔✔

【纵横路网 通达全城】

毗邻太湖大道主干道,畅达全城自在出行。有轨1号线/2号线龙康路站,举步即达。

未来新增9/11/13/18/21号线轨交规划,全速链接,直达城芯

美田锦华澜轩售楼处电话☎:400-998-9694✔✔

难以复制的教育环境和圈层价值

的的

【全龄学府 优教资源】

苏州科技城西渚实验幼儿园,苏州科技城实验小学,苏州实验初级中学,高新区第三中学,科技城外国语,南京大学等

美田锦华澜轩售楼处电话☎:400-998-9694✔✔

【丰茂人居 繁华回赠】

政务:高新区管委会+科技城管委会+高新区文体中心

生态:大阳山国家森林公园+诺贝尔湖公园+恩顾山公园

医疗:毗邻苏州科技城医院(苏州大学附属儿童医院科技城院区)

商业:生活新空间+时尚水岸商业街+星悦里+雪世界(在建)

1、查看五证

购买期房的话,则一定要确定开发商五证两书一表齐全,这是关于买房的基本知识中最重要的一项,所谓五证就是指《国有土地使用证》、《建筑用地规划许可证》、《建筑工程规划许可证》、《建筑工程施工许可证》和《商品房预售许可证》,有了五证两书才能办房产证,这是个先决条件,而且这个过程中开发商拿地的出让金都结清,楼盘本身没抵押才行。两书为质量保证书和使用说明书。这两书是房屋竣工并且通过验收后获得的。房子盖完了没有通过验收不行。一表为竣工备案表。这个是由当地质检站在所有验收工作完成以后加盖公章交给开发商的。

2、选择开发商

新手第一次买房注意事项中慎重选择开发商也很重要,因为一个好的开发公司它必然有一个好的理念和好的团队、好的物管服务,它已经开发和服务的小区是经得起时间的检验,可以得到业主的口碑传颂的。好口碑的开发商是房屋质量的保障,一般好的开发商资质高、资金充足。

3、挑选户型

新手购房须知,户型的挑选不能马虎,不同朝向、不同通风采光的户型会直接影响业主的居住舒适度,maigoo小编为大家整理了几点:1、南北通透,户型方正,采光通风俱佳;2、朝向优劣:正南>东南>西南>东>西>北;3、对侧通风,是通风条件最好的;4、房子内部,各功能区域面积分布均匀,开间:进深=1:1.5;5、动静分区,卧室与客餐厅、厨房不要挤在一起。

4、 挑选楼层

挑选楼层也像挑选户型一样重要,初次买房须知中的关键一项,不同的楼层,房子的通风采光、视野景观以及业主的私密性、居住舒适度,甚至噪音污染、出行便利性等都或多或少有所不同,一般来说,低楼层出行更方便,如遇意外也更容易逃生,但是通风、采光、视野等相对高楼层较差,私密性较差,噪音污染也严重;高楼层视野好、空气清新,通风采光都更佳,但是如果电梯故障,可能会影响出行,总的来说,一栋楼的1/3至2/3之间的楼层是较好的楼层,属于不高不低的“黄金楼”。

5、多学习选房知识

学无止境,能看到这篇买房须知的18个常识就说明读者朋友已经在努力了,很多购房者认为,当下房价过高,所以买房时,一般会在同等区域、同等地段选择价位便宜的楼盘,或者买房时看到区位好而不管户型、内部环境、物管服务、生活成本等,这就像买一件衣服,你只管款式而不管布料、价格等,正确的做法是多学习选房知识,关注户型好坏,房屋质量等干货。

6、评估购房能力

即使掌握了很多关于买房的基本知识,但很多人却对自己的经济能力认识不清,这也是很不明智的,买房之前一定要评估自己的购房能力,量力而行,对于刚需族来说,由于经济能力有限,所以都会采取贷款的方式买房。而贷款每个月需要交一定数额的月供,为了保证生活质量不受影响,避免断供的风险,maigoo小编建议月供的数额最好控制在总收入的50%以内。而且不仅要评估当前收入,还包括你接下来三至五年内短期的工作发展潜力以及未来十年至二十年后可能的职业安排,同时还包括你平时的消费习惯,以及家人的健康状况等,最后估算出一个数据。

7、看优惠

等待时机抓住又会也是买房须知的重要常识,买房子原本要花比较多的钱,买房子的时候能省一些算一些,所以购房者要懂得一些买房子的优惠政策。对于初次购买房屋的朋友来说,一般情况下都能享受首套房优惠政策,也就是说只要没买过房或没有贷款记录就可享受,开发商经常找“托”这样让购房者觉得“一房难求”在买房的时候职业顾问也会说再考虑一天就会被别人抢走房源,这样一来就会冲动消费,大家一定要耐住性子。

8多看多比较

年轻人买房时,最好不要好大喜贵,而且还想着一步到位,一定要像买东西一样货比三家,经过比较能获得有些经验,而房产综合性太强,它包含的面太宽,主要看你在比较过程中关心的内容全不全面,而且根据自己能承受的范围做出合理的决定,因为没有十全十美的房子,买房也不可能考虑到各方面的细节。

9、看规划

买房当然要挑楼盘,挑小区,挑户型,但是也不能只看房子,还要看房子的位置,这也是买房须知和注意事项中很重要的一点,内行人买房首先看的是地段,华人首富李嘉诚也说过:“决定房地产价值的因素,第一是地段,第二是地段,第三还是地段。”好地段的房产保值或升值的空间更大,购房风险相对城市偏远郊区较小,就算未来房价暴跌,首先下跌的也是地段较偏的房产,地段好的房产房价一般都是最后下降的。建议大家在购置房产时,要切记紧跟城市发展的方向。

10、楼间隔

什么是楼间隔?就好似两相邻楼的外墙面距离,同一个小区两栋相邻的楼与楼之间的距离,建筑间距的控制是为了保障人们工作、生活的质量与安全,大楼间隔宽的住宅区不一定能建造好的住宅区,大楼间隔特别宽也能建造好的住宅区,间隔宽是业主生活安静、隐私、视野广阔,也是景观建设的平台,但是利用平台建造景观安静、隐私、舒适的环境相反,大楼的间隔并不特别宽,但是这样的理念和团队创造了美丽、舒适、健康的环境,也被称为好的住宅区。

11、小区环境

重点看小区环境是买房须知的重要常识,小区景观、绿化、配套等与生活密切相关,更是楼盘质量的体现,大超市、医院、学校,关乎生活便捷度;是否是学区房,关乎小孩上学;附近的公交线路、地铁线路,交通是否便捷;好小区内部和周边的配套设施也相对完善一些,不仅水、电、燃气、煤气、宽带、停车场、公共厕所、多功能儿童活动空间、园区休闲场所、物业公司等内部配套设施能满足业主的日常居住需求,周边还有便利店、菜市场、食品店、药店、小型超市、学校、公交站点或者地铁站点等多功能服务配套满足业主以及孩子的衣食住行的更高需求。

12、避免楼层

选择楼层的时候经常是不随人愿,既然选不到“黄金楼层”,至少不要选到一些太糟糕的,比如极端层,顶层和底层不建议买,高层住宅如果选择低楼层的房子的话,采光可能就不是很好,而且容易潮湿,发霉,滋生蚊子。顶层容易出现漏水现象,虽然能修理但耗时耗力,修理时间极可能被无限延长。设备层则是专门供水,供电的中间楼层,要是常年居住在设备层的附近的话,不仅机器设备的噪音把人折磨得无法休息,连机器的辐射也会影响人的身体健康。

13、价格挑选

很多购房者认为房价才是买房最关键的因素,其实不然,适不适合自己才是最关键的。在自己能力范围内,如果房价偏高你也能接受,这样你就会觉得地段好、配套好、户型好、楼层好的房子才是最好的,就算房价贵点也愿意买。但是,如果你能力有限、购房资金有限,那么估计买哪里都会觉得贵,甚至觉得房价越便宜越好,价格挑选要比较个人承受范围、交通状况、社区环境、户型结构等条件衡量楼盘价格。

14、不要贪大

买房一定不要贪大是买房时的重要事项,面积以适用为原则,不要为大而大,现在年轻人都喜欢独自出来居住,所以一般买个80、90平的大两室或者小三室就完全足够居住,非要买大房子,不仅不实用,而且还会涉及到一定的税费,国家区分豪宅和普通住宅的分界线就是144平米,所以在购买房子的时候,不要超过140平,除了税费要多交不少,对于一些物业费取暖费等等各个方面都会高出很多,长时间算下来,多出的这些没准在日后还能多出一套首付钱。

15、考虑孩子问题

考虑孩子是买房时非常必要的,既然婚恋是买房子的重要原因,那么孩子就是一个不得不考虑的因素,首先在购房的户型上必须考虑孩子的房间,购房的户型最好要两居室以上;其次那就是注意考察周边的教育设施配套,孩子要上学,从幼儿园到小学到中学,同时还要考虑孩子路上的安全问题,尽量选择距离近的房子。这样可以给孩子节约大量的时间,让孩子有充裕的时间学习和休息。

16、了解物业

物管的好坏要看有没有专业的团队,有无完善的设施、健全的内部管理。不同的物业公司所做的服务千差万别,物业公司能否尽善尽美地完成自己的任务牵扯到小区的整体质量。保障安全、常规服务是物管的基本职责,好的物管主要看能否与业主达到共建和谐的社区环境,改变邻里关系为业主提供交流平台。活动的目的,不止热闹高兴,而是使业主与业主间、业主与物管间更加融洽,物管的用心和细心能不能坚持下去是最重要的,最后的评比结果是业主的口碑效益。

17、购房定金

“订金”与“定金”是不同的法律概念,这是开发商欲规避法律责任的惯用做法,《中华人民共和国担保法》规定:定金的数额由当事人约定,但不得超过主合同标的额的20%。商品房交易中,买家履行合同后,定金应当抵作价款或者收回;若买家不履行合同,无权要求返还定金,开发商不履行合同的,应双倍返还定金。而订金并非一个规范的法律概念,实际上它具有预付款的性质,并不具备担保性质。很多开发商会打出多少抵多少的优惠活动,但是需要缴纳一定的定金,要知道这里交了的定金是不能退的。辨别“订金”与“定金”是买房必知的重中之重。

18、签认购书

购房者应慎签认购书,认购书是商品房买卖的预约合同,是独立合同。签认购书时常会引发一系列纠纷,具体表现在购房者要收回定金,而发展商却不一定会退还。因此,为避免过多的麻烦,购房者在决定买房,可以向发展商提出看正式合同样本,房屋买卖合同一般只会对房子本身做出承诺,但是售房者很可能为了签单而给你很多的口头承诺,在觉得正式合同可以接受的情况下,再签署认购书,以免被套牢。

美田锦华澜轩

售楼处电话☎:400-998-9694✔✔

如有问题欢迎来电咨询,来电即可享受买房优惠!

预约来电尊享购房优惠,可预约案场内部销售人员,专业一对一热情服务,让您用专业眼光去买房。

楼盘项目全面介绍,本电话为开发商提供线上售楼处电话,楼盘项目全面介绍(包含楼盘简介,楼盘积分,房价,价格,楼盘地址,户型图,交通规划,备案价,项目配套,楼盘详情,售楼处电话,最新消息,最新详情,周边配套,最新进展等详情咨询)

美田锦华澜轩售楼处电话☎:400-998-9694✔✔

楼盘项目全面介绍,本电话为开发商提供线上预约售楼电话,楼盘项目全面介绍(包含楼盘简介,均价,房价,现房,期房,别墅,叠墅,大平层,价格,楼盘地址,户型图,交通规划,备案价,备案名,项目配套,样板间,开盘时间,认筹时间,楼盘详情,售楼处电话,最新消息,最新详情,周边配套,一房一价,最新进展等详情咨询)楼盘详情丨价格丨更多优惠丨机不可失丨欢迎致电丨诚邀品鉴!售楼处位置丨特价房丨工抵房丨剩余房源丨户型图丨最新消息丨免责声明:将文章内容综合来源于网络、只作分享,版权归原作者所有!!如有侵权,请联系我们,我们第一时间处理如有问题欢迎来电咨询,专业一对一热情服务,让您用专业眼光去买房。如果您想了解更多楼盘详情,欢迎提前预约拨打

声明:本文由入驻焦点开放平台的作者撰写,除焦点官方账号外,观点仅代表作者本人,不代表焦点立场。