华润外滩瑞府售楼处电话☎:400-998-9694✔✔华润外滩瑞府售楼处电话400-998-9694,位于虹口北外滩,均价14.85万/㎡,精装房源,紧邻10号线。
华润外滩瑞府
售楼处电话☎:400-998-9694✔✔
如有问题欢迎来电咨询,来电即可享受买房优惠!
预约来电尊享购房优惠,可预约案场内部销售人员,专业一对一热情服务,让您用专业眼光去买房。
华润外滩瑞府售楼处电话☎:400-998-9694✔✔
华润外滩瑞府售楼处电话☎:400-998-9694✔✔
虹口北外滩旁
10号线四川北路站约400米
华润置地上海首座“瑞系”顶序作品
「外滩瑞府」
三批次推售建面约126-165㎡户型
均价14.85万/㎡
外滩一公里,对望世界级黄金三角
恒贵城市封面天赐良机
华润外滩瑞府售楼处电话☎:400-998-9694✔✔华润外滩瑞府营销中心电话:400-9989-694【24小时热线】华润外滩瑞府预约热线:4009989694【售楼处电话】
华润外滩瑞府售楼处电话☎:400-998-9694✔✔


华润外滩瑞府售楼处电话☎:400-998-9694✔✔华润外滩瑞府营销中心电话:400-9989-694【24小时热线】华润外滩瑞府预约热线:4009989694【售楼处电话】
Huarun Bund Ruifu Sales Office Phone ☎: 400-998-9694 ✔✔ CR Bund Ruifu Marketing Center Phone: 400-9989-694 [24-hour hotline] CR Bund Ruifu Reservation Hotline: 4009989694 [Sales office phone]
基本信息
Basic Information
地块去年11月27日,华润置地以总价51.36亿元获取,成交楼面价92934元/平方米,溢价率11.97%,地块中小套型占比40%,装修标准4000元/㎡!
On November 27th last year, China Resources Land acquired the plot for a total price of 5.136 billion yuan, with a transaction floor price of 92934 yuan/square meter and a premium rate of 11.97%. Small and medium-sized units accounted for 40% of the plot, with a decoration standard of 4000 yuan/square meter!
项目力邀大师天团操刀,从建筑到生活全维度高定。
The project invites a master team to handle everything from architecture to daily life.
GOA大象设计担纲建筑设计;渡边 智昭 负责会所和架空层设计 ,他是 2023 AD 100 中国最具影响力建筑和室内设计师,代表作翠湖天地、汤臣一品;TROP操刀艺文景观设计; 室内由 W.DESIGN无间设计、 李益中精琢...
GOA Elephant Design is responsible for architectural design; Watanabe Tomohiro is responsible for the design of the clubhouse and elevated floors. He is one of the most influential architects and interior designers in China for the 2023 AD 100, with representative works such as Cuihu Tiandi and Tangchen Yipin; TROP is responsible for art, culture, and landscape design; The interior is designed seamlessly by W.DESIGN and meticulously crafted by Li Yizhong ..
这支曾塑造多个城市封面的大师团队,聚集在外滩瑞府,共筑外滩新一代标杆住宅。
This master team, who has created multiple city covers, gathered at Ruifu on the Bund to jointly build a new generation of benchmark residences on the Bund.

华润外滩瑞府售楼处电话☎:400-998-9694✔✔华润外滩瑞府营销中心电话:400-9989-694【24小时热线】华润外滩瑞府预约热线:4009989694【售楼处电话】
Huarun Bund Ruifu Sales Office Phone ☎: 400-998-9694 ✔✔ CR Bund Ruifu Marketing Center Phone: 400-9989-694 [24-hour hotline] CR Bund Ruifu Reservation Hotline: 4009989694 [Sales office phone]
作为华润置地产品线的皇冠明珠,「瑞系」自诞生便以钻石级选址标准划定豪宅基因。
As the crown jewel of China Resources Land's product line, the "Rui series" has been designated as a luxury home gene with diamond level site selection standards since its inception.
从深圳湾的 “春笋”旁到北京长安街畔,每一座瑞府都占据着核心城市最核心的地段。
From the "Spring Bamboo Shoots" in Shenzhen Bay to the banks of Chang'an Avenue in Beijing, every Ruifu occupies the most central area of the core city.
此次外滩瑞府落子外滩1公里核心圈,正是华润对「战略稀缺性」的极致践行: 非核心不选,非未来不立。
The relocation of the Bund Ruifu to the core area of the Bund within 1 kilometer is the ultimate practice of China Resources in "strategic scarcity": no choice for the core, no establishment for the future.
这也是华润置地那么多年来在上海的首座“瑞系”。
This is also China Resources Land's first "Rui series" in Shanghai in so many years.

华润外滩瑞府售楼处电话☎:400-998-9694✔✔华润外滩瑞府营销中心电话:400-9989-694【24小时热线】华润外滩瑞府预约热线:4009989694【售楼处电话】
由此,便有了“风貌→幕墙→冠冕”的立体生长美学立面,风貌底盘+秩序感极强的通透立面,昭示性极强!

尤为瞩目的是,建筑立面采用的大面积通透玻璃幕墙设计, 它如同一幅流动的巨幕画框,不仅最大限度引光入室,更实现了 “移步易景、框景成画”的建筑美学。
室内外空间界限被温柔消弭,无论是社区内的精致园林、活力场景,还是远方的都市天际线,都成为生活中触手可及、瞬息变幻的风景。
华润外滩瑞府售楼处电话☎:400-998-9694✔✔华润外滩瑞府营销中心电话:400-9989-694【24小时热线】华润外滩瑞府预约热线:4009989694【售楼处电话】
风雨连廊及印象派花园双重归家 体系重新定义顶豪生活仪式 ,社区大门以约50米长典雅精致市政延展面宣告不凡气度!先锋艺文迎宾区 仪式感十足!这便是一场城市精英到生活艺术家的精神转场。

华润外滩瑞府售楼处电话☎:400-998-9694✔✔华润外滩瑞府营销中心电话:400-9989-694【24小时热线】华润外滩瑞府预约热线:4009989694【售楼处电话】
社区核心以约3000㎡沉浸式中央公园重构自然与生活的边界,这里不仅是满足全龄社交、商务会客与儿童探索的多功能活力场域,更以精心雕琢的轻度假美学,让每一次归家都成为步入度假胜地的仪式。当暮色浸染天际线,漫步于绿意环抱的公园小径,耳畔是潺潺水声与孩童欢笑,疲惫顷刻消融于草木芬芳与柔风暖光之中。


华润外滩瑞府售楼处电话☎:400-998-9694✔✔华润外滩瑞府营销中心电话:400-9989-694【24小时热线】华润外滩瑞府预约热线:4009989694【售楼处电话】
让人眼前一亮的是,景观设计更以印象派艺术史诗为灵感,独创六大主题花园,将传世名作解构为可游可赏的立体生态空间!有梵高的星空水苑、莫奈的睡莲水湾、马奈的日光草坪、塔贝尔的社交花园、雷阿诺的缤纷花园以及调色板儿童乐园……

华润外滩瑞府售楼处电话☎:400-998-9694✔✔华润外滩瑞府营销中心电话:400-9989-694【24小时热线】华润外滩瑞府预约热线:4009989694【售楼处电话】
每一处花园皆以自然为画布、生活为颜料,原生乔木与艺术草甸形成柔韧界面,流线型步道如画笔游走其间,这不再只是社区绿地,而是一座生长中的露天艺术馆,让印象派的浪漫主义在每一天的晨曦暮霭中鲜活重生。
还有约150米风雨连廊设计,连通所有楼栋,移步易景。看似简单的设计,解决了高频生活痛点,从“实用配置”升维为居住尊严与人文关怀的象征,让日常通勤成为享受,让社区在风雨中依然温暖有序,实现归家更从容~

华润外滩瑞府售楼处电话☎:400-998-9694✔✔华润外滩瑞府营销中心电话:400-9989-694【24小时热线】华润外滩瑞府预约热线:4009989694【售楼处电话】
值得注意的是, 公区的每个角落都值得驻足欣赏,无处不在体现设计师的超绝审美,步入社区的每一帧都是视觉享受~

社区打造了恒温泳池会所, 以优雅流畅的线条融入天际视野,不仅是为业主提供专业级畅游体验的运动场所,更成为静享私密时光的水境。

华润外滩瑞府售楼处电话☎:400-998-9694✔✔华润外滩瑞府营销中心电话:400-9989-694【24小时热线】华润外滩瑞府预约热线:4009989694【售楼处电话】
匠心营造的架空层空间同样具备国际化品味,打造了更容易停留的空间:一处是融合艺术格调与舒适氛围的多功能泛会客厅,为邻里社交、商务洽谈或静谧阅读提供优雅场域;另一处则配备了前沿科技的智能健身空间,满足业主全天候、多元化的健康管理需求。
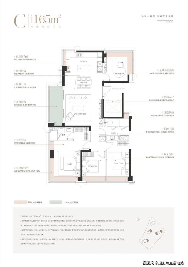
外滩瑞府再传重磅消息:3批次 推出建面约124-165㎡3-4房,均价148500元/㎡,其中165㎡户型一梯一户,另外 部分实景示范段预计本月中旬开放!

华润外滩瑞府售楼处电话☎:400-998-9694✔✔华润外滩瑞府营销中心电话:400-9989-694【24小时热线】华润外滩瑞府预约热线:4009989694【售楼处电话】
官宣户型图独家首发:
建面约124㎡3房:
南北通透全明户型,三开间朝南设计;“S”墙收纳、室内5个飘窗延伸空间,据说每个卧室开间尺度均达到3米及以上,完全满足改善居住的收纳需求!主卧套房设计,隐私性较强,室内空间尺度优秀!

华润外滩瑞府售楼处电话☎:400-998-9694✔✔华润外滩瑞府营销中心电话:400-9989-694【24小时热线】华润外滩瑞府预约热线:4009989694【售楼处电话】
从电梯厅开始,就是酒店式定制化设计,弧形顶设计的电梯厅,门牌上设计了玉石托盘,可以放置家庭独有的摆件,注重仪式感的同时更具高定私享趣味性!

样板间则是采用香奈儿风格法式经典搭配,尽显法式优雅~
进门整面墙打造了玄关柜+“S”墙+零食柜设计,搭配烤漆板饰面,实用性与质感满分!
华润外滩瑞府售楼处电话☎:400-998-9694✔✔华润外滩瑞府营销中心电话:400-9989-694【24小时热线】华润外滩瑞府预约热线:4009989694【售楼处电话】
开放式厨房+岛台设计空间更通透!转角抽屉收纳、下拉栏顶部设计反光镜避免视觉死角、轨道插座置于岛台侧墙不占台面空间等等,众多收纳细节思量到位,匠心独运!

华润外滩瑞府售楼处电话☎:400-998-9694✔✔华润外滩瑞府营销中心电话:400-9989-694【24小时热线】华润外滩瑞府预约热线:4009989694【售楼处电话】
值得一提的是,项目在看不见的地方偷偷发力!厨房三重排烟的处理、原本应在设备平台的转移至楼层公区不遮挡厨房窗景、外墙厚度200厚混凝土墙+100厚的保温层隔绝噪音等等,实属匠心!

华润外滩瑞府售楼处电话☎:400-998-9694✔✔华润外滩瑞府营销中心电话:400-9989-694【24小时热线】华润外滩瑞府预约热线:4009989694【售楼处电话】
还有墙面的细节处理,电视背景墙为皮革硬包+深色木饰面,不惜成本将金属条嵌入墙内打造出更细致的设计效果~



全屋更是配备华为AI智能系统,智能控制家居更省心!卫生间镜柜延伸至马桶上方,实现收纳扩容!

华润外滩瑞府售楼处电话☎:400-998-9694✔✔华润外滩瑞府营销中心电话:400-9989-694【24小时热线】华润外滩瑞府预约热线:4009989694【售楼处电话】
建面约165㎡4房:
大横厅尺度感奢阔,尊享私梯入户,隐私性满分!三间卧室朝南设计的平权户型,老人、小孩均可享受南向采光;厨房转角窗、主卧套房、北向书房均配置270度转角飘窗,景观视野相当不错!次卫四分离设计,相当人性化~

华润外滩瑞府售楼处电话☎:400-998-9694✔✔华润外滩瑞府营销中心电话:400-9989-694【24小时热线】华润外滩瑞府预约热线:4009989694【售楼处电话】
拥 独立入户空间 ,私密入户。
同样近乎等面宽的卧室尺度 , 让每个家庭成员都能拥有独立且舒适的休憩领地,三卧朝南的布局,让阳光成为所有人的平等馈赠,没有谁要为“主次”牺牲采光权。
而“大”还体现在公共空间的开阔,岛台厨房、餐厅、客厅与阳台动线流畅,二胎共同玩耍也绰绰有余。
约270°视野的贯穿更是锦上添花,主卧、北向次卧、厨房的约270°转角飘窗,让每个空间里的人都能平权地拥抱城市景致。
华润外滩瑞府售楼处电话☎:400-998-9694✔✔华润外滩瑞府营销中心电话:400-9989-694【24小时热线】华润外滩瑞府预约热线:4009989694【售楼处电话】
主卧套房的L型衣帽间与卫生间,公卫四分离设计,在保证“大”尺度的同时,更让每个人的生活需求都被妥帖照顾。
显然,外滩瑞府户型深谙豪宅之道:“大” 不是盲目堆砌面积,而是让每个空间都有足够的舒展度;“平权” 不是口号,而是通过面宽、采光、视野的均等分配,让家 庭里的每一个人,都能在空间里找到被尊重的舒适。这正是华润置地深入研读豪宅客群需求后,交出的完美答卷——在这里,大空间与平权生活,从来不是选择题。
另外,让我留下深刻印 象的是样板间展现的高级定制设计语言。
不同于市面上门是门,框是框,墙是墙,看房时“五颜六色”。外滩瑞府室内采用一体化设计语言,实现空间、色彩与材质的协调统一。比如
✔入户门原创设计,外面深色木纹,里面浅色云母,和玄关柜、大理石地砖很搭配。
✔大理石地砖铺装工艺 近乎看不出拼接缝、浑然一体。
✔卫生间地面和墙面整体性也非常强,奢石台面的纹路和岩板墙面和协调。

华润外滩瑞府售楼处电话☎:400-998-9694✔✔华润外滩瑞府营销中心电话:400-9989-694【24小时热线】华润外滩瑞府预约热线:4009989694【售楼处电话】
建面约165㎡样板间实景图,以实际交付为准
装修上配备国际一线品牌,尤其厨房由嘉格纳领衔,配备灶具、吸油烟机、洗碗机、冰箱蒸烤箱。
更多细节大家可以去现场了解。

华润外滩瑞府售楼处电话☎:400-998-9694✔✔华润外滩瑞府营销中心电话:400-9989-694【24小时热线】华润外滩瑞府预约热线:4009989694【售楼处电话】
建面约165㎡样板间实景图,以实际交付为准
240户型,从专属入户仪式到全景生活场景,从国际奢材甄选到功能细节打磨,这款户型都尽显高奢。
1、 专属入户礼序:塔尖仪式感从进门开始
一梯一户 ,推门即享专属电梯厅,搭配气派双开门入户设计,归家仪式感拉满;进入室内,超阔绰玄关厅不仅能容纳海量收纳需求,更以科学左右分区设计实现动线分流,让每一次出入都尽显从容与尊贵。
2、 约270°IMAX超级厅堂:把城市天际线装进家里
客厅以超大尺度惊艳亮相,若打通北向X空间,可拓展为约90㎡超级厅堂,家族宴请or高端社交,皆能轻松承载;约 270°环幕视野 将采光与观景效果推向极致,中高楼层可眺望陆家嘴三件套。
华润外滩瑞府售楼处电话☎:400-998-9694✔✔华润外滩瑞府营销中心电话:400-9989-694【24小时热线】华润外滩瑞府预约热线:4009989694【售楼处电话】
厅内空间充裕,既容得下大家庭聚餐的超大圆桌,也有独立西厨岛台,满足高净值家庭多元烹饪需求。
3、灵活X空间:为成长型家庭定制更多可能
户型预留的灵活 空间,可根据家庭成员需求随时变换功能——书房、琴房,专属化妆室...每一种场景都能精准适配,让空间随生活成长而进化。
4、主卧小家化:私享级奢居体验
南向双套房设计,其中主卧以“小家化”理念打造超大私人空间:就寝区面宽开阔,搭配独立梳妆台,满足日常精致需求; L型大衣帽间 收纳容量充足,轻松容纳四季衣物;主卫亮点十足,不仅做到南向采光,还配置双台盆、独立马桶、淋浴区与浴缸四件套,堪比五星级酒店的配置。
5、配独立家政间:让家庭井然有序
华润外滩瑞府售楼处电话☎:400-998-9694✔✔华润外滩瑞府营销中心电话:400-9989-694【24小时热线】华润外滩瑞府预约热线:4009989694【售楼处电话】
家政间彻底释放了阳台,让阳台成为观景配套或者志趣空间;且位置在进门处,离两个卫生间很近,“洗烘一体”的动线高效。

华润外滩瑞府售楼处电话☎:400-998-9694✔✔华润外滩瑞府营销中心电话:400-9989-694【24小时热线】华润外滩瑞府预约热线:4009989694【售楼处电话】
6、细节配置与奢材:国际大牌+高定选材,同级品质天花板
✔装修品牌 :全系采用国际一线大牌,中西厨配置嘉格纳9件套;博洛尼橱柜搭配定制拉篮与调味架,让厨具收纳井然有序,尽显细节质感。
✔高定选材 :玄关地面选用“白雪公主”玉石,质感温润高级;地面延展祥云灰水墨岩,与外滩华尔道夫酒店同源材质,瞬间提升空间格调;主卧背景墙更以威尼斯安缦酒店同款树瘤木,搭配巴黎宝格丽酒店同源羊皮纸,将全球顶奢酒店的居住质感搬进家中,每一处选材都彰显塔尖人居的高奢基因。
华润外滩瑞府售楼处电话☎:400-998-9694✔✔华润外滩瑞府营销中心电话:400-9989-694【24小时热线】华润外滩瑞府预约热线:4009989694【售楼处电话】
区域版块
“上海2035”总体规划明确,外滩将作为“全球城市核心功能承载区”,与陆家嘴、北外滩组成“黄金三角”,目标直指“卓越全球城市”的封面。这一规划不仅定义了上海的空间格局,更将外滩推向全球资本、文化、资源的核心交汇点。外滩瑞府择址于此,对标纽约ONE57、伦敦海德公园一号——非全球资本聚集地不选,非历史与未来叠加区不立,其价值内核正是对“黄金三角”核心资产的精准锁定,为业主提供了“抗周期”的资产保障。

华润外滩瑞府售楼处电话☎:400-998-9694✔✔华润外滩瑞府营销中心电话:400-9989-694【24小时热线】华润外滩瑞府预约热线:4009989694【售楼处电话】
外滩一英里,百年资本、艺术与文明的“共生容器”
资本长河卷:百年万国建筑群凝结19世纪中国近半财富记忆,每块石材都是未被翻页的金融史章,见证“远东第一金融中心”的风云变迁;

华润外滩瑞府售楼处电话☎:400-998-9694✔✔华润外滩瑞府营销中心电话:400-9989-694【24小时热线】华润外滩瑞府预约热线:4009989694【售楼处电话】
艺术生长带:外滩源历保建筑内,先锋艺术展的光影穿透木质百叶窗,在老墙绘制当代图腾,让历史街区成为“流动的美学实验室”;

文明对话场:外白渡桥横跨苏州河,南段是金融资本的“硬实力”,北段是霓虹爵士的“软文化”,中段百年领事馆群记录东西方对话轨迹。三者交织,让外滩瑞府成为全球高净值人群眼中的“收藏级资产”。

华润外滩瑞府售楼处电话☎:400-998-9694✔✔华润外滩瑞府营销中心电话:400-9989-694【24小时热线】华润外滩瑞府预约热线:4009989694【售楼处电话】
一江两岸的“时空叠影”,陆家嘴势能与外滩厚度的共生逻辑
时光对话录:百年石库门的雕花檐角与陆家嘴玻璃幕墙互为映照,石库门的“温度”与摩天楼的“科技感”在此共生——上海中心的灯光倒映黄浦江时,外滩瑞府的窗前便展开一幅“古典砖石×未来光影”的时空画卷;

华润外滩瑞府售楼处电话☎:400-998-9694✔✔华润外滩瑞府营销中心电话:400-9989-694【24小时热线】华润外滩瑞府预约热线:4009989694【售楼处电话】
烫金一英里圈:2025年外滩扩容规划将通过地下连廊与滨江步道,无缝串联百年金融街与现代CBD。业主可享“晨间万国建筑群咖啡、午后陆家嘴写字楼洽谈、日落滨江步道漫步”的全球资本生活节奏;

双极价值场:外滩“历史溢价”与陆家嘴“未来势能”在此叠加,黄金三角腹地成为中国高净值圈层的聚集地,是时代价值创造者的共同选择。

华润外滩瑞府售楼处电话☎:400-998-9694✔✔华润外滩瑞府营销中心电话:400-9989-694【24小时热线】华润外滩瑞府预约热线:4009989694【售楼处电话】
北外滩+音乐谷,先锋生活的“极致资源矩阵”
千亿北外滩:依托“3000亿航运引擎”重塑全球经济版图,上港集团、中远海运等巨头云集,掌控全球1/3航运交易;更将崛起480米浦西第一高楼,与陆家嘴上海中心组成“双子星”,彻底改写城市天际线;

华润外滩瑞府售楼处电话☎:400-998-9694✔✔华润外滩瑞府营销中心电话:400-9989-694【24小时热线】华润外滩瑞府预约热线:4009989694【售楼处电话】
音乐谷2.0:位列2025上海十大城市更新片区,与黄浦外滩、老城厢等同为重点。这里保留内环罕见的完整水系(宽15-20米“江南小河道”)及国家级文保单位,未来滨水步行区将贯通“一湾两半岛”,百年里弄变身爵士乐演出空间与独立艺术画廊,滨水市集的霓虹灯与爵士乐交织,突破传统顶豪“资源堆砌”范式,形成“生活为体,音乐为魂”的海派艺文新场景。

1、什么是房产:房屋产权的简称。
2、什么是地产:是指土地财产。
3、什么是房地产:是房产和地产的总称。
4、什么是房地产业:从事房地产开发、建设、经营、管理以及维修、装饰和服务的综合性产业。
5、什么是房地产开发:是指在依法取得土地使用权的土地上按照使用性质的要求进行基础设施、房屋建筑的活动。
6、什么是土地开发:是将“生地”开发成可供使用的土地。
7、集体土地是指:农村集体所有的土地。
8、征用土地是指:国家为了公共利益的需要,可依照法律规定对集体所有的土地实行征用。
9、什么是土地所有权:是指国家或集体经济组织对国家土地和集体土地依法享有的占有、使用、收益和处分的权能。
10、什么是土地使用权的出让:指国家以协议、招标、拍卖的方式将土地所有权在一定年限内出让给土地使用者,由使用者向国家支付土地使用权出让金的行为。
11、什么是土地使用权转让:是指土地使用者通过出售、交换、赠与和继承的方式将土地使用权再转移的行为。
12、什么是地籍、产籍:是对在房地产调查登记过程产生的各种图表、证件等登记资料,经过整理、加工、分类而形成的图、档、卡、册等资料的总称。
13、生地是指:不具备开发条件的土地。
14、熟地是指:已完成三通一平(水、电、道路,土地平整)或七通一平,具备开发条件的土地。
15、什么是宗地:是地籍的最小单元,是指以权属界线组成的封闭地块。
16、什么是宗地图:是土地使用合同书附图及房地产登记卡附图。它反映一宗地的基本情况。包括:宗地权属界线、界址点位置、宗地内建筑位置与性质、与相邻宗地的关系等。
17、证书附图是指:房地产后面的附图,主要反映房地产情况及房地产所在宗地情况。
18、什么是物业管理:泛指一切有关房地产开发、经营、商品房销售、租赁及售后服务。
19、什么是业主委员会:是在物业管理区域内代表全体业主实施自治管理的组织。是代表
物业全体业主合法权益的社会团体,其合法权益受国家法律保护。
20、业主委员会是如何产生的:由业主大会从全体业主中选举产生。
21、住房补贴是指:国家为职工解决住房问题而给予的补贴资助。
22、房屋的所有权是指:对房屋全面支配的权利。
23、房地产交易的两种主要形式是:地产交易形式与房产交易形式。
24、建筑物是指:人工建造而成的房屋和构筑物。
25、构筑物是指:建筑物中除房屋以外的东西。
26、什么是期房:是指消费者在购买时不具备即买即可入住的商品房。
27、期房是如何介定的:房地产开发商拿到商品房预售许可证开始至取得房地产权证大产证或竣工验收合格可以直接入住使用)为止。
28、什么是预售合同:消费者在购买期房时签定的销售合同。
29、什么是现房:是指消费者在购买时具备即买即可入住的商品房,即开发商已办妥所售的商品房的大产证(或已经竣工验收合格并交付使用)的商品房。
30、什么是毛坯房:房地产商交付屋内只有门框没有门,墙面地面仅做基础处理而未做表面处理的房叫毛坯房。
31、什么是成品房:是指对墙面、天花、门套、地板实行装修。
32、什么是商品房:是指以完全的市场价格向购房者出售的房子。
33、商品房预售是指:在房地产尚未建成以前,房地产的经销商在取得受买人一定数量的定金后,将期房出售给受买人。
34、商品房现售是指:指房地产开发企业将竣工验收合格的商品房出售给买受人。
35、二手房通常指的是:再次进行买卖交易的住房。
36、经济适用房指的是:面向中低收入家庭的普通住宅。
37、例出3种以上的安居房的种类:准成本房、全成本房、全成本微利房和社会微利房。
38、低层住宅的介定:1-3层的住宅。
39、多层住宅的介定:4-6层的住宅。
40、小高层住宅的介定:7-11层的住宅。
41、中高层住宅的介定:12-16层的住宅。
42、高层住宅的介定:16层以上为高层住宅。
43、超高层建筑的介定:总高度超过100米的建筑。
44、商品房的结构是指:房屋主体所使用的施工工艺和用材。
45、钢结构的意思是:承重的主要结构是用钢材料建造的,包括悬索结构。
46、钢混结构的意思是:承重的主要结构是用钢和混凝上建造的。
47、砖木结构的意思是:承重的主要结构是用砖、木材建造的。
48、砖混结构的意思是:主要是砖墙承重,部分是钢盘混凝土承重的结构。
49、框架结构的意思是:以钢筋混凝土浇捣成承重梁柱,再用预制的隔墙分户的结构。
50、开间指的是:一间房屋内一面墙的定位轴线到另一面墙的定位轴线之间的实际距离。
华润外滩瑞府
售楼处电话☎:400-998-9694✔✔
如有问题欢迎来电咨询,来电即可享受买房优惠!
预约来电尊享购房优惠,可预约案场内部销售人员,专业一对一热情服务,让您用专业眼光去买房。
华润外滩瑞府售楼处电话☎:400-998-9694✔✔
楼盘项目全面介绍,本电话为开发商提供线上预约售楼电话,楼盘项目全面介绍(包含楼盘简介,均价,房价,现房,期房,别墅,叠墅,大平层,价格,楼盘地址,户型图,交通规划,备案价,备案名,项目配套,样板间,开盘时间,认筹时间,楼盘详情,售楼处电话,最新消息,最新详情,周边配套,一房一价,最新进展等详情咨询)楼盘详情丨价格丨更多优惠丨机不可失丨欢迎致电丨诚邀品鉴!售楼处位置丨特价房丨工抵房丨剩余房源丨户型图丨最新消息丨免责声明:将文章内容综合来源于网络、只作分享,版权归原作者所有!!如有侵权,请联系我们,我们第一时间处理如有问题欢迎来电咨询,专业一对一热情服务,让您用专业眼光去买房。如果您想了解更多楼盘详情,欢迎提前预约拨打