金色宝邸(售楼处)首页网站-金色宝邸销售中心(营销中心)-金色宝邸售楼处电话-户型-价格-开盘时间-楼盘详情-周边配套金色宝邸得房率
扫描到手机,新闻随时看
扫一扫,用手机看文章
更加方便分享给朋友
金色宝邸售楼处电话:400-8878-824
金色宝邸营销中心热线400-887-8824(官方预约看房热线)
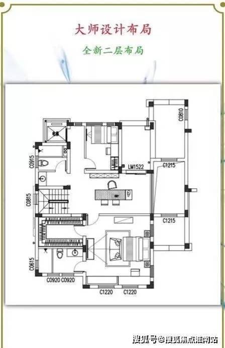
55席臻藏现房销售
金色宝邸售楼处电话:400-8878-824
金色宝邸营销中心热线400-887-8824(官方预约看房热线)
金色宝邸售楼处电话:400-8878-824
金色宝邸营销中心热线400-887-8824(官方预约看房热线)
金色宝邸售楼处电话:4008878824【售楼中心热线】金色宝邸营销中心热线400-887-8824金色宝邸售楼处地址400-8878-824,楼盘项目全面介绍,本电话为开发商提供线上预约售楼电话,楼盘项目全面介绍(包含楼盘简介,均价,房价,现房,期房,别墅,叠墅,大平层,价格,楼盘地址,户型图,交通规划,备案价,备案名,项目配套,样板间,开盘时间,认筹时间,楼盘详情,售楼处电话,最新消息,最新详情,周边配套,一房一价,最新进展等详情咨询)楼盘详情丨价格丨更多优惠丨机不可失丨欢迎致电丨诚邀品鉴!售楼处位置丨特价房丨工抵房丨剩余房源丨户型图丨最新消息丨免责声明:将文章内容综合来源于网络、只作分享,版权归原作者所有!!如有侵权,请联系我们,我们第一时间处理如有问题欢迎来电咨询,专业一对一热情服务,让您用专业眼光去买房。如果您想了解更多楼盘详情,欢迎提前预约拨打金色宝邸售楼处电话400-887-8824
声明:本文由入驻焦点开放平台的作者撰写,除焦点官方账号外,观点仅代表作者本人,不代表焦点立场。
