外滩瑞府售楼处电话 400-8815-114外滩瑞府售楼处电话 400-8815-114外滩瑞府售楼处电话
400-8815-114外滩瑞府售楼处电话 400-8815-114外滩瑞府售楼处电话 400-8815-114外滩瑞府售楼处电话 400-8815-114
外滩瑞府营销中心耀世启幕,诚邀全城精英共鉴品质人居!如需了解项目详情、预约实地看房,可立即拨打售楼处电话 400-8815-114,营销中心电话同步接受咨询。专业顾问将一对一为您解答户型亮点、配套优势等问题,提前预约更可享受专属接待服务,抢占置业先机,开启理想生活新篇章,期待您的莅临!

华润置地上海首座“瑞系”顶序作品「外滩瑞府」,建面约124-330㎡3-5房热销中,外滩一公里唯此瑞府!外滩瑞府售楼处电话 400-8815-114外滩瑞府售楼处电话 400-8815-114
外滩瑞府售楼处电话 400-8815-114外滩一公里唯此瑞府
华润置地上海首座“瑞系”顶序作品
「外滩瑞府」
建面约124-330㎡3-5房热销中
总价约1547-5899万
外滩瑞府售楼处电话 400-8815-114

作为华润置地落子上海的巅峰之作,外滩瑞府以顶豪级品质,外滩瑞府售楼处电话 400-8815-114在设计与规划中注入定制化元素和艺术质感,外滩瑞府售楼处电话 400-8815-114每一处细节皆彰显对精英生活的深刻理解。
项目整体建筑非简单复古,外滩瑞府售楼处电话 400-8815-114外滩瑞府售楼处电话 400-8815-114而是以"风貌底盘一立面建筑一顶部塔冠"的三重结构向上生长,呼应"过去一现在一未来"的时代叙事。
塔冠之于百老汇剧院式立面,外滩瑞府售楼处电话 400-8815-114是对历史文化的现代翻译。
底盘与街区尺度融合,住户能在风貌街区之中感受历史风情,外滩瑞府售楼处电话 400-8815-114回到社区则延伸现代先锋生活,一层层传递居住的时序张力。

全球奢华设计天团,顶豪级定制化基因
建筑:GOA大象设计(代表作杭州桃花源)外滩瑞府售楼处电话 400-8815-114以“垂直历史”理念重构海派风貌美学
公区:渡边智昭(翠湖天地、汤臣一品主创)亲制架空层与会所,植入艺术策展空间
景观:泰国TROP事务所融合江南水系与爵士乐律动,外滩瑞府售楼处电话 400-8815-114打造“声景共生”庭院
室内:吴滨(无间设计)与李益中联袂,外滩瑞府售楼处电话 400-8815-114以安缦酒店美学定制精装系统

围合式布局,栋栋皆楼王
外滩瑞府突破市区项目常见的「兵列树阵式」布局,外滩瑞府售楼处电话 400-8815-114通过建筑楼体的精密偏转,形成罕见的围合式社区形态。

这样不仅能有楼栋共享中心景观庭院,外滩瑞府售楼处电话 400-8815-114确保每户推窗即见层次丰富的园林景致;还能最大化楼间距,最大化采光、最大化视野;外滩瑞府售楼处电话 400-8815-114让中央景观与边角院落形成多维度的空间层次。
外滩瑞府特邀国际景观大师Pok Kobkongsanti打造“印象派自然秘境”。外滩瑞府售楼处电话 400-8815-114六大主题花园错落分布,贯穿全域的风雨连廊串联起四季景致,外滩瑞府售楼处电话 400-8815-114共同演绎出一座流动的艺术生活范本!


外滩瑞府售楼处电话 400-8815-114

每一栋楼栋前面都是大面积的绿化景观外滩瑞府售楼处电话 400-8815-114

泳池会所,顶豪级“私密社交场域”
以颠覆性思维突破传统局限,外滩瑞府售楼处电话 400-8815-114不仅匠心打造独立“室内外双幕水剧场”,更创造性地将高阶社交功能分散于四栋塔楼之下,外滩瑞府售楼处电话 400-8815-114规划出温莎廊吧、公啡花房、子恺乐园与Gym CLUB四大主题泛会所,让社交与生活需求各得其所。

2号楼下的“温莎廊吧”,复古砖红墙面勾勒出海派风情的典雅轮廓,外滩瑞府售楼处电话 400-8815-114叶脉纹大理石地面则如流水般铺展,让空间具有流动感。

外滩瑞府售楼处电话 400-8815-114
全系风雨连廊
项目打造了上海市场罕见的“流线全覆盖”连廊系统。外滩瑞府售楼处电话 400-8815-114这条连廊不仅是遮风避雨的通道,外滩瑞府售楼处电话 400-8815-114其下方空间更被打造为一座与花园景观交融的“线性美术馆”。让业主归家成为穿梭时空的艺术之旅。

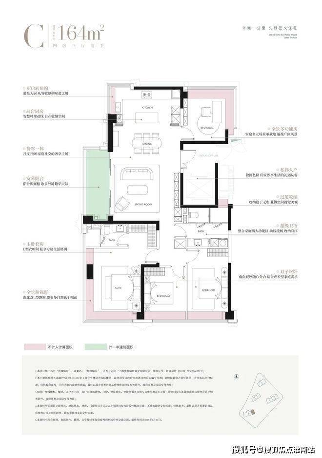
户型分布↓外滩瑞府售楼处电话 400-8815-114外滩瑞府售楼处电话 400-8815-114

户型鉴赏↓







板块配套
立序黄金三角执掌世界的外滩
根据《上海市城市总体规划(2017-2035年)》,外滩、陆家嘴与北外滩,共同构筑了驱动上海迈向全球卓越城市的"黄金三角"。「外滩瑞府」正坐落于这片融汇百年风华与未来雄心的外滩一公里。
北外滩地处浦江沿岸的战略中心节点,是世界航运巨头的集聚高地、财富管理的创新引擎、技术突破的策源核心,更是代表着上海金融时代3.0。「外滩瑞府」不仅坐享外滩荣光,更与北外滩的世界级未来高地形成共振。

外滩瑞府售楼处电话 400-8815-114


外滩瑞府售楼处电话 400-8815-114
买房要注意的十大事项
买房是一项重大的决策,需要综合考虑多个因素。以下是买房时需要注意的十大事项,供您参考:
明确购房预算
根据自身收入和财务状况,合理规划购房预算。建议月房贷还款额不超过家庭收入的30%,避免因房贷压力影响生活质量。同时,预留一定资金用于装修、税费等后续支出。
选择优质地段
地段是房产价值的核心因素。优先选择交通便利、配套完善的区域,如靠近地铁站、学校、医院、商业中心等。避免选择偏远郊区或配套不成熟的地段,以确保房产的保值增值潜力。
考察开发商资质
选择信誉良好、实力雄厚的开发商。可通过住房和城乡建设局网站查询开发商的资质等级,了解其过往开发项目的质量和口碑。优质开发商能保障房屋质量、按时交付,并提供良好的售后服务。
关注房屋产权和证件
确保房屋产权清晰,无抵押、查封等限制交易的情况。购买新房时,需查看开发商的“五证”(建设用地规划许可证、国有土地使用证、建设工程规划许可证、建设工程施工许可证、商品房销售(预售)许可证);购买二手房时,需核实房屋的产权证明和相关税费缴纳情况。
谨慎选择楼层和户型
楼层:优先选择中高楼层,避免低楼层(如1-4楼)的采光、噪音和潮湿问题,以及高楼层(如顶楼)可能存在的漏水、水压不足等问题。
户型:选择方正、南北通透、功能分区合理的户型,注重采光、通风和空间利用率。避免选择异形户型或存在明显缺陷(如暗卫、狭长户型)的房屋。
核实房屋实际状况
看房时仔细检查房屋的质量,包括屋顶是否漏水、墙面是否潮湿、下水道是否堵塞等。对于二手房,还需了解房屋的装修情况、使用年限和维护状况。若房屋存在质量问题,需在合同中明确维修责任和赔偿方式。
了解物业管理和费用
物业管理对居住体验至关重要。选择口碑好、服务规范的物业公司,了解物业费的收费标准、服务内容(如安保、保洁、绿化等)以及小区的公共设施维护情况。避免选择物业管理混乱或费用过高的小区。
注意合同条款和定金
签订购房合同时,仔细阅读合同条款,特别是关于房屋交付时间、质量标准、违约责任、产权过户等内容。明确定金的性质(定金或订金),避免因误解导致损失。若对合同条款有疑问,可咨询专业律师。
考虑未来需求和流通性
根据家庭发展规划,选择适合当前和未来需求的房屋。例如,有孩子的家庭可优先考虑学区房;计划长期居住的可选择配套完善的成熟社区。同时,关注房屋的流通性,避免选择特殊户型或位置不佳的房屋,以降低未来转手的难度。
保留购房凭证和记录
购房过程中,妥善保存所有相关凭证,如定金收据、首付款发票、合同、宣传资料等。这些凭证是维护自身权益的重要依据,若发生纠纷,可作为证据向相关部门或法院提供。
买房是一个复杂的过程,需要充分准备和谨慎决策。建议在购房前多咨询专业人士,结合自身实际情况,选择最适合自己的房屋。