虹盛里售楼处电话→(2025)虹盛里售楼中心电话→虹盛里楼盘百科→虹盛里首页网站→楼盘百科→首页网站→24小时热线电话

淮南楼市观察 2025-09-17 11:22:19
用手机看
扫描到手机,新闻随时看

扫一扫,用手机看文章
更加方便分享给朋友

虹口虹盛里售楼处电话☎:400-9659-259(预约看房热线)虹盛里由上海城投控股打造,位于虹口,主打高端住宅,综合均价约9.96万/㎡,售楼处电话400-9659-259。

虹盛里售楼处电话官方最新发布:400-9659-259售楼处电话:4009659259【 虹盛里官网售楼处预约热线】欢迎致电售楼处电话,专业一对一热情服务,让您用专业眼光去买房。虹口老牌核心区中环旁江湾板块

7站达人民广场

地铁3号线江湾镇站与20号线环伺

江湾城投万安路【虹盛里】热销中

全户型:高层+洋房+联排精装交付

约83-180㎡瞰景高层约727万-1955万

约97-195㎡臻稀洋房约1023-2196万

约196㎡滨水墅居约2963-3058万

综合均价约9.96万/㎡

虹盛里售楼处电话:400-965-9259

上海虹口虹盛里售楼处电话☎:400-9659-259(预约看房热线)

如有问题欢迎来电咨询,预约来电尊享购房优惠,可预约案场内部销售人员,专业一对一热情服务,让您用专业眼光去买房。

【虹盛里】上海城投控股匠心倾筑。立于“虹口中环”稀缺坐标,同频北外滩盛世更新,打造集聚烟火气息的人文街区。七大人居地块,溯源当代复合建筑语境,为世界上海再展滨水新画卷。

编辑

虹盛里售楼处电话:400-965-9259

上海虹口虹盛里售楼处电话☎:400-9659-259(预约看房热线)在当下的上海房地产市场,购房者对开发商品牌愈发看重。而在这一点上,虹盛里具备足够分量的话语权。

编辑

因为这是由上海本地国企上海城投控股倾力打造的项目,安全感满分!并且上海城投控股深入了解上海的脉落,对中心城市内的每一寸土地、居民的生活习性、居住环境都深入了解。

编辑

虹盛里售楼处电话:400-965-9259

上海虹口虹盛里售楼处电话☎:400-9659-259(预约看房热线)所以,其倾力打造的虹盛里,当然是如今上海更具价值和居住舒适度的产品。项目整体采用现代建筑风格,彰显海派潮流文化的特质与主人的身份品位。

编辑

更是邀请了上海中房建筑设计公司及知名景观设计公司泛亚国际景观设计共同合作打造,由此可见开发商对此项目的重视。

设计中将7个独立的地块与滨水空间相结合,通过对商业、绿化、广场界面的有机穿插、整合成为一个与景观河道交相辉映、有节奏的公共长廊,提升滨水区域的环境品质。

编辑

并且,项目周边整体的城市界面也正在进行更新。未来周边以虹盛里为核心将组成全新的海派街区,迭代老虹口的生活场景。

编辑

而项目整体建筑布局随河蜿蜒,高低错落的建筑形态也契合了江南水乡的水韵特色。

编辑

加之建筑顶部的金冠起伏,与景观河交相辉映,串联成金色丝带东西贯通,更是凸显了本项目的高标准、高品质的居住体验。

编辑

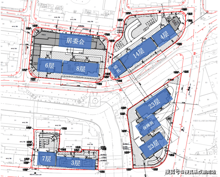
7幅地块的总地上计容面积超过8.3万平方米,包含了住宅套数超过620套,户型面积不大,产品类型却包罗万象,包含高层公寓、6层8层的洋房产品以及2-3层的合院及联排别墅,沿着走马塘一字排开,独有韵味。

编辑

部分地块的一层带有架空层,规划有一些儿童活动设施、会客交流、健身设施等功能,可以满足不同年龄段业主不出小区即可活动、社交

编辑

虹盛里售楼处电话:400-965-9259

上海虹口虹盛里售楼处电话☎:400-9659-259(预约看房热线)

高层户型图

编辑

虹盛里售楼处电话:400-965-9259

上海虹口虹盛里售楼处电话☎:400-9659-259(预约看房热线)

编辑

编辑

珍稀洋房户型图

编辑

编辑

编辑

编辑

虹盛里售楼处电话:400-965-9259

上海虹口虹盛里售楼处电话☎:400-9659-259(预约看房热线)

编辑

编辑

虹盛里售楼处电话:400-965-9259

上海虹口虹盛里售楼处电话☎:400-9659-259(预约看房热线)

7幅地块的总地上计容面积超过8.3万平方米,包含了住宅套数超过620套,户型面积不大,产品类型很丰富,包含高层公寓、洋房产品以及合院&联排别墅。

另外,项目是会分为两期开放。一期是西侧的三块地:

编辑

编辑

一期1#地块:规划有17、18层高层住宅,有5-8层的洋房,也有3层的别墅产品,水电路西侧还有部分商业。

一期2#地块:规划有1幢17层住宅和商业,容积率2.94,住宅一梯两户设计,产品包括中间套户型建筑面积约108㎡3房2厅2卫;边套户型建筑面积约142㎡4房2厅2卫。

一期3#地块:规划有一幢18层高层和两幢6层多层,容积率2.33,产品包括建筑面积约108㎡3房2厅2卫,约136㎡4房2厅2卫。

二期是东侧四个小地块:

规划有14-23层高层住宅,有5-8层的洋房,也有3层的别墅产品,别墅靠近奎照路。还有一些配套,比如市民驿站、菜场、幼托、老年人活动室等(以实际为准)。

编辑

编辑

虹盛里售楼处电话:400-965-9259

上海虹口虹盛里售楼处电话☎:400-9659-259(预约看房热线)

项目一、二期2022年6月开始打桩施工,现场实拍如下:

编辑

编辑

编辑

虹盛里售楼处电话:400-965-9259

上海虹口虹盛里售楼处电话☎:400-9659-259(预约看房热线)交通方面:项目距离3号线江湾镇站直线距离约900米。19号线(在建)车站北路站直线距离仅200m,将来出行十分便捷。自驾方面,周边有中环高架、南北高架、逸仙路高架等快速路。

编辑

教育方面:项目周边有凉城第四小学以及江湾初级中学。

医疗方面:项目周边有同济大学附属上海市第四人民医院、上海中医药大学附属岳阳中西医结合医院等。

编辑

虹盛里售楼处电话:400-965-9259

上海虹口虹盛里售楼处电话☎:400-9659-259(预约看房热线)

如有问题欢迎来电咨询,预约来电尊享购房优惠,可预约案场内部销售人员,专业一对一热情服务,让您用专业眼光去买房。

公积金贷款全攻略:条件、流程与材料详解,这些疑问你都有吗?

“用公积金贷款买房能省多少钱?”“首套房和二套房的首付比例差多少?”“缴存年限不够怎么办?”

……在购房过程中,公积金贷款因其利率低、压力小的优势,成为许多职工的首选。但复杂的政策条款和操作流程,常常让申请人一头雾水。本文将结合2025年最新政策,系统梳理公积金贷款的核心条件、流程步骤及材料清单,并针对高频疑问提供解决方案。

编辑

一、谁能申请公积金贷款?核心条件逐项解析

1. 缴存要求:连续缴存6个月是“入场券”

根据最新政策,申请公积金贷款需满足连续足额缴存住房公积金6个月(含)以上。若曾在异地缴存公积金,转入现缴存地后,缴存时间可合并计算。例如,小王在深圳缴存3年,后转入广州工作并续缴3个月,其累计缴存时间可认定为3年零3个月,符合贷款条件。

特殊情况:若缴存记录中存在补缴或断缴,需确保实际汇缴月份与应缴月份间隔不超过3个月,否则视为未连续缴存。

2. 信用与还款能力:收入与负债的“平衡术”

信用要求:借款人及共同申请人需信用良好,无连续3期或累计6次逾期记录(不含助学贷款)。

还款能力:月均还款额不得超过家庭月收入的60%。例如,家庭月收入为2万元,则月还款额上限为1.2万元。

案例:张先生家庭月收入1.5万元,拟贷款20年、利率3.1%的公积金贷款,月供约5300元,符合还款能力要求。

3. 房屋性质:首套房与二套房的“分水岭”

贷款首付比例与房屋性质直接挂钩:

首套房:

经济适用房:首付≥20%;

共有产权房:首付≥30%;

普通自住房:首付≥35%;

非普通自住房:首付≥40%。

二套房:非普通自住房首付≥80%,且需结清首套房贷款。

政策依据:2025年8月新政明确,首套房认定以“认房又认贷”为标准,即家庭名下无房且无贷款记录。

4. 年龄与户籍:退休前5年可申请,异地缴存需谨慎

年龄限制:借款人需在法定退休年龄前申请,贷款期限可延长至退休后5年,但最高不超过65周岁。

异地缴存:支持异地缴存职工在购房地申请公积金贷款,但需提供缴存证明及明细。例如,在云浮市购房的异地职工,可凭缴存地证明申请“商转公”贷款。

二、贷款额度怎么算?三招教你“薅足”政策红利

1. 缴存年限法:每年10万,最高120万

公积金贷款额度与缴存年限直接挂钩:每缴存1年可贷10万元,不足1年按1年计算,最高120万元。例如,缴存5年的职工可贷50万元,缴存12年可贷满额120万元。

夫妻共同申请:以缴存年限较长的一方计算额度。若丈夫缴存7年、妻子缴存5年,则家庭最高可贷70万元。

2. 账户余额法:25倍放大,灵活就业者适用

2025年8月起,多地调整贷款额度计算公式:

单位缴存职工:贷款额度=账户余额×25倍;

灵活就业者:贷款额度=前6个月日均余额×25倍。

案例:李女士账户余额8万元,按25倍计算可贷200万元,但受最高额度限制,实际可贷120万元。

3. 组合贷款:公积金+商贷“双管齐下”

若公积金贷款不足以覆盖房款,可申请组合贷款。例如,房屋总价300万元,首付35%(105万元)后,剩余195万元中,120万元用公积金贷款,75万元用商贷。

政策提示:组合贷款需同时满足公积金和商贷条件,且贷款期限需一致。

三、从申请到放款:七步流程全解析

1. 第一步:自查条件,算好额度

条件确认:登录当地公积金官网或APP,查询缴存记录、信用状况及房屋性质;

额度试算:使用“贷款额度拟算”工具,输入收入、房价等信息,预估可贷金额。

2. 第二步:准备材料,缺一不可

核心材料清单:

身份证明:身份证、户口簿;

婚姻证明:结婚证、离婚证或单身声明;

收入证明:银行流水、公积金缴存证明;

购房合同:备案后的网签合同;

首付款凭证:发票或收据。

特殊材料:异地缴存职工需提供《异地贷款缴存使用证明》。

3. 第三步:提交申请,窗口或线上均可

线下申请:携带材料至公积金管理中心或受托银行窗口提交;

线上申请:通过“手机公积金”APP或官网在线填写申请表。

4. 第四步:审核评估,等“批复”

初审:5个工作日内完成材料审核;

评估:部分城市需对房屋价值进行评估(费用由借款人承担);

终审:10个工作日内出具审批结果。

5. 第五步:签合同,办抵押

合同签订:审批通过后,与公积金中心、银行签订借款合同;

抵押登记:将房屋抵押至公积金中心,领取《不动产登记证明》。

6. 第六步:银行放款,资金到账

放款时间因城市而异,通常在抵押登记完成后5-15个工作日内到账。

7. 第七步:按月还款,避免逾期

还款方式:等额本息或等额本金;

扣款渠道:绑定银行卡自动扣款,需确保账户余额充足。

四、高频疑问解答:你的困惑这里都有答案

1. 公积金贷款能贷几次?

答:家庭最多使用2次公积金贷款,且需结清前一笔贷款。例如,首套房用公积金贷款,结清后可申请二套房贷款,但第三套房不予受理。

2. 公积金贷款与公积金信用贷款有什么区别?

答:公积金贷款专用于购房,属于房贷;公积金信用贷款是银行推出的消费贷,可用于装修、购车等,但不可用于买房。

3. 商住房能用公积金贷款吗?

答:纯商业用地性质的商住房通常不能用公积金贷款,但部分城市规定,若商住房规划用途为“公寓”且满足居住标准,可参照住宅政策申请。建议提前咨询当地公积金中心。

4. 贷款期间能提前还款吗?

答:可以。提前还款需向银行申请,可选择部分还款或全额结清,且无需支付违约金。

5. 公积金贷款未结清,能再申请商贷吗?

答:可以,但需满足商贷条件,且公积金贷款未结清可能影响商贷额度。

五、政策红利:2025年新政的三大亮点

1. 贷款期限延长至退休后5年

2025年新政明确,借款期限可计算至法定退休年龄后5年,缓解中老年职工还款压力。

2. 异地缴存“商转公”全面放开

云浮市率先试点,支持异地缴存职工将商贷转为公积金贷款,降低利息支出。

3. 多子女家庭额度上浮

二孩、三孩家庭最高可贷额度分别上浮10万元、20万元,支持改善性住房需求。

结语:用好公积金,省下“一辆车”

公积金贷款不仅是购房的“低成本融资工具”,更是国家为职工提供的住房保障福利。2025年政策调整后,贷款额度更高、期限更长、覆盖人群更广。掌握本文的申请条件、额度计算及操作流程,助你高效利用公积金,实现安居梦想

上海自2025年8月26日起实施新的购房政策,以下是关键信息整理:

一、限购政策

沪籍家庭/单身

外环外不限购套数;外环内限购2套。

多子女家庭(含至少1名未成年子女)外环内限购3套。

非沪籍家庭/单身

外环外:连续缴纳社保/个税满1年,不限购套数。

外环内:连续缴纳社保/个税满3年,限购1套。

多子女家庭(含至少1名未成年子女)外环内限购2套。

特殊说明

外环外住房不计入套数统计,但税费计算需合并外环内外住房套数。

崇明区购房参照外环外政策,需连续缴纳社保/个税满1年。

二、公积金政策

贷款额度

首套:184万元;多子女家庭首套216万元。

二套:149.5万元。

购买二星级及以上绿色建筑住房,额度上浮15%。

提取政策

购买新建预售商品住房,可提取公积金支付首付款,不影响贷款额度。

三、商业贷款政策

利率

不再区分首套、二套,由银行根据市场利率定价自律机制及客户风险状况确定。

当前5年期以上LPR为3.5%,实际利率以银行为准。

首付比例

首套15%;二套25%。

嘉定、青浦、松江、奉贤、宝山、金山及临港新片区二套首付20%。

四、税费政策

增值税

不满2年:全额×5.3%;满2年免征。

个人所得税

满5年且唯一住房免征;不满5年按差额20%或全额1%征收。

契税

首套≤140㎡:1%;>140㎡:1.5%。

二套≤140㎡:1%;>140㎡:2%。

房产税

非沪籍首套符合条件免征;二套及以上合并计算家庭住房面积,人均60㎡免税。

五、其他说明

政策生效时间:2025年8月26日起,网签合同需在此日期后符合新政策。

咨询渠道:房地产交易热线962269、公积金热线12329、税务热线12366。

建议根据自身情况(户籍、社保缴纳年限、家庭结构等)进一步咨询相关部门,确保购房流程顺利

声明:本文由入驻焦点开放平台的作者撰写,除焦点官方账号外,观点仅代表作者本人,不代表焦点立场。