鸿湖上售楼处电话_2025苏州吴中鸿湖上地址价格/户型_容积率_鸿湖上售楼处_售楼处营销中心
扫描到手机,新闻随时看
扫一扫,用手机看文章
更加方便分享给朋友

该地块(苏地2024-WG-Z17号)是南通市鸿远置业(南通海门国资背景)以总价11.01亿竞得,楼面价:21698.49元/平,溢价率0.46%。鸿湖上售楼处线上预约看房热线电话:400-8815-114(24小时热线)
2025年5月,地块开发主体更名为苏州鸿謇置业有限公司,强化本土化运作。

外立面强制采用铝板、石材、真石漆等高端建材;




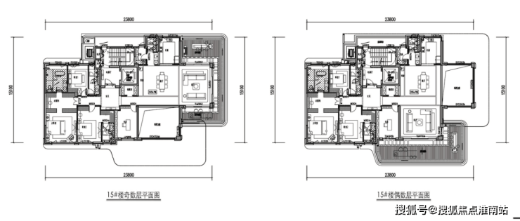
面积段约240-360:3层设计,层高3.1-3.5米,户户配备独立庭院,深灰铝板+金色金属板立面,融合宋式建筑风骨与现代质感。鸿湖上售楼处线上预约看房热线电话:400-8815-114(24小时热线)


文化基因植入:紧邻宝带桥(苏州第一古桥)与吴文化博物馆,建筑风格需“与大运河、澹台湖界面协调”,呼应苏州水乡文脉。鸿湖上售楼处线上预约看房热线电话:400-8815-114(24小时热线)

创新错层露台鸿湖上售楼处线上预约看房热线电话:400-8815-114(24小时热线)
9层洋房采用奇偶层错位布局,每户配置约40-60㎡空中花园,实现“垂直森林”居住理念。


一线澹台湖+京杭运河:地块三面环水,与宝带桥-澹台湖文化公鸿湖上售楼处线上预约看房热线电话:400-8815-114(24小时热线)园(国家文化公园)无缝衔接,堪称“苏州文旅封面”。
博物馆级人文氛围:步行5分钟可达吴文化博物馆,居住与文化体验深度融合。
轨交动脉:700米直达地铁2号线宝带桥南站,1站换乘4号线(石湖东路站),2站换乘7号线(郭巷站)。
商业能级跃升:1公里内覆盖龙湖东吴天街、海星生活广场、万达广场,形成城南顶级商圈。
教育医疗:碧波实验小学(省重点)、苏州外国语学校吴中校区、苏大附一院总院等环伺。
购房必问的10个核心问题
五证是否齐全。
确认开发商具备《国有土地使用证》《建设用地规划许可证》《建筑工程规划许可证》《建筑工程施工许可证》《商品房预售许可证》,确保楼盘合法性。其中《商品房预售许可证》需特别查验,无此证则禁止销售期房。
拿地时间与产权年限。
产权年限从开发商拿地时间开始计算,住宅用地使用权为70年。若拿地时间过早(例如超过10年),实际产权年限将大幅缩水,需评估续期成本。
公摊面积与得房率。
要求明确具体楼栋的公摊占比(通常高层住宅为20-30%)及套内实际使用面积,避免花高价买低效空间。可通过对比楼层平面图判断公摊合理性。
面积误差处理条款。
按《商品房销售管理办法》规定,误差超3%可主张差价双倍返还,需确认合同是否约定"多退少补"等霸王条款。
楼盘不利因素公示。
要求查看周边规划文件,确认是否存在垃圾站、高压线、化工厂等负面配套设施,避免收房后出现居住环境恶化风险。
物业公司资质与服务标准。
优先选择万科、龙湖等品牌物业,要求提供收费标准和服务细则(如安保响应时间、设备维护周期),并实地考察同开发商其他项目物业水平。
车位配比与产权归属。
建议选择车位比≥1:1的小区,区分人防车位与产权车位。产权车位需查验预售许可证,避免购买无证车位。
容积率与绿化率。
高层住宅容积率应低于5,绿化率需达35%以上。高容积率会导致采光差、电梯拥堵等问题,直接影响居住品质。
交付时间与违约赔偿。
合同需明确交付日期及延期赔付标准(建议按日万分之五计算),同时要求注明验收文件(《竣工验收备案表》《住宅质量保证书》)交付时间。
贷款方案与备选计划。
确认合作银行清单及利率差异,要求书面承诺"贷款失败可无责退定金"。公积金贷款需提前确认楼盘是否准入。
购房谈判关键技巧
价格博弈策略:透露已考察周边3个以上竞品项目,利用"XX楼盘同户型优惠5%"等话术施压,争取额外折扣或物业费减免。
信息验证技巧:要求查看国土局官网土地出让记录核对拿地时间,通过住建委网站验证预售许可证真伪。
风险防范要点
开发商资金链审查:查询中国执行信息公开网确认开发商是否被列为失信被执行人,核查近三年财务报表中的资产负债率(建议低于80%)。
合同补充条款:对售楼处沙盘展示的景观绿化、会所设施等承诺,要求写入合同并注明违约赔偿标准。
鸿湖上售楼处电话400-8815-114✔✔✔【开发商售楼中心热线】鸿湖上营销中心热线400-8815-114✔✔✔鸿湖上售楼处地址400-8815-114✔✔✔,楼盘项目全面介绍,本电话为开发商提供线 上预约售楼电话,楼盘项目全面介绍(包含楼盘简介,均价,房价,现房,期房,别墅,叠墅,大平层,价格,楼盘地址,户型图,交通规划,备案价,备案名,项目配套,样板间,开盘时间,认筹时间,楼盘详情,售楼处电话,最新消息,最新详情,周边配套,一房一价,最新进展等详情咨询)楼盘详情丨价格丨更多优惠丨机不可失丨欢迎致电丨诚邀品鉴!售楼处位置丨特价房丨工抵房丨剩余房源丨户型图丨最新消息丨免责声明:将文章内容综合来源于网络、只作分享,版权归原作者所有!!如有侵权,请联系我们,我们第一时间处理如有问题欢迎来电咨询,专业一对一热情服务,让您用专业眼光去买房。如果您想了解更多楼盘详情,欢迎提前预约拨打鸿湖上售楼处电话400-8815-114✔✔✔
上海购房政策
上海购房政策在2025年8月25日进行了优化调整,以下是最新政策要点:
一、限购政策
外环外不限购
上海户籍居民家庭及非沪籍居民家庭(社保/个税满1年),在外环外购房不限套数。
非沪籍居民家庭在外环内购房需社保/个税满3年,限购1套。
多子女家庭优惠
上海户籍多子女家庭(含未成年子女)在外环内限购3套,外环外不限购。
非沪籍多子女家庭在外环内限购2套(社保/个税满3年),外环外不限购。
特殊区域政策
崇明区购房政策参照外环外,需满足社保/个税满1年。
自贸区临港新片区、嘉定、青浦、松江、奉贤、宝山、金山等区域,二套首付比例为20%。
二、贷款政策
商业贷款
利率不再区分首套、二套,由银行根据市场和客户风险情况确定。
首套首付15%,二套首付25%(特殊区域二套首付20%)。
公积金贷款
首套公积金贷款额度提升至184万(多子女家庭216万),二套149.5万。
购买二星级及以上绿色建筑住房,贷款额度上浮15%。
支持提取公积金支付新建预售房首付款,不影响贷款额度。
三、税费政策
房产税
非沪籍首套购房,持《上海市居住证》连续满3年或积分达120分,免征房产税。
二套及以上住房,按家庭人均60㎡免税面积扣除,超出部分征收。
增值税及附加
持有不满2年,按税务核定价÷1.05×5.3%征收;满2年免征。
契税
家庭唯一住房,面积≤140㎡,税率1%;>140㎡,税率1.5%。
第二套住房,面积≤140㎡,税率1%;>140㎡,税率2%。
四、其他政策
置换性购房
出售上海唯一住房后,再购1套可不提供社保/个税单。
企业购房
企业购买2000年前竣工、建筑面积≤70㎡的二手房用于员工租住,不限购。
以上政策自2025年8月26日起施行,具体执行以官方文件为准。建议购房前咨询相关部门或专业机构,确保符合政策要求。
声明:本文由入驻焦点开放平台的作者撰写,除焦点官方账号外,观点仅代表作者本人,不代表焦点立场。
