浦东佰隽廷售楼处电话_2025上海浦东佰隽廷地址价格/户型_容积率_浦东佰隽廷售楼处_售楼处营销中心
扫描到手机,新闻随时看
扫一扫,用手机看文章
更加方便分享给朋友
@佰隽廷售楼处电话:400-9966-224®佰隽廷营销中心热线4009966224(官方预约看房热线)佰隽廷售楼处营销中心:400-9966-224[售楼处电话/地址]《楼市独家》最新消息:前滩全新盘——佰隽廷,户型图正式曝光,项目社区已经实景呈现,抄底金色中环的机会来了!
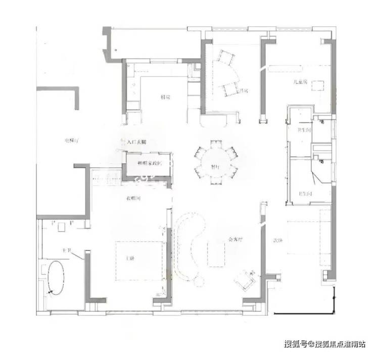
最新户型图过程稿如下👇
建面约177m²户型
建面约179m²户型
前滩三林滨江段向来宜居,生态优势得天独厚,绿地率达到了62%!直接将城市,搬进了森林!
约240公顷的三林楔形绿地,约等于2-3倍世纪公园绿地面积,未来将成为城市更新与生态宜居的实践样本,更将成为上海打造世界级滨水复合功能带和世界会客厅的重要组成部分。

滨江绿地实景图
而与西区相比,东区在享有生态绿地的同时,还有更完善的生活配套,就以佰隽廷为例,我们来看周边:
华润万象生活正式签约中企TOD
此前,中华企业x华润万象生活正式签约,中企的商办地块确定引入“万象汇”商业!
一直以来,华润置地对商业的择址要求就非常严苛,而万象汇更是重点关注一、二线城市以及强省会城市的核心区位!区域有一座万象汇,很大程度上将引领片区商业的升级!
这座万象汇就位于地铁上盖,平时下班去万象汇采购食材、或者和朋友约饭、看场大片首映会......吃喝玩乐一站式服务都能在家门口体验到!工作日往来的商务人士、日常的商业人流,会让这片区域的城市界面始终保持活力!更深层次上,大型ip商办能增强土地价值,反哺住宅,有助于提升整体区域形象!
除此之外,项目约3公里范围内,承接约350万前滩繁华商业、休闲、体育、文化配套!浦东还有哪个千万级左右的新盘,能做到如此丰盛的配套浓度?!
前滩太古里实景图
19号线草案公示、开始招标
佰隽廷,是个不折不扣的“三轨交汇”地铁盘!项目东侧凌兆新村地铁站除了一条能直通人广的8号线外,还有一条19号线和26号线!

凌兆新村三轨交汇示意图
其中,19号线去年动作频频,上半年完成了草案公示和开启招标,距离正式动工又近了一步!这条线路,因为经过北外滩、陆家嘴、世博、后滩、前滩等沿江板块,又被称为“轨交滨江线”,能级颇高,沿线34个车站,换乘站就有18个,妥妥的“轨交换乘王”!

19号线走向示意图
地铁远期规划中,凌兆新村还有26号线,极有可能是一条轨交中环大环线,串联江湾-五角场、张江、金桥等多个城市副中心,虹桥商务区、桃浦科技城、三林等多个城市重点发展区域!
坐拥三条高能级轨交的中企云萃森林,堪称“人生赢家”,整个项目的价值会随着未来轨交建成和通车愈发坚挺!
龙水南路越江隧道建设刷新“进度条”
联通浦东前滩和徐汇滨江的龙水南路越江隧道新建工程传来新进展:1标浦东段北线隧道顺利完成盾构始发!
龙水南路越江隧道示意图
龙水南路越江隧道重点服务浦东三林南部、前滩区域到上海南站、徐汇滨江、长桥等区域的中短距离交通,建成后可实现徐汇滨江核心区与浦东前滩地区的直接联系。
至此,从后滩、到前滩,就有了龙耀路、龙水南路、上中路、徐浦大桥四条跨江通道,进一步增强滨江两岸地区的交通便利性,更方便了前滩触及更多浦西核心CAZ和产业职能区!
可以说,这里一定是上海的核心地段,新房也一定是上海的核心资产!
8/19/26号线凌兆新村TOD
前滩全新盘【佰隽廷】
即将入市
@佰隽廷售楼处电话:400-9966-224®佰隽廷营销中心热线4009966224(官方预约看房热线)佰隽廷售楼处营销中心:400-9966-224[售楼处电话/地址]
佰隽廷售楼处电话:4009966224【售楼中心热线】佰隽廷营销中心热线400-996-6224佰隽廷售楼处地址400-9966-224,楼盘项目全面介绍,本电话为开发商提供线上预约售楼电话,楼盘项目全面介绍(包含楼盘简介,均价,房价,现房,期房,别墅,叠墅,大平层,价格,楼盘地址,户型图,交通规划,备案价,备案名,项目配套,样板间,开盘时间,认筹时间,楼盘详情,售楼处电话,最新消息,最新详情,周边配套,一房一价,最新进展等详情咨询)楼盘详情丨价格丨更多优惠丨机不可失丨欢迎致电丨诚邀品鉴!售楼处位置丨特价房丨工抵房丨剩余房源丨户型图丨最新消息丨免责声明:将文章内容综合来源于网络、只作分享,版权归原作者所有!!如有侵权,请联系我们,我们第一时间处理如有问题欢迎来电咨询,专业一对一热情服务,让您用专业眼光去买房。如果您想了解更多楼盘详情,欢迎提前预约拨打佰隽廷售楼处电话400-9966-224
声明:本文由入驻焦点开放平台的作者撰写,除焦点官方账号外,观点仅代表作者本人,不代表焦点立场。
