象屿·天宸雅颂(营销中心)首页网站-象屿·天宸雅颂(售楼处电话)-欢迎您-电话地址-价格-户型-小区环境-楼盘详情-交房时间-周边配套-售楼处电话
扫描到手机,新闻随时看
扫一扫,用手机看文章
更加方便分享给朋友
【象屿天宸雅颂】
上海闵行象屿天宸雅颂售楼处电话:400-8815-114(预约热线)
【象屿天宸雅颂】营销中心
服务热线:400-8815-114(已认证)
预约看房请提前联系驻场销售
「象屿·天宸雅颂」
前滩南·闵行浦江地铁8号线枢纽
建面约89-139㎡精装3-4房
均价60003元/㎡ 总价约550万起
售楼处火热预约中
2025年的上海楼市,注定被一个名字点燃——象屿·天宸雅颂!
4月29日,上海楼市目光聚焦南上海,「象屿·天宸雅颂」在万众期待中迎来盛大首开。房源一经推出,便引发抢购热潮,捷报频传,首开即实现热罄,以现象级热度成为上海高端住宅市场当之无愧的焦点,重新定义了高端人居的价值标准。
所有的潜心营造,只为今天盛启。
首开当日现场人潮涌动,人声鼎沸等候区座无虚席,火热的场面印证着高品质住宅的强大号召力。据了解,首开去化率91.9%,总销售金额达10.2亿。这场开盘盛典,不仅彰显了项目的强大吸引力,更让「象屿·天宸雅颂」成为南上海楼市焦点,开启品质人居新篇。
【象屿·天宸雅颂】首开告捷,一房难求。为回应市场热情,二批次房源加推在即,再启沪上高端人居热势。
上海闵行象屿天宸雅颂
售楼处电话:400-8815-114(预约热线)
【象屿天宸雅颂】营销中心
服务热线:400-8815-114(已认证)
预约看房请提前联系驻场销售
项目一房一价表▼
小高层为89/102/107/128/139平(89-107为3房,128-139为4房);
叠加预计145-156平,联排预计190-230平,(具体户型和面积以实际为准)。
建面约89㎡ 3房2厅1卫▼
建面约107㎡ 3房2厅2卫▼
上海闵行象屿天宸雅颂
售楼处电话:400-8815-114(预约热线)
【象屿天宸雅颂】营销中心
服务热线:400-8815-114(已认证)
预约看房请提前联系驻场销售
建面约107㎡ 样板间实拍▼
上海闵行象屿天宸雅颂
售楼处电话:400-8815-114(预约热线)
【象屿天宸雅颂】营销中心
服务热线:400-8815-114(已认证)
预约看房请提前联系驻场销售
建面约128㎡ 3房2厅2卫▼
建面约128㎡ 样板间实拍▼
项目建面约128㎡4房同样出彩。
延续3S墙和双270°全景双舱亮点的同时,尺度感极大提升,南向四开间,保证了更充沛的阳光。
客餐厅+超大尺度阳台贯穿南北,进门视野无遮挡,大宅气度油然而生!
上海闵行象屿天宸雅颂
售楼处电话:400-8815-114(预约热线)
【象屿天宸雅颂】营销中心
服务热线:400-8815-114(已认证)
预约看房请提前联系驻场销售
建面约139㎡ 4房2厅2卫▼
项目建面约139㎡4房则是集大成的终极改善户型。
该户型是独立电梯入户,保证了业主的私密性和尊崇感!
不止是四开间朝南,更是大宽厅设计,采光无敌。
飘窗数量来到了惊人的7个:4个房间、2个卫生间、还有厨房,仅飘窗带来的灵动空间就秒杀同面积段其他产品,要知道这个户型还配备了超大尺度的阳台!
项目高层户型硬核,装修更硬核!
据销售人员透露,大件方面,项目中央空调/地暖两联供、新风系统一应俱全。
厨房方面,除了灶具、吸油烟机等常规配置,还将加配蒸烤一体机、洗碗机、冰箱和厨房凉霸,全方位提升便捷性和品质感。
卫生间方面,项目洗脸盆、座便器、淋浴龙头或直接上豪宅专属唯宝品牌(或同等档次品牌)。
从选材、选牌到施工工艺,项目装修每个环节都非常考究,呈现的居住品质足以媲美其他市区千万级豪宅!
另外,项目使用了智能化系统,从社区到单元门和入户整体的无接触归家,单元门自动呼梯到户内装标配置的智能化系统,为业主带来全方位的科技便捷生活!
上海闵行象屿天宸雅颂
售楼处电话:400-8815-114(预约热线)
【象屿天宸雅颂】营销中心
服务热线:400-8815-114(已认证)
预约看房请提前联系驻场销售

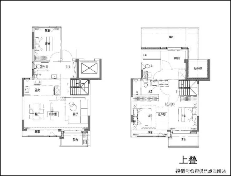
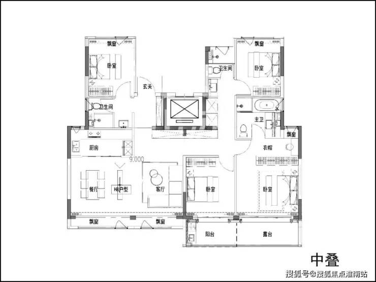
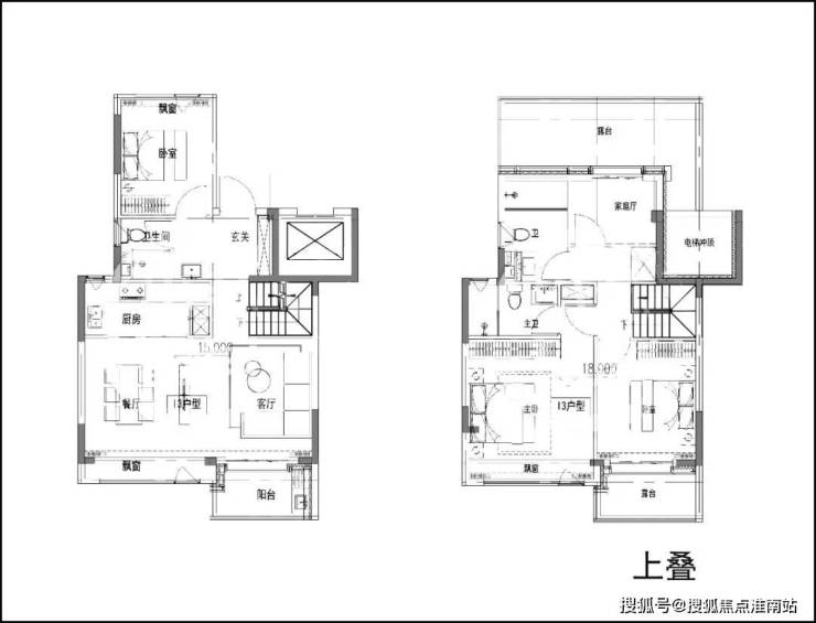
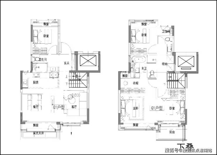
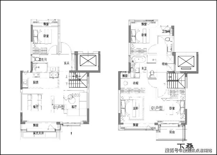
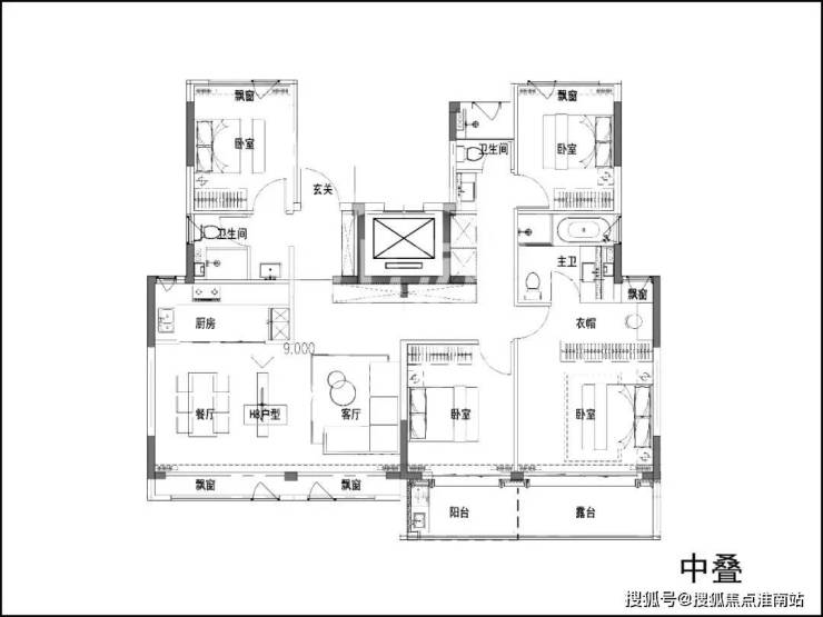
叠墅户型图如下所示:
(过程稿仅供参考,最终以实际为准)
上海闵行象屿天宸雅颂
售楼处电话:400-8815-114(预约热线)
【象屿天宸雅颂】营销中心
服务热线:400-8815-114(已认证)
预约看房请提前联系驻场销售
项目基本信息
去年10月25日,上海市第六批涉住地块供地中,闵行区MHP0-1316单元01-03、01-02、03-02地块,东至浦星公路,南至姚家浜,西至大寨河,北至昌林路。
项目分为三个住宅地块开发,提供建面约89-140㎡的3-4房户型。
01-02地块规划约524套可售住宅,无保障房拟建8栋17-18F高层住宅。
以及若干社区配套用房,全部为两梯四户带连廊;地面无车位,全人车分流,规划有风雨连廊以及大量的架空层,预计打造泛会所概念(公共活动空间);
01-03地块规划约466套可售住宅
地块拟建9栋17-18F高层住宅、1栋20F保障房以及若干社区配套用房;其中1#为两梯三户带连廊、4#、6#、8#为一梯两户,其余楼栋为两梯四户带连廊;
03-02地块为别墅产品,其中叠墅约147套,联排约35套。
该地块拟建4栋7F多层住宅、4栋4F住宅、5栋3F多层住宅以及若干社区配套用房,其中4-7F住宅为叠墅,3F住宅为联排。
项目产品信息
产品力卷出天际,600万级预算越级享受千万级豪宅品质的机会!
项目实景呈现的硬核品质和超高颜值比起市区千万级的豪宅有过之而无不及!
项目恢弘大气的门头,项目设计师以浮岛为灵感,将几根立柱化作悬浮的雕塑,撑起一片轻盈的仪式感。
门头顶部的500多片镂空透光铝板雕花花瓣,皆由项目LOGO精琢演化而来。当阳光倾泻,光与影在镂空间起舞,在地面织就一幅不断变幻的自然画作。这是3000万重金雕琢的细节,更是对品质的无声承诺。
它不仅是社区的入口,更是城市界面的艺术展馆 。当访客驻足,当业主归来,这道门,以当代美学重新定义归家即度假的奢适体验。
进门之后,恍若走进一幅立体绽放的画卷。地面采用了石材拼花,纹理如行云流水般舒展,在光影交错间勾勒出 低调的奢华。
最令人屏息的设计,莫过于倒置的花园,与传统墙上挂画或桌上摆花不同,这种反重力美学让视线不由自主地上扬,创造出仰视仙境的震撼体验。
穿过大堂可以走浪漫的旋转楼梯去到B1层的会所。从上往下看去,这个唯美的旋转楼梯像永生的花瓣,也像凝固的巴兰钦芭蕾。有一瞬间我仿佛感觉这不是楼梯,而是连接现实与诗意的时空隧道。
虽然目前开放的公区只有这些,但项目展现的品质已足够惊艳,让客户对于象屿·天宸雅颂其他地方的兑现充满期待。
比如,项目打造的约2500㎡下沉式会所,预计包含等泳池、健身房、瑜伽室、水吧台、私宴厅等功能,满足业主全龄多元需求。

另外,项目地上三分之二的楼栋有架空层,最高层高约4.5米,合计约3000㎡架空层作为泛会所,在室内外交叠过渡的空间中,以自然之景点缀,营造全龄共享的丰盛聚场。

再比如项目的外立面。
当其他外环外新房还在纠结用涂料还是真石漆,象屿·天宸雅颂直接上了对标千万级豪宅的铝板。精致的铝板装饰+通透大窗的美学立面设计(局部涂料),打造弧面窄框艺术之镜,将来无疑又是一道靓丽的风景线!

项目在园林景观方面结合郊野公园特色做的浮岛美学园林惊艳无比,层层递进的秩序之美,传递生活与归心的仪式感。让业主享受内外皆胜境的生态居住体验!
而且项目3个地块全部都是人车分流设计,开车归家的业主在社区外就直接进入车库,保证地面行人安全以及安静绿色的居住体验。
另外,项目用归家风雨连廊局部巧妙连接着高层核心景观节点和功能空间,让业主能重温“户外风雨连绵,廊下月华如水”的诗意瞬间。
全系神户型搭配魔鬼化细节装修!
项目预计首开建面约89-139㎡3-4房,尤其值得一提的是,项目户型采用“一生之宅”的理念设计,高层户型均设置可拓展空间,保证不同年龄段都可以进行不同功能调整。
上海闵行象屿天宸雅颂
售楼处电话:400-8815-114(预约热线)
【象屿天宸雅颂】营销中心
服务热线:400-8815-114(已认证)
预约看房请提前联系驻场销售
分户型来看:
①建面约89㎡3房2厅1卫户型:
这个建面约89㎡户型妥妥的性价比之选,预计总价500万级即可上车!
功能性上符合市场需求!同时利用科学的收纳和S墙设计保障了室内空间的井井有条,又通过大量飘窗和阳台等提升尺度感,尤其是厨房带飘窗!!!
②建面约107㎡3房2厅2卫户型:
这个建面约107㎡刷新了我对百平三房的新认知,据悉该户型或将申请专利,实至名归!
客厅的面宽被拉长到了约4.7米,呈现了可成长的X空间,适配更长家庭周期;
足足5个飘窗,3个卧室2个卫生间全部“扩容”,尤其是主卧、主卫双270°全景飘窗的设计前所未见,未来窗外郊野公园的胜境将一览无余。
建面约107㎡ 样板间实拍▼
该户型的收纳,大量S墙的设计简直见缝插针,极大的扩容了家的储物角落,消减了业主生活的繁琐。
首先是进门的3S墙设计,可以做出一个“700库”的超大收纳空间。原先的冰箱则挪到了厨房旁,不仅方便料理取用食材,侧面还设计了洞洞板,日常衣物、小包和挂件可以轻松摆放。
项目建面约128㎡4房同样出彩。
次卫的S墙则安排在了干湿分离的干区,算上台盆上面的收纳柜足以放下各类洗护用品。而且次卫台盆下方还预留了扫地机器人上下水。
北向卧室的S墙设计,则可以做成一整面的收纳架,书籍或玩具都有了足够的盛放空间。
最后一个S墙则是在主卧,等于直接增加了一个衣柜,直接击中了女主人的心趴!
③建面约128㎡4房2厅2卫户型
项目建面约128㎡4房户型延续了前作3S墙的设计,保证了收纳空间的丰富性。
上海闵行象屿天宸雅颂
售楼处电话:400-8815-114(预约热线)
【象屿天宸雅颂】营销中心
服务热线:400-8815-114(已认证)
预约看房请提前联系驻场销售
建面约128㎡户型此次开放了样板间,参观下来客户对该户型的厨房的配置和飘窗的设计赞不绝口。
首先厨房是半开放式的岛台,让整个公区的视野更开阔,尺度更具豪宅气度。其次敞开式的厨房能让家人沟通更顺畅,温馨感提升。最后,厨房的选品也是坚持使用主义,采购了方太的市售款,隐形油烟机颜值非常高,灶具和蒸烤箱则做了完全的联动。
另一个亮点则是主卧的双270°飘窗,整体的“实用”面积几乎大了一圈,通透性和采光性能也更上一层楼。有种花了标准款的钱买到PLUS产品的感觉。
上海闵行象屿天宸雅颂
售楼处电话:400-8815-114(预约热线)
【象屿天宸雅颂】营销中心
服务热线:400-8815-114(已认证)
预约看房请提前联系驻场销售
④建面约139㎡4房2厅2卫
项目建面约139㎡4房则是集大成的终极改善户型。该户型是独立电梯入户,保证了业主的私密性和尊崇感!不止是四开间朝南,更是大宽厅设计,采光无敌。
飘窗数量来到了惊人的7个:4个房间、2个卫生间、还有厨房,仅飘窗带来的灵动空间就秒杀同面积段其他产品,要知道这个户型还配备了超大尺度的阳台!
项目户型硬核,装修更硬核!
大件方面,项目日立中央空调/地暖两联供、格兰斯柯(或同等品牌)新风系统一应俱全。
厨房方面,除了灶具、吸油烟机等常规配置,还将加配方太(或同等品牌)蒸烤一体机、洗碗机,博世冰箱,以及线性凉霸,全方位提升便捷性和品质感。卫生间方面,项目洗脸盆、座便器、淋浴龙头或直接上豪宅专属唯宝品牌(或同等档次品牌)。
除了配置上不惜成本,项目的装修细节也十分人性化。比如,项目入户门选用的是铸铝门配耶鲁6合1智能门锁,安全性与便捷性兼具!
项目的厨房采用金属框+艺术玻璃移门,推拉丝滑颜值颇高!
项目全户型的阳台都做了灯光+隐藏式晾衣杆的吊顶方案,阳台边有按钮可以直接控制晾衣杆的下放和抬升。
项目的天地墙也是细节满满:天花板设计圆弧吊顶,工艺极高颜值自然不俗。客厅整块的背景墙充满质感,卫生间通顶的大面墙砖极抓眼球。客厅选用90*180大板砖恢弘大气,卧室采用人字拼地板,温馨港湾!
项目空调风口和户内门把手都是定制LOGO造型,颜值不俗的同时,也体现了项目对于品质与品牌的信心!
另外项目还使用了华为(或同等档次品牌)智能化系统,从社区到单元门和入户整体的无接触归家,单元门自动呼梯到户内装标配置的智能化系统,为业主带来全方位的科技便捷生活!
综合来看从选材、选牌到施工工艺,项目装修每个环节都非常考究,呈现的居住品质足以媲美其他市区千万级豪宅!
项目区位配套
浦江恒流,上海恒新。上海迈向卓越全球城市的进程,始终沿着黄浦江展开。黄浦江作为上海重要功能轴,至2035年将黄浦江沿岸打造成为彰显上海城市核心竞争力的黄金水岸和具有国际影响力的世界级城市会客厅。
作为上海中心城辐射区,闵行六大地区中心之一,前滩南门户,浦东四大城镇圈之一,浦江地区中心占据特有的平台区位优势。
新浦江中心沿袭闵东文创中心定位,以蓝绿环绕为基底,历史人文为内涵,产业更新为驱动,新浦江中心将衔接闵行与浦东新区,打造黄浦江沿岸崭新的生态交织、文化自信、产城融合能量聚集地。
新浦江新中心将围绕沈杜公路TOD打造创智总部湾、大型商业、艺术街区、文化展览、滨水码头、高端住宅等,以世界前沿Live-Work-PlayShop模式,为上海打造高度复合等职住平衡10分钟生活圈。
轨道交通方面:项目距离8号线沈杜公路站步行约350-600米左右,可快速直达前滩、陆家嘴等核心区域,也算是项目一大卖点;通过浦星公路可直接上南北高架,自驾出行也十分便捷!
商业配套方面:项目高层东侧规划约15万方的商业,该商业地块应于住宅一并打包出让,共同组成真正的TOD项目,但目前做了拆分!另外距离项目约3.3公里有浦江城市生活广场、绿地乐和城,约3.9公里有万达广场、4.4公里有浦江欢乐颂等商业!
教育资源方面:项目周边规划有一幅幼儿园用地,参考周边,未来项目对口浦江镇第二小学、第二中学的概率较大,教育资源一般;
另外在项目北侧规划有一所民办学校,该校舍建成后,将迁入上海市民办协和尚音学校(九年一贯制)、上海闵行协和海富幼儿园,由协和教育中心举办。
医疗资源方面:距离项目约4公里有仁济医院南院以及复旦大学附属眼耳鼻喉科医院。
生态资源方面:项目周边被浦江郊野公园环绕,低密宜居。
上海闵行象屿天宸雅颂售楼处电话:400-8815-114(预约热线)
【象屿天宸雅颂】营销中心
服务热线:400-8815-114(已认证)
预约看房请提前联系驻场销售
象屿天宸雅颂
——欢迎品鉴——
购房注意事项和流程
以下是购房的注意事项和流程,供您参考:
购房注意事项:
查看证件
购房前务必核实开发商的“五证一照”(《房地产开发企业资质证书》《国有土地使用权证》《建设工程规划许可证》《建筑工程施工许可证》《商品房预售许可证明》《企业法人营业执照》),确保项目合法合规。可通过售楼处公示或住建局官网查询。
实地考察
关注房屋实际面积、户型、朝向、采光、通风及周边环境(如交通、学校、医院、商业配套等)。
核实公摊面积、得房率、容积率等指标,避免被样板间误导。
了解小区规划、车位配比、物业服务质量及开发商口碑。
合同条款
仔细阅读购房合同,明确房屋价格、面积误差处理、交房时间、质量标准、违约责任等条款。
将开发商口头承诺(如赠送面积、配套设施等)以书面形式写入合同,避免纠纷。
警惕合同中的不公平条款,必要时咨询律师。
资金安全
所有购房款项(定金、首付、贷款等)必须存入《商品房预售许可证》上注明的预售资金监管账户,确保资金安全。
保留好付款凭证、收据等票据,作为后续办理房产证的依据。
贷款事宜
提前查询个人征信报告,确保信用良好,避免因征信问题导致贷款失败。
了解贷款政策、利率及还款能力,合理评估月供压力,建议月供不超过家庭月收入的30%。
收房验房
收房时查验“三书一证一表”(《住宅质量保证书》《住宅使用说明书》《建筑工程质量认定书》《房地产开发建设项目竣工综合验收合格证》《竣工验收备案表》)。
对房屋质量进行验收,如墙面、地面、水电、门窗等是否存在质量问题,如有问题及时要求开发商整改。
购房流程:
前期准备
确定购房预算、需求(如房屋类型、面积、位置等),了解当地购房政策。
通过房产网站、中介或实地考察筛选房源,对比不同楼盘的优缺点。
认购房源
选定房源后,与开发商签订《认购书》,缴纳定金(一般不超过总房款的20%)。
签订认购书前,可要求查看正式合同文本,确保条款无异议。
签订合同
在约定时间内签订《商品房买卖合同》,支付首付款。
合同签订后,开发商需在30日内进行网签备案,购房者可通过住建局官网查询备案状态。
贷款审批
如需贷款,向银行或公积金管理中心提交申请材料,银行审核通过后发放贷款。
贷款审批过程中,需配合银行提供相关资料,如收入证明、征信报告等。
房屋交付
开发商通知收房后,购房者进行验房,验收合格后办理入住手续,缴纳契税、维修基金等费用。
开发商协助购房者办理房产证,购房者需提供相关材料并缴纳相关税费。
产权登记
开发商完成房屋首次登记后,购房者办理产权转移登记,领取《不动产权证书》,至此购房流程完成。
购房过程中需保持谨慎,仔细核实各项信息,确保自身权益不受侵害。如有疑问,可咨询当地住建局、房管局或专业律师。
声明:本文由入驻焦点开放平台的作者撰写,除焦点官方账号外,观点仅代表作者本人,不代表焦点立场。
