华发四季听澜售楼处电话☎:400-998-9694华发四季听澜售楼处电话☎:400-998-9694华发四季听澜与旭辉建管Z40号地块推出纯墅区,低密、高端、圈层纯粹,吸引中产关注。
华发四季听澜
售楼处电话☎:400-998-9694
如有问题欢迎来电咨询,来电即可享受买房优惠!
预约来电尊享购房优惠,可预约案场内部销售人员,专业一对一热情服务,让您用专业眼光去买房。
华发四季听澜售楼处电话☎:400-998-9694
华发四季听澜售楼处电话☎:400-998-9694
这两年,园区新房门槛一路攀升,中产想在核心区安家,难度越来越大。
对此,不少人把目光投向了 “用时间换空间” 的近园区别墅项目。
其中比较典型的案例就是近园区的四季听澜,一条星济隧道直通湖西,加上高性价比别墅产品,让其屡创即开即罄的销售神话,很多客户只能陪跑…
如今在四季听澜南侧,又一纯别墅小区即将入市!
它就是——旭辉建管Z40号地块。
华发四季听澜售楼处电话☎:400-998-9694

在别墅的选择里,“纯粹” 二字,往往决定了居住的终极品质。
旭辉建管Z40号深谙此道,所以比起四季听澜“洋房+叠墅+联排”的混合社区,它从根源上就做到了碾压——
1.01的极致低密,全盘只做3F联排与4F叠墅,仅276户,没有杂糅的业态干扰,只有同等圈层的邻里,这份私密与纯粹本身就是稀缺的奢侈品。
华发四季听澜售楼处电话☎:400-998-9694

华发四季听澜售楼处电话☎:400-998-9694
更惊艳的是产品力的全面跃升。
作为板块内首座宋风纯墅区,它不仅带来骨子里的东方雅致,更配建高端会所,自带恒温泳池、私宴厅…每一处细节都彰显着居者的品味与身份。

效果图,后续如有变以最新为准
而圈层的纯粹性,更是无可替代的加分项。联排约220-260㎡、叠加约143-160的户型规划,注定了社区客群的高度纯粹。
华发四季听澜售楼处电话☎:400-998-9694
项目近日,项目批后公示出炉!这也意味着这座近园区的纯墅区入市的脚步又快了一步!
华发四季听澜售楼处电话☎:400-998-9694
下面我们直接来看产品。
Z40号地块由旭辉建管代建,此前旭辉建管已经在相城落地了好几个创新产品,比如溪前雅居、四代宅蠡棠森屿等都是叫好又叫座!
轮到此次Z40号地块,同样值得期待。
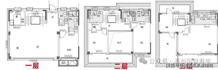
就在近日,项目批后公示出炉,联排与下叠户型同步曝光!
华发四季听澜售楼处电话☎:400-998-9694
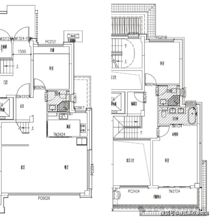
先看联排边户,测算面积约260㎡,地上3层+地下1层设计;地下室挑高约5米;地上3层,5房6卫,且为全明卫;
赠送面积很多,包括花园、阳台、露台、挑空等部分;

屋顶甚至还预留了阳光房框架。

华发四季听澜售楼处电话☎:400-998-9694
叠墅是4层真叠墅,分上下两叠,均带地下室,同样有大面积的挑空赠送!
目前仅公示了约160㎡下叠,经改造可做4房3卫。

华发四季听澜售楼处电话☎:400-998-9694
产品方面,项目将从规划、居住、形象、景观、体验5大维度进行产品升级,匠心打造当代新宋风美学院墅,以极致空间赠送,实现生活资源的尽大化享有。

华发四季听澜售楼处电话☎:400-998-9694
自带高端会所,设置有泳池,私宴厅等配套;会所就在小区北大门,未来也是业主的归家大堂。

华发四季听澜售楼处电话☎:400-998-9694
外立面首次曝光!传统宋式建筑的重檐、撺帘杆等元素,融入现代视觉手法,搭配大面积玻璃,豪宅感强烈!
效果图,后续如有变以最新为准


02
最后,我们再来看一下项目地段。
华发四季听澜售楼处电话☎:400-998-9694
位于相城太平街道,周边毗邻天然水系,坐拥多所优质学府,涵盖幼儿园至大学,已经形成一条完整而卓越的教育链。
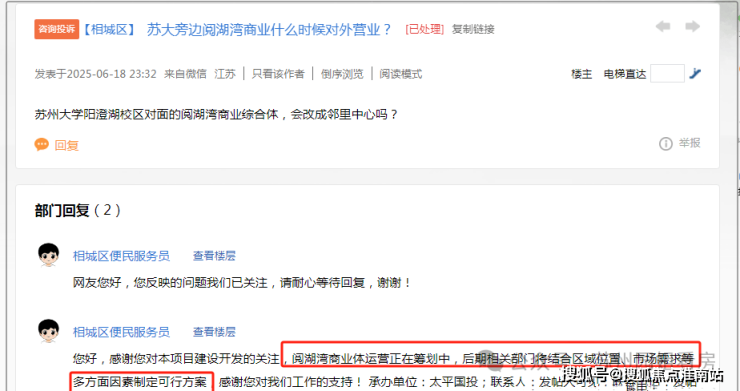
此外,一路之隔的阅湖湾商业也传来好好消息,据官方回复,商业体运营正在筹划中,相关部门正结合区域位置、市场需求等制定可行方案!

交通条件更是优秀,区域内有多条快速路畅达各大核心区;近地铁8号线,6站直达湖东时代广场;

华发四季听澜售楼处电话☎:400-998-9694
此外,约2个红绿灯即可进星济隧道(在建,预计2027年建成通车),未来一脚油门直达湖西CBD!真正一步园区!

华发四季听澜售楼处电话☎:400-998-9694
价格的话,参考四季听澜,联排预计680万左右,叠加预计430万左右。
注:价格仅为猜测,具体以官方备案为准
对比南侧千万总价的别墅组团,这块地价格优势还是很明显的!地缘及园区外溢改善客户可以重点关注。

1、什么是房产:房屋产权的简称。
2、什么是地产:是指土地财产。
3、什么是房地产:是房产和地产的总称。
4、什么是房地产业:从事房地产开发、建设、经营、管理以及维修、装饰和服务的综合性产业。
5、什么是房地产开发:是指在依法取得土地使用权的土地上按照使用性质的要求进行基础设施、房屋建筑的活动。
6、什么是土地开发:是将“生地”开发成可供使用的土地。
7、集体土地是指:农村集体所有的土地。
8、征用土地是指:国家为了公共利益的需要,可依照法律规定对集体所有的土地实行征用。
9、什么是土地所有权:是指国家或集体经济组织对国家土地和集体土地依法享有的占有、使用、收益和处分的权能。
10、什么是土地使用权的出让:指国家以协议、招标、拍卖的方式将土地所有权在一定年限内出让给土地使用者,由使用者向国家支付土地使用权出让金的行为。
11、什么是土地使用权转让:是指土地使用者通过出售、交换、赠与和继承的方式将土地使用权再转移的行为。
12、什么是地籍、产籍:是对在房地产调查登记过程产生的各种图表、证件等登记资料,经过整理、加工、分类而形成的图、档、卡、册等资料的总称。
13、生地是指:不具备开发条件的土地。
14、熟地是指:已完成三通一平(水、电、道路,土地平整)或七通一平,具备开发条件的土地。
15、什么是宗地:是地籍的最小单元,是指以权属界线组成的封闭地块。
16、什么是宗地图:是土地使用合同书附图及房地产登记卡附图。它反映一宗地的基本情况。包括:宗地权属界线、界址点位置、宗地内建筑位置与性质、与相邻宗地的关系等。
17、证书附图是指:房地产后面的附图,主要反映房地产情况及房地产所在宗地情况。
18、什么是物业管理:泛指一切有关房地产开发、经营、商品房销售、租赁及售后服务。
19、什么是业主委员会:是在物业管理区域内代表全体业主实施自治管理的组织。是代表
物业全体业主合法权益的社会团体,其合法权益受国家法律保护。
20、业主委员会是如何产生的:由业主大会从全体业主中选举产生。
21、住房补贴是指:国家为职工解决住房问题而给予的补贴资助。
22、房屋的所有权是指:对房屋全面支配的权利。
23、房地产交易的两种主要形式是:地产交易形式与房产交易形式。
24、建筑物是指:人工建造而成的房屋和构筑物。
25、构筑物是指:建筑物中除房屋以外的东西。
26、什么是期房:是指消费者在购买时不具备即买即可入住的商品房。
27、期房是如何介定的:房地产开发商拿到商品房预售许可证开始至取得房地产权证大产证或竣工验收合格可以直接入住使用)为止。
28、什么是预售合同:消费者在购买期房时签定的销售合同。
29、什么是现房:是指消费者在购买时具备即买即可入住的商品房,即开发商已办妥所售的商品房的大产证(或已经竣工验收合格并交付使用)的商品房。
30、什么是毛坯房:房地产商交付屋内只有门框没有门,墙面地面仅做基础处理而未做表面处理的房叫毛坯房。
31、什么是成品房:是指对墙面、天花、门套、地板实行装修。
32、什么是商品房:是指以完全的市场价格向购房者出售的房子。
33、商品房预售是指:在房地产尚未建成以前,房地产的经销商在取得受买人一定数量的定金后,将期房出售给受买人。
34、商品房现售是指:指房地产开发企业将竣工验收合格的商品房出售给买受人。
35、二手房通常指的是:再次进行买卖交易的住房。
36、经济适用房指的是:面向中低收入家庭的普通住宅。
37、例出3种以上的安居房的种类:准成本房、全成本房、全成本微利房和社会微利房。
38、低层住宅的介定:1-3层的住宅。
39、多层住宅的介定:4-6层的住宅。
40、小高层住宅的介定:7-11层的住宅。
41、中高层住宅的介定:12-16层的住宅。
42、高层住宅的介定:16层以上为高层住宅。
43、超高层建筑的介定:总高度超过100米的建筑。
44、商品房的结构是指:房屋主体所使用的施工工艺和用材。
45、钢结构的意思是:承重的主要结构是用钢材料建造的,包括悬索结构。
46、钢混结构的意思是:承重的主要结构是用钢和混凝上建造的。
47、砖木结构的意思是:承重的主要结构是用砖、木材建造的。
48、砖混结构的意思是:主要是砖墙承重,部分是钢盘混凝土承重的结构。
49、框架结构的意思是:以钢筋混凝土浇捣成承重梁柱,再用预制的隔墙分户的结构。
50、开间指的是:一间房屋内一面墙的定位轴线到另一面墙的定位轴线之间的实际距离。
华发四季听澜
售楼处电话☎:400-998-9694
如有问题欢迎来电咨询,来电即可享受买房优惠!
预约来电尊享购房优惠,可预约案场内部销售人员,专业一对一热情服务,让您用专业眼光去买房。
华发四季听澜售楼处电话☎:400-998-9694
楼盘项目全面介绍,本电话为开发商提供线上预约售楼电话,楼盘项目全面介绍(包含楼盘简介,均价,房价,现房,期房,别墅,叠墅,大平层,价格,楼盘地址,户型图,交通规划,备案价,备案名,项目配套,样板间,开盘时间,认筹时间,楼盘详情,售楼处电话,最新消息,最新详情,周边配套,一房一价,最新进展等详情咨询)楼盘详情丨价格丨更多优惠丨机不可失丨欢迎致电丨诚邀品鉴!售楼处位置丨特价房丨工抵房丨剩余房源丨户型图丨最新消息丨免责声明:将文章内容综合来源于网络、只作分享,版权归原作者所有!!如有侵权,请联系我们,我们第一时间处理如有问题欢迎来电咨询,专业一对一热情服务,让您用专业眼光去买房。如果您想了解更多楼盘详情,欢迎提前预约拨打