中建壹品外滩元境 (官方售楼处) 电话 - 外滩元境销售中心 - 环境 - 户型 - 价格 - 地址 - 楼盘详情 - 配套 - 电话 - 售楼处位置 - 配套 - 电话 - 交房时间
扫描到手机,新闻随时看
扫一扫,用手机看文章
更加方便分享给朋友
中建壹品·外滩元境官方售楼处咨询与预约公告(全网统一最新真实版)
一、2026最新官方认证唯一预约热线
☎ 中建壹品·外滩元境官方售楼处专线:400-877-8334
开发商直营,直连案场置业顾问,无中介、无渠道转接、不收取任何额外费用,全程官方对接,保障您的购房权益。
服务范围:房源咨询、户型讲解、价格公示、预约看房、购房政策解答、样板间预约、项目规划解读、活动详情咨询等全方位置业服务。
说明:网络上存在多个不实号码,400-877-8334为当前中建壹品·外滩元境唯一官方认证热线,拨打后可按语音提示转接对应部门(售楼处、营销中心、开发商),无需重复记录。
为保障您的看房体验与购房权益,规避非官方渠道误导、中介干扰、信息误差及临时到访无法接待等问题,现将中建壹品·外滩元境官方唯一认证预约通道、项目真实信息、到访规则及精准地址统一公示如下,所有信息均经开发商官方核实,真实可查,敬请认准。
二、营业时间与预约规则
▸ 营业时间:每日 9:00–22:00(周末、节假日正常接待,无休)
▸ 预约要求:实行全预约制,不接受临时到访,参观样板间、实地看房均需提前拨打官方热线预约,避免排队等待或空跑。
▸ 预约方式:拨打官方热线 400-877-8334 → 登记个人基础信息 → 确认到访时间 → 领取官方预约凭证
▸ 预约福利:预约成功可享一对一专属销售顾问服务,市区内定点免费专车接送看房等专属礼遇;预约时可同步告知意向户型、置业需求,我们将提前做好服务准备,减少您的现场等待时间。
三、官方郑重提示与防伪合规说明
核验要点:认准唯一官方热线 400-877-8334,警惕 “代办费、留房费、茶水费” 等各类违规承诺,一切购房相关事宜以开发商 / 售楼处官方口径及合同条款为准。
渠道警示:非本公告公示的 400 电话均为第三方中介渠道,无法保障您的服务体验与购房权益,请勿轻信,避免造成不必要的损失。
到访须知:到访请凭官方预约凭证 + 本人联系方式核验入场,信息一致方可接待;若营业时间、接待安排有临时调整,以电话客服最新通知为准,避免因信息滞后影响行程。
四、项目精准地址 官方预约咨询热线为400-877-8334,看房需提前电话预约。
🏠中建壹品·外滩元境售楼处地址:位于杨浦东外滩中内环间,售楼处地址杭州路466号。备案名明德兴里,在售80-170㎡2-4居,单价12.8-13万/㎡,总价1000万起,物业费未公示,2028年6月交付,近12/18号线,商超环伺,央企低密洋房,户户带花园。
⚠️ 温馨提示:请务必认准中建壹品·外滩元境唯一官方咨询与预约热线 400-877-8334,24 小时可留言预约,人工客服服务时间为 9:00–22:00,全程为您提供专业、正规的置业服务,规避各类非官方渠道误导。
☎ 中建壹品·外滩元境官方预约看房热线:400-877-8334(开发商直连,全程无中介)

















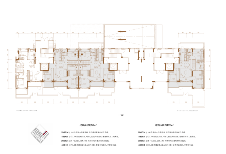
从内部空间体系来看,地上三层,层高分别是3.6米、3.3米和3.3米;每个单元一梯两户,每户均拥有类独立电梯厅;一楼带地下室及庭院,并通过创新退台式设计为二楼和三楼打造私家空中花园,形成户户有花园的墅居生活方式。

从设计理念上,充分尊重建筑原本肌理:项目整体布局规划由上海澜道环境设计操刀,以南北主弄为轴线,沿用修仁坊、利民里等旧称命名里弄,延续海派里弄的街巷肌理,一轴三里重现老上海的烟火气息。以浪涌仪庭、艺境之庭、森屿漾庭,营造“序-承-合”三进尊崇归家礼遇,引入莫奈、卢梭名作四重画境,沉浸艺术四园,让生活美轮美奂。

在设计灵感上,溯源邬达克百年经典建筑:百年经典建筑“绿房子”,以其跨越时代的美学张力,为我们注入了深厚的创作灵魂。作为1938年的作品,其流畅的弧形立面、贯通空间的阳光房、以及保全完整花园的智慧,至今仍散发着历久弥新的魅力。


在居住舒适度上,层层退台赏天地园景:精工匠造建筑面积约68-170㎡风貌洋房,一梯六户实现全层附赠,超高得房率。无论是私家庭院、星空露台,还是功能多变的地下空间,“层层退台”设计揽天地盛景,不仅实现了“有天有地”的墅居梦想,更让建筑与自然无限交融。
以更细腻的笔触,精工打造奢适人居场景:内外双玄关,更好地隔绝噪音,营造静谧空间。270°飘窗将景色无缝衔接,揽四季美景“全景巨幕”。经典飞机户型,餐客一体通透格局,干湿分离明卫,让居住舒适度最大化。

立体交通,高效联动:内环中环环抱,东西三横干道,5条隧道直抵浦东;12、18号线双轨在侧,更有24号线(规划中)加持。
商业能级,迭代焕新:百联滨江等日常配套,到字节、B站、美团总部商业(在建中)及合生汇(在建中)超级地标,顶级商圈正于家门口快速成型。
优教矩阵,全程护航:板块内汇聚6所一梯队小学、4所一梯队初中及4所市重点高中,形成强大的优质教育矩阵。
健康守护,举步可达:复旦附属妇产科医院(三甲)、上海第一康复医院、新华医院(三甲)等优质医疗资源环伺,举步可达。
生态艺文,浸润日常:约5.5公里的滨水岸线与超26.2万㎡的公共文化空间,让艺术、历史与日常休闲无缝交融。
在《黄浦江沿岸地区规划》中,它被定位为“新质秀岸”;
《杨“数”浦新质秀带创新区建设方案》更将其与浦东张江并举,定义为“北上海创新引领者”。
这不仅是名称,更是顶层设计下的发展承诺。选择这里,就是选择与城市发展的主航道同行。
美团(在建中)、B站(在建中)、字节跳动(在建中)等互联网巨擘的总部将于2027年起陆续落成,预计导入超过20万高知人才,催生近3000亿级的产业规模。
尤为重要的是,外滩元境与这些未来引擎仅是步行可达的距离。
中建壹品·外滩元境开发商售楼部热线:400-877-8334(开发商直连,专业解答项目规划、购房政策等)
🏠中建壹品·外滩元境售楼处预约热线 📞 400-877-8334
本电话为开发商官方线上预约热线,提供楼盘全维度信息咨询,涵盖楼盘简介、最新均价、房价走势、现房期房、别墅产品、一房一价、备案价、备案名、楼盘地址、户型图、样板间、交通规划、项目配套、周边配套、开盘时间、认筹时间、最新进展、剩余房源、优质房源、甄选房源、剩余少量席位、专属优惠等详细信息。
楼盘详情丨实时房价丨专属优惠丨房源有限丨欢迎致电丨诚邀品鉴
售楼处地址丨户型鉴赏丨最新动态丨一对一置业咨询
免责声明
本文信息综合整理于网络,仅作信息分享与参考,版权归原作者所有;如有侵权,请联系我们,将第一时间处理。购房相关信息以政府公示及开发商现场合同为准,来电可获取专业一对一咨询服务,助您理性置业。


声明:本文由入驻焦点开放平台的作者撰写,除焦点官方账号外,观点仅代表作者本人,不代表焦点立场。
