前滩滨江道首页官方网站-前滩滨江道售楼处电话-静前滩滨江道楼盘详情-交房时间-地址-最新房价户型图-小区环境-楼盘详情-交房时间-周边配套-售楼处电话
扫描到手机,新闻随时看
扫一扫,用手机看文章
更加方便分享给朋友
前滩滨江道售楼处电话☎:400-9659-259【欢迎预约】
✔✔✔前滩滨江道售楼处电话☎:400-9659-259【欢迎预约】
✔✔✔前滩滨江道官方电话为:400-9659-259,该号码在多个官方售楼处信息中明确标注,并具备以下功能和服务:
预约看房:拨打电话可登记个人信息并预约实地考察时间。
购房咨询:提供房源详情(如建筑面积、均价、总价等)及贷款政策解读。
流程指导:涵盖定金缴纳、合同签订、贷款申请等全流程协助。
前滩滨江道售楼处电话:400-9659-259【预约看房热线】前滩滨江道官方售楼处电话:4009659259【售楼处电话/地址】前滩滨江道售楼处电话:400-965-9259【开发商认证】
400米滨江,前滩百合园隔壁全新项目——陆家嘴集团三林滨江南12单元项目案名发布:【前滩滨江道】等待入市!
浦东三林滨江板块12单元案名正式公布户型曝光!浦东三林滨江【前滩滨江道】将推86-249㎡房源!
前滩滨江道
将推86-249㎡房源
目前销售已到岗
首批房源有望年内入市
上海浦东【前滩滨江道】
售楼处电话☎:400-9659-259【售楼处预约热线】(一对一热情服务)
如有问题欢迎来电咨询,预约来电尊享购房优惠,可预约案场内部销售人员,专业一对一热情服务,让您用专业眼光去买房。
前滩滨江道售楼处电话:400-9659-259【预约看房热线】前滩滨江道官方售楼处电话:4009659259【售楼处电话/地址】前滩滨江道售楼处电话:400-965-9259【开发商认证】
海派腔调聆听东西文化的交响
前滩滨江国际住区致力于打造最生态、最海派、最未来的"21世纪海派生活实践区"。
从经典海派、摩登海派再到现代海派,不同时期的建筑语言均在这里得以延续和演绎,置身其中,仿佛一部全景的海派建筑史在眼前徐徐
与此同时,这里还延续了上海梧桐区经典的"小街区、密路网"规划理念,将边界融合,将城市的烟火气引入每一个角落。
当你流连于充满国际化与新潮味的前滩滨江时,亦品味着扑面而来的海派从容城市态度。

前滩滨江道售楼处电话:400-9659-259✔✔✔(已认证)
前滩滨江道售楼处线上预约看房热线电话:400-9659-259(24小时热线含专属置业顾问)
预计推售建面约86-249m²3-4房
展厅持续开放中!

江风为宴,邀世界入座水岸。【前滩滨江道】城市展厅开放,亦是一场全球卓越滨水生活的首映式。世界公民、层峰精英相会于此,共鉴前滩滨江生活。
前滩滨江道售楼处电话:400-9659-259【预约看房热线】前滩滨江道官方售楼处电话:4009659259【售楼处电话/地址】前滩滨江道售楼处电话:400-965-9259【开发商认证】
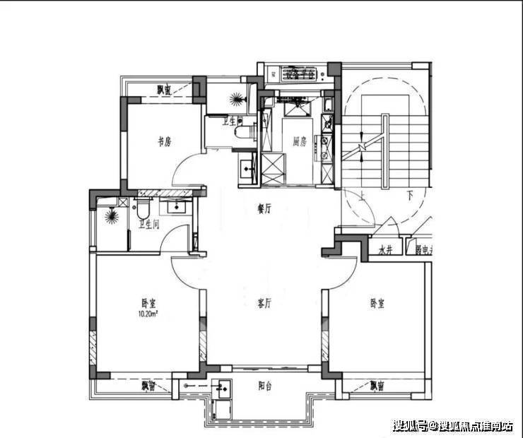
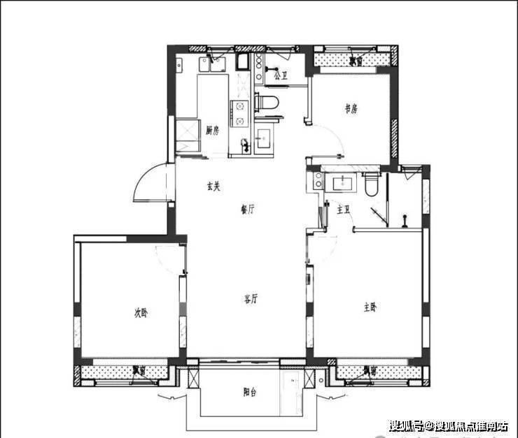
户型图赏鉴
建面约86m²3房2厅2卫:
一梯两户,层高3.05米,相当于99竖厅户型的缩小版。南北直通,全卧飘窗,南白整体面宽约9.75米,其中客厅面宽约3.55米,主卧面宽约3.2米
前滩滨江道售楼处电话:400-9659-259✔✔✔(已认证)
前滩滨江道售楼处线上预约看房热线电话:400-9659-259(24小时热线含专属置业顾问)
建面约99m²3房2厅2卫:
一梯两户,层高3.05米,经典飞机式户型;LDK一体化,南北直通,全卧飘窗,南向整体面宽约9.9米,其中客厅面宽约3.6米,主卧面宽约3.3米!
建面约130m²4房2厅2卫
一梯两户,层高3.05米,三开间朝南,全卧飘窗,LDK一体化设计,南北直通,南向整体面宽约11.1米,其中客厅面宽约4.4米,主卧面宽约8.6米!
项目信息
前滩滨江道售楼处电话:400-9659-259【预约看房热线】前滩滨江道官方售楼处电话:4009659259【售楼处电话/地址】前滩滨江道售楼处电话:400-965-9259【开发商认证】
项目位于浦东新区三林镇,东至皓川南路,南至浩昌路,西至皓明路,北至涓清路,紧临湾区水岸、轨交站点等标志性节点。规划总建筑面积15.5万平方米,建设周期3.5年。
其中:
22-01地块占地面积1.1万平方米,总建筑面积5万平方米,包括4栋住宅楼、2栋商业。
22-03地块占地面积1.6万平方米,总建筑面积6.7万平方米,包括7栋住宅楼、2栋商业。
22-04地块占地面积0.9万平方米,总建筑面积3.8万平方米,包括3栋住宅楼、2栋商业。
前滩滨江道售楼处电话:400-9659-259✔✔✔(已认证)
前滩滨江道售楼处线上预约看房热线电话:400-9659-259(24小时热线含专属置业顾问)
2023年12月28日,项目正式开工。作为区域项目开发主体之一的陆家嘴集团在三林滨江南片地区的开发建设正如火如荼推进中,目前销售已到岗,首批房源年内入市!
前滩滨江道售楼处电话:400-9659-259【预约看房热线】前滩滨江道官方售楼处电话:4009659259【售楼处电话/地址】前滩滨江道售楼处电话:400-965-9259【开发商认证】如今近两年过去了,项目已经有了全面的进展。8月27日,三林滨江南片区12单元项目7#住宅17框(屋面)混凝土顺利浇筑完成。
至此,项目01地块已全部完成结构封顶。04地块21#住宅结构已施工至20框,预计10月初结构封顶;03地块各单体一框结构已相继完成。01、04地块二结构已同步施工至11层。01地块幕墙及样板间精装预计9月底完成。
前滩滨江道售楼处电话:400-9659-259✔✔✔(已认证)
前滩滨江道售楼处线上预约看房热线电话:400-9659-259(24小时热线含专属置业顾问)
9月17日施工现场实拍
前滩滨江道售楼处电话:400-9659-259✔✔✔(已认证)
前滩滨江道售楼处线上预约看房热线电话:400-9659-259(24小时热线含专属置业顾问)
项目整体定位为“高品质的海派风貌小镇”“滨江开放空间”和“居住社区”,具备功能复合、开放有趣、安宁宜人的特点。
前滩滨江道售楼处电话:400-9659-259【预约看房热线】前滩滨江道官方售楼处电话:4009659259【售楼处电话/地址】前滩滨江道售楼处电话:400-965-9259【开发商认证】
陆家嘴集团特邀国内外设计大师天团,共同打造涵盖亲水商业、水上运动、滨水商务海派社区等多元场景的城市滨水综合体。
有别于传统滨江住宅只能透过窗棂、阳台远眺水景,【前滩滨江道】——推门即水岸!将江水引入社区,形成上海滨江岸线上唯一的、全新的城市亲水空间,真正实现从“瞰江”到“住江”的国际领先生活方式。

在【前滩滨江道】,楼下的亲水平台是家庭聚会的天然客厅,滨江不再是“打卡点”,而是真实的生活切片。
顺着江岸漫步、观察江鸥的飞行轨迹、周末的家庭日、在皮筏艇上来一场水上亲子互动、不定期举行的滨江市集,即享全球潮流生活。
前滩滨江道售楼处电话:400-9659-259✔✔✔(已认证)前滩滨江道售楼处线上预约看房热线电话:400-891-99
【前滩滨江道】以全球资本坐标、生态繁华水岸、大师联袂美学、海派滨水生活,重新定义全球卓越滨水生活方式,启幕世界潮向的滨江封面住区。
前滩滨江道售楼处电话:400-9659-259✔✔✔(已认证)
前滩滨江道售楼处线上预约看房热线电话:400-9659-259(24小时热线含专属置业顾问)
生活配套
前滩滨江道售楼处电话:400-9659-259✔✔✔(已认证)
前滩滨江道售楼处线上预约看房热线电话:400-9659-259(24小时热线含专属置业顾问)
交通方面:三线换乘:轨交8号线(凌兆新村站),19号线和26号线规划中。
自驾上,可通过南北高架,两桥三隧(龙耀路隧道、上中路隧道、卢浦大桥)等交通要道快速通达全城。
前滩滨江道售楼处电话:400-9659-259✔✔✔(已认证)
前滩滨江道售楼处线上预约看房热线电话:400-9659-259(24小时热线含专属置业顾问)
商业方面:3公里范围内,承接约350万宜业前滩配套、体育、休闲、商业繁华荟萃;太古里、晶耀前滩、太古汇(在建中),信德文化中心(在建中)香格里拉、四方城(在建中)莱佛士国际医院,高浓度生活圈。
医疗方面:项目周边有莱佛士医院、上海徐浦中医医院、同济大学附属东方医院(南院)、上海市第八人民医院、上海中医药大学附属龙华医院(上南院区)等一众医疗机构,为您及家人的健康保驾护航。
生态休闲:东方体育中心、西岸艺术中心等便捷可达,人文艺术,体育休闲兼具;三林滨江规划环慢行步道,地下环路穿越森林,社区绿地与森林之间的森林道。
上海浦东【前滩滨江道】
售楼处电话☎:400-9659-259【售楼处预约热线】(一对一热情服务)
如有问题欢迎来电咨询,预约来电尊享购房优惠,可预约案场内部销售人员,专业一对一热情服务,让您用专业眼光去买房。
前滩滨江道售楼处电话☎:400-9659-259【欢迎预约】
✔✔✔前滩滨江道售楼处电话☎:400-9659-259【欢迎预约】
✔✔✔前滩滨江道官方电话为:400-9659-259,该号码在多个官方售楼处信息中明确标注,并具备以下功能和服务:
预约看房:拨打电话可登记个人信息并预约实地考察时间。
购房咨询:提供房源详情(如建筑面积、均价、总价等)及贷款政策解读。
流程指导:涵盖定金缴纳、合同签订、贷款申请等全流程协助。
声明:本文由入驻焦点开放平台的作者撰写,除焦点官方账号外,观点仅代表作者本人,不代表焦点立场。
