澜庭壹号院售楼处电话→苏州澜庭壹号院售楼中心电话→楼盘百科→澜庭壹号院首页网站→楼盘百科→首页网站→24小时热线电话
扫描到手机,新闻随时看
扫一扫,用手机看文章
更加方便分享给朋友
苏州澜庭壹号院售楼处电话:400-891-9910
苏州澜庭壹号院售楼处电话☎:400-891-9910【开发商售楼处预约看房热线】(一对一热情vip服务)
看房请提前致电预约,可享受内部渠道优惠!看房请务必提前致电销售确认时间,只有预约客户才能享受开发商提供的内部优惠以及专属的老客户推荐奖励!我们提供专业的一对一热情服务,助您以专业视角挑选理想的房产。
项目基础档案
项目名称:澜庭壹号院
地块信息:苏地2024-WG-Z31号地块
项目地址:苏州高新区狮山商务创新区向阳路南、大运路西
开发品牌:苏高新集团&绿城管理
住宅指标:占地约3.6万方,容积率1.2,总建约4.4万方
产品规划:17栋3F联排/2栋6F叠加/2栋10F洋房,约205户
户型面积:约115㎡/135㎡墅境洋房;约215㎡/236㎡/259㎡见山叠墅;约271㎡/325㎡/369㎡山水和院
装修状态:洋房精装、墅类毛坯
销售信息:24.11.28拿地,楼面价25155元/平
苏州澜庭壹号院售楼处电话:400-891-9910
苏州澜庭壹号院售楼处电话☎:400-891-9910【开发商售楼处预约看房热线】(一对一热情vip服务)
项目即苏地2024-WG-Z31号地块,位于高新区狮山商务创新区向阳路南、大运路西,就在建发朗云西侧,占地面积约3.6万㎡,容积率1.2。
1、一共仅205户!狮山核心绝版低密!合院、叠加、洋房
澜庭壹号院案名终于正式官宣,苏高新集团「澜系」&绿城高端品质,自带红盘基因。
目前展厅已经公开,就在苏州日航酒店一层,预计9月份开盘。
一共打造205套3-10F住宅,合院、叠加、洋房。据传洋房单价4万左右,价格非常惊喜!
苏州澜庭壹号院售楼处电话:400-891-9910
苏州澜庭壹号院售楼处电话☎:400-891-9910【开发商售楼处预约看房热线】(一对一热情vip服务)
一共打造21幢住宅,其中2栋10F纯洋房、2幢6F叠加、17幢联排,并配建一个下沉式庭院会所。出入口设在小区西侧。
全盘总计205套,又是“一把清”的节奏,效果图惊鸿一瞥!重点是,面积段总价段控制合理,不仅有狮山绝版联排,更有洋房小户型,预计要靠抢!
苏州澜庭壹号院售楼处电话:400-891-9910
苏州澜庭壹号院售楼处电话☎:400-891-9910【开发商售楼处预约看房热线】(一对一热情vip服务)
2、狮山绝版小洋房115㎡起!联排院子最大300㎡、上叠露台+下叠院子!带下沉式庭院会所
下面重点来看产品亮点。根据居居拿到的一手爆料——
洋房面积段115-135㎡,狮山绝版小洋房??
叠加230-275㎡,得房率超90%,客厅挑空,上叠送露台,下叠送院子;
联排最小也要260㎡+,最大370㎡,最大院子超300㎡,得房率相当逆天!!
简单曝光几大户型。合院265㎡4房3厅4卫户型↓二层挑空、三层带露台,超高使用面积。
下叠一层平面图如下:南向面宽约10.3米。
苏州澜庭壹号院售楼处电话:400-891-9910
苏州澜庭壹号院售楼处电话☎:400-891-9910【开发商售楼处预约看房热线】(一对一热情vip服务)
下叠二层平面图如下:客厅挑空,得房率超90%。
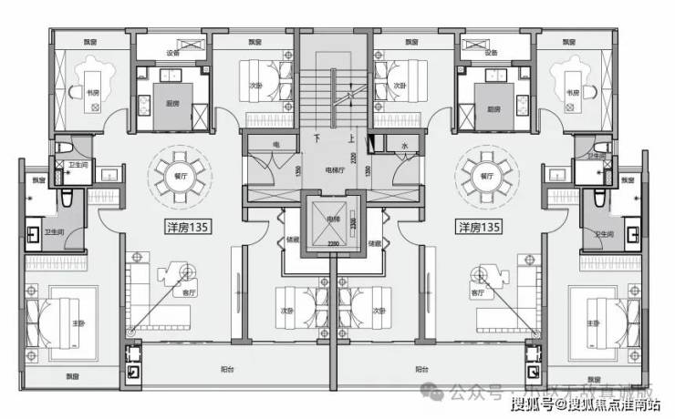
洋房135㎡3+1房2厅2卫户型图如下:
阳台开间约7.75米,南向开间约11.45米,主卧套房,开间3.7米。
更多带尺寸户型图扫码进群↓
容积率仅1.2!
再来回顾下这块地的拿地经过,澜庭壹号院,在去年11月底出让,成交楼面地价25115元/㎡,成交总价约11亿,被绿城管理&苏高新竞得,溢价率0.46%。
现已确定由苏高新&绿城联合打造,国企背书+绿城品质,还是狮山核心绝版别墅,非常值得期待。
关键是,拿地之初,这块地的指标就很优秀。
1、容积率仅有1.2,比原信达光电地块(容积率1.3)还要低密!如今产品终于曝光,打造狮山目前面积最小洋房还有绝版联排、叠加产品,继绿城逸庐光速清盘之后,狮山又上绝版低密产品!
2、6F以上住宅全装修交付,装修成本不低于3000元/㎡,6F及以下住宅可装修或者毛坯交付,没有面积要求。
苏州澜庭壹号院售楼处电话:400-891-9910
苏州澜庭壹号院售楼处电话☎:400-891-9910【开发商售楼处预约看房热线】(一对一热情vip服务)
3、总户数仅205户,体量精致。
地块位置相当好,东侧紧邻苏州外国语学校、新区一中,北侧是1号线汾湖路站,旁边新区美罗、全屋,享受狮山&木渎双配套。
此外,地块周围规划调整还曝光了2宗宅地,即原体校地块,和原科玛化妆品地块,体校地块现已挂牌待出让,容积率1.4。
苏州澜庭壹号院售楼处电话:400-891-9910
苏州澜庭壹号院售楼处电话☎:400-891-9910【开发商售楼处预约看房热线】(一对一热情vip服务)
看房请提前致电预约,可享受内部渠道优惠!看房请务必提前致电销售确认时间,只有预约客户才能享受开发商提供的内部优惠以及专属的老客户推荐奖励!我们提供专业的一对一热情服务,助您以专业视角挑选理想的房产。
The difference in risk and return between stocks and bonds is mainly reflected in the following aspects:
Risk: Stocks typically carry higher risk than bonds. The stock price fluctuates greatly and is influenced by various factors such as the company's operating conditions and market sentiment, which may result in significant losses for investors. In contrast, bonds have clear agreements and guarantees for interest rates and principal recovery, resulting in relatively lower risks.
Yield: Stocks typically have a higher potential for returns than bonds. Although stock prices fluctuate greatly, it also means that higher returns may be obtained. The returns on bonds are relatively stable and limited, mainly coming from fixed interest income and principal recovery at maturity.
Stability: The bond has a predetermined interest rate before purchase, and investors can receive fixed interest at maturity, which provides a stable expected return for bond investors. The dividend yield of stocks is uncertain, and their dividend income fluctuates with the company's profitability.
The difference in risk and return between stocks and bonds is mainly reflected in the following aspects:
Risk difference: Stocks are often considered a high-risk investment tool because their price fluctuations can be significant, which can increase investors' risk. In addition, if the company performs poorly, investors may suffer losses. In contrast, bonds are generally regarded as a low-risk investment tool. The price fluctuations of bonds are usually smaller than those of stocks, so their risk is relatively low.
Yield difference: Stocks generally have much higher returns than bonds. This is because the returns of stocks not only come from dividends, but also from capital gains brought about by the rise in stock prices. The returns on bonds are mainly fixed interest income, which is relatively stable but lower compared to stocks.
Stability difference: Bonds have a predetermined interest rate before purchase, and investors can receive fixed interest at
股票和债券在风险与收益上的差异主要体现在以下几个方面:
风险:股票的风险通常高于债券。股票价格波动较大,受公司经营状况、市场情绪等多种因素影响,可能导致投资者遭受重大损失。相比之下,债券的利率和本金回收有明确的约定和保障,风险相对较低。
收益:股票的收益潜力通常高于债券。虽然股票价格波动大,但也意味着可能获得更高的回报。债券的收益相对稳定且有限,主要来自固定的利息收入和到期时的本金回收。
稳定性:债券在购买前已确定利率,到期时投资者可获得固定利息,这一特点为债券投资者提供了稳定的收益预期。而股票的股息率则具有不确定性,其股息收入随公司盈利情况波动。
股票和债券在风险与收益上的差异主要体现在以下几个方面:
风险差异:股票通常被认为是一种高风险的投资工具,因为股票的价格波动可能会很大,这可能会增加投资者的风险。此外,如果公司表现不佳,投资者可能会遭受损失。相比之下,债券通常被认为是一种低风险的投资工具。债券的价格波动通常比股票小,因此,它们的风险也相对较低。
收益差异:股票的收益一般也远大于债券。这是因为股票的收益不仅来自于股息,还来自于股价上涨带来的资本利得。而债券的收益主要是固定的利息收入,相对于股票来说,收益较为稳定但较低。
稳定性差异:债券在购买前已确定利率,到期时投资者可获得固定利息,这一特点为债券投资者提供了稳定的收益预期。而股票的股息率则具有不确定性,其股息收入随公司盈利情况波动,这使得股票投资具有更高的收益潜力,但同时也伴随着更高的风险。
股票入门基础知识包括以下几个方面:
股票的定义和种类:股票是公司发行的一种所有权凭证,代表股东对公司的所有权。股票种类包括普通股、优先股等。
股票交易市场:股票交易市场是股票买卖的场所,包括一级市场和二级市场。在中国,主要的股票交易所有上海证券交易所和深圳证券交易所。
股票交易规则:股票交易规则包括交易时间、交易单位、涨跌停板制度等。例如,A股交易实行T+1制度,即当天买入的股票需要在第二天后才可以进行买卖交易。
股票分析方法:股票分析方法主要包括基本面分析和技术分析。基本面分析涉及公司财务报表、行业状况等,而技术分析则通过图表、指标等分析股票走势。
投资心态与策略:投资者应树立正确的投资观念,避免盲目跟风,保持冷静的投资心态。同时,根据自身的风险承受能力、投资目标等制定合适的投资策略。
实战技巧与案例:了解一些实战中的经验技巧,如如何捕捉热门股、如何设置止损点等。通过实际案例,学习如何应用所学知识进行实战操作。
声明:本文由入驻焦点开放平台的作者撰写,除焦点官方账号外,观点仅代表作者本人,不代表焦点立场。
