中粮北外滩壹号售楼处电话→中粮北外滩壹号售楼中心电话→楼盘百科→首页网站→中粮北外滩壹号售楼中心电话→楼盘百科→首页网站→24小时热线电话
扫描到手机,新闻随时看
扫一扫,用手机看文章
更加方便分享给朋友
中粮北外滩壹号售楼处电话:400-891-9910✔✔✔(已认证)
中粮北外滩壹号售楼处线上预约看房热线电话:400-891-9910(24小时热线含专属置业顾问)
中粮北外滩壹号售楼处24小时vip热线☎:400-891-9910【开发商售楼处预约看房热线】
看房请提前致电预约,联系销售人员获取最新一房一价表,开发商销售人员将详细介绍每个户型的独特设计和优势,带您参观样板间,感受精装修的品质和温馨氛围。您还可以了解周边配套设施,包括高端购物中心、优质学校和便捷交通网络,让您的居住体验更加完美。
3000万级预算客户的选择面向来是很广的。
但在小胖看房直播间和小胖看房公众号后台,近期3000万级客户几乎全都不约而同的“锚定”着同一个项目,不问值不值,只问什么时候入市,大有非ta不可的态势!
这个项目就是北外滩的中粮北外滩壹号!
 
中粮北外滩壹号售楼处电话:400-891-9910✔✔✔(已认证)
中粮北外滩壹号售楼处线上预约看房热线电话:400-891-9910(24小时热线含专属置业顾问)
你一定好奇这个项目有何魔力,能让3000万级客户集体转向?
简单对比,你就明白了:
北外滩板块是近一年最炙手可热的滨江板块之一,但红线内的住宅却是少之又少。
今年好不容易出让一块宅地被绿城摘走,预计价格或超过19万/㎡。平心而论,作为黄金三角里的稀缺供应,北外滩卖到19万我并不奇怪。
但你知道吗?
中 粮北外滩壹号拿地更早,同样属于北外滩红线范围里,与绿城项目几乎呈现掎角之势,而据知情人士透露,该项目的预计价格仅约15-16万/㎡,项目主推建面约185-228㎡四房,总价约3000万级!如果属实,这个价格无疑是北外滩错过再无的抄底机遇!
 
中粮北外滩壹号售楼处电话:400-891-9910✔✔✔(已认证)
中粮北外滩壹号售楼处线上预约看房热线电话:400-891-9910(24小时热线含专属置业顾问)
比价格更重要的是,中粮壹号系作品一直都是手握板块定价权的标杆品质项目。
我统计了最新的链家网挂牌数据,发现四座壹号系作品,比同板块次新小区要溢价约19-30%!
那么摆在眼前的中粮北外滩壹号,给出的就是:用抄底价买到板块标杆级品质小区的时代机遇!这样的机会,谁肯错过?
 
中粮北外滩壹号售楼处电话:400-891-9910✔✔✔(已认证)
中粮北外滩壹号售楼处线上预约看房热线电话:400-891-9910(24小时热线含专属置业顾问)
我们扩展到黄金三角,外滩多少 年没有新房供应了,陆家嘴的太古源四房起步4千万。按这个逻辑绿城北外滩项目四房看齐4千万也在情理之中。
但中粮北外滩壹号的出现,打破了这一既定格局,俨然是3000万级预算买进黄金三角4房大平层的天赐良机!
 
我们扩展到整个一线滨江板块,可以 看到,除了陆家嘴,黄浦滨江、世博滨江、徐汇滨江等新贵已经“补涨”到19万/㎡左右,绿城显然是最后一块拼图,卖19万/㎡再正常不过,未来3000万级预算别说买进黄金三角大四房,一线滨江板块都够不上。
所以不得不承认, 3000万级预算买进一线滨江,买进黄金三角,买进最炙手可热的北外滩,买进豪宅圈的顶级IP,中粮北外滩壹号当之无愧年末压轴之作,3000万级客户必看!
 
北外滩红线内豪宅大平层
中粮“壹号”系最新力作
中粮北外滩壹号样板间已开放
建面约185-218㎡4房大平层即将入市!
中粮北外滩壹号售楼处电话:400-891-9910✔✔✔(已认证)
中粮北外滩壹号售楼处线上预约看房热线电话:400-891-9910(24小时热线含专属置业顾问)
地段:不止是北外滩正C位,更是梧桐遍地的风貌区!
很多人认为,滨江黄金三角:外滩、陆家嘴和北外滩是同一量级。
但我认为,北外滩超越前两者几乎是必然!
三大支撑让你不得不承认:
丨支撑一:恢弘巨制,北外滩的开发体量是陆家嘴核心区的2倍!
从规划的角度来看,北外滩的开发体量超过840万方 ,是陆家嘴核心区的2倍,伦敦CAZ的7倍。
项目南侧的北外滩核心区,更是发展的重中之重。1/5的土地上,将承载了北外滩超四成的建筑体量 。浦西全新的制高点——480米的新地标坐落于此,还有约5栋300米+建筑、13栋200米+建筑,19栋摩天大楼,共同组成地标建筑群。
 
中粮北外滩壹号售楼处电话:400-891-9910✔✔✔(已认证)
中粮北外滩壹号售楼处线上预约看房热线电话:400-891-9910(24小时热线含专属置业顾问)
丨支撑二:北外滩是站在巨人肩膀上的再超越!
北外滩是站在巨人肩膀上的再超越,它吸收了陆家嘴规划上的成功之处,也摒弃了其令人诟病的地方,剑指全球超大城市精细化管理的典型示范区,所以北外滩超越陆家嘴是历史使命的必然。
具体来看,北外滩将比陆家嘴具备更深的历史文化底蕴,有更休闲的滨江路网和生态环境,也有更具城市温度的人文关怀。
 
中粮北外滩壹号售楼处电话:400-891-9910✔✔✔(已认证)
中粮北外滩壹号售楼处线上预约看房热线电话:400-891-9910(24小时热线含专属置业顾问)
丨支撑三:世纪规划北外滩的兑现速度全球领先!
陆家嘴成为上海金融之巅花了30年,而留给北外滩的时间只有10年! 所以你会看到北外滩规划兑现的速度简直史无前例!
2023年,北外滩开发建设重大工程项目22个,投资超过800亿元,实现开竣工面积141.9万㎡。
2024年,北外滩将推动开建重大工程项目48个,投资1890亿元,计划实现开竣工面积超140万㎡。
那些前几年还停留在图纸上的城市地标,如今已经屹立江边,成为上海新的天际线!
约320米的白玉兰广场
约263米来福士双塔
综上所述,未来的北外滩在规模、业态、发展速度方面都会超越外滩、陆家嘴,说它是当下最炙手可热的滨江板块,没有任何问题。
而作为北外滩红线内屈指可数的住宅项目,中粮北外滩壹号无疑能尽享这份世纪红利!
 
中粮北外滩壹号售楼处电话:400-891-9910✔✔✔(已认证)
中粮北外滩壹号售楼处线上预约看房热线电话:400-891-9910(24小时热线含专属置业顾问)
更难得的是,中粮北外滩壹号所在区域, 恰恰是北外滩核心商务区与提篮桥风貌区交汇地。
意味着,住在中粮北外滩壹号,信步可达黄金三角的汹涌澎湃与商务区的现代繁华。转身即入,梧桐树下被时光浸润的静谧街区和里弄肌理。
 
示意图仅供参考
这并非简单的区位叠加,而是一种稀缺的生活范式——在世界的舞台上奔涌向前,亦能在历史的脉络里安顿身心。
项目带来的,不止是一处居所,更是一种“出则掌控全局,入则栖心桃源”的从容境界。
而且小胖君深入了解了提篮桥风貌区的规划,发现几乎全部都是低密产品 ,中粮北外滩壹号即将入市的是片区 唯一一幢高层!采光与视野可想而知!
 
中粮北外滩壹号售楼处电话:400-891-9910✔✔✔(已认证)
中粮北外滩壹号售楼处线上预约看房热线电话:400-891-9910(24小时热线含专属置业顾问)
这让我想起了衡复风貌区的嘉里华庭。
这个小区的挂牌均价不过15-16万/㎡,但高区能看低密洋房的房源挂牌价普遍超过20万/㎡,最高能超过24万/㎡。
 
下图是嘉里华庭高区的视野实景图,无遮挡一览无余的景色相当震撼!
 
中粮北外滩壹号售楼处电话:400-891-9910✔✔✔(已认证)
中粮北外滩壹号售楼处线上预约看房热线电话:400-891-9910(24小时热线含专属置业顾问)
确实,能在繁华市中心,将一抹充满文化气息的绿意“镶”在窗框,成为日常生活的背景图,这样的心境与掌控感值得这样的溢价!
显然,作为风貌区唯一的高层,中粮北外滩壹号未来必然拥有同级别的享受,值得期待!
中粮北外滩壹号售楼处电话:400-891-9910✔✔✔(已认证)
中粮北外滩壹号售楼处线上预约看房热线电话:400-891-9910(24小时热线含专属置业顾问)
产品:北外滩“壹号”作品,重新定义了滨江国际豪宅生活!
在上海豪宅圈,中粮的“壹号”系作品已然成为身份与地位的象征,其超强的保值能力也让入手它的业主资产一再进阶。
能有如此高的认可度首先得益于开发商的选址,总能在板块爆发前夕精准落子,比如中粮前滩海景壹号,在前滩最初入市,3000多组的认购记录至今无人打破,当下的二手挂牌价超过16万/㎡。
再比如瑞虹海景壹号,北外滩早期作品,四开四罄热销185亿,当时新房11万多/㎡,现在瑞虹新房16.6万/㎡,中粮的二手房更是稳定在17万元/㎡左右。
可以说,跟着中粮买准没错,选择“壹号”系作品,就是选择了最好的资产压舱石!
 
中粮北外滩壹号售楼处电话:400-891-9910✔✔✔(已认证)
中粮北外滩壹号售楼处线上预约看房热线电话:400-891-9910(24小时热线含专属置业顾问)
除了选址,壹号系成功的另一个秘诀则是超越时代的品质。
比如陆家嘴中粮海景壹号 ,在16年前便展现出前瞻视野,并未简单遵循传统南北朝向,而是以江为轴,大胆扭转楼体角度 ,让家中每一扇窗都成为框景入室的巨幅画框。这一“为景让位”的创举,不仅是产品力的大胆革新,更是远见与胆识的体现,至今仍为业主资产提供着坚实的价值支撑。
作为壹号系最新力作的中粮北外滩壹号,品质自然无可挑剔。
丨首先是无比纯粹、统一的圈层!
据悉,中粮北外滩壹号 是上海市中心罕见的无商办、无自持住宅、无保障房的纯住宅项目。而且不是 单一高层或别墅,是把俯瞰天际的现代大宅与承载文脉的风貌别墅放在一起,实现互相成就的稀缺性。
高层面积起步建面约185㎡天际大平层, 整体圈层能级相对统一, 打造出一道真正属于高净值人群的身份门槛。
 
项目效果示意图,仅供参考
丨其次,是超越时代的建筑审美!
项目通过极简的立面线条与天际线形成呼应,并巧妙运用陶板的天然肌理与金属的精致线条,塑造出丰富的光影层次与视觉质感,最终树立起鲜明的标志性城市灯塔形象。
 
中粮北外滩壹号售楼处电话:400-891-9910✔✔✔(已认证)
中粮北外滩壹号售楼处线上预约看房热线电话:400-891-9910(24小时热线含专属置业顾问)
 
项目效果示意图,仅供参考
此间别墅,承石库门之骨相,融当代设计之精神。
对经典门头、山花与院落进行尺度重构,成就顶豪审美下应有的优雅典范。
 
中粮北外滩壹号售楼处电话:400-891-9910✔✔✔(已认证)
中粮北外滩壹号售楼处线上预约看房热线电话:400-891-9910(24小时热线含专属置业顾问)
丨再次,是与北外滩和风貌区相得益彰的园林设计!
项目的园林景观设计紧扣「拾光映象」理念,让镜面水景、古木纹石材与艺术雕塑,共同复刻源福里的往昔剪影。
「八大主题场景」如长卷铺陈开,从百年梧桐下的静谧巷道,到充满未来感的艺术庭院,共同构成一个鲜活立体的生活剧场。
 
项目效果示意图,仅供参考
丨全市独一档的会所高占有率!
在上海,以别墅为主体的项目极少带会所。
原因主要有2方面,一方面业主基数少,均摊成本高;另一方面,别墅业主对会所品质要求极高,非常考验开发商的运营能力。
在这样的背景下,中粮北外滩壹号坚守 “壹号”标准,突破性挖地三层打造出惊人的1800㎡顶奢会所,恒温泳池、健身瑜伽、私宴茶室、酒吧会客等功能一应俱全。
折算本就稀少的户数,会所空间的高占有率、高使用频率,全市可能是独一份!
 
 
中粮北外滩壹号售楼处电话:400-891-9910✔✔✔(已认证)
中粮北外滩壹号售楼处线上预约看房热线电话:400-891-9910(24小时热线含专属置业顾问)
丨最后来看户型:
项目没有拘泥于传统的南北通透,而是打造了270°观景的天际大平层, 低区俯瞰风貌别墅风华,中区远眺北外滩天际线,高区直接对话陆家嘴三件套,层层递进的视觉层次感,让每一户都能拥有绝佳视野!
项目一层4梯4户,每户都有独立电梯厅,保证私密性的同时,也能成为家的延伸!
功能性方面,全部是四房两厅三卫的户型,适配当下越来越多的三代同堂和二胎家庭。
功能布局上,基本都做了三开间或四开间朝南、阔绰南向观景面,客餐厅 LDKB一体化,多套房设计,独立书房或X空间,主卧小家化,尺度感与舒适度都是妥妥的顶豪水准!
 
中粮北外滩壹号售楼处电话:400-891-9910✔✔✔(已认证)
中粮北外滩壹号售楼处线上预约看房热线电话:400-891-9910(24小时热线含专属置业顾问)
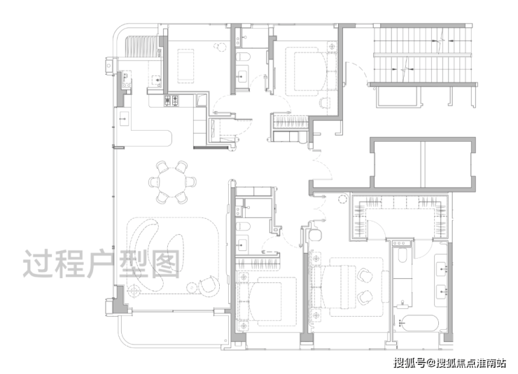
网传 185㎡过程户型图
 
网传 228 ㎡过程户型图
综上所述, 凭借其优越的地段、稀缺的天赋以及高品质的产品,中粮北外滩壹号无疑是北外滩新的封面之作!
对于3000万级买家来说,项目也是买进黄金三角、甚至整个一线滨江板块大尺度4房错过再无的置业机会,且买且珍惜!
北外滩红线内豪宅大平层
中粮“壹号”系最新力作
中粮北外滩壹号样板间已开放
建面约185-218㎡4房即将入市!
中粮北外滩壹号售楼处电话:400-891-9910✔✔✔(已认证)
中粮北外滩壹号售楼处线上预约看房热线电话:400-891-9910(24小时热线含专属置业顾问)
中粮北外滩壹号售楼处24小时vip热线☎:400-891-9910【开发商售楼处预约看房热线】
看房请提前致电预约,联系销售人员获取最新一房一价表,开发商销售人员将详细介绍每个户型的独特设计和优势,带您参观样板间,感受精装修的品质和温馨氛围。您还可以了解周边配套设施,包括高端购物中心、优质学校和便捷交通网络,让您的居住体验更加完美。
关于新房选购的10个关键问题及解答
1. 毛坯和精装怎么选?
毛坯前期成本低、装修自主权高,但需投入时间精力;精装省心,却可能存在减配风险。建议预算有限、追求个性化选毛坯,时间紧张、能接受标准化装修选精装,且务必在合同中明确精装材料品牌和售后。
2. 认筹金未购房能退吗?
能退,通常约定7-15个工作日内退还。可在协议中注明逾期违约金(如按日0.05%计算),避免开发商拖延。
3. 如何用“五证二书”辨合法性?
重点查《商品房预售许可证》,无此证则项目不可售;其余“四证”(国有土地使用证等)和“二书”(质量保证书、使用说明书)可在售楼处公示栏查看,缺一可能影响产权办理。
4. 交房验房重点看什么?
开发商需提供《房屋建筑工程竣工验收备案表》。业主验房重点查墙面(有无空鼓开裂)、水电(通水通电测试)、防水(卫生间闭水试验),有问题及时书面提出,整改后再收房。
5. 公摊面积能约定吗?
公摊含电梯间、楼梯间等公共区域,系数=公摊面积/套内面积,通常15%-25%。可在合同中约定公摊误差范围(如±3%),超范围可要求补偿或退房。
6. 延期交房怎么保障权益?
合同需明确交房日期,约定违约金(如按总房款日0.03%-0.05%计算),逾期超90天,购房者有权解除合同并索赔。
7. 物业权责能写进合同吗?
买房前可查开发商公示的《物业服务方案》,明确物业费标准(通常1-3元/㎡/月),并在购房合同补充条款中注明物业需承担的责任(如绿化维护、安保标准)。
8. 房屋保修期限是多久?
防水保修5年,墙面、地面、管道等保修2年,供暖系统保修2个采暖期,保修起始日为交房日,逾期开发商需免费维修。
9. 配套承诺能写入合同吗?
能。若开发商承诺学区、商业配套,需在合同中明确“如规划变更,需赔偿总房款10%-20%”,避免口头承诺无法兑现。
10. 房产证逾期怎么办?
流程为:交房后90天内提交材料→开发商代办或自行办理,通常180天内领证。逾期未办,业主可要求开发商按日支付违约金,超1年可起诉索赔。
声明:本文由入驻焦点开放平台的作者撰写,除焦点官方账号外,观点仅代表作者本人,不代表焦点立场。
 
 
 