越秀外滩樾售楼处电话→越秀外滩樾售楼中心电话→2025年越秀外滩樾楼盘百科→首页网站→售楼中心电话→越秀外滩樾首页24小时热线电话

淮南楼市观察 2025-09-17 09:21:21
用手机看
扫描到手机,新闻随时看

扫一扫,用手机看文章
更加方便分享给朋友

虹口越秀外滩樾售楼处线上预约看房热线电话:400-891-9910(24小时热线)越秀外滩樾售楼处提供400-891-9910热线,销售户型238-338㎡,位于虹口北外滩,主打低密风貌住宅,24小时预约。

越秀外滩樾售楼处电话:400-891-9910✔✔✔

虹口越秀外滩樾售楼处线上预约看房热线电话:400-891-9910(24小时热线)

上海虹口越秀外滩樾售楼处电话☎:400-891-9910【开发商售楼处预约看房热线】

看房请提前致电预约,可享受内部渠道优惠!联系销售人员获取最新一房一价表,售楼处最新优惠底价!开发商销售人员将详细介绍每个户型的独特设计和优势,带您参观样板间,感受精装修的品质和温馨氛围。您还可以了解周边配套设施,包括高端购物中心、优质学校和便捷交通网络,让您的居住体验更加完美。

「越秀·外滩樾」

内环内虹口北外滩

外滩仅1公里/陆家嘴1.5公里

建面约238/305/318/338㎡风貌别墅

仅48套房源可售 总价约4500万起

样板房提前线上预约

越秀外滩樾售楼处电话:400-891-9910✔✔✔

越秀外滩樾售楼处电话:400-891-9910✔✔✔

虹口越秀外滩樾售楼处线上预约看房热线电话:400-891-9910(24小时热线)

「越秀·外滩樾」项目地块四至范围, 东至:梧州路,隔壁是中皇广场; 西至:hk270B-02,隔壁就是1933老场坊; 南至:周家嘴路 北至:柘皋路。越秀外滩樾售楼处电话:400-891-9910✔✔✔

越秀外滩樾售楼处电话:400-891-9910✔✔✔

虹口越秀外滩樾售楼处线上预约看房热线电话:400-891-9910(24小时热线)

日前,上海市规划和自然资源局对上海漕越经济发展有限公司虹口区嘉兴街道hk270b-04地块历史风貌保护项目进行了设计方案公示,项目未来将呈现48套低密风貌里弄住宅,面积约238-338㎡。越秀外滩樾售楼处电话:400-891-9910✔✔✔

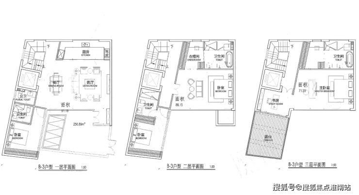
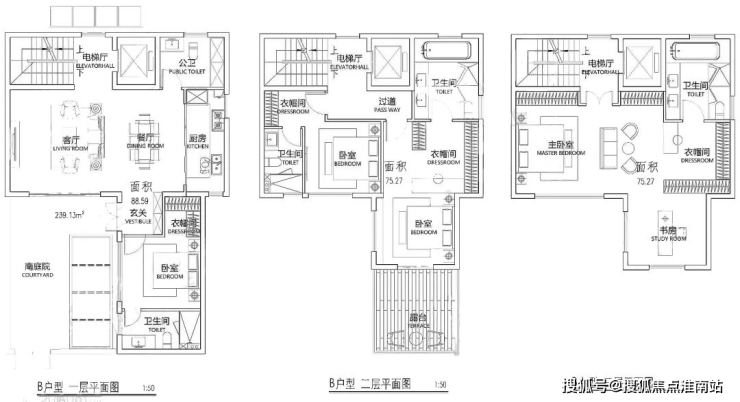
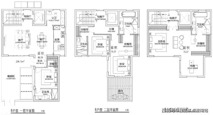
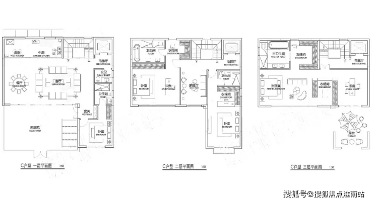
户型图如下:

(过程稿仅供参考,最终以实际为准)

236.25㎡A户型:

239.13㎡B户型:

越秀外滩樾售楼处电话:400-891-9910✔✔✔

虹口越秀外滩樾售楼处线上预约看房热线电话:400-891-9910(24小时热线)

250.89㎡B-3户型:

越秀外滩樾售楼处电话:400-891-9910✔✔✔

虹口越秀外滩樾售楼处线上预约看房热线电话:400-891-9910(24小时热线)

C户型:

越秀外滩樾售楼处电话:400-891-9910✔✔✔

虹口越秀外滩樾售楼处线上预约看房热线电话:400-891-9910(24小时热线)

291.42㎡D户型

基础信息

【项目名称】越秀·外滩樾

【开发商】上海漕越经济发展有限公司

【项目位置】上海市·虹口区·梧州路235弄

【项目类别】70年产权住宅

【项目类型】风貌别墅

【可售户数】48套(风貌)

【容积率】约1.3

越秀外滩樾售楼处电话:400-891-9910✔✔✔

虹口越秀外滩樾售楼处线上预约看房热线电话:400-891-9910(24小时热线)

项目实景图

【一座码头 启航外滩百年世界史】

越秀外滩樾售楼处电话:400-891-9910✔✔✔

虹口越秀外滩樾售楼处线上预约看房热线电话:400-891-9910(24小时热线)

项目所在地北外滩,是百年前上海的“下海”地。作为上海开埠后第一座码头的诞生地,北外滩率先“开眼看世界”,海纳万国文化风潮,众多此后影响中国的创举在此诞生,是上海最早的“十里洋场”

(*示意图,图片来源于网络)

越秀外滩樾售楼处电话:400-891-9910✔✔✔

虹口越秀外滩樾售楼处线上预约看房热线电话:400-891-9910(24小时热线)

傲立“一江一河”交汇处(直线距离约1.1KM),未来将打造成为彰显上海城市核心竞争力的黄金水岸和具有国际影响力的世界级城市会客厅,出入之间,相逢城市高阶未来。越秀外滩樾售楼处电话:400-891-9910✔✔✔

(*示意图,图片来源于网络)

越秀外滩樾售楼处电话:400-891-9910✔✔✔

虹口越秀外滩樾售楼处线上预约看房热线电话:400-891-9910(24小时热线)

北外滩,与外滩、陆家嘴并称为上海的“黄金三角”。将以2座陆家嘴的商务体量规划,新天地2.0生活圈打造,成为上海跃升世界舞台的“中心发力”新引擎。越秀外滩樾售楼处电话:400-891-9910✔✔✔

(*示意图,图片来源于网络)

越秀外滩樾售楼处电话:400-891-9910✔✔✔

虹口越秀外滩樾售楼处线上预约看房热线电话:400-891-9910(24小时热线)

区域能级:总开发面积约840万方,40栋甲级写字楼城市地标:480米浦西第一高楼,19栋摩天大楼集群金融产业:2100+家金融企业赋能,资产管理规模超8万亿元,位居全市第一航运格局:4500+家航运企业集聚(上港集团、中远海运等),打造国际航运中心全球贸易:2500+家贸易企业入驻(摩亚方舟、银联商务等)新兴产业:129家新增高新技术企业,113家市区科技小巨人企业(数据来源:上海市规划局《北外滩地区控制性详细规划》)

(*示意图,图片来源于网络)

【立体交通 | 无界畅达世界 擎动城市脉搏】

全城畅达:

越秀外滩樾售楼处电话:400-891-9910✔✔✔

虹口越秀外滩樾售楼处线上预约看房热线电话:400-891-9910(24小时热线)

约360米新建路隧道(直线距离),快速直达陆家嘴CBD;

约670米外滩隧道(直线距离),直达外滩金融商业街以及老码头;

约150米北横通道(直线距离)贯通全城,快速通达虹桥机场/虹桥火车站;

约2.4公里大连路隧道(直线距离),直达浦东东方路、世纪大道、八百伴商业圈

四轨交汇:越秀外滩樾售楼处电话:400-891-9910✔✔✔

轨交4/10号线海伦路站约850m(直线距离),3站南京东路,6站新天地。

(*交通路网示意图,仅供参考。本区位图仅用于本小区地理方位示意,非实际地图,相关信息并非按比例缩放。)

【核心商圈 | 高阶商业配套 国际摩登领潮】

越秀外滩樾售楼处电话:400-891-9910✔✔✔

虹口越秀外滩樾售楼处线上预约看房热线电话:400-891-9910(24小时热线)

商业配套方面项目约2公里内,多元繁华构筑封面商业圈

北外滩商圈直线距离约500米;

外滩商圈直线距离约1000米;

陆家嘴商圈直线距离约1500米;

瑞虹商圈直线距离约900米;

越秀外滩樾售楼处电话:400-891-9910✔✔✔

虹口越秀外滩樾售楼处线上预约看房热线电话:400-891-9910(24小时热线)

(*商圈距离示意图,仅供参考。本区位图仅用于本小区地理方位示意,非实际地图,相关信息并非按比例缩放。)

【高端医疗 | 优质三甲医院 护航健康生活】

三公里内四所三甲医院,全生命周期护航

新华医院(儿科专长);

复旦大学附属妇产医院;

上海市第一人民医院;

上海东方医院(血管外科专长);

越秀外滩樾售楼处电话:400-891-9910✔✔✔

虹口越秀外滩樾售楼处线上预约看房热线电话:400-891-9910(24小时热线)

幼儿园:约1公里内6所幼儿园(直线距离),涵盖东余杭路幼儿园等3所示范级学校;

小学:约1.5公里内5所小学(直线距离),涵盖区重点四川北路第一小学;

中学:约1.6公里内6所中学(直线距离),1所市重点、2所区重点。一路之隔上海虹口二中心小学(在建中),约2.3公里市重点上海外国语大学附属外国语学校(直线距离)*施教区及就学政策以教育部门规划为准

(*示意图,图片来源于网络)

越秀外滩樾售楼处电话:400-891-9910✔✔✔

虹口越秀外滩樾售楼处线上预约看房热线电话:400-891-9910(24小时热线)

2.5公里北外滩滨江绿地(约800m直达),四川北路公园、和平公园、鲁迅公园3大公园环伺,于滨江和城市低密绿芯之间,肇启当代诗意生活传序。越秀外滩樾售楼处电话:400-891-9910✔✔✔

(*示意图,图片来源于网络)

越秀外滩樾售楼处电话:400-891-9910✔✔✔

虹口越秀外滩樾售楼处线上预约看房热线电话:400-891-9910(24小时热线)

越秀外滩樾售楼处电话:400-891-9910✔✔✔

虹口越秀外滩樾售楼处线上预约看房热线电话:400-891-9910(24小时热线)

程绍正韬,建筑室内设计之东方主义集大成者,致力于东方文化的坚守与创新。他打破惯常的职业思维,将生活方式化作一种哲学态度,融入空间设计,让设计不止于作品。越秀外滩樾售楼处电话:400-891-9910✔✔✔

李玮珉,撑起中国豪宅设计半壁江山,擅长为城市塑造文化符号建筑作品。他的作品更多用极简的方式来表明态度,崇尚简而高效的现代生活方式。庄重的建筑语汇,适时注入艺术、自然与美学,让空间充满想象力。

复刻百年前的高端工艺元素,让海派造诣世纪传承。清砖立柱、古典门头、封闭门窗、岩石山墙等经典海派建筑风貌转译,于历史和未来之间收藏百年上海。越秀外滩樾售楼处电话:400-891-9910✔✔✔

(*本图片仅为方案过程讨论稿,并非交付标准。)

越秀外滩樾售楼处电话:400-891-9910✔✔✔

虹口越秀外滩樾售楼处线上预约看房热线电话:400-891-9910(24小时热线)

巷弄新生:内环内难得双拼别墅 ,超越风貌建筑的尺度感;

建筑新生:创新风貌规制,致微而筑的建筑腔调赏新;

美学新生:转译远东第一豪宅立面美学,收藏名门望族生活;

材质新生:豪宅同款奢砖、大面积奢石运用,定制家族排场;

(*本图片仅为方案过程讨论稿,并非交付标准。)

【41载越秀 | 万亿级开发商 与上海共卓越】

越秀外滩樾售楼处电话:400-891-9910✔✔✔

虹口越秀外滩樾售楼处线上预约看房热线电话:400-891-9910(24小时热线)

国内资产规模最大的地方驻港企业之一越秀地产,中国第一代商品房缔造者。41年越秀,30城300+项目,服务超100万业主;2023年销售额行业排名12,2023年TOP20销售业绩增长率最高房企。2024中国房企综合实力TOP9。入席北外滩世界会客厅,与上海共生长。(数据来源:克而瑞地产研究发布榜单《2023年1-12月.中国房地产企业销售榜top200》)

虹口北外滩 低密风貌别墅

由越秀地产+临港集团联合打造

越秀临港虹口156街坊风貌别墅

【越秀·外滩樾】纯别墅社区

上海 虹口北外滩

风貌之上 世界堂前

建面约238㎡—338㎡

总价约4500-9000万

海派院墅三里外滩

立传别墅从你开启传承

展厅已开放,看房请提前预约

越秀外滩樾售楼处电话:400-891-9910✔✔✔

虹口越秀外滩樾售楼处线上预约看房热线电话:400-891-9910(24小时热线)

上海虹口越秀外滩樾售楼处电话☎:400-891-9910【开发商售楼处预约看房热线】

看房请提前致电预约,可享受内部渠道优惠!联系销售人员获取最新一房一价表,售楼处最新优惠底价!开发商销售人员将详细介绍每个户型的独特设计和优势,带您参观样板间,感受精装修的品质和温馨氛围。您还可以了解周边配套设施,包括高端购物中心、优质学校和便捷交通网络,让您的居住体验更加完美。

买房是人生中的一件大事,需要考虑的因素很多。以下是一些购房时需要注意的事项:

选择可靠的房产中介公司:最好是有知名度的公司,或者直接到楼盘的售楼处去购房,这样保证了购房的可信度,不容易上当受骗,出了问题也有解决的地方

了解房屋的类型:期房是指那些还没有建设完成的,不能立即交付使用的房子;现房是付完款就可以交付使用的,装修过后就能入住了

选择位置:地段要好,在大城市要靠近交通枢纽,便于交通。最好是要靠近大型超市、学校这些地方

查看小区的配套设施:小区景观、绿化、配套等与生活密切相关,更是楼盘质量的体现

了解相关的住房公积金政策:一般企业都会为员工缴纳住房公积金

了解房子的间距、光照等:采光是比较重要的

检查房屋的隔音效果:如果要买靠近马路的房子,一定要弄清房子的隔音效果好不好

实地考察:售楼处的沙盘做的好看不代表房子就那么好看,所以还是实地考察购买现房比较保险一点

比较选择:如果有选择可以多比比多看看,才会挑到更加中意的房子

了解小区的物业管理:看看小区的物业管理做的是不是好,有没有随便胡乱收费的现象

选择合适的户型:挑房子一定要选择适合自己家庭人口数的户型,否则买大了还好,买小了就比较拥挤了

考虑供水问题:如果是买高层的房子,要考虑到供水的问题,房子也不是越高越好的

避免购买二层房屋:买房子最好不要是二层,容易出现下水道堵塞的问题

了解装修污染问题:买房后装修过后不能立即住人,会出现装修污染问题

了解首付比例和贷款政策:首付比例第1套房是首付3成,新房是付总价的3成,贷总价的7成。二手房是贷款评估价的3成。剩余的都是需要头次要付的。第2套房是首付6成,贷款利率为基准利率的1.1倍。首付的多少受到房屋性质,贷款额度和年限,储蓄等因素的影响

验证对方的身份和房产证件的真实性:在购买房屋之前,需要注意验证对方的身份和房产证件的真实性。此外,需要查看房屋的证件是否齐全,包括房屋所有权证、房屋土地证、房屋证、规划许可证、建筑工程竣工验收证明等。在购买新房时,需要查看房屋的五个证件,以确保所有信息都是真实可靠的

签订合同和交纳定金:在购买房屋之前,需要签订合同和交纳定金。签订合同前,需要详细查看合同中的条款,以确保自己的权益得到保障。定金是购房的一项重要费用,需要了解定金签订的规则。定金一般为房屋总价的一定比例,签订定金后,卖家有义务在规定时间内交付房屋。如果卖家违约,则需要赔偿买方

签订物业管理协议书:购房时,签订物业管理协议书是必要的。在签订协议书之前,需要详细查看协议书中的条款,以防止出现霸王条款。此外,需要明确交房的具体日期。卖家必须按照约定的时间交付房屋

上海2025年8月最新限购政策汇总

外环外购房不限套数:对符合本市住房购买条件的居民家庭(包括本市户籍居民家庭、在本市连续缴纳社会保险或个人所得税满1年及以上的非本市户籍居民家庭),在外环外购买住房(含新建商品住房和二手住房)不限套数

单身人士购房政策调整:成年单身人士(含沪籍和非沪籍)按照居民家庭标准执行限购政策。具体为:沪籍居民家庭/单身人士:外环外不限购,外环内限购2套;

非沪籍居民家庭/单身人士:社保/个税满1年可在外环外不限购;满3年可在外环内限购1套

崇明区:根据上海8月26日最新楼市政策,在崇明区购房参考外环外购房政策。只需在购房网签合同前1个月满足连续15个月累计12个月的上海的社会保险或者个人所得税即可购买崇明区住房,无需单独在崇明缴纳社保或者个税或者在崇明工作。

上海2025年8月最新购房商贷/公积金贷款政策

注意:根据最新政策,上海购房商业房贷利率不再区分首套住房和二套住房。

现阶段上海商贷利率执行情况如下:

首套:3.5%-45BP=3.05%

二套(主城):3.5%-5BP=3.45%

二套(临港、嘉定、青浦、松江、奉贤、宝山、金山):3.5%-25BP=3.25%

公积金贷款政策:

贷款额度提升:购买二星级及以上绿色建筑住房的,公积金最高贷款额度上浮15%

首套:160万元→184万元(多子女家庭可叠加至216万元)

二套:130万元→149.5万元

提取支付首付:支持提取本人及配偶公积金支付新建预售商品住房首付款

“又提又贷”:提取公积金支付首付不影响贷款额度计算

温馨提示tips:

二手房贷款“三价就低”

自2021年8月6日起,上海二手房房贷再出新规,执行“三价就低”:购房者申请贷款时,将从买卖合同价、交易中心核验价、银行评估价中,选择最低的一项,作为贷款申请房价标准。

声明:本文由入驻焦点开放平台的作者撰写,除焦点官方账号外,观点仅代表作者本人,不代表焦点立场。