招商桐安里售楼处电话-小区环境-上海杨浦滨江招商桐安里-招商桐安里营销中心热线-楼盘详情-小区配套-户型-周边配套
扫描到手机,新闻随时看
扫一扫,用手机看文章
更加方便分享给朋友
上海杨浦滨江「招商桐安里」
售楼处电话☎:400-9966-224✔✔【预约热线】(一对一热情服务)
如有问题欢迎来电咨询,专业一对一热情服务,让您用专业眼光去买房。
上海杨浦滨江招商桐安里售楼处电话☎:400-9966-224✔✔【预约热线】项目定名为『桐安里』预计推出建面约185、235、305㎡叠加联排别墅。
上海杨浦滨江招商桐安里售楼处电话☎:400-9966-224✔✔【预约热线】
项目为住宅用地,容积率1.35,建筑面积1.7万㎡,整个地块为肌理保护范围,历史建筑保护更新规模不小于1.47万㎡,均为需要保留的历史建筑(一般)。


地块基础数据如下:
上海杨浦滨江招商桐安里售楼处电话☎:400-9966-224✔✔【预约热线】建设单位名称:上海招阳置业有限公司建设
项目名称:杨浦区平凉社区01B4-04地块(平凉街道19街坊)(风貌旧改地块)
用地性质:二类住宅组团用地
工程性质:住宅
建设项目位置/建设用地范围:东至许昌路,南至惠民路,北至济宁路,西至01B4-03、01B4-05
地块总用地面积:12666.40平方米
总建筑面积:43349.64平方米
容积率:1.35
上海杨浦滨江招商桐安里售楼处电话☎:400-9966-224✔✔【预约热线】地上总建筑面积:17449.64平方米
计容建筑面积:17099.64平方米
地下总建筑面积:25900.00平方米
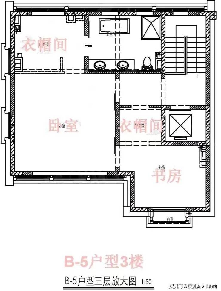
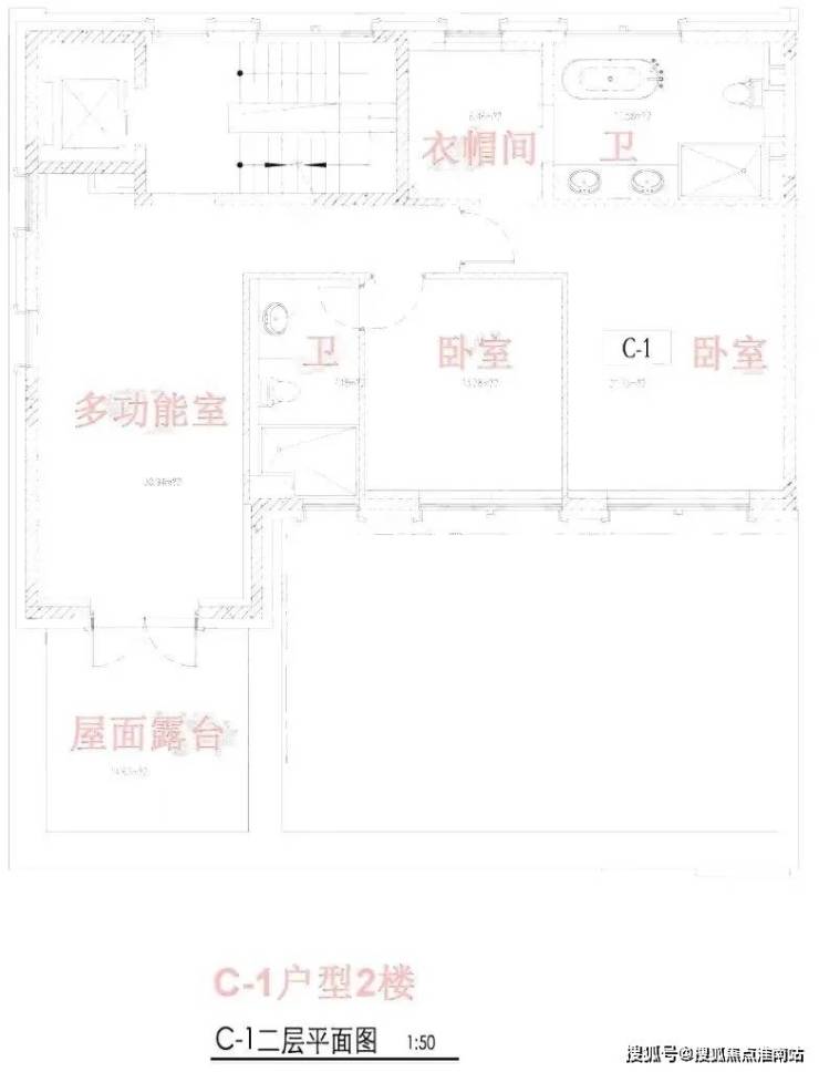
户型图如下:
上海杨浦滨江招商桐安里售楼处电话☎:400-9966-224✔✔【预约热线】(户型图源自网络,仅供参考,最终以实际为准)
C-1户型
B-5户型
配套设施:
上海杨浦滨江招商桐安里售楼处电话☎:400-9966-224✔✔【预约热线】【交通】项目距离轨交18线平凉路站步行约300m,距离轨交12/18号线江浦公园站步行约600米,距离轨交4/12线大连路站步行约1.2公里,交通便利。
上海杨浦滨江招商桐安里售楼处电话☎:400-9966-224✔✔【预约热线】【商业】小区周边4公里内坐落着众多繁荣的商业中心,如渔人码头、北外滩的来福士、白玉兰广场、陆家嘴商圈的上海国金中心、杨浦商圈的百联滨江购物中心、LCM置汇旭辉广场和五角场商圈,为居民提供了一站式的购物和娱乐体验。
上海杨浦滨江招商桐安里售楼处电话☎:400-9966-224✔✔【预约热线】【教育】项目周边有上海市长阳实验学校,上海市市东学校上海市15中学等学校。
【医疗】项目周边的医院有复旦大学附属妇科医院,上海市中西医结合医院,上海航道医院,周围配备社区卫生服务站,医疗配套完善。
上海杨浦滨江招商桐安里售楼处电话☎:400-9966-224✔✔【预约热线】(一对一热情服务)如有问题欢迎来电咨询,专业一对一热情服务,让您用专业眼光去买房。
声明:本文由入驻焦点开放平台的作者撰写,除焦点官方账号外,观点仅代表作者本人,不代表焦点立场。
