澐启滨江(2025)澐启滨江售楼处电话→楼盘百科→澐启滨江首页网站→楼盘百科→首页网站→24小时热线电话
扫描到手机,新闻随时看
扫一扫,用手机看文章
更加方便分享给朋友
澐启滨江售楼处电话:400-8818-994✅︎✅︎✅
上海后滩华润澐启滨江营销中心热线4008818994(官方预约热线)
看房请务必致电与销售确认时间,仅预约客户可享受开发商内部优惠,专属老带新推荐奖!
澐启滨江
澐启滨江售楼处电话:400-8818-994✅︎✅︎✅
上海后滩华润澐启滨江营销中心热线4008818994(官方预约热线)
如有问题欢迎来电咨询,来电即可享受买房优惠!
预约来电尊享购房优惠,可预约案场内部销售人员,专业一对一热情服务,让您用专业眼光去买房。
澐启滨江售楼处电话:400-8818-994✅︎✅︎✅
上海后滩华润澐启滨江营销中心热线4008818994(官方预约热线)
最新消息:上海的顶流红盘来了!华润后滩项目案名正式公布:澐启滨江,项目将推123-286㎡高层,预计今年11月左右入市。
不知道最近你朋友圈被“华润后滩”这四个字刷屏了没?反正独家君的各种粉丝交流群、朋友圈都快被它霸榜了,它仿佛自带热搜体质,从规划出炉到展厅开放(预计9月中下旬),每一个动作都牵动着市场神经,成为大家口中“必须去看看”的神盘。
澐启滨江售楼处电话:400-8818-994✅︎✅︎✅
上海后滩华润澐启滨江营销中心热线4008818994(官方预约热线)
澐启滨江售楼处电话:400-8818-994✅︎✅︎✅
上海后滩华润澐启滨江营销中心热线4008818994(官方预约热线)
但问题是,人人都说好,那么这个项目好在哪里?究竟有哪些吸引人的亮点?
今天,这篇“预热”版选房攻略,就是专门来给你划重点的,从项目的总图解析,到视野模拟,再到最新的户型以及效果图曝光,可以说应有尽有!一起来看!(本文相关模拟分析数据仅供参考,具体以交房之后实测为准)
澐启滨江售楼处电话☎:400-8818-994
总图详解
据了解,项目的07-01地块或将率先入市,目前该地块设计方案已公示!
根据公示的设计方案,华润后滩项目主要由九栋25-32F住宅楼、若干社区配套用房以及部分商业用房组成,共计规划约794户!
澐启滨江售楼处电话:400-8818-994✅︎✅︎✅
上海后滩华润澐启滨江营销中心热线4008818994(官方预约热线)
1.楼栋转角布局
由于地块西南侧即是黄浦江景,所以地块西部以及中部能够看到黄浦江景的楼栋都进行了转角处理,使得瞰江视野更佳,将稀缺江景的价值利用率提到最大化!
澐启滨江售楼处电话:400-8818-994✅︎✅︎✅
上海后滩华润澐启滨江营销中心热线4008818994(官方预约热线)
地块以西的几个商办地块规划高度为50米,因此理论上在50米以上的高度才有可能看到相对完整的江景视野,不过鉴于07-01地块西边楼栋和楼王都做一点的南偏西转向,因此50米以下的住户,有没有机会“夹缝里看江”还得看前排商办具体的设计方案。
澐启滨江售楼处电话:400-8818-994✅︎✅︎✅
上海后滩华润澐启滨江营销中心热线4008818994(官方预约热线)世博江景如何?独家君专门去实地进行了航拍,分别从60米-80米-100米的高度瞰江视野模拟,以2幢楼位置为例,基本在建筑高度60米的位置就可以很好地观赏黄浦江风景。
澐启滨江售楼处电话:400-8818-994✅︎✅︎✅
上海后滩华润澐启滨江营销中心热线4008818994(官方预约热线)
建筑高度60米视野模拟实拍图
当建筑高度来到80米时,瞰江视野会进一步得到提升,并会随着高度的不断增加,瞰江视野会越来越壮阔。
澐启滨江售楼处电话:400-8818-994✅︎✅︎✅
上海后滩华润澐启滨江营销中心热线4008818994(官方预约热线)
建筑高度80米视野模拟实拍图
建筑高度来到最高的100米时,瞰江感受是这样的:
澐启滨江售楼处电话:400-8818-994✅︎✅︎✅
上海后滩华润澐启滨江营销中心热线4008818994(官方预约热线)
建筑高度100米视野模拟实拍图
2.下沉庭院极其庞大
从公示总图上可以看到,项目的下沉庭院范围极其庞大,几乎占据了一半的社区景观位置,还有各种形状小型下沉庭院分散布置,可以说是独家君近年来所看项目中最大的!
3.全盘两梯两户+三梯四户配置澐启滨江售楼处电话☎:400-8818-994
澐启滨江售楼处电话:400-8818-994✅︎✅︎✅
上海后滩华润澐启滨江营销中心热线4008818994(官方预约热线)大户型2梯2户,小户型3梯4户设计,其中值得注意的是123㎡小户型在此玩了一个高明的“空间魔法”:用3梯4户的配置,给123㎡的边套也变出了“一梯一户”的尊贵感。这让南向两面宽的短板,瞬间被极强的入户私密性和仪式感所弥补。
3.社区全架空层设计
华润是搞架空层的“老司机”了,之前在中环置地中心就搞过十几个功能不同的架空层。这次在后滩项目上更夸张!社区住宅首层全架空!预估基底面积,加起来差不多得有4000+㎡的架空层!
4.全社区人车分流,归家流线风雨无阻
澐启滨江售楼处电话☎:400-8818-994
澐启滨江售楼处电话:400-8818-994✅︎✅︎✅
上海后滩华润澐启滨江营销中心热线4008818994(官方预约热线)地面零车位且地库出入口皆位于机动车出入口附近,机动车一进社区即可下地库,真正实现人车分流;风雨连廊(景观构架)更是贴心连接大部分楼栋入户门,归家仪式感拉满。
5.层高条件十分优越
澐启滨江售楼处电话☎:400-8818-994
澐启滨江售楼处电话:400-8818-994✅︎✅︎✅
上海后滩华润澐启滨江营销中心热线4008818994(官方预约热线)综合各个楼栋层数以及建筑高度,再刨去女儿墙及架空层,独家君初步预估:大户型楼栋的层高基本在3.3-3.4米左右,小户型楼栋的层高基本在3.05-3.1米之间。
6.服务配套设置集中,不利配套远离住宅且位置隐蔽
澐启滨江售楼处电话☎:400-8818-994
澐启滨江售楼处电话:400-8818-994✅︎✅︎✅
上海后滩华润澐启滨江营销中心热线4008818994(官方预约热线)社区的配套用房主要分布于地块东南部的沿街建筑中,还有一个便利店位于社区中心;垃圾房、燃气调压站、K站以及配电设施等一系列不利配套均被隐藏在了沿街配套中或设置在地块边缘角落中,将对住宅建筑的不利影响减至最小化!
7.社区注重城市沿街面的打造
澐启滨江售楼处电话☎:400-8818-994
澐启滨江售楼处电话:400-8818-994✅︎✅︎✅
上海后滩华润澐启滨江营销中心热线4008818994(官方预约热线)华润这次在社区沿街面的打造上也是下足了功夫,可以看到独家君用红线圈出来的地方,就是本次华润打造的超绝城市界面,范围几乎覆盖了地块的南面以及东面,充斥着大量的景观构架以及玻璃幕墙,再结合本身的楼栋+商业+巨大的人行主门头+车行门头+配套,豪宅逼格算是拉满了。

澐启滨江售楼处电话:400-8818-994✅︎✅︎✅
上海后滩华润澐启滨江营销中心热线4008818994(官方预约热线)
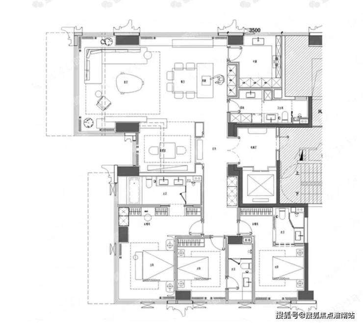
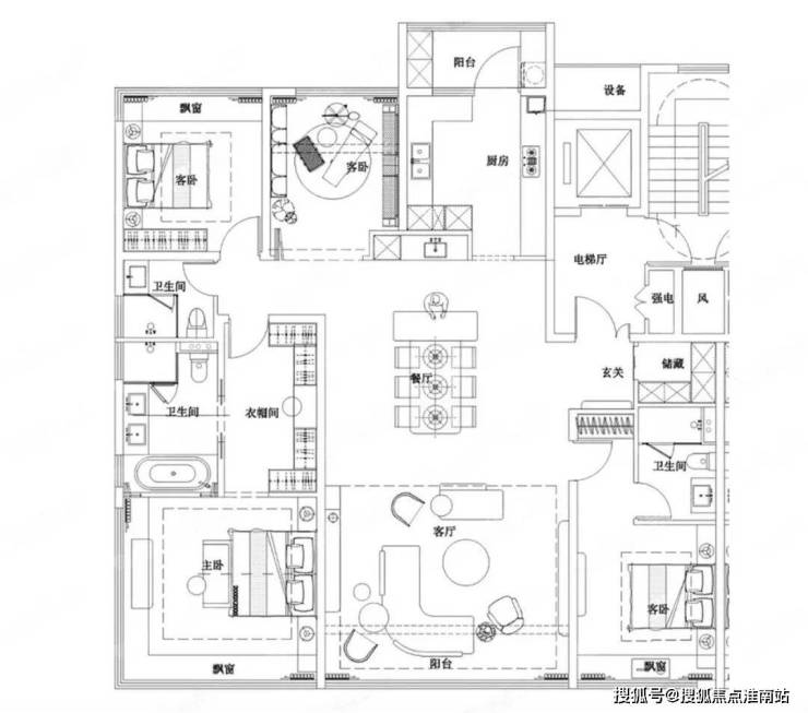
户型及效果图
根据爆料,华润后滩项目将推123-286㎡高层,预计今年11月左右入市。户型分布图如下:
澐启滨江售楼处电话☎:400-8818-994 户型最新过程稿也已经曝光:
123㎡3房2厅2卫
澐启滨江售楼处电话:400-8818-994✅︎✅︎✅
上海后滩华润澐启滨江营销中心热线4008818994(官方预约热线)
150㎡3房2厅2卫
澐启滨江售楼处电话:400-8818-994✅︎✅︎✅
上海后滩华润澐启滨江营销中心热线4008818994(官方预约热线)
185㎡4房2厅2卫
澐启滨江售楼处电话:400-8818-994✅︎✅︎✅
上海后滩华润澐启滨江营销中心热线4008818994(官方预约热线)
200㎡4房2厅3卫
澐启滨江售楼处电话:400-8818-994✅︎✅︎✅
上海后滩华润澐启滨江营销中心热线4008818994(官方预约热线)
227㎡4房2厅3卫
澐启滨江售楼处电话:400-8818-994✅︎✅︎✅
上海后滩华润澐启滨江营销中心热线4008818994(官方预约热线)
235㎡4房2厅3卫
澐启滨江售楼处电话:400-8818-994✅︎✅︎✅
上海后滩华润澐启滨江营销中心热线4008818994(官方预约热线)
238㎡4房2厅3卫
澐启滨江售楼处电话:400-8818-994✅︎✅︎✅
上海后滩华润澐启滨江营销中心热线4008818994(官方预约热线)

澐启滨江售楼处电话:400-8818-994✅︎✅︎✅
上海后滩华润澐启滨江营销中心热线4008818994(官方预约热线)

澐启滨江售楼处电话:400-8818-994✅︎✅︎✅
上海后滩华润澐启滨江营销中心热线4008818994(官方预约热线)
项目地理位置优势明显,后滩九宫格地处浦东内中环,属于上海中央活动区(CAZ)范围,比前滩更靠近内环。该区域正从过去的工业遗址转型为高端住宅区,规划了集高端商务区、品质住宅、优质教育于一体的综合性社区。
澐启滨江售楼处电话☎:400-8818-994 政府规划支持力度大 政府调整了规划,住宅占比升至59%,显示了从"造楼"到"造城"的战略转变,旨在打造一个产城融合的超级生活体。这种政府背书的发展规划,为区域长期价值提供了保障。
澐启滨江售楼处电话:400-8818-994✅︎✅︎✅
上海后滩华润澐启滨江营销中心热线4008818994(官方预约热线)
交通方面,项目紧邻轨交19号线德州路站,可与8号线、11号线换乘于东方体育中心站,与7号线换乘于后滩站,周边多条快速路、高架路纵横交错,交通出行便捷。

澐启滨江售楼处电话:400-8818-994✅︎✅︎✅
上海后滩华润澐启滨江营销中心热线4008818994(官方预约热线)
休闲方面,项目距离上海世博文化公园,东方体育中心等大型公共休闲配套均不到1公里!

澐启滨江售楼处电话:400-8818-994✅︎✅︎✅
上海后滩华润澐启滨江营销中心热线4008818994(官方预约热线)
商业方面,2公里范围内可享前滩太古里、晶耀前滩、森宏购物广场、世博源等大型商业中心;
澐启滨江售楼处电话:400-8818-994✅︎✅︎✅
上海后滩华润澐启滨江营销中心热线4008818994(官方预约热线)
教育方面,上南实验小学、德州一村小学、历城中学、洪山中学以及一众民办学校等教育资源环伺。
澐启滨江售楼处电话:400-8818-994✅︎✅︎✅
上海后滩华润澐启滨江营销中心热线4008818994(官方预约热线)
后滩这块地,说实话,真的是浦东目前数一数二的宝地——在滨江板块、地铁口、城市界面新,再加上是华润这种级别的开发商来做,旁边还有前滩、徐滨和世博的配套,新学校也在建……几乎每个点,都精准命中想在上海浦东买房人的心思。
再加上,这个项目几乎可以确定属于华润顶级产品线——“瑞系”。跟几年前的前滩项目比,这是完全不同时代的产品,居住体验根本不在一个层面。
毫无疑问,这个项目基本已经预定了年度热门楼盘。
1、得房率:指套(单元)内建筑面积与套建筑面积的比率。
2、公共能耗:是小区共用部位、共用设备和公共设施及在公共性服务中所发生的水、电、煤等能源消耗。
3、公共能耗费:因公共能耗而产生的费用
4、公共能耗费由谁承担:由全体业主承担。
5、规划形态是指:项目的具体建筑构成。
6、单元式住宅:是指在多层、高层楼房中的一种住宅建筑形式
7、居住单元:每个楼梯的控制面积称为一个居住单元。
8、一梯几户是指:一个单元里平层有几户的俗称。
9、房型(户型):是指一套住宅由多少卧厅、厨、卫等组成的总称。
10、面积配比:指的是各种房型面积在项目或单元中所占比例的多少。
11、房型配比:指的是各种房型在项目或单元中所占的比例的多少。
12、阁楼:是指位于房屋坡屋顶下部的房间。
13、普通住宅:是指按一般民用住宅标准造的居住用住宅。
14、准现房:准现房是指房屋主体已基本封顶完工,工程正处在内外墙装修和进行配套施工阶段的房屋。
15、居住组团:指一般被小区道路分隔,配建有居民所需的基层公共服务设施的居住生活聚居地。
16、公寓:是指二层以上供多户人家居住的楼房建筑。
17、纯办公楼:是指专为各类公司的日常营运提供办公活动空间的大楼。
18、商场:是指规划为对外公开进行经营的建筑物
19、综合楼:是指兼有住家、办公甚至商场的大楼。
20、商住住宅:是住宅观念的一种延伸,它属于住宅,但同时又融入写字楼的诸多硬件设施,使居住者在居住同时又能从事商业活动的住宅形式。
21、别墅:是指在郊区或风景区建造的供住宿休养用的花园住宅。
22、联排别墅:三户或三户以上连体的别墅。
23、双拼别墅:二户连体的别墅。
24、独栋别墅:单楼独栋的别墅。
25、跃层式产品:住宅占有上下两层楼南,卧室、起居室、客厅、卫生间、厨房、及其它辅助用房可以分层布置,上下层之间的交通采用户内独用小楼梯联接。
26、跃层式产品的优点:跃层式住宅的优点是每户都有较大的采光面,通风较好,户内居住面积和辅助面积较大,布局紧凑,功能明确,相互干扰较小。
27、复式产品(LOFT):在建造上仍每户占有上下两层,实际是在层高较高的一层楼中增建一个夹层,两层合计的层高要大大低于跃层式住宅。
28、错层式住宅:是指楼面高度不一致错开之处有楼梯联系的住宅。
29、SHOPPINGMALL:大型购物广场的英文名称。
30、共有房产:共有房产是指某一房产属于两个或两个以上的所有人共同所有。
31、半地下室:是指房间地面低于室外地平面的高度超过该房间净高的1/3,且不超过1/2者。
32、地下室:地下室是指房间地面低于室外地平面的高度超过该房间净高的1/2者。
33、一地下室室内净高2.6米,2米低于室外地平面,属于半地下室还是地下室:属于地下室。
34、商品房验收合格指的是:单体(即单幢楼盘)验收合格。
35、商品房综合验收合格指的是:包含所有配套设施在内的全部建筑物的验收合格。
36、空鼓:局部面与基层没有胶合剂或胶合剂没有起作用。
37、地基:建筑物下面直接承受建筑物重量的土层称为地基。
38、基础:建筑物的最下端与土壤直接接触的部分称为基础。
39、基础的作用:基础的作用是承受建筑物全部重量并将之分散传递给地基。
40、墙体是构件,也可以是构件:是维护分割构件,同时也可以是承重构件。
41、在一般砖混结构房屋中,墙体也是主要的:承重构件。
42、停车场:指在建设用地内为停放机动车和非机动车须配置的场地。
43、停车场小型机动车位面积计算:按每车位25平方米计算。
44、自行车位按每车位多少平方计算:1.2平方米计算。
45、商品房销售面积又称之为:套建筑面积
46、套建筑面积包括哪两部份:套内建筑面积和分摊的公用建筑面积。
47、商品房预售许可证是由什么单位向什么单位发放的一项证书:是房地产管理部门向房地产开发公司颁发的一项证书。
48、商品房预售许可证的作用是:用以证明列入证书范围内的正在建设中的房屋已经可以预先出售给承购人。
49、契税是指:房屋所有权发生变更时,就当事人所订契约按房价的一定比例向产权承受人征收的一次性税收。
50、公共维修基金是指:住宅楼房的公共部位和共用设施、设备的维修养护基金。
澐启滨江
售楼处电话☎:400-8818-994
如有问题欢迎来电咨询,来电即可享受买房优惠!
预约来电尊享购房优惠,可预约案场内部销售人员,专业一对一热情服务,让您用专业眼光去买房。
澐启滨江售楼处电话☎:400-8818-994
楼盘项目全面介绍,本电话为开发商提供线上预约售楼电话,楼盘项目全面介绍(包含楼盘简介,均价,房价,现房,期房,别墅,叠墅,大平层,价格,楼盘地址,户型图,交通规划,备案价,备案名,项目配套,样板间,开盘时间,认筹时间,楼盘详情,售楼处电话,最新消息,最新详情,周边配套,一房一价,最新进展等详情咨询)楼盘详情丨价格丨更多优惠丨机不可失丨欢迎致电丨诚邀品鉴!售楼处位置丨特价房丨工抵房丨剩余房源丨户型图丨最新消息丨免责声明:将文章内容综合来源于网络、只作分享,版权归原作者所有!!如有侵权,请联系我们,我们第一时间处理如有问题欢迎来电咨询,专业一对一热情服务,让您用专业眼光去买房。如果您想了解更多楼盘详情,欢迎提前预约拨打
声明:本文由入驻焦点开放平台的作者撰写,除焦点官方账号外,观点仅代表作者本人,不代表焦点立场。
