华润澐启滨江售楼处电话☎:400-998-9694✔✔华润澐启滨江售楼处电话☎:400-998-9694✔✔华润澐启滨江推出约125-286㎡三至四房,采用创新设计,融合滨江景观与高端品质,引领上海滨江豪宅新标准。
华润澐启滨江
售楼处电话☎:400-998-9694✔✔
如有问题欢迎来电咨询,来电即可享受买房优惠!
预约来电尊享购房优惠,可预约案场内部销售人员,专业一对一热情服务,让您用专业眼光去买房。
华润澐启滨江售楼处电话☎:400-998-9694✔✔

华润澐启滨江售楼处电话☎:400-998-9694✔✔
浦东后滩 华润置地中国江河1号作品
「华润后滩项目」「澐启滨江」
将推出建面约125-286㎡3-4房
华润澐启滨江售楼处电话☎:400-998-9694✔✔
项目信息
8月1日,华润置地联合南房集团以股权转让的形式,成功拿下了后滩07-01、04-01以及黄浦余庆里地块,总成交价244.7亿元!
华润澐启滨江售楼处电话☎:400-998-9694✔✔

上海首个一线滨江新规豪宅
上海“好房子”新规的发布,不仅是一次居住标准的升级,更是一场从居住理念到空间形态的系统性革新。
华润澐启滨江售楼处电话☎:400-998-9694✔✔ 当政策红利驱动高端住宅进入“品质竞赛新纪元”,滨江这一承载上海城市精神的黄金地带,正迎来产品力的全面跃升。而澐启滨江,以“新规首作”的标杆姿态,凭借设计理念的前瞻性与居住体验的革新性,对上一代产品实现全方位超越,独创“十二大颠覆性设计体系”,为上海滨江豪宅树立起难以企及的新高度。

华润澐启滨江售楼处电话☎:400-998-9694✔✔
简单来说,不是让建筑“看风景”,而是让建筑本身成为风景的延伸!建筑的形态,是城市精神的具象表达。

华润澐启滨江售楼处电话☎:400-998-9694✔✔
澐启滨江的外立面设计,没有跟风玻璃盒子,而是用进口铝板+超白玻璃幕墙组合,线条模拟江潮起伏的弧度。
华润澐启滨江售楼处电话☎:400-998-9694✔✔ 最绝的是色彩灵感来自黄浦江上百年沙船,浪白色基调配夕阳金镶边,让建筑变成江岸的“发光灯塔”。
塔冠如灯塔般指引回家,中段以浪白与夕阳金游艇舱勾勒出270°江景画框,下段石材柱廊则向上生长出ART-DECO经典线条,整体既精致又有腔调。

华润澐启滨江售楼处电话☎:400-998-9694✔✔

华润澐启滨江售楼处电话☎:400-998-9694✔✔
整体建筑如一艘停泊于江岸的“时代巨轮”,将江脉文明与当代设计语言无缝融合,给上海住宅的审美与居住体验制定了新的标准!突破传统社区“平面造景”的局限,澐启滨江社区围墙被下沉水景和绿化替代,滨江步道直接融入世博文化公园的10公里绿廊,实现 “推窗见江、移步入园”。

华润澐启滨江售楼处电话☎:400-998-9694✔✔
社区内配置巨幅透明全景泳池&群岛会所体系,另外还有全域架空+立体峡谷的设计。

华润澐启滨江售楼处电话☎:400-998-9694✔✔
所有楼栋一层全架空,形成风雨连廊和下沉庭院;社区内中央水轴串联四大主题园区(亲子乐园、静谧花园等),甚至引入雾森系统营造“仙境感”。


华润澐启滨江售楼处电话☎:400-998-9694✔✔
这种“自然生态+人文社交”的双重赋能,重新定义了上海高端住宅的审美高度与生活维度。

华润澐启滨江售楼处电话☎:400-998-9694✔✔
作为“新规首作”,澐启滨江在户型设计上实现了“视野革命”与“空间弹性”的双重突破。
建面约230-285㎡「环幕江景舱」,以“270°无界平层”结构打破传统空间边界,3.3米层高(部分户型)配合全景落地窗,将黄浦江的流动韵律、徐汇滨江的艺术天际线与社区的峡谷景观三重资源无界引入室内,成就上海滨江市场罕见的“IMAX环幕视野”。

华润澐启滨江售楼处电话☎:400-998-9694✔✔
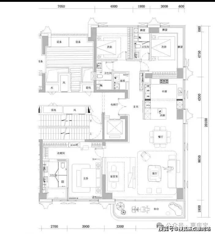
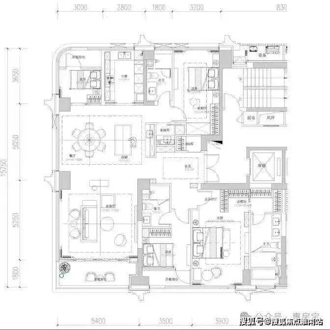
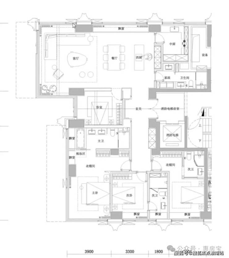
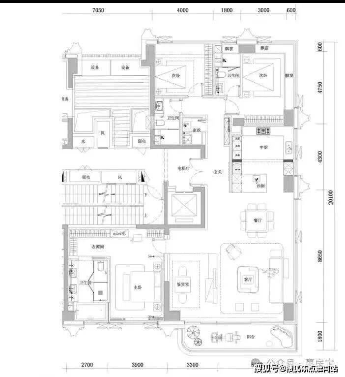
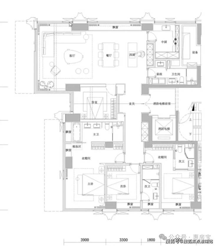
户型图过程稿:(过程稿仅供参考,最终以实际为准)
123㎡3房2厅2卫

华润澐启滨江售楼处电话☎:400-998-9694✔✔
241㎡3房2厅2卫

华润澐启滨江售楼处电话☎:400-998-9694✔✔
185㎡4房2厅3卫

237㎡4房2厅3卫华润澐启滨江售楼处电话☎:400-998-9694✔✔

华润澐启滨江售楼处电话☎:400-998-9694✔✔
231㎡4房2厅4卫

286㎡4房2厅4卫

华润澐启滨江售楼处电话☎:400-998-9694✔✔
板块信息
衡量一条江的价值,最有份量的方式是「时间」黄浦江的百年变迁,值此四个时刻为世人所铭记每一个时刻,都事关世界,亦将上海推向世界。
华润澐启滨江售楼处电话☎:400-998-9694✔✔ 如今,当你站在外滩,看浦江两岸新旧交织的天际线,看到的不仅是城市景观,更是一部中国近代化与全球化,最为激荡的流动历史。从外滩万国建筑群勾勒出的恢弘轮廓,到陆家嘴摩天楼宇刺破天际的磅礴力量,再到世博盛会向世界展开的瑰丽画卷…….黄浦江的百年奔流,无声地见证并承载着这座城市的雄心与诗意。

华润澐启滨江售楼处电话☎:400-998-9694✔✔
而今,时代的聚光灯再次落下,一处全球瞩目HEARTOf BUND--后滩,正于历史与未来的交汇处傲然屹立,为这条传奇江岸,开启下一章的无限想象。后滩之于上海,是更前瞻的探索者,当一座城市的顶级核心区域,可以同时拥有世界级的经济密度、世界级的生态品质和世界级的文化空间,在这条赛道上后滩驱动上海成为全球的领跑者。曾经全球滨水模式看伦敦与纽约,43公里泰晤士河与21公里哈德逊河的沿岸是世界级的金融、文化、旅游和公共生活走廊。


华润澐启滨江售楼处电话☎:400-998-9694✔✔
今天,当浦江两岸45公里滨水岸线全线贯通,黄浦江百年恒流,终以雄心垂范世界。
正如全国政协常委、上海公共外交协会会长周汉民所言,像这么一个滨水岸线长度的贯通与功能再造,纽约、伦敦、东京、巴黎都不能比的,这绝对是一个有世界影响力的故事。在这里,新黄金三角,正将世界水岸的潮汐,引向东方。

华润澐启滨江售楼处电话☎:400-998-9694✔✔
过往由老外滩、北外滩与陆家嘴构成的“黄金三角”成为19与20世纪的辉煌见证。当下,一个由世博滨江、后滩、前滩及对岸的徐汇滨江共同构筑的、更具划时代意义的“黄金三角2.0”正在崛起,堪称上海在21世纪最伟大的成果。它彻底颠覆了20世纪“功能分离”的城市模式,开创了“功能混合”的未来范式。其核心灵魂是将创新、生态、文化、居住、休闲等功能如同经纬线般紧密编织。它追求的不仅是经济密度,更是生活的温度、文化的厚度与创新的活力。

华润澐启滨江售楼处电话☎:400-998-9694✔✔
曾经追赶,现在超越,新黄金三角的诞生凝练了上海过去数十年的发展智慧,承载着21世界上海建设卓越全球城市的最高成果,标志着中国在城市滨水区开发上实现了从对标到超越的原创性引领。而后滩,正位处新黄金三角的地理中心,也是城市精神和生活方式的驱动核心。这片曾为世界访客搭建的舞台,历经十五年的沉淀与远见卓识的规划,正在展开属于上海的滨江远见。

华润澐启滨江售楼处电话☎:400-998-9694✔✔
后滩,不仅是黄浦江畔的珍贵留白,更是一场关于“上海如何与江河共生”的伟大探索。华润置地择址于此在时代巨澜中领帆开来,以“大江大河”回应上海“一江一河”的世纪战略,为世界,著写中国江河1号作品。上海的城市发展,始终围绕黄浦江展开,而一条黄浦江,仅有两个天然S湾。第一条S湾孕育“外滩-北外滩陆家嘴”世界级会客厅,奠定上海全球金融中心的地位;第二条S湾则诞生“世博-前滩-徐汇滨江”新黄金三角,以“艺术+文化+总部经济”重新定义全球生活方式,也是黄浦江的「珍藏一湾」。这条S湾上,串联起世博、前滩、徐汇滨江三大CAZ,沉淀着21世纪上海江河的璀璨成果。超7000亿GDP在此创造,4000家企业巨擘在此聚首,构筑起一座足以比肩全球的产业江岸。所以,后滩存在的意义,从不是为了追赶时代,而是为了定义下一个时代。后滩,它首先是地理之心。S湾总长约7KM水岸,浦东岸线以西岸梦中心为中点展开,浦东则以后滩为地理中心串联南北,东西隔江对望,标定新S湾正心。其次,是政策之心。在《黄浦江沿岸地区功能融合发展和空间品质提升专项规划(2025-2035年)》中,后滩被定义为“浦江之心,活力珠链”打造面向全球的城市滨水新都心、科技创新中心、文化交流中心和城市中心活动区。上海沿江板块众多,但能被官方钦点为浦江之心”的,有且仅有后滩。再者,它是资源之心,众星捧月的土地之上,后滩书写永不落幕的万千精彩。漂启滨江立踞于此,北邻世博文化公园与央企总部高地,南接前滩国际商务区,隔江对望徐汇滨西岸艺术硅谷,目之所及,城市TOP级景观拥揽入怀,关于江流的精彩和想象,汇涌而来。


华润澐启滨江售楼处电话☎:400-998-9694✔✔



华润澐启滨江售楼处电话☎:400-998-9694✔✔ 华润澐启滨江售楼处电话☎:400-998-9694✔✔

华润澐启滨江售楼处电话☎:400-998-9694✔✔
规划一线,难再有。黄浦江沿岸世界级滨水区覆盖流域,结合滨水空间特点和功能导向,细分为三个层次内层亲水营造范围(滨江开放空间向外约100-400米)中层品质提升范围(从滨江开放空间向腹地拓展约500-1000米范围)以及外层赋能拓展范围(从滨江开放空间向腹地拓展约2公里)。启滨江直线距江约300米,位处「内层亲水营造」范围,领衔一线滨江生活范式。景观一线,不曾有。向前,是徐滨的ART&AI风景;向左,是前滩的时尚活力霓虹,向右,是世博会客厅的璀璨天际。澐启滨江,目之所及,皆是上海封面级视野。资产一线,不再有。纵观黄浦江S湾三十余年开发史:仅有11个一线滨江住区。当启滨江落笔于最后一片可成片开发的珍藏江岸,这不仅是时代馈赠的恒贵资产,更是上海留给极少数人的旗舰恒藏。


华润澐启滨江售楼处电话☎:400-998-9694✔✔
地铁19号线(在建)的德州路站就在社区门口。这条投资938亿、单价超20亿/公里的“全球最贵地铁线”,串联起北外滩、陆家嘴、前滩三大核心CBD。

未来,居民无需换乘即可直达外滩金融中心,实现“地铁一响黄金万两”的资产增值逻辑。

1、房地产:指房产和地产的总称(又称不动产)。
2、房地产的三种存在形态:
单纯的土地、单纯的房屋、土地房屋的综合体
3、房地产的特征:
a、房地产位置的固定性(土地不可移,房屋也不可动);
b、房地产地域的差别性(每宗房地产的价值都不同);
c、房地产的高值、耐久性(价格贵、土地永久的);
d、房地产的保值、增值性(货币贬值、房产保值、货币增值、房产增值);
4、房产:是房屋及其权利的总称(占有、使用、收益、处分等权利)。
5、房屋分类:
a、功能用途:居住用房(小区、高品住宅)、工业用房(厂房、仓库)、商业用房(门面、商场)、办公用房(写字楼)、行政用房(军事、学校等单位用房及城市);
b、建筑结构:钢结构、钢筋混凝土结构、砖混结构、砖木结构和其他;
c、所有权归属:公房(直管公房和自管公房等)和私房;
6、地产:是土地及其权利的总称(使用、收益、转让等权利)。
7、土地分类:
a、开发利用:生地和熟地;
b、建筑功能:建筑用地和非建筑用地;
c、用途:居住用地、商业服务用地、工业用地、仓储用地、市政公共设施用地、交通用地、绿化用地、特殊用地等;
8、房地产业:指从事房产开发、经营、管理和服务的行业。包括:
a、土地开发;
b、房屋建设、维修、管理;
c、土地使用权的有偿划拔、转让;
d、房屋所有权的买卖、租赁;
e、房地产抵押贷款;
f、房地产市场;
9、土地使用权:就是土地所有者根据土地分类对土地加以利用的权利(指依法对土地经营、利用和收益的权利)。土地公有制采取了两种形式:即集体所有制和国家所有制。a)农村土地采用了集体所有制,属于农民集体所有;b)城市土地采取国家所有制的形式,属于全民所有;任何个人不能取得土地的所有权。
土地使用获得的方式:
划拔:无偿使用,如学校、医院、军事用地、机场等市政建设工程;
出让:从国家有偿取得使用权,方式:协议(如200-250万/亩)、招标(提出底价,根据使用用途和价格取得)、拍卖(价高者竟得,不违法的前提下,通过正规渠道取得);
10、房地产市场:
a、一级市场:以土地为体(亦称土地市场、土地交易市场);
b、二级市场:开发商获得土地后,投入一定的奖金建设,通过有偿或赠与将产权转买给需求者(新建商品房的买卖市场);
c、三级市场:房屋在消费市场的再次流通,包括:买卖、抵押、转让、租凭(二手房);
房地产市场结构善一览表:
市场称谓
一级市场
二级市场
三级市场
称谓
土地使用权出让市场
土地使用权转让市场、增量商品房市场、住房一级市场等
土地使用权转让市场、存量商品房市场、二手房市场、住房二级市场等
市场主体
政府、开发企业(投资者)
开发企业、业主
业主
市场客体
国有土地使用权
增量商品房
存量商品房、已售旧公房、私房
交易方式
拍卖、招标、协议
出售、出租等
买卖、租赁、交换等
11、土地使用权出让:指国家以土地所有者身份,按指定地块的使用年限、用途和城市规划等条件,将城市土地使用权出让给土地使用者,并向土地使用者收取土地使用权出让金的行为。出让交易双方是国家和用地单位或个人。
12、土地产权:包括土地所有权、地上权、地役权、抵押权、典权、租赁权。
地上权:指以支付租金为代价在他人土地上建筑房屋的权利,它的实质就是土地使用权;
地役权:指利用他人土地供自己使用的权利;
抵押权:指土地使用权获得者在其有效的使用期限内有以土地作抵押获取银行贷款或其他担保的权利;
租赁权:指土地使用权获得者在其有效使用期限内将土地租给他人使用以获取收益,承租人即取得该块土地的租赁权;
13、土地使用年限:指国家将土地使用权出让给土地使用者,双方约定土地使用者可以使用的年限。
1)土地使用权出让年限:
a、居住用地70年;
b、工业用地、教育、科技、文化卫生、体育及综合或其他用地50年;
c、商业、旅游、娱乐用地40年;
PS:使用用途需转换的要补年限地价的差价,国家指定的则遵照执行;
2)土地使用年限到期后如何处理:
a、国家有权无条件的收回该土地;
b、建筑主体经质控部门检验后不属危房;
c、项目的存在不影响城市规划,不影响市容,只要向政府缴纳土地出让金可以继续使用。
PS:b、c条完全存在的情况下,以当时的地价购买使用年限,年限由政府规定,否则无条件收回;
14、商品房:开发商以市场地价取得土地使用权后进行开发建设,并经国土局批准在市场上流通的房地产,它是在获取房产证后,可自行转让、出租、继承、抵押、交换的固定资产。
商品房的物业类型:住宅、写字楼、商场、酒店、市场。
15、商品房的预售制度:五证二书
五证:〈国有土地使用证〉、〈建设用地规划许可证〉、〈建设工程规划许可证〉、
〈建设工程施工许可证〉、〈商品房预售许可证〉
二书:〈质量保证书〉、〈使用说明书〉、两书可以作为商品房买卖合同的补充约定,并且是房地产开发企业在商品房交付使用时向购房人提供的对商品房住宅承担质量责任的法律文件和保证文件。
16、烂尾楼:指未能完成施工中途停建的楼盘。造成楼盘烂尾的原因主要有资金不足、设计、施工存在严重质量问题,非常建设等。
17、楼花:指已经动工建造,但尚未建成的楼宇、房屋。即指图纸上的楼宇,处于建筑施工的最初阶段,离交房时间长,价格优惠,买了后又可转卖,赚差价。
18、炒楼花:买卖尚未建筑好的房屋。(现在政府有规定,商品房5年内不许转让,交5%的营业税,为了控制炒房)
19、期房:指具备预售条件,尚未竣工交付使用的商品房。(价格低、选择空间大、户型齐全、可监督建筑材料、质量)
20、现房:指已经工程质量监督部门验收,并取得质量合格证明文件,可以交付使用的商品房。(即买即入住、价格高、户型过时、选择空间不大)
21、经济适用房:指以微利价出售给广大中低收入家庭的商品房(带有社会保障性质的商品住宅,是有经济性和适用性)。不是人人可以买到,必须符合当地政府所规定的条件,经过排号购买。长沙房口,25岁以上,65㎡以内以经济价购买,65㎡以外以商品房价购买,5年后才能转卖)。
22、二手房:办好产权证,进行再次转让的房屋。其他如:公房、私房、集资房、廉租房、安置房等福利房。
23、诚意金:指商品房在未取得预售证之前,开发商收取客户的可退回的款项(一般可以获得开发商的折扣承诺)。
24、定金:指当事人约定由一方向对方付给的作为债权人担保的一定数额的货币(能担保债权人的作用)不能返还。
25、订金:不能担保债权人的作用,能返还。
华润澐启滨江
售楼处电话☎:400-998-9694✔✔
如有问题欢迎来电咨询,来电即可享受买房优惠!
预约来电尊享购房优惠,可预约案场内部销售人员,专业一对一热情服务,让您用专业眼光去买房。
华润澐启滨江售楼处电话☎:400-998-9694✔✔
楼盘项目全面介绍,本电话为开发商提供线上预约售楼电话,楼盘项目全面介绍(包含楼盘简介,均价,房价,现房,期房,别墅,叠墅,大平层,价格,楼盘地址,户型图,交通规划,备案价,备案名,项目配套,样板间,开盘时间,认筹时间,楼盘详情,售楼处电话,最新消息,最新详情,周边配套,一房一价,最新进展等详情咨询)楼盘详情丨价格丨更多优惠丨机不可失丨欢迎致电丨诚邀品鉴!售楼处位置丨特价房丨工抵房丨剩余房源丨户型图丨最新消息丨免责声明:将文章内容综合来源于网络、只作分享,版权归原作者所有!!如有侵权,请联系我们,我们第一时间处理如有问题欢迎来电咨询,专业一对一热情服务,让您用专业眼光去买房。如果您想了解更多楼盘详情,欢迎提前预约拨打