华润澐启滨江售楼处电话☎:400-998-9694✔✔ 华润澐启滨江售楼处电话☎:400-998-9694✔✔ 华润澐启滨江项目推出,主打滨江豪宅,创新设计,引领上海高端住宅新标准。
华润澐启滨江
售楼处电话☎:400-998-9694✔✔
如有问题欢迎来电咨询,来电即可享受买房优惠!
预约来电尊享购房优惠,可预约案场内部销售人员,专业一对一热情服务,让您用专业眼光去买房。
华润澐启滨江售楼处电话☎:400-998-9694✔✔

华润澐启滨江售楼处电话☎:400-998-9694✔✔
浦东后滩 华润置地中国江河1号作品
「华润后滩项目」「澐启滨江」
将推出建面约125-286㎡3-4房
华润澐启滨江售楼处电话☎:400-998-9694✔✔
项目信息
8月1日,华润置地联合南房集团以股权转让的形式,成功拿下了后滩07-01、04-01以及黄浦余庆里地块,总成交价244.7亿元!

华润澐启滨江售楼处电话☎:400-998-9694✔✔
华润澐启滨江售楼处电话☎:400-998-9694✔✔
上海首个一线滨江新规豪宅
上海“好房子”新规的发布,不仅是一次居住标准的升级,更是一场从居住理念到空间形态的系统性革新。
华润澐启滨江售楼处电话☎:400-998-9694✔✔ 当政策红利驱动高端住宅进入“品质竞赛新纪元”,滨江这一承载上海城市精神的黄金地带,正迎来产品力的全面跃升。而澐启滨江,以“新规首作”的标杆姿态,凭借设计理念的前瞻性与居住体验的革新性,对上一代产品实现全方位超越,独创“十二大颠覆性设计体系”,为上海滨江豪宅树立起难以企及的新高度。

华润澐启滨江售楼处电话☎:400-998-9694✔✔
简单来说,不是让建筑“看风景”,而是让建筑本身成为风景的延伸!建筑的形态,是城市精神的具象表达。

华润澐启滨江售楼处电话☎:400-998-9694✔✔
澐启滨江的外立面设计,没有跟风玻璃盒子,而是用进口铝板+超白玻璃幕墙组合,线条模拟江潮起伏的弧度。
华润澐启滨江售楼处电话☎:400-998-9694✔✔ 最绝的是色彩灵感来自黄浦江上百年沙船,浪白色基调配夕阳金镶边,让建筑变成江岸的“发光灯塔”。
塔冠如灯塔般指引回家,中段以浪白与夕阳金游艇舱勾勒出270°江景画框,下段石材柱廊则向上生长出ART-DECO经典线条,整体既精致又有腔调。

华润澐启滨江售楼处电话☎:400-998-9694✔✔

华润澐启滨江售楼处电话☎:400-998-9694✔✔
整体建筑如一艘停泊于江岸的“时代巨轮”,将江脉文明与当代设计语言无缝融合,给上海住宅的审美与居住体验制定了新的标准!突破传统社区“平面造景”的局限,澐启滨江社区围墙被下沉水景和绿化替代,滨江步道直接融入世博文化公园的10公里绿廊,实现 “推窗见江、移步入园”。

华润澐启滨江售楼处电话☎:400-998-9694✔✔
社区内配置巨幅透明全景泳池&群岛会所体系,另外还有全域架空+立体峡谷的设计。

华润澐启滨江售楼处电话☎:400-998-9694✔✔
所有楼栋一层全架空,形成风雨连廊和下沉庭院;社区内中央水轴串联四大主题园区(亲子乐园、静谧花园等),甚至引入雾森系统营造“仙境感”。


华润澐启滨江售楼处电话☎:400-998-9694✔✔
这种“自然生态+人文社交”的双重赋能,重新定义了上海高端住宅的审美高度与生活维度。

华润澐启滨江售楼处电话☎:400-998-9694✔✔
作为“新规首作”,澐启滨江在户型设计上实现了“视野革命”与“空间弹性”的双重突破。
建面约230-285㎡「环幕江景舱」,以“270°无界平层”结构打破传统空间边界,3.3米层高(部分户型)配合全景落地窗,将黄浦江的流动韵律、徐汇滨江的艺术天际线与社区的峡谷景观三重资源无界引入室内,成就上海滨江市场罕见的“IMAX环幕视野”。

华润澐启滨江售楼处电话☎:400-998-9694✔✔
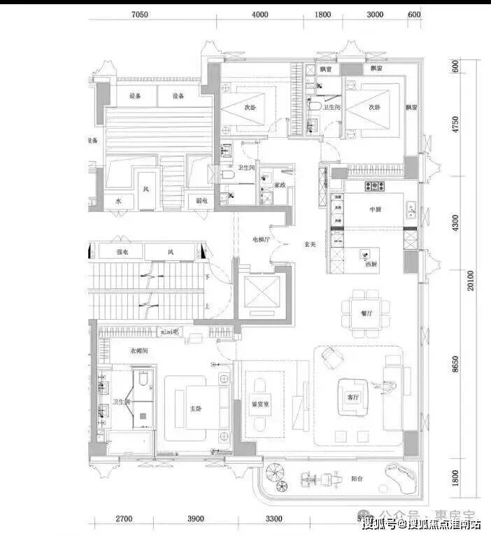
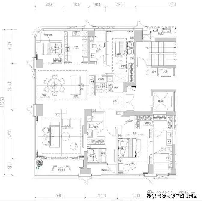
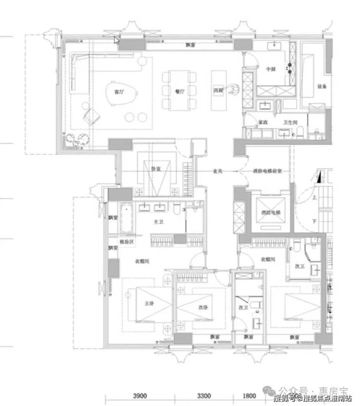
户型图过程稿:(过程稿仅供参考,最终以实际为准)
123㎡3房2厅2卫

华润澐启滨江售楼处电话☎:400-998-9694✔✔
241㎡3房2厅2卫

华润澐启滨江售楼处电话☎:400-998-9694✔✔
185㎡4房2厅3卫

237㎡4房2厅3卫华润澐启滨江售楼处电话☎:400-998-9694✔✔

华润澐启滨江售楼处电话☎:400-998-9694✔✔
231㎡4房2厅4卫

286㎡4房2厅4卫

华润澐启滨江售楼处电话☎:400-998-9694✔✔
板块信息
衡量一条江的价值,最有份量的方式是「时间」黄浦江的百年变迁,值此四个时刻为世人所铭记每一个时刻,都事关世界,亦将上海推向世界。
华润澐启滨江售楼处电话☎:400-998-9694✔✔ 如今,当你站在外滩,看浦江两岸新旧交织的天际线,看到的不仅是城市景观,更是一部中国近代化与全球化,最为激荡的流动历史。从外滩万国建筑群勾勒出的恢弘轮廓,到陆家嘴摩天楼宇刺破天际的磅礴力量,再到世博盛会向世界展开的瑰丽画卷…….黄浦江的百年奔流,无声地见证并承载着这座城市的雄心与诗意。

华润澐启滨江售楼处电话☎:400-998-9694✔✔
而今,时代的聚光灯再次落下,一处全球瞩目HEARTOf BUND--后滩,正于历史与未来的交汇处傲然屹立,为这条传奇江岸,开启下一章的无限想象。后滩之于上海,是更前瞻的探索者,当一座城市的顶级核心区域,可以同时拥有世界级的经济密度、世界级的生态品质和世界级的文化空间,在这条赛道上后滩驱动上海成为全球的领跑者。曾经全球滨水模式看伦敦与纽约,43公里泰晤士河与21公里哈德逊河的沿岸是世界级的金融、文化、旅游和公共生活走廊。


华润澐启滨江售楼处电话☎:400-998-9694✔✔
今天,当浦江两岸45公里滨水岸线全线贯通,黄浦江百年恒流,终以雄心垂范世界。
正如全国政协常委、上海公共外交协会会长周汉民所言,像这么一个滨水岸线长度的贯通与功能再造,纽约、伦敦、东京、巴黎都不能比的,这绝对是一个有世界影响力的故事。在这里,新黄金三角,正将世界水岸的潮汐,引向东方。

华润澐启滨江售楼处电话☎:400-998-9694✔✔
过往由老外滩、北外滩与陆家嘴构成的“黄金三角”成为19与20世纪的辉煌见证。当下,一个由世博滨江、后滩、前滩及对岸的徐汇滨江共同构筑的、更具划时代意义的“黄金三角2.0”正在崛起,堪称上海在21世纪最伟大的成果。它彻底颠覆了20世纪“功能分离”的城市模式,开创了“功能混合”的未来范式。其核心灵魂是将创新、生态、文化、居住、休闲等功能如同经纬线般紧密编织。它追求的不仅是经济密度,更是生活的温度、文化的厚度与创新的活力。

华润澐启滨江售楼处电话☎:400-998-9694✔✔
曾经追赶,现在超越,新黄金三角的诞生凝练了上海过去数十年的发展智慧,承载着21世界上海建设卓越全球城市的最高成果,标志着中国在城市滨水区开发上实现了从对标到超越的原创性引领。而后滩,正位处新黄金三角的地理中心,也是城市精神和生活方式的驱动核心。这片曾为世界访客搭建的舞台,历经十五年的沉淀与远见卓识的规划,正在展开属于上海的滨江远见。

华润澐启滨江售楼处电话☎:400-998-9694✔✔
后滩,不仅是黄浦江畔的珍贵留白,更是一场关于“上海如何与江河共生”的伟大探索。华润置地择址于此在时代巨澜中领帆开来,以“大江大河”回应上海“一江一河”的世纪战略,为世界,著写中国江河1号作品。上海的城市发展,始终围绕黄浦江展开,而一条黄浦江,仅有两个天然S湾。第一条S湾孕育“外滩-北外滩陆家嘴”世界级会客厅,奠定上海全球金融中心的地位;第二条S湾则诞生“世博-前滩-徐汇滨江”新黄金三角,以“艺术+文化+总部经济”重新定义全球生活方式,也是黄浦江的「珍藏一湾」。这条S湾上,串联起世博、前滩、徐汇滨江三大CAZ,沉淀着21世纪上海江河的璀璨成果。超7000亿GDP在此创造,4000家企业巨擘在此聚首,构筑起一座足以比肩全球的产业江岸。所以,后滩存在的意义,从不是为了追赶时代,而是为了定义下一个时代。后滩,它首先是地理之心。S湾总长约7KM水岸,浦东岸线以西岸梦中心为中点展开,浦东则以后滩为地理中心串联南北,东西隔江对望,标定新S湾正心。其次,是政策之心。在《黄浦江沿岸地区功能融合发展和空间品质提升专项规划(2025-2035年)》中,后滩被定义为“浦江之心,活力珠链”打造面向全球的城市滨水新都心、科技创新中心、文化交流中心和城市中心活动区。上海沿江板块众多,但能被官方钦点为浦江之心”的,有且仅有后滩。再者,它是资源之心,众星捧月的土地之上,后滩书写永不落幕的万千精彩。漂启滨江立踞于此,北邻世博文化公园与央企总部高地,南接前滩国际商务区,隔江对望徐汇滨西岸艺术硅谷,目之所及,城市TOP级景观拥揽入怀,关于江流的精彩和想象,汇涌而来。


华润澐启滨江售楼处电话☎:400-998-9694✔✔



华润澐启滨江售楼处电话☎:400-998-9694✔✔ 华润澐启滨江售楼处电话☎:400-998-9694✔✔

华润澐启滨江售楼处电话☎:400-998-9694✔✔
规划一线,难再有。黄浦江沿岸世界级滨水区覆盖流域,结合滨水空间特点和功能导向,细分为三个层次内层亲水营造范围(滨江开放空间向外约100-400米)中层品质提升范围(从滨江开放空间向腹地拓展约500-1000米范围)以及外层赋能拓展范围(从滨江开放空间向腹地拓展约2公里)。启滨江直线距江约300米,位处「内层亲水营造」范围,领衔一线滨江生活范式。景观一线,不曾有。向前,是徐滨的ART&AI风景;向左,是前滩的时尚活力霓虹,向右,是世博会客厅的璀璨天际。澐启滨江,目之所及,皆是上海封面级视野。资产一线,不再有。纵观黄浦江S湾三十余年开发史:仅有11个一线滨江住区。当启滨江落笔于最后一片可成片开发的珍藏江岸,这不仅是时代馈赠的恒贵资产,更是上海留给极少数人的旗舰恒藏。


华润澐启滨江售楼处电话☎:400-998-9694✔✔
地铁19号线(在建)的德州路站就在社区门口。这条投资938亿、单价超20亿/公里的“全球最贵地铁线”,串联起北外滩、陆家嘴、前滩三大核心CBD。

未来,居民无需换乘即可直达外滩金融中心,实现“地铁一响黄金万两”的资产增值逻辑。

华润澐启滨江
售楼处电话☎:400-998-9694✔✔
如有问题欢迎来电咨询,来电即可享受买房优惠!
预约来电尊享购房优惠,可预约案场内部销售人员,专业一对一热情服务,让您用专业眼光去买房。
华润澐启滨江售楼处电话☎:400-998-9694✔✔
楼盘项目全面介绍,本电话为开发商提供线上预约售楼电话,楼盘项目全面介绍(包含楼盘简介,均价,房价,现房,期房,别墅,叠墅,大平层,价格,楼盘地址,户型图,交通规划,备案价,备案名,项目配套,样板间,开盘时间,认筹时间,楼盘详情,售楼处电话,最新消息,最新详情,周边配套,一房一价,最新进展等详情咨询)楼盘详情丨价格丨更多优惠丨机不可失丨欢迎致电丨诚邀品鉴!售楼处位置丨特价房丨工抵房丨剩余房源丨户型图丨最新消息丨免责声明:将文章内容综合来源于网络、只作分享,版权归原作者所有!!如有侵权,请联系我们,我们第一时间处理如有问题欢迎来电咨询,专业一对一热情服务,让您用专业眼光去买房。如果您想了解更多楼盘详情,欢迎提前预约拨打