西郊云庐售楼处电话_2025上海长宁西郊云庐地址价格/户型_容积率_西郊云庐售楼处_售楼处营销中心
扫描到手机,新闻随时看
扫一扫,用手机看文章
更加方便分享给朋友
上海长宁「西郊云庐」
售楼处电话:400-9966-224✔✔【预约热线】西郊云庐售楼处电话:400-9966-224✔✔【预约热线】如有问题欢迎来电咨询,专业一对一热情服务,让您用专业眼光去买房。
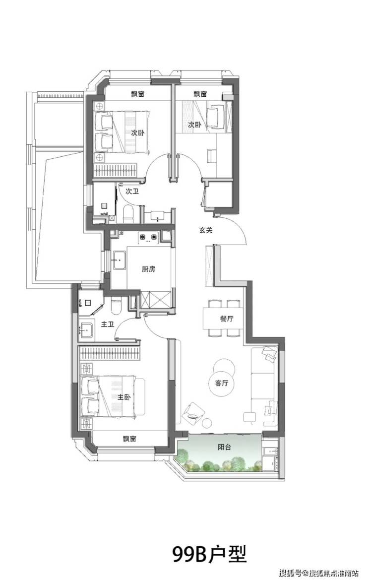
长宁区稀缺小高层上新「西郊云庐」主推建面约99-210㎡2-4房
正式户型图曝光!预计5月开放售楼处三季度入市!联动价11.8万/㎡
准确版户型图:
西郊云庐位于上海动物园隔壁西南侧,紧靠外环高速,旁边是龙柏饭店和龙柏高级公寓。项目联动价11.8万元/㎡。是2023年第三批次土拍由本地国企新长宁集团拿下。而新长宁集团上一个在长宁区参与的商品房项目要追溯到虹康昭晖苑了。
项目效果图:




整个长宁区算是上海近几年新房供应稀缺的区域,上海城投在西郊板块的青溪名邸算是豪宅低密住宅项目。而本项目定位为市中心改善面积段小高层住宅。其他的神秘楼盘宁国府邸、御西郊别墅普通人更加指望不上。
项目拟建7栋11-13层的小高层住宅,共规划305户(包含8%面积保障房,7号楼为保障房)。
该项目位于靠近虹桥机场位置不远,有限高要求40米,所以设计都是小高层,容积率为2.0。
再让我们来看看该项目的总体规划细节。「西郊云庐」总建筑面积68600平方米,其中地上面积39600平方米,地下面积29000平方米。工程总投资超36.5亿元。

项目施工计划的开竣工时间为2024年6月15日-2026年6月15日。
至于入市时间,本地国企相对比较稳健,节奏不快,预计5月左右开放售楼处,三季度入市!
地块位置由于被龙柏高级公寓和龙柏饭店包围,并且西侧就是外环高速,所以城市界面一般。交通上,附近的虹桥路、延安路和沪青平公路都是上海主干道,通勤高峰时段拥堵比较常见。
长宁区稀缺小高层上新「西郊云庐」主推建面约99-210㎡2-4房准确版户型图曝光!预计5月开放售楼处三季度入市!联动价11.8万/㎡
售楼处电话:4009966224【售楼中心热线】营销中心热线400-996-6224售楼处地址400-996-6224,楼盘项目全面介绍,本电话为开发商提供线上预约售楼电话,楼盘项目全面介绍(包含楼盘简介,均价,房价,现房,期房,别墅,叠墅,大平层,价格,楼盘地址,户型图,交通规划,备案价,备案名,项目配套,样板间,开盘时间,认筹时间,楼盘详情,售楼处电话,最新消息,最新详情,周边配套,一房一价,最新进展等详情咨询)楼盘详情丨价格丨更多优惠丨机不可失丨欢迎致电丨诚邀品鉴!售楼处位置丨特价房丨工抵房丨剩余房源丨户型图丨最新消息丨免责声明:将文章内容综合来源于网络、只作分享,版权归原作者所有!!如有侵权,请联系我们,我们第一时间处理如有问题欢迎来电咨询,专业一对一热情服务,让您用专业眼光去买房。如果您想了解更多楼盘详情,欢迎提前预约拨打万科中兴傲舍售楼处电话☎400-9966-224✔✔✔
1契税 先说说契税,这可是买房的头号“敌人”。
适用对象:买方(对,就是你)
税率:根据房屋面积和购房情况不同,税率也不一样:首套房,面积在90平方米以下:1%
首套房,面积超过90平方米:1.5%二套房:3%
计算公式:契税 = 房屋成交价 × 契税税率举个栗子:假如你买了一套100万元的房子,而且是首套房,面积在90平方米以下,那么契税是:
契税=100万元×1%
契税
网签那些事儿
在中国,买房要网签,就是去房管局备案。网签保证交易透明和安全,但也有人想着能不能在这儿动点小心思,比如低报成交价。这样能省点税钱,不过啊,万一被税务部门逮住了,那可是要补税罚款的,信用记录还会受影响。所以,咱们还是老老实实交税吧,别因小失大。
网签那些事儿
6.2增值税及附加税 接下来是增值税,这部分是卖家要交的。
适用对象:卖方
税率:房子买了不到2年:5.6%(含附加税);买了2年以上:免征。
计算公式:买了不到2年:增值税 = 房屋成交价 ÷ 1.05 × 5%
附加税 = 增值税 × 12%举个栗子:假如你卖的是一套100万元的房子,而且买了不到2年,那么增值税和附加税是:增值税=100万元÷1.05×5附加税=4.76万元×12总共得交:5.33万元
增值税及附加税
6.3个人所得税 这个税也是卖家要交的。
适用对象:卖方
税率:20%
计算公式:个人所得税 = (房屋成交价 - 房屋原值 - 相关费用) × 20%
举个栗子:假如你卖的房子成交价是100万元,原值是60万元,相关费用是5万元,那么个人所得税是:
个人所得税=(100万元−60万元−5万元)×20
其他费用
6.4其他费用 土地增值税
适用对象:卖方税率根据房屋购置年份和地段不同而不同。
印花税适用对象:买卖双方各0.05%计算公式:印花税 = 房屋成交价 × 0.05%
中介费一般按房屋成交价的2%~3%计算,由买卖双方协商承担。偷偷告诉你现在市场灵活中介费用也是可谈的哦。
买房的时候,各种税费加起来可不是小数目。契税、增值税、个人所得税这些都要好好考虑。记得提前了解政策,做好预算,别在交易的时候手忙脚乱。
希望这篇指南能帮你搞清楚买房时的税费问题,顺顺利利买到心仪的房子!记住,合法节税,诚实纳税,才能走得更远哦!
上海长宁「西郊云庐」
售楼处电话:400-9966-224✔✔【预约热线】西郊云庐售楼处电话:400-9966-224✔✔【预约热线】如有问题欢迎来电咨询,专业一对一热情服务,让您用专业眼光去买房。
声明:本文由入驻焦点开放平台的作者撰写,除焦点官方账号外,观点仅代表作者本人,不代表焦点立场。
