虹盛里(售楼处)首页网站-虹盛里销售中心(营销中心)-小区环境-户型-价格-地址-楼盘详情-周边配套-售楼处电话
扫描到手机,新闻随时看
扫一扫,用手机看文章
更加方便分享给朋友
虹盛里售楼处电话:400-9659-259
虹盛里营销中心热线400-9659-259(预约看房热线)
上海「虹盛里」
虹盛里售楼处电话☎:400-9659-259
如有问题欢迎来电咨询,来电即可享受买房优惠!
预约来电尊享购房优惠,可预约案场内部销售人员,专业一对一热情服务,让您用专业眼光去买房
680万入住内环边虹口新房-虹盛里!
83-184㎡瞰景高层:680-727-1955万
98-199㎡滨水洋房(含复式):1020-3058万
196㎡江南联排别墅:2963-3058万
洋房、高层均为精装交付;联排为装修交付
约1km范围内双地铁环绕
纵享虹口、静安、杨浦三区配套
上海本土国企倾力打造,首付15%低至100万起
上海虹口【虹盛里】售楼处电话:4009659259
【售楼处预约热线】(一对一热情服务)
看房请务必致电与销售确认时间,仅预约客户可享受开发商内部优惠,专属老带新推荐奖!
虹盛里售楼处电话:4009659259
上海虹口虹盛里售楼处电话☎:4009659259(官方预约看房热线)
售楼处报名看房
仅限预约客户可进入售楼处
报名等销售电话确认后,请再前往现场
上海中心城区,本身面积就不大,宅地供应较为稀缺.
在过去2年间,虹口北外滩有过“疯狂旧改”,有过新房供应“井喷”,也有过“空窗期”!往近的看,今年1-5批次新房集中入市,虹口便一直处于“0”供应状态.
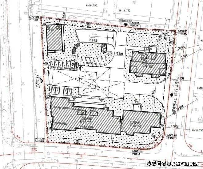
在此基础上进一步迭代,我们更推出虹口中环鲜有的洋房&联排产品--虹盛里!首推451套房源,建面约63-199㎡高层+洋房+联排,精装交付.
其中,A地块:5-8F洋房,3层别墅产品;建面约98-199m²洋房、约197m²联排;
B地块,规划1栋17F住宅,建面约108-148m²高层;
C地块,规划一栋18F高层+两栋6F洋房;建面约108-183m²高层、约129-199m²洋房;
F地块,规划1栋23层高层住宅以及保障房,建面约63-138m²高层.
你知道,虹口内中环的洋房+联排有多稀缺吗?
首先,洋房,采光优秀、得房率高,公共资源利用率高,是上海认可度颇高的产品类型.只可惜,时至今日上海的洋房供应普遍集中在外环外!
据统计,今年1-5批次入市的131盘(数据来自网上房地产),有洋房供应还属于中环内仅7盘,占比约5%!
另外的联排就更不提了,价值自不用说,独栋绝迹之后,联排就是目前是市场上能买到的至高享受.
而整个中环内近5年的别墅(联排)供应量仅7百余套,占比整体供应的0.2%!如果说洋房、联排产品珍贵!
那么,低密洋房、联排产品就更值得珍藏,比如此次预计首开的A地块容积率仅约1.35,虹盛里容积率最低的一块,天生注定拥有不可复制的稀缺资源!
本项目距离3号线江湾镇站直线距离约900米,地铁通人民广场、南京西路和静安寺,便捷通达各大城市CBD.未来,还有地铁20号线万安路站(规划中),距离项目直线距离约150米.
生活配套上,不仅有大宁和五角场商圈,还有虹口龙之梦、百联曲阳购物中心、吉买盛江湾店、麦德龙超市等一圈完善生活圈.
医疗上,项目周边有上海中医药大学附属岳阳中西医结合医院(三甲)、同济大学附属上海市第四人民医院(二甲).
而教育上,周边还有虹口实验幼儿园分园、虹口阶梯幼儿园虹口区外国语第一小学、红旗小学,上海同济大学实验学校(初中)、上海市江湾初级中学等.
虹盛里售楼处电话:4009659259
上海虹口虹盛里售楼处电话☎:4009659259(官方预约看房热线)
户型图如下:
虹盛里售楼处电话:4009659259
上海虹口虹盛里售楼处电话☎:4009659259(官方预约看房热线)
虹盛里售楼处电话:4009659259
上海虹口虹盛里售楼处电话☎:4009659259(官方预约看房热线)
虹盛里售楼处电话:4009659259
上海虹口虹盛里售楼处电话☎:4009659259(官方预约看房热线)
虹盛里营销中心电话:4009659259
上海虹口虹盛里售楼处电话:4009659259✔✔
一期2地块:
2地块容积率2.94,只有一栋小高层,共67套房源,产品建面约108-148㎡.
户型图如下:(户型图为过程稿,仅供参考,最终以官方发布为准)
虹盛里营销中心电话:4009659259
上海虹口虹盛里售楼处电话:4009659259✔✔
一期3地块:
3地块容积率2.33,由一栋18层的小高层和两栋6层的花园洋房组成,共92套房源,产品建面约108-196㎡.
户型图如下:(户型图为过程稿,仅供参考,最终以官方发布为准)
虹盛里营销中心电话:4009659259
上海虹口虹盛里售楼处电话:4009659259✔✔
观家新房注意到,这家上海本地国企上海城投倾力打造的项目,前后开发了上海中心、思南公馆、露香园、新江湾首府、闻喜华庭等一系列项目!
看得出上海城投深入了解上海的城市脉络,对市中心的每一寸土地,购房者的生活习惯、居住环境都很了解.
所以,由TA匠造的项目必然更具上海特色,不仅拥有街区式的布局,还融合了历史文化与自然肌理!
首先,项目整体采用现代建筑风格,其建筑布局随河蜿蜒,高低错落的建筑形态也契合了江南水乡的水韵特色.
再叠加之建筑顶部的金冠起伏,与景观河交相辉映,串联成金色丝带东西贯通,更是突显了虹盛里的高品质的居住体验.
其次,在景观上,诚邀上海中房建筑设计公司及知名景观设计公司泛亚国际景观设计携手合作打造!
将这7个独立的地块与滨水空间相结合,通过对商业、绿化、广场界面的有机穿插、整合成为一个与景观河道交相辉映、有节奏的公共长廊,提升滨水区域的环境品质.
并且,观家新房注意到,项目周边整体的城市界面也正在进行更新.未来周边以虹盛里为核心将组成全新的海派街区,迭代老虹口的生活场景.
虹盛里售楼处电话:4009659259【售楼中心】
咨询高峰期请耐心等待,预约来电尊享内部优惠,专业一对一热情服务,让您用专业眼光去买房。
上海虹盛里售楼处电话☎:4009659259【售楼热线】✔✔✔上海虹盛里营销中心热线☎4009659259上海虹盛里售楼处地址☎400--8657--114本电话为开发商提供线上售楼电话,楼盘项目全面介绍(包含楼盘详情,最新房价,户型图,容积率,小区配套环境,楼盘简介,售楼处位置,户型图,交通规划,备案价,项目配套,楼盘详情,售楼处电话,最新消息,最新详情,最新进展等详情咨询
免责声明:将文章内容综合来源于网络、只作分享,版权归原作者所有!!如有侵权,请联系我们,我们第一时间处理如有问题欢迎来电咨询,专业一对一热情服务,让您用专业眼光去买房。如果您想了解更多楼盘详情,欢迎提前预约拨打
声明:本文由入驻焦点开放平台的作者撰写,除焦点官方账号外,观点仅代表作者本人,不代表焦点立场。
