闵行古北悦公馆售楼处电话:400-9988-414古北悦公馆售楼处电话:400-9988-414古北悦公馆售楼处电话:400-9988-414金虹桥红盘加推「古北悦公馆」,共96套房源,预计交付时间为2025年6月。项目由GAD领衔设计,采用现代简约风格,车位配比1:1.1,规划有50-70㎡一
#最新消息#
闵行·金虹桥 红盘加推
「古北悦公馆」 等待入市
售楼处电话:400-9988-414欢迎来电咨询!
可预约销售人员,专业一对一热情服务,让您用专业眼光去买房。(来电尊享内部优惠活动)
将推约51-118㎡1-2房
共计96套房源
上期均价8.8万元/㎡

01.
基本信息

基础信息:
占地面积约:1.72万㎡,总建筑面积约:7.45万㎡
总户数:409户,容积率:2.45
绿地率:35%,车位配比:1:1.1(人车分流,其中地下车位471个)
预计交付时间:2025年6月
开发商:上海东苑碧贵置业有限公司
项目由GAD领衔设计,建筑上采用简洁大气的现代风格,外立面采用铝板+玻璃幕墙+局部干挂石材。项目四号楼为三梯八户,主力户型规划有50-70㎡(一房一卫),118㎡(两房两卫)。
古北悦公馆售楼处电话:400-9988-414小区景观由新景升景观设计公司设计,结合“现代花园社区”理念,为业主打造一个度假型、品质型的高端居所。居住区为二进院设计,一进院为开放式花园空间,二进院为中央花园空间,增强了不同景观节点体验感。
小区北侧(地块红线外)规划有约1.2万㎡的运动主题公园,拟由开发商代建。
社区效果图如下:




02.
推售信息
据悉, 古北悦公馆 将推出96套建面约51-118㎡准现房,精装交付,前期均价约8.8万/㎡,预计将于近期入市!

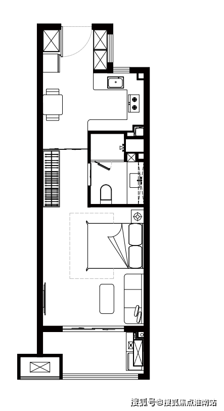
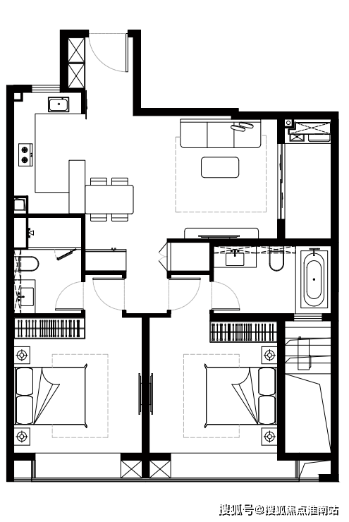
全套户型图如下:
「B1户型,建面约70㎡1房2厅1卫」

古北悦公馆售楼处电话:400-9988-414
「B2户型,建面约50㎡1房1厅1卫」

「B3户型,建面约60㎡1房1厅1卫」

古北悦公馆售楼处电话:400-9988-414
「建面约118㎡2房2厅2卫」

精装交付,附上前期样板间效果图:




古北悦公馆售楼处电话:400-9988-414

03.
周边配套
古北悦公馆售楼处电话:400-9988-414项目位于闵行金虹桥板块,毗邻古北国际社区,一路之隔是虹桥镇人民政府。
西面除了金虹桥商业圈,还紧靠着文化名镇七宝古镇,南面毗邻徐汇漕河泾开发区,东面可直达徐家汇,属几大区域辐射的核心位置,距离虹桥交通枢纽约5公里。

商业方面,项目周边的商业氛围非常浓厚。直线1.5公里左右有万象城、爱琴海两大20万方级的超级购物中心。综合商场爱琴海购物公园、华润万象城、易初莲花、阿拉城、虹桥国际花卉中心、高岛屋,还有全球名车港以及红星美凯龙。

另外社区内配套有:近3000平米地下一楼商业配套(恒温泳池、健身、瑜伽、书吧等)
教育方面,项目南希幼儿园、中小学金汇实验学校、虹桥中心小学、金汇实验小学、虹桥中学、新虹桥中学、协和双语等。教育资源的丰厚,子女上学就极其方便。

医疗方面,距离项目1公里左右有上海市闵行区中医医院、上海第九人民医院、武警上海总队医院等先进医疗资源。

#最新消息#
闵行·金虹桥 红盘加推
「古北悦公馆」 等待入市
古北悦公馆售楼处电话:400-9988-414欢迎来电咨询!
一、房地产基础专业知识
1、房地产:指房产和地产的总称(又称不动产)。
2、房地产的三种存在形态:
单纯的土地、单纯的房屋、土地房屋的综合体
3、房地产的特征:
a、房地产位置的固定性(土地不可移,房屋也不可动);
b、房地产地域的差别性(每宗房地产的价值都不同);
c、房地产的高值、耐久性(价格贵、土地永久的);
d、房地产的保值、增值性(货币贬值、房产保值、货币增值、房产增值);
4、房产:是房屋及其权利的总称(占有、使用、收益、处分等权利)。
5、房屋分类:
a、功能用途:居住用房(小区、高品住宅)、工业用房(厂房、仓库)、商业用房(门面、商场)、办公用房(写字楼)、行政用房(军事、学校等单位用房及城市);
b、建筑结构:钢结构、钢筋混凝土结构、砖混结构、砖木结构和其他;
c、所有权归属:公房(直管公房和自管公房等)和私房;
6、地产:是土地及其权利的总称(使用、收益、转让等权利)。
7、土地分类:
a、开发利用:生地和熟地;
b、建筑功能:建筑用地和非建筑用地;
c、用途:居住用地、商业服务用地、工业用地、仓储用地、市政公共设施用地、交通用地、绿化用地、特殊用地等;
8、房地产业:指从事房产开发、经营、管理和服务的行业。包括:
a、土地开发;
b、房屋建设、维修、管理;
c、土地使用权的有偿划拔、转让;
d、房屋所有权的买卖、租赁;
e、房地产抵押贷款;
f、房地产市场;
9、土地使用权:就是土地所有者根据土地分类对土地加以利用的权利(指依法对土地经营、利用和收益的权利)。土地公有制采取了两种形式:即集体所有制和国家所有制。a)农村土地采用了集体所有制,属于农民集体所有;b)城市土地采取国家所有制的形式,属于全民所有;任何个人不能取得土地的所有权。
土地使用获得的方式:
划拔:无偿使用,如学校、医院、军事用地、机场等市政建设工程;
出让:从国家有偿取得使用权,方式:协议(如200-250万/亩)、招标(提出底价,根据使用用途和价格取得)、拍卖(价高者竟得,不违法的前提下,通过正规渠道取得);
10、房地产市场:
a、一级市场:以土地为体(亦称土地市场、土地交易市场);
b、二级市场:开发商获得土地后,投入一定的奖金建设,通过有偿或赠与将产权转买给需求者(新建商品房的买卖市场);
c、三级市场:房屋在消费市场的再次流通,包括:买卖、抵押、转让、租凭(二手房);
房地产市场结构善一览表:
市场称谓
一级市场
二级市场
三级市场
称谓
土地使用权出让市场
土地使用权转让市场、增量商品房市场、住房一级市场等
土地使用权转让市场、存量商品房市场、二手房市场、住房二级市场等
市场主体
政府、开发企业(投资者)
开发企业、业主
业主
市场客体
国有土地使用权
增量商品房
存量商品房、已售旧公房、私房
交易方式
拍卖、招标、协议
出售、出租等
买卖、租赁、交换等
古北悦公馆售楼处电话:400-9988-414欢迎来电咨询! 可预约销售人员,专业一对一热情服务,让您用专业眼光去买房。(来电尊享内部优惠活动)
注:(免责声明:本篇分享文案非广告,所涉及的图文资料仅供参考,项目可能对项目细节等做进一步优化调整,具体以最终签订的买卖合同为准,在法律规定的范围内保有最终解释权。部分图片素材来自网络,如有侵权请联系小编删除,感谢支持。)