九龙仓逅湾雅苑 (售楼处) 九龙仓逅湾雅苑楼盘欢迎您-小区环境-户型-价格-地址-楼盘详情-周边配套-九龙仓逅湾雅苑售楼处电话-交房时间
扫描到手机,新闻随时看
扫一扫,用手机看文章
更加方便分享给朋友
九龙仓逅湾雅苑售楼处电话:400-8878-824
九龙仓逅湾雅苑营销中心热线400-887-8824(官方预约看房热线)
项目位置:苏州市相城区虎丘湿地公园北,华元路与史梗上街交汇处
【九龙仓逅湾雅苑】
项目位置:苏州市相城区虎丘湿地公园北,华元路与史埂上街交汇处
占地面积:9.4万方
建筑面积:16.9万方
总户数:1028户
车位数:1811
容积率:1.8
装修情况:全装修交付
九龙仓逅湾雅苑售楼处电话/地址☎:400-8878-824(开发商热线)如有问题欢迎来电咨询,专业一对一热情服务,让您用专业眼光去买房。
九龙仓逅湾雅苑售楼处电话:400-8878-824
九龙仓逅湾雅苑营销中心热线400-887-8824(官方预约看房热线)
·78#天灏项目鸟瞰图
九龙仓逅湾雅苑售楼处电话:400-8878-824
九龙仓逅湾雅苑营销中心热线400-887-8824(官方预约看房热线)
项目南侧苏州主城区内最大湿地公园——虎丘湿地公园
九龙仓逅湾雅苑售楼处电话/地址☎:400-8878-824(开发商热线)如有问题欢迎来电咨询,专业一对一热情服务,让您用专业眼光去买房。
逅湾雅苑
基本情况
1.逅湾雅苑
占地面积:9.4万方
建筑面积:16.9万方
规划总户数:1028户
车位数:1811
绿化率:37%
容积率:1.8
物业公司:九龙仓物业(物业费高层2.93,洋房3.09,别墅3.42)
交付状态:别墅高层均已交付,洋房部分交付。大部分房源现房在售
·产品信息——
小高层:总高18F
洋房:总高11F
面积段:137㎡、143㎡、168㎡、顶复195㎡、顶复220㎡
户型:四房两厅两卫
装修:精装修(带中央空调、地暖)
电梯:两梯两户(高层)一梯两户(洋房)
单价:25000-27000元/平方(小高层)27000-29900元/平(洋房)
总价段:约350万、370万、386万、503万、585万、658万
1.外立面效果图
九龙仓逅湾雅苑售楼处电话/地址☎:400-8878-824(开发商热线)如有问题欢迎来电咨询,专业一对一热情服务,让您用专业眼光去买房。
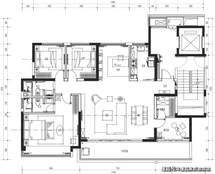
2.洋房143㎡户型图

3.洋房168㎡户型图

九龙仓逅湾雅苑售楼处电话/地址☎:400-8878-824(开发商热线)如有问题欢迎来电咨询,专业一对一热情服务,让您用专业眼光去买房。
4、小高层137户型图
5、小高层143户型图
九龙仓逅湾雅苑售楼处电话/地址☎:400-8878-824(开发商热线)如有问题欢迎来电咨询,专业一对一热情服务,让您用专业眼光去买房。
·住宅样板间效果图
九龙仓逅湾雅苑售楼处电话/地址☎:400-8878-824(开发商热线)如有问题欢迎来电咨询,专业一对一热情服务,让您用专业眼光去买房。
·九龙仓天灏自带2000㎡会所实景图
九龙仓逅湾雅苑售楼处电话/地址☎:400-8878-824(开发商热线)如有问题欢迎来电咨询,专业一对一热情服务,让您用专业眼光去买房。
·项目价值点:
1.湿地生态豪宅——占据主城区唯一湿地虎丘湿地公园,拥有面积超4个纽约中央公园的城市天然绿肺。
2.九龙仓品牌,百年豪宅缔造者,全球高端物业教父,450米高苏州国金中心为江苏最高建筑,国宾一号等别墅豪宅为典型富人区。
3.区域内唯一纯改善社区,1.8低容积率,社区密度极低,圈层纯粹。
4.现房在售,实景展示。
周边配套
交通配套:
地面交通:
九龙仓逅湾雅苑售楼处电话/地址☎:400-8878-824(开发商热线)如有问题欢迎来电咨询,专业一对一热情服务,让您用专业眼光去买房。
华元路(项目南侧华元路,相城区东西向主干道,开车10分钟可快速到达相城区域内部分商业,教育,医疗,文体配套)
高架快速路:西环快速路(项目西侧可上西环快速路,30分钟内到达新区,园区,市区核心商圈位置);春申湖快速路(项目北侧可上中环,最快预计15分钟到达园区星湖街核心位置)
地铁:
已通车地铁4号线:距离4号线活力岛站约3公里左右
在建地铁8号线:距离8号线虎丘湿地公园站约2公里左右
规划地铁线路14号线:距离14号线华元路站约1公里内(规划中)
九龙仓逅湾雅苑售楼处电话/地址☎:400-8878-824(开发商热线)如有问题欢迎来电咨询,专业一对一热情服务,让您用专业眼光去买房。
·商业配套:
1.相城区区域内配套:
繁花中心,天虹,欧尚,万达广场,大悦城(均在10-20分钟车程)
2.区域外配套:
新区永旺,宜家,开市客(约10分钟车程),龙湖时代天街(约20分钟车程),苏州中心(约30分钟车程)
3.建设中:
一路之隔商业邻里中心
4.周边目前老配套:
欧德福商业,黄桥老街(规划拆迁重建中)
5.项目北侧:
黄桥文体中心即将开业

九龙仓逅湾雅苑售楼处电话/地址☎:400-8878-824(开发商热线)如有问题欢迎来电咨询,专业一对一热情服务,让您用专业眼光去买房。
·教育配套:
1.公立学校:江苏省黄桥实验小学、黄桥中学(相城区域内第一梯队公立学校)
2.私立学校:苏州国际外国语学校(约20分钟车程),苏州外国语学校相城校区小学部(约10分钟车程)
3.幼儿园:小区门口自带幼儿园,伊顿国际幼儿园(普惠),黄桥实验幼儿园
4.即建中:苏州大学黄桥附属实验小学
·医疗配套:
苏州市相城人民医院:15分钟车程
苏州大学附属第一医院总院:12分钟车程
·环境资源:
1.南侧一路之隔虎丘湿地公园,享受天然氧吧带来的宜居生活
2.东侧一路之隔三角咀公园,休闲散步的好去处
·天灏项目区位图
九龙仓逅湾雅苑售楼处电话:4008878824【售楼中心热线】九龙仓逅湾雅苑营销中心热线400-887-8824九龙仓逅湾雅苑售楼处地址400-8878-824,楼盘项目全面介绍,本电话为开发商提供线上预约售楼电话,楼盘项目全面介绍(包含楼盘简介,均价,房价,现房,期房,别墅,叠墅,大平层,价格,楼盘地址,户型图,交通规划,备案价,备案名,项目配套,样板间,开盘时间,认筹时间,楼盘详情,售楼处电话,最新消息,最新详情,周边配套,一房一价,最新进展等详情咨询)楼盘详情丨价格丨更多优惠丨机不可失丨欢迎致电丨诚邀品鉴!售楼处位置丨特价房丨工抵房丨剩余房源丨户型图丨最新消息丨免责声明:将文章内容综合来源于网络、只作分享,版权归原作者所有!!如有侵权,请联系我们,我们第一时间处理如有问题欢迎来电咨询,专业一对一热情服务,让您用专业眼光去买房。如果您想了解更多楼盘详情,欢迎提前预约拨打九龙仓逅湾雅苑售楼处电话400-887-8824
声明:本文由入驻焦点开放平台的作者撰写,除焦点官方账号外,观点仅代表作者本人,不代表焦点立场。
