棠悦芳华轩售楼处电话400-998-9694,项目热销,8月初首开中签率10.36%,8月底中签率提升至31.58%,现加推2#、11#42套房源,均价3.215万/平,户型朝南、LDKB设计,低门槛高生活品质。
棠悦芳华轩
售楼处电话☎:400-998-9694✔✔
如有问题欢迎来电咨询,来电即可享受买房优惠!
预约来电尊享购房优惠,可预约案场内部销售人员,专业一对一热情服务,让您用专业眼光去买房。
棠悦芳华轩售楼处电话☎:400-998-9694✔✔
棠悦芳华轩售楼处电话☎:400-998-9694✔✔
8月初,位居拱墅区武林东北片区,石桥商圈的棠悦芳华轩取证首开,仅56套吸引了255组家庭参与登记,其中人才6组,有房208组,最低中签率10.36%。可见火热程度。
8月底,项目接连二开,84套房吸引了266组家庭登记,中签率31.58%。其中人才2组,有房家庭223组,最低中签率18.39%,延续火热。
昨日晚间,项目公示三开预售证,加推2#、11#,共2幢42套房源,面积约99-120-128-139方,均价3.215万/平。

棠悦芳华轩售楼处电话☎:400-998-9694✔✔
棠悦芳华轩售楼处电话☎:400-998-9694✔✔棠悦芳华轩营销中心电话:400-9989-694【24小时热线】棠悦芳华轩预约热线:4009989694【售楼处电话】
棠悦芳华轩鸟瞰示意图
登记时间:9月20~22日,为期三天,23日补充材料。

棠悦芳华轩售楼处电话☎:400-998-9694✔✔棠悦芳华轩营销中心电话:400-9989-694【24小时热线】棠悦芳华轩预约热线:4009989694【售楼处电话】

户型&装修介绍
更低门槛,更高的生活享受
在建筑新规的加持下,棠悦芳华轩户户朝南,LDKB一体化设计,大面宽、大开间、封包阳台(计入一半面积),得房率更高……带来超越期待的居住体验。



棠悦芳华轩售楼处电话☎:400-998-9694✔✔棠悦芳华轩营销中心电话:400-9989-694【24小时热线】棠悦芳华轩预约热线:4009989694【售楼处电话】

建面约120方四房两卫户型

得益于板式楼型和边套的设计,建面约120方户型实现了L型双边自然采光,同时拥有双向的通风对流优势。
同时,双厅一体化,铺展约6.3米大飘窗,不浪费一点过道,增加了不少家人社交共融场景;南向套房主卧,独立卫浴间+飘窗,居住舒适度更进一步。
棠悦芳华轩售楼处电话☎:400-998-9694✔✔棠悦芳华轩营销中心电话:400-9989-694【24小时热线】棠悦芳华轩预约热线:4009989694【售楼处电话】
建面约128方四房两卫户型

此宽境四房,既满足居住功能性,又有舒适的居住空间。三卧室+客厅,四开间朝南,享受约13.5米阔绰大面宽;灵活可变3+1房,契合三代同堂居住需求;U型厨房动线顺畅,一体化双厅,足以让家人欢聚一堂;小家化主卧套房,舒适感触手可及。
毫不讳言,这个户型功能多样性几乎与市面上约150方奢级空间尺度同款,一眼心动。
棠悦芳华轩售楼处电话☎:400-998-9694✔✔棠悦芳华轩营销中心电话:400-9989-694【24小时热线】棠悦芳华轩预约热线:4009989694【售楼处电话】
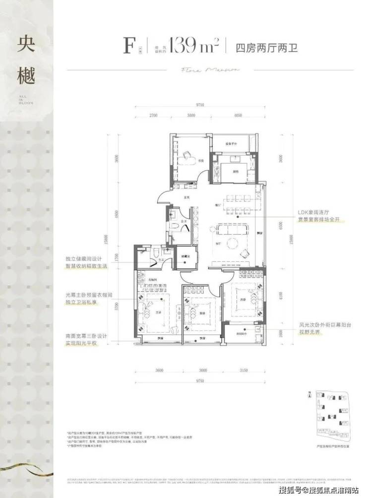
建面约139方四房两卫户型

该边套户型,不仅有270度的采光视野,主/次/客卧三大开间并立朝南,“含阳光量”十足。
南面房间飘窗/阳台设计,充分延伸空间尺度,超宽超大横厅带独立玄关和独立储藏室空间,兼顾大空间尺度、舒适体感和全周期灵动布局,实现了居住价值的真正回归。
这款作为置换买家心仪的房型,以旧换新,以小换大,一次置换即可“无后顾之忧”,生活品质和资产双升舱。
棠悦芳华轩售楼处电话☎:400-998-9694✔✔棠悦芳华轩营销中心电话:400-9989-694【24小时热线】棠悦芳华轩预约热线:4009989694【售楼处电话】
室内装修目前呈现了香奈儿、奶油风、现代雅奢等三种风格。
新风、地暖、中央空调三大件,客厅岩板背景墙,主卧背景墙以及全屋墙纸(不含阳台);主卫&次卫都采用智能马桶;厨房方太三件套(侧式吸油烟机、三眼灶、洗碗机),以及多功能大单槽、凉霸,还有一整面的橱柜!如此扎实的装标,想不心动都难。(最终以商品房买卖合同为准)

建面约139方效果展示间实景图,非交付标准

棠悦芳华轩售楼处电话☎:400-998-9694✔✔棠悦芳华轩营销中心电话:400-9989-694【24小时热线】棠悦芳华轩预约热线:4009989694【售楼处电话】

项目日照攻略发布
采光不错
滨江棠悦芳华的分析结果是这样:计算已考虑周边所有建筑的影响,结果表明由于周边规划尚未公示,暂且不建,楼栋仅受地块内部影响。(说明:本文日照数据基于公示规划图纸文件,使用专业制作工具完成,仅供参考)


春分秋分(9-15时)在售楼栋日照时间和动图



春秋季:2#11#采光优异几乎不存在遮挡。

棠悦芳华轩售楼处电话☎:400-998-9694✔✔棠悦芳华轩营销中心电话:400-9989-694【24小时热线】棠悦芳华轩预约热线:4009989694【售楼处电话】
夏至(9-15时)在售楼栋日照时间和动图



夏季:楼栋朝向正南采光优异。2#低层受遮挡。就具体遮挡时间而言,2#主要在上午受1#遮挡。

大寒(9-15时)在售楼栋日照时间和动图


棠悦芳华轩售楼处电话☎:400-998-9694✔✔棠悦芳华轩营销中心电话:400-9989-694【24小时热线】棠悦芳华轩预约热线:4009989694【售楼处电话】

冬季:2#采光优异几乎不存在遮挡。11#低层受遮挡。就具体遮挡时间而言,11#除早晨和傍晚外其余时间段均受遮挡。

项目园区介绍
气场很足
站在棠悦芳华轩的社区大门前,你第一眼就能感受到强大的归家气场。
通过精细拉槽的石材与仿铜不锈钢的巧妙组合,加上世界名表伯爵旗舰店同款宝石蓝釉面陶板、灵动曲面的造型……刷新板块的认知。

棠悦芳华轩售楼处电话☎:400-998-9694✔✔棠悦芳华轩营销中心电话:400-9989-694【24小时热线】棠悦芳华轩预约热线:4009989694【售楼处电话】
棠悦芳华轩示范区实景图
穿门而入,迎宾水院的风景很美,曲径通幽,步移景异。更亮眼的还有异形“蓝宝石”戏水池。
数百种大小乔木、灌木和各色花卉,环绕在周边。还有卡座,是邻里休闲、聚会放松的社区会客厅,未来,可以一边谈天说地,一边欣赏自然美景。

棠悦芳华轩效果图
站在休闲观景台上,脚下是绿意蔓延的园林,耳畔是潺潺流水私语,目之所及是天光云影的交响。

棠悦芳华轩示范区实景图
同时,部分架空层规划层高约5.4米,比一般楼盘都要高,并规划打造7大主题空间,无论是沉浸书海的知识遨游,还是亲子的高阶版奈尔宝式童玩区,亦或是长者畅聊对弈、赏画品字,这样丰富的日常生活,不出小区就能轻松达成。



棠悦芳华轩售楼处电话☎:400-998-9694✔✔棠悦芳华轩营销中心电话:400-9989-694【24小时热线】棠悦芳华轩预约热线:4009989694【售楼处电话】
棠悦芳华轩示范区实景图
但凡看过棠悦芳华轩的朋友,会注意到项目的入户单元门、电梯公区等都藏着很多奢雅的细节,诸如各类岩板、石材、铝板等高浓度运用,瞬间提升了空间的档次。

棠悦芳华轩示范区实景图
买房人关心的立面,项目则采用四面铝板,辅以斜切工艺,勾勒挺拔向上的建筑气质,“折叠屏”的立面,别具美感,极具辨识度。(外立面材质以商品房买卖合同约定为准)

棠悦芳华轩效果图

周边配套介绍
有地铁+商场,近新天地
棠悦芳华轩位于市中心武林东北角宝藏片区,这一片撑起了杭州亚运电竞中心、电竞数娱小镇、杭汽轮文旅综合体(规划)等产业脊梁,同时,紧邻“杭州夜经济”样板新天地。

棠悦芳华轩售楼处电话☎:400-998-9694✔✔棠悦芳华轩营销中心电话:400-9989-694【24小时热线】棠悦芳华轩预约热线:4009989694【售楼处电话】
棠悦芳华轩区位示意图
交通畅达全城
项目距离地铁3号线华丰路站直线距离约900米,1站拱墅吾悦广场、2站新天地商圈、8站武林商圈,通过换乘、轻松触达全城。自驾的话,紧邻秋石高架、留石高架,约六首歌的时间贯通武林、东站、钱新、奥体多个城市核心,对上班族相当友好。
商圈繁华似锦
周边有中大银泰城、新天地、龙湖天街、吾悦广场、山姆超市等六大商业综合体环绕,满足日常休闲娱乐的多样需求。
教育资源丰富
项目近邻九年一贯制安吉路景成实验学校、青蓝青华实验小学、求知小学、风华中学等环伺,覆盖幼小初的教育需求。(学校仅为周边信息展示,不做学区承诺,具体以教育部门相关政策为准)
生活舒心宜居
还有市中医院丁桥院区、树兰医院、桃花湖公园、北景园生态公园等各种生活配套。

1、房地产开发:在依法取得土地使用权的土地上按照使用性质和要求进行基础设施,房屋建筑的活动。它包括从定点选址到交付使用的全过程,由征地与拆迁安置、规划设计、供水、排水、供电、通电讯、通道路、绿化、房屋建设等多项内容组成。
2、土地开发:将生地(不具备使用条件的土地)开发成可供使用的土地。
3、房屋开发:由买得土地使用权的发展商,对土地进行平整,修路铺设上下水管道及热力网,然后建造各类房屋以及公共设施。
4、房地产二次开发:指先将生地开发成熟地(具备使用条件),然后再进行拍卖和出租,由买地者去建造房屋。
5、房地产一次开发:一次性边土地、房屋开发完成。
6、能源系统:包括供电、供热、供气(煤气、天然气、石油液化气)等设施。
7、给水、排水系统:包括取水工程、输水工程、净水工程、配水管网(上下水道),排水管网(下水道)、污水处理、排放工程。
8、土地国家所有权:指作为土地所有者的国家,对自己所有的土地依法享有占有、使用、收益和处分的权利。
9、土地集体所有权:指农村劳动群众集体经济组织,在法律规定范围内对自己所有土地享有占有、使用、收益和处分的权利。
10、房屋的所有权:对房屋全面支配的权利,包括:占有权、使用权、收益权、处分权。
11、土地所有权:指含有法律意义上和经济意义上的所有权双重含义。
法律意义:土地所有者将土地当成自己的财产,并将其实行占有、垄断、拥有对土地支配的权利。
经济意义:指土地所有者凭借对土地的垄断获得一定的经济收入的权利。
四、其它内容须知:
1、办理银行按揭合同需出示:
1)个人身份证及复印件各3份,结婚证或流动人口未婚证明;
2)首期购房款(不低于30%,二次购房者首付不低于40%)购房人已付购房款收据原件及复印件;
3)购房者或配偶单位的工资收入证明;
4)与开发商签订的购房合同;
5)开户银行开户的活期存折并含有3个月的按揭款;
6)个人住房借款合同,借款借据;
7)委托银行扣收购房房款协议书;
8)住房抵押承诺书;
9)贷款申请书。
2、办理银行按揭需交的费用:
1)保险费(保险费率1-10年0.5‰、11-20年0.45‰贷款额)(交保险公司);
2)抵押费,贷款额3‰(交房地产局);
3)律师见证费,贷款额1.8‰(交律师事务所);
4)备案登记手续费,每份合同20元(交房地产局);
5)印花税,每份合同10元(交房地产局);
6)按揭资料费,每份合同40元(交银行);
3、公积金提取条件:符合以下条件的可以一次性提取本人住房公积金帐户内的存储余额。
1)职工购买、建造、翻修、大修自住住房;
2)职工离、退休时;
3)完全丧失劳动能力,并与单位终止劳动关系的;
4)户口迁出所在的市、县或者出境定居的;
5)偿还购房贷款本息的;
6)房租超出家庭工资收入的规定比例的。
4、公积金贷款是有限额规定的:
1)贷款额不能超过25万元的最高上限;
2)贷款额不能超出你住房公积帐户储存余额的5倍;
3)贷款额不能超出总房款的70%;
5、预售房的条件:
1)土地出让金已缴清,取得国有土地使用证;
2)取得建设用地规划许可证;
3)投入工程总建设资金达到20%以上(不含土地出让金);
4)施工进度已明确,交房日期已明确;
5)竣工验收前;
棠悦芳华轩
售楼处电话☎:400-998-9694✔✔
如有问题欢迎来电咨询,来电即可享受买房优惠!
预约来电尊享购房优惠,可预约案场内部销售人员,专业一对一热情服务,让您用专业眼光去买房。
棠悦芳华轩售楼处电话☎:400-998-9694✔✔
楼盘项目全面介绍,本电话为开发商提供线上预约售楼电话,楼盘项目全面介绍(包含楼盘简介,均价,房价,现房,期房,别墅,叠墅,大平层,价格,楼盘地址,户型图,交通规划,备案价,备案名,项目配套,样板间,开盘时间,认筹时间,楼盘详情,售楼处电话,最新消息,最新详情,周边配套,一房一价,最新进展等详情咨询)楼盘详情丨价格丨更多优惠丨机不可失丨欢迎致电丨诚邀品鉴!售楼处位置丨特价房丨工抵房丨剩余房源丨户型图丨最新消息丨免责声明:将文章内容综合来源于网络、只作分享,版权归原作者所有!!如有侵权,请联系我们,我们第一时间处理如有问题欢迎来电咨询,专业一对一热情服务,让您用专业眼光去买房。如果您想了解更多楼盘详情,欢迎提前预约拨打