上海宝山江湾鸿玺售楼处欢迎您-江湾鸿玺楼盘详情-户型配套-江湾鸿玺最新价格-最新资讯-售楼处位置
扫描到手机,新闻随时看
扫一扫,用手机看文章
更加方便分享给朋友
宝山高境板块高境欣苑二期定名「江湾鸿玺」推出建面约200㎡大平层仅32套,即将入市!
上海宝山「江湾鸿玺」
售楼处电话:400-9966-224✔✔【预约热线】江湾鸿玺售楼处电话:400-9966-224✔✔【预约热线】如有问题欢迎来电咨询,专业一对一热情服务,让您用专业眼光去买房。

户型图如下:(仅供参考,最终以实际为准)建面约200m²4房户型
高境板块作为宝山近市中心的板块,一直以来缺乏新房,目前该项目是高境乃至整个宝山标杆,该项目位于殷高路逸仙路路口。



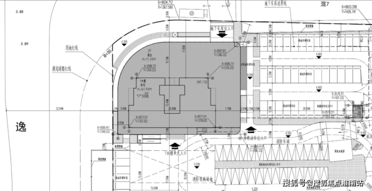
根据规划,这栋楼共18层,估计2梯2户,据悉首层为商业配置,将来可能引进运动健身、休闲会馆、便利商超等。还有两套自持,所以可售为32套,户型为建面约200㎡大平层。

项目就在3号线殷高西路地铁口,一路直达虹口足球场、鲁迅公园,换乘去市中心很方便。此外东面直线约1公里处有18号线殷高路站。自驾的话,逸仙路高架上下匝道就在小区门口,往东南西北出行都非常方便。

项目西侧就是一个商场,吃喝玩乐都能满足,另外殷高西路上还有永辉、长江国际、景瑞生活广场等,生活很方便。
项目就一栋楼,与2000年左右建设的高境欣苑在一个大社区,目前链家上高境欣苑挂牌价为5.8-6万/㎡。

上海宝山「江湾鸿玺」
售楼处电话:400-9966-224✔✔【预约热线】江湾鸿玺售楼处电话:400-9966-224✔✔【预约热线】如有问题欢迎来电咨询,专业一对一热情服务,让您用专业眼光去买房。
声明:本文由入驻焦点开放平台的作者撰写,除焦点官方账号外,观点仅代表作者本人,不代表焦点立场。
