西溪铭庭售楼处电话☎:400-998-9694西溪铭庭售楼处电话☎:400-998-9694西溪铭庭位于蒋村板块,300方改善型住宅,性价比高,生态绿化好,预计2023年底交付。
西溪铭庭
售楼处电话☎:400-998-9694
如有问题欢迎来电咨询,来电即可享受买房优惠!
预约来电尊享购房优惠,可预约案场内部销售人员,专业一对一热情服务,让您用专业眼光去买房。
西溪铭庭售楼处电话☎:400-998-9694
西溪湿地旁 难得300方
西溪铭庭售楼处电话☎:400-998-9694

【项目信息】
西溪铭庭售楼处电话☎:400-998-9694
● 项目名称:西溪铭庭
● 项目区域:蒋村板块
● 项目体量
总占地面积3.5万方
总建筑面积13.9万方
● 产权:40年
● 套数:8幢共94套
● 梯户比:两梯两户
● 主力面积:约307方
● 层高:约3.5米
● 容积率:2.5
● 得房率:84%
● 物业费:4元/平米.月
西溪铭庭售楼处电话☎:400-998-9694
● 交付时间:预计2023年年底
【项目价值】
西溪铭庭售楼处电话☎:400-998-9694
● 稀贵板块 西溪之上未来为邻
择址蒋村板块,地理位置优越。东接繁华的文教区,西临“宇宙中心”未来科技城,距离西溪湿地直线距离仅800米,闹中取静,拥享静谧诗意生活。

西溪铭庭售楼处电话☎:400-998-9694

西溪铭庭售楼处电话☎:400-998-9694
● 蒋村西溪 难得性价比高地
作为城西品质标杆区域,蒋村板块断供多年。本案作为整个蒋村板块目前唯一在售的、拥有大面积改善产品的一手楼盘,错过不再。
西溪铭庭售楼处电话☎:400-998-9694 板块内200方以上户型极为稀缺,且西溪诚园二手房价格已高达10万+,西溪铭庭目前在售均价仅3.8万,仅为周边二手房的5折左右,性价比极高,总价仅需1200万左右即可享受300方奢享空间。

西溪铭庭售楼处电话☎:400-998-9694
● 生态绿化环绕的低密住区
整个项目的三面被生态绿化和水系环绕,是目前杭州主城区唯一一个被生态绿化包围的大平层项目,不仅是居住面积的改善,更是居住环境和居住品质的改善。
西溪铭庭售楼处电话☎:400-998-9694 项目北面一线滨水,形成河流川流而过的风水佳地,打造散步游玩的休闲滨水空间。
项目南面和西面规划40亩都市农业公园,作为目前杭州市芯唯一的观光农业与房地产相结合的项目,打造兼田园观光、私人种植、绿色生态、休闲娱乐等多项功能的臻稀天然氧吧,体验别墅、排屋才有的耕种乐趣,将健康生活方式融入日常。

西溪铭庭售楼处电话☎:400-998-9694


西溪铭庭售楼处电话☎:400-998-9694
● 醇熟配套 聚焦万象繁华
多维交通:无缝连接文一西路和余杭塘路两大主干道,闹中取静,快速通达全城。紧邻“换乘之王”地铁5号线(蒋村站)与机场快线,畅享交通便利。
西溪铭庭售楼处电话☎:400-998-9694 商业汇集:2公里范围内聚集了龙湖西溪天街、西溪银泰城两大商业综合体,以及项目自带的8000方商业叠加,生活配套一应俱全。
教育医疗:绿城育华学校、学军中学、行知二小、求是小学和杭州维翰学校等优质教育资源环伺,名校群集。距离浙一医院总部仅约6公里,为家人健康保驾护航。

西溪铭庭售楼处电话☎:400-998-9694

西溪铭庭售楼处电话☎:400-998-9694
●全明玻璃盒子,缔造无敌采光及视野
建筑的外立面采用铝板+玻璃幕墙的现代造型,更大窗墙比,打造“玻璃盒子”般更为通透明亮的室内环境。采用10+12+10的双层中空Low-E玻璃,有效阻隔外界噪音。

西溪铭庭售楼处电话☎:400-998-9694

西溪铭庭售楼处电话☎:400-998-9694

西溪铭庭售楼处电话☎:400-998-9694
● 两梯两户 互不干扰
西溪铭庭售楼处电话☎:400-998-9694 每层两梯两户的设计,每户可私享一部楼梯、一部电梯和一个约10平米的电梯前室,空间互不干扰。且项目最高为9层的小高层,每幢仅18户,出行便利,尊享奢适品质人生。

西溪铭庭售楼处电话☎:400-998-9694
● 精研户型 定制精装
根据客户不同需求,两种户型、两种装修风格任选其一,萃集高端精装品牌,奢享品质生活。
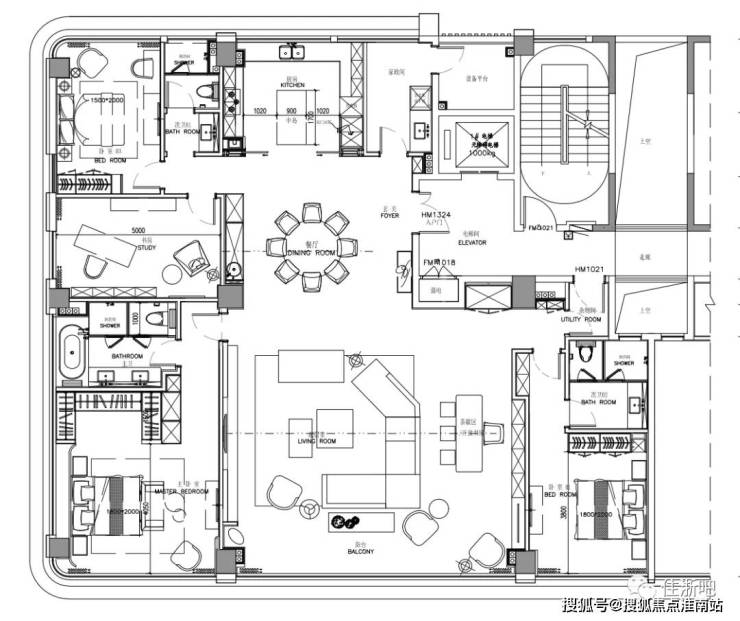
【可选户型一】300方打造舒适5房

西溪铭庭售楼处电话☎:400-998-9694
【可选户型二】300方奢阔4+1房

西溪铭庭售楼处电话☎:400-998-9694
【装修方案一】


西溪铭庭售楼处电话☎:400-998-9694


西溪铭庭售楼处电话☎:400-998-9694
【项目价值】
●稀贵改善产品:本案作为板块内唯一在售的大面积改善一手楼盘,稀缺改善,错过不再;
●纯粹大户型设计:整个项目户型均为300方改善户型,让整个社区圈层更纯粹;
● 步行距离可达西溪湿地:距离国家5A级湿地公园-西溪湿地直线距离仅约800米,步行即可到达,近揽11平方公里生态美景;
●被生态绿化环绕:北面紧邻五常港河,南面和西侧紧邻40亩都市农业公园,三面被生态绿化包围,闹中取静,且能够享受家门口耕种乐趣;
●性价比极高:在售房源均价仅3.8万,仅约周边二手房价的5折。2个车位仅需30万,相比周边近50万/个的车位价格实惠实打实;
●舒适5房设计:84%超高得房率 ,18.3米南向四开间,以及3.5米层高,打造尺度奢阔的5房舒适空间。
1、房地产:指房产和地产的总称(又称不动产)。
2、房地产的三种存在形态:
单纯的土地、单纯的房屋、土地房屋的综合体
3、房地产的特征:
a、房地产位置的固定性(土地不可移,房屋也不可动);
b、房地产地域的差别性(每宗房地产的价值都不同);
c、房地产的高值、耐久性(价格贵、土地永久的);
d、房地产的保值、增值性(货币贬值、房产保值、货币增值、房产增值);
4、房产:是房屋及其权利的总称(占有、使用、收益、处分等权利)。
5、房屋分类:
a、功能用途:居住用房(小区、高品住宅)、工业用房(厂房、仓库)、商业用房(门面、商场)、办公用房(写字楼)、行政用房(军事、学校等单位用房及城市);
b、建筑结构:钢结构、钢筋混凝土结构、砖混结构、砖木结构和其他;
c、所有权归属:公房(直管公房和自管公房等)和私房;
6、地产:是土地及其权利的总称(使用、收益、转让等权利)。
7、土地分类:
a、开发利用:生地和熟地;
b、建筑功能:建筑用地和非建筑用地;
c、用途:居住用地、商业服务用地、工业用地、仓储用地、市政公共设施用地、交通用地、绿化用地、特殊用地等;
8、房地产业:指从事房产开发、经营、管理和服务的行业。包括:
a、土地开发;
b、房屋建设、维修、管理;
c、土地使用权的有偿划拔、转让;
d、房屋所有权的买卖、租赁;
e、房地产抵押贷款;
f、房地产市场;
9、土地使用权:就是土地所有者根据土地分类对土地加以利用的权利(指依法对土地经营、利用和收益的权利)。土地公有制采取了两种形式:即集体所有制和国家所有制。a)农村土地采用了集体所有制,属于农民集体所有;b)城市土地采取国家所有制的形式,属于全民所有;任何个人不能取得土地的所有权。
土地使用获得的方式:
划拔:无偿使用,如学校、医院、军事用地、机场等市政建设工程;
出让:从国家有偿取得使用权,方式:协议(如200-250万/亩)、招标(提出底价,根据使用用途和价格取得)、拍卖(价高者竟得,不违法的前提下,通过正规渠道取得);
10、房地产市场:
a、一级市场:以土地为体(亦称土地市场、土地交易市场);
b、二级市场:开发商获得土地后,投入一定的奖金建设,通过有偿或赠与将产权转买给需求者(新建商品房的买卖市场);
c、三级市场:房屋在消费市场的再次流通,包括:买卖、抵押、转让、租凭(二手房);
房地产市场结构善一览表:
市场称谓
一级市场
二级市场
三级市场
称谓
土地使用权出让市场
土地使用权转让市场、增量商品房市场、住房一级市场等
土地使用权转让市场、存量商品房市场、二手房市场、住房二级市场等
市场主体
政府、开发企业(投资者)
开发企业、业主
业主
市场客体
国有土地使用权
增量商品房
存量商品房、已售旧公房、私房
交易方式
拍卖、招标、协议
出售、出租等
买卖、租赁、交换等
11、土地使用权出让:指国家以土地所有者身份,按指定地块的使用年限、用途和城市规划等条件,将城市土地使用权出让给土地使用者,并向土地使用者收取土地使用权出让金的行为。出让交易双方是国家和用地单位或个人。
12、土地产权:包括土地所有权、地上权、地役权、抵押权、典权、租赁权。
地上权:指以支付租金为代价在他人土地上建筑房屋的权利,它的实质就是土地使用权;
地役权:指利用他人土地供自己使用的权利;
抵押权:指土地使用权获得者在其有效的使用期限内有以土地作抵押获取银行贷款或其他担保的权利;
租赁权:指土地使用权获得者在其有效使用期限内将土地租给他人使用以获取收益,承租人即取得该块土地的租赁权;
13、土地使用年限:指国家将土地使用权出让给土地使用者,双方约定土地使用者可以使用的年限。
1)土地使用权出让年限:
a、居住用地70年;
b、工业用地、教育、科技、文化卫生、体育及综合或其他用地50年;
c、商业、旅游、娱乐用地40年;
PS:使用用途需转换的要补年限地价的差价,国家指定的则遵照执行;
2)土地使用年限到期后如何处理:
a、国家有权无条件的收回该土地;
b、建筑主体经质控部门检验后不属危房;
c、项目的存在不影响城市规划,不影响市容,只要向政府缴纳土地出让金可以继续使用。
PS:b、c条完全存在的情况下,以当时的地价购买使用年限,年限由政府规定,否则无条件收回;
14、商品房:开发商以市场地价取得土地使用权后进行开发建设,并经国土局批准在市场上流通的房地产,它是在获取房产证后,可自行转让、出租、继承、抵押、交换的固定资产。
商品房的物业类型:住宅、写字楼、商场、酒店、市场。
15、商品房的预售制度:五证二书
五证:〈国有土地使用证〉、〈建设用地规划许可证〉、〈建设工程规划许可证〉、
〈建设工程施工许可证〉、〈商品房预售许可证〉
二书:〈质量保证书〉、〈使用说明书〉、两书可以作为商品房买卖合同的补充约定,并且是房地产开发企业在商品房交付使用时向购房人提供的对商品房住宅承担质量责任的法律文件和保证文件。
16、烂尾楼:指未能完成施工中途停建的楼盘。造成楼盘烂尾的原因主要有资金不足、设计、施工存在严重质量问题,非常建设等。
17、楼花:指已经动工建造,但尚未建成的楼宇、房屋。即指图纸上的楼宇,处于建筑施工的最初阶段,离交房时间长,价格优惠,买了后又可转卖,赚差价。
18、炒楼花:买卖尚未建筑好的房屋。(现在政府有规定,商品房5年内不许转让,交5%的营业税,为了控制炒房)
19、期房:指具备预售条件,尚未竣工交付使用的商品房。(价格低、选择空间大、户型齐全、可监督建筑材料、质量)
20、现房:指已经工程质量监督部门验收,并取得质量合格证明文件,可以交付使用的商品房。(即买即入住、价格高、户型过时、选择空间不大)
21、经济适用房:指以微利价出售给广大中低收入家庭的商品房(带有社会保障性质的商品住宅,是有经济性和适用性)。不是人人可以买到,必须符合当地政府所规定的条件,经过排号购买。长沙房口,25岁以上,65㎡以内以经济价购买,65㎡以外以商品房价购买,5年后才能转卖)。
22、二手房:办好产权证,进行再次转让的房屋。其他如:公房、私房、集资房、廉租房、安置房等福利房。
23、诚意金:指商品房在未取得预售证之前,开发商收取客户的可退回的款项(一般可以获得开发商的折扣承诺)。
24、定金:指当事人约定由一方向对方付给的作为债权人担保的一定数额的货币(能担保债权人的作用)不能返还。
25、订金:不能担保债权人的作用,能返还。
西溪铭庭
售楼处电话☎:400-998-9694
如有问题欢迎来电咨询,来电即可享受买房优惠!
预约来电尊享购房优惠,可预约案场内部销售人员,专业一对一热情服务,让您用专业眼光去买房。
西溪铭庭售楼处电话☎:400-998-9694
楼盘项目全面介绍,本电话为开发商提供线上预约售楼电话,楼盘项目全面介绍(包含楼盘简介,均价,房价,现房,期房,别墅,叠墅,大平层,价格,楼盘地址,户型图,交通规划,备案价,备案名,项目配套,样板间,开盘时间,认筹时间,楼盘详情,售楼处电话,最新消息,最新详情,周边配套,一房一价,最新进展等详情咨询)楼盘详情丨价格丨更多优惠丨机不可失丨欢迎致电丨诚邀品鉴!售楼处位置丨特价房丨工抵房丨剩余房源丨户型图丨最新消息丨免责声明:将文章内容综合来源于网络、只作分享,版权归原作者所有!!如有侵权,请联系我们,我们第一时间处理如有问题欢迎来电咨询,专业一对一热情服务,让您用专业眼光去买房。如果您想了解更多楼盘详情,欢迎提前预约拨打