浦发上城售楼处电话☎:400-998-9694✔✔浦发上城售楼处电话☎:400-998-9694✔✔浦发上城TOD项目位于浦东金桥,涵盖住宅、商业、办公等业态,地铁上盖,打造产城融合的TOD典范。
浦发上城
售楼处电话☎:400-998-9694✔✔
如有问题欢迎来电咨询,来电即可享受买房优惠!
预约来电尊享购房优惠,可预约案场内部销售人员,专业一对一热情服务,让您用专业眼光去买房。
浦发上城售楼处电话☎:400-998-9694✔✔
浦发上城售楼处电话☎:400-998-9694✔✔
浦东金桥又迎新盘
地铁9/12号线金海路站
浦发上城TOD项目
将推出建面约79-154㎡2-4房
项目信息
浦发上城TOD项目 作为浦发集团面向区域开发转型的“三张名片”之一,项目待开发面积约63万方,位于浦东中外环,西侧紧邻华为研发中心和“上海金湾”,东侧是浦东金海湿地公园。

浦发上城售楼处电话☎:400-998-9694✔✔浦发上城营销中心电话:400-9989-694【24小时热线】浦发上城预约热线:4009989694【售楼处电话】
浦发上城TOD项目包含了商业服务业、办公、科研教育、住宅等多种业态!
项目将在地铁上盖有限的空间内,打造产城融合的TOD开发典范,打造“无限金桥,无界智园”的云上之城。


浦发上城售楼处电话☎:400-998-9694✔✔浦发上城营销中心电话:400-9989-694【24小时热线】浦发上城预约热线:4009989694【售楼处电话】
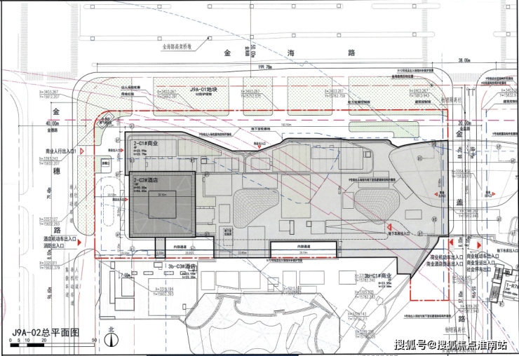
整个项目东至赣桥路(外环运河),南至桂桥路,西至金穗路,北至金海路,项目西侧就是由金桥集团开发的上海金湾!J9A-02地块:9、12号线地铁上盖,东侧是住宅部分,西侧是华为研发中心。该地块地上拟建设商业、酒店及酒店物业用房,其中,商业部分地上建筑面积36489.24㎡,酒店部分地上建筑面积20956.16㎡。


浦发上城售楼处电话☎:400-998-9694✔✔浦发上城营销中心电话:400-9989-694【24小时热线】浦发上城预约热线:4009989694【售楼处电话】



浦发上城售楼处电话☎:400-998-9694✔✔浦发上城营销中心电话:400-9989-694【24小时热线】浦发上城预约热线:4009989694【售楼处电话】
J9A-06地块,是14号线桂桥路站地铁上盖,该地块拟建设3栋21F公寓式酒店、商业及其他配套用房。


浦发上城售楼处电话☎:400-998-9694✔✔浦发上城营销中心电话:400-9989-694【24小时热线】浦发上城预约热线:4009989694【售楼处电话】
J9B-14地块:三类住宅组团、商业服务业、社会停车场和综合交通枢纽混合用地,用地面积约4.7万方㎡,容积率2.35,住宅套数下限751套!
住宅公示总平图图如下:效果图如下:




浦发上城售楼处电话☎:400-998-9694✔✔浦发上城营销中心电话:400-9989-694【24小时热线】浦发上城预约热线:4009989694【售楼处电话】

根据设计方案显示,项目住宅部分拟建7栋17-29F高层佳宅(含20F公租房),共计规划784户,其中可售住宅704套,地面无车位,全人车分流,全部两梯四户带连廊!
据了解,项目将推出建面约79㎡、84㎡、99㎡、132㎡、143㎡以及建面约154㎡2-4房,户型覆盖面很广,可满足不同的置业需求!

户型图如下:(过程稿仅供参考,最终以实际为准)
「约79㎡ 2房2厅1卫」

浦发上城售楼处电话☎:400-998-9694✔✔浦发上城营销中心电话:400-9989-694【24小时热线】浦发上城预约热线:4009989694【售楼处电话】
建面约79m2房2厅1卫,共计68套,两梯四户,北向有连廊,三开间朝南,全卧飘窗,卫生间采用三段式布局。
「约84㎡ 2房2厅1卫」

浦发上城售楼处电话☎:400-998-9694✔✔浦发上城营销中心电话:400-9989-694【24小时热线】浦发上城预约热线:4009989694【售楼处电话】
建面约84m2房2厅1卫,共计56套,两梯四户,北向有连廊,可以说是79户型的进阶版本,三开间朝南,全卧飘窗,卫生间同样采用三段式布局,主卧独立衣帽间!
「约99㎡ 3房2厅2卫

建面约99m3房2厅2卫,共计355套,99户型共计有3个,动静分离,三开间朝南,两梯四户,其中边套户型无连廊影响,中间套北向有连廊!
「约132㎡ 3房2厅2卫

浦发上城售楼处电话☎:400-998-9694✔✔浦发上城营销中心电话:400-9989-694【24小时热线】浦发上城预约热线:4009989694【售楼处电话】
建面约132m3房2厅2卫共计112套,两梯四户边套无连廊影响,132平只做了三房布局,各空间尺度足够开阔,同样是经典的动静分离户型!
「约132㎡ 3房2厅2卫

建面约143㎡3房2厅2卫共计56套,边套无连廊影响,可以说是132户型的升级版,5.1米横两梯四户,厅布局,尺度开阔,但143m只做了3房,功能性欠佳!
「约154㎡ 4房2厅2卫

浦发上城售楼处电话☎:400-998-9694✔✔浦发上城营销中心电话:400-9989-694【24小时热线】浦发上城预约热线:4009989694【售楼处电话】
建面约154m4房2厅2卫共计57套,两梯四户,边套无连廊影响,四开间朝南,全卧飘窗,终极改善产品,预计总价可能会在1200万左右!
项目实景如下:(拍摄时间2025年3月19日,拍摄地点浦发上城项目周边)


浦发上城售楼处电话☎:400-998-9694✔✔浦发上城营销中心电话:400-9989-694【24小时热线】浦发上城预约热线:4009989694【售楼处电话】
板块信息
浦东热度最高的板块,当属目前炙手可热的“金色中环发展带”!
浦东“黄金发展带”主要聚焦“3+5”重点地区。1个中央活动区:前滩;两个副中心:张江、金桥;以及五个潜力地区。金桥,是浦东“黄金发展带”上新晋城市副中心,区位具有战略性的优势。金桥定位是以商务办公、文化休闲、会议展示、创意研发、生态游憩为主要功能,以“CBD+CTD”为双轮驱动,规划了四大地标,共同组成浦东“上城”2.0版副中心。


浦发上城售楼处电话☎:400-998-9694✔✔浦发上城营销中心电话:400-9989-694【24小时热线】浦发上城预约热线:4009989694【售楼处电话】
浦发上城 作为浦发集团面向区域开发转型的“三张名片”之一,总建筑面积约63万方,区域内有9+12+14号线3条轨交交汇,因为这块土地巨大的开发体量,所以关注度比较高!

整个项目东至赣桥路(外环运河),南至桂桥路,西至金穗路,北至金海路,项目西侧就是由金桥集团开发的上海金湾!

浦发上城售楼处电话☎:400-998-9694✔✔浦发上城营销中心电话:400-9989-694【24小时热线】浦发上城预约热线:4009989694【售楼处电话】
项目规划开发秉承绿色共生、互联共通、开发共享、区域共荣的愿景,期望打造国际化健康、智能、社交的工作生活方式典范。

早前,浦发集团与新世界集团旗下K11集团成功签署商业项目合作协议,依托上海浦发上城TOD综合开发项目共同打造9万平方米商业空间。
K11集团将旗下K11 Select品牌首次引入上海,以活力多元的运营理念,呈现一步一未来的商业“年轻量子力启航基地”,引领区域商业升级。K11集团独创的“艺术•人文•自然”的品牌理念在全国打造了多个成功的商业地标。

浦发上城售楼处电话☎:400-998-9694✔✔浦发上城营销中心电话:400-9989-694【24小时热线】浦发上城预约热线:4009989694【售楼处电话】
K11 Select作为K11集团专为新生代打造的品牌,将实体世界、数码世界,甚至在元宇宙中的不同文化艺术爱好者连结,共同打造商业与潮流艺术设计和文化相结合的零售体验。
15分钟城市和公共交通
建设15分钟城市服务圈,强调更多元化、多中心的城市格局,利用公共交通充分链接各社区,为每个片区都注入城市活力。
浦发上城自北往南在1.8公里区域内,设置城市交通核、400m步行圈客厅核和24小时无雨连廊,承载交通功能的同时串联多样社区共享功能空间,带动区域活力。公共区域和本地特色

浦发上城售楼处电话☎:400-998-9694✔✔浦发上城营销中心电话:400-9989-694【24小时热线】浦发上城预约热线:4009989694【售楼处电话】
项目在开发中优先考虑公共区域,根据地理环境分析规划更宜人的城市空间,同时在建筑设计中汲取当地特色,与所处的环境产生共鸣。
浦发上城在设计中充分结合区域条件,巧妙借用地铁车辆段地形,营造都市梯田式的中央公园,打造城市与自然流动交织的“金桥东门户”形象。混合功能和原址开发

在功能融合的同时,也迸发出意料之外的协同效应,而在原址上进行开发,保留原建筑构件的文化底蕴,历史与新潮的融合,能给城市带来新的生机活力。
浦发上城在地铁上盖有限的空间内,打造“无限金桥,无界智园”的云上之城。健康建筑和智能办公

浦发上城售楼处电话☎:400-998-9694✔✔浦发上城营销中心电话:400-9989-694【24小时热线】浦发上城预约热线:4009989694【售楼处电话】
对疫情的记忆已经把健康从过去的设计特色变成了必需品,环保的建筑设计引导用户获得更好空间体验,普通商业办公对灵活、高效能空间的要求也逐渐趋同。
浦发上城结合金桥智能制造的区域产业定位,结合元宇宙、AI等新型技术场景应用,力求提供人性化、智能化的高品质空间体验。浦发上城项目在区位上有很大的优势,9+12+14号线三轨交通,大规模的开发,也能在一定程度上提高板块的价值,同时周边毗邻多个产业园区,不缺购买力!

浦发上城售楼处电话☎:400-998-9694✔✔浦发上城营销中心电话:400-9989-694【24小时热线】浦发上城预约热线:4009989694【售楼处电话】
但项目也存在比较明显的硬伤,住宅南侧正对着老陈王庙和金桥安息堂,对于很多购房者来说,还是比较忌讳的,如果真的是7万左右的价格,你还会考虑吗?
1、什么是房产:房屋产权的简称。
2、什么是地产:是指土地财产。
3、什么是房地产:是房产和地产的总称。
4、什么是房地产业:从事房地产开发、建设、经营、管理以及维修、装饰和服务的综合性产业。
5、什么是房地产开发:是指在依法取得土地使用权的土地上按照使用性质的要求进行基础设施、房屋建筑的活动。
6、什么是土地开发:是将“生地”开发成可供使用的土地。
7、集体土地是指:农村集体所有的土地。
8、征用土地是指:国家为了公共利益的需要,可依照法律规定对集体所有的土地实行征用。
9、什么是土地所有权:是指国家或集体经济组织对国家土地和集体土地依法享有的占有、使用、收益和处分的权能。
10、什么是土地使用权的出让:指国家以协议、招标、拍卖的方式将土地所有权在一定年限内出让给土地使用者,由使用者向国家支付土地使用权出让金的行为。
11、什么是土地使用权转让:是指土地使用者通过出售、交换、赠与和继承的方式将土地使用权再转移的行为。
12、什么是地籍、产籍:是对在房地产调查登记过程产生的各种图表、证件等登记资料,经过整理、加工、分类而形成的图、档、卡、册等资料的总称。
13、生地是指:不具备开发条件的土地。
14、熟地是指:已完成三通一平(水、电、道路,土地平整)或七通一平,具备开发条件的土地。
15、什么是宗地:是地籍的最小单元,是指以权属界线组成的封闭地块。
16、什么是宗地图:是土地使用合同书附图及房地产登记卡附图。它反映一宗地的基本情况。包括:宗地权属界线、界址点位置、宗地内建筑位置与性质、与相邻宗地的关系等。
17、证书附图是指:房地产后面的附图,主要反映房地产情况及房地产所在宗地情况。
18、什么是物业管理:泛指一切有关房地产开发、经营、商品房销售、租赁及售后服务。
19、什么是业主委员会:是在物业管理区域内代表全体业主实施自治管理的组织。是代表
物业全体业主合法权益的社会团体,其合法权益受国家法律保护。
20、业主委员会是如何产生的:由业主大会从全体业主中选举产生。
21、住房补贴是指:国家为职工解决住房问题而给予的补贴资助。
22、房屋的所有权是指:对房屋全面支配的权利。
23、房地产交易的两种主要形式是:地产交易形式与房产交易形式。
24、建筑物是指:人工建造而成的房屋和构筑物。
25、构筑物是指:建筑物中除房屋以外的东西。
26、什么是期房:是指消费者在购买时不具备即买即可入住的商品房。
27、期房是如何介定的:房地产开发商拿到商品房预售许可证开始至取得房地产权证大产证或竣工验收合格可以直接入住使用)为止。
28、什么是预售合同:消费者在购买期房时签定的销售合同。
29、什么是现房:是指消费者在购买时具备即买即可入住的商品房,即开发商已办妥所售的商品房的大产证(或已经竣工验收合格并交付使用)的商品房。
30、什么是毛坯房:房地产商交付屋内只有门框没有门,墙面地面仅做基础处理而未做表面处理的房叫毛坯房。
31、什么是成品房:是指对墙面、天花、门套、地板实行装修。
32、什么是商品房:是指以完全的市场价格向购房者出售的房子。
33、商品房预售是指:在房地产尚未建成以前,房地产的经销商在取得受买人一定数量的定金后,将期房出售给受买人。
34、商品房现售是指:指房地产开发企业将竣工验收合格的商品房出售给买受人。
35、二手房通常指的是:再次进行买卖交易的住房。
36、经济适用房指的是:面向中低收入家庭的普通住宅。
37、例出3种以上的安居房的种类:准成本房、全成本房、全成本微利房和社会微利房。
38、低层住宅的介定:1-3层的住宅。
39、多层住宅的介定:4-6层的住宅。
40、小高层住宅的介定:7-11层的住宅。
41、中高层住宅的介定:12-16层的住宅。
42、高层住宅的介定:16层以上为高层住宅。
43、超高层建筑的介定:总高度超过100米的建筑。
44、商品房的结构是指:房屋主体所使用的施工工艺和用材。
45、钢结构的意思是:承重的主要结构是用钢材料建造的,包括悬索结构。
46、钢混结构的意思是:承重的主要结构是用钢和混凝上建造的。
47、砖木结构的意思是:承重的主要结构是用砖、木材建造的。
48、砖混结构的意思是:主要是砖墙承重,部分是钢盘混凝土承重的结构。
49、框架结构的意思是:以钢筋混凝土浇捣成承重梁柱,再用预制的隔墙分户的结构。
50、开间指的是:一间房屋内一面墙的定位轴线到另一面墙的定位轴线之间的实际距离。
浦发上城
售楼处电话☎:400-998-9694✔✔
如有问题欢迎来电咨询,来电即可享受买房优惠!
预约来电尊享购房优惠,可预约案场内部销售人员,专业一对一热情服务,让您用专业眼光去买房。
浦发上城售楼处电话☎:400-998-9694✔✔
楼盘项目全面介绍,本电话为开发商提供线上预约售楼电话,楼盘项目全面介绍(包含楼盘简介,均价,房价,现房,期房,别墅,叠墅,大平层,价格,楼盘地址,户型图,交通规划,备案价,备案名,项目配套,样板间,开盘时间,认筹时间,楼盘详情,售楼处电话,最新消息,最新详情,周边配套,一房一价,最新进展等详情咨询)楼盘详情丨价格丨更多优惠丨机不可失丨欢迎致电丨诚邀品鉴!售楼处位置丨特价房丨工抵房丨剩余房源丨户型图丨最新消息丨免责声明:将文章内容综合来源于网络、只作分享,版权归原作者所有!!如有侵权,请联系我们,我们第一时间处理如有问题欢迎来电咨询,专业一对一热情服务,让您用专业眼光去买房。如果您想了解更多楼盘详情,欢迎提前预约拨打