招商·林屿湖畔售楼处电话☎:400-998-9694 招商·林屿湖畔售楼处电话☎:400-998-9694 招商·林屿湖畔首开热销,定位高端改善,位于外环外CAZ板块,产品力强,资源集中,价格亮眼,引发广泛关注。
招商·林屿湖畔
售楼处电话☎:400-998-9694
如有问题欢迎来电咨询,来电即可享受买房优惠!
预约来电尊享购房优惠,可预约案场内部销售人员,专业一对一热情服务,让您用专业眼光去买房。
招商·林屿湖畔售楼处电话☎:400-998-9694
招商·林屿湖畔售楼处电话☎:400-998-9694
8月30日,今年备受瞩目的嘉定首个积分红盘——招商·林屿湖畔迎来盛大首开!仅用34分钟, 劲销9.2亿,首批次去化率100%。
首开130套建面约122、145㎡的4.0迭代湖居奢宅,以5.27万元/㎡的均价入市,一席竞藏!首批次认购4天认购比例1:1.3,触发积分;现场15秒钟便成交一套,人声鼎沸、礼炮迭起!

招商·林屿湖畔售楼处电话☎:400-998-9694
招商·林屿湖畔售楼处电话☎:400-998-9694
作为招商蛇口高端产品战略深耕上海20年后的又一力作,林屿湖畔项目凭借远香湖CAZ头排收官的珍贵宅地+招商蛇口“首席设计顾问制”高端资源经营能力+6大嘉定首见的产品亮点,林屿湖畔让嘉定5万+的产品,呈现出媲美市区10万+的场景质感。高燃的绝对实力,见证一座湖的现象级热销传奇!

招商·林屿湖畔售楼处电话☎:400-998-9694
上海外环的 城市自然 作品真的来了!招商林屿湖畔,一个多方位领先全市的新房项目。
我们可以先概括总结一下:
位于外环外 唯一的CA Z板 块核心区 ,大型商业、顶级教育、高端医疗、丰富生...步行范围内享受的 资源集中度堪比前滩 ;
招商·林屿湖畔售楼处电话☎:400-998-9694 远香湖CAZ板块内 最后一块宅地 ,一旦入市就是区域内房龄最新、产品力最强的项 目,一手掌握整个片区的定价权;
外环外仅有的建面约112㎡起纯粹高端改善型社区,双/三阳台、类一梯一户、超级收纳,卷到头的户型设计;
约87米艺术门庭、约13.7米双层归家大堂, 迭代到最新的产品力 ;
招商·林屿湖畔售楼处电话☎:400-998-9694
从地段、配套、社区用料、立面/公区审美、户型设计、宜居度甚至是投资属性, 招商林屿湖畔都称得上是遥遥领先。

招商·林屿湖畔售楼处电话☎:400-998-9694
嘉定2025王者地块
嘉定新城核心 一线“湖景+河景”
远香湖4.0迭代湖畔奢居产品
招商·林屿湖畔
建面约112㎡-145㎡湖居奢宅
共计62套房源 过会均价51583元/㎡
招商·林屿湖畔售楼处电话☎:400-998-9694

招商·林屿湖畔售楼处电话☎:400-998-9694
基本信息
3月3日,上海2025第二批次土拍,经过49轮竞价,招商蛇口以266030万元的总价摘得嘉定新城远香湖F03A-4地块,溢价率30%,成交楼板价约31850元/㎡。

招商·林屿湖畔售楼处电话☎:400-998-9694
招商蛇口高端作品,皆由各团队首席设计师整体负责。秉持构建美好生活的初衷,凝翠品牌核心产品力的理念植入每一席作品。从各维度寻找的具备全球视野 ,深谙高端人居,聚集享誉业界的数十位杰出设计师合力担当,为招商高端著品的呈现倾力而为。
招商·林屿湖畔售楼处电话☎:400-998-9694 林屿湖畔即是招商蛇口集团首席设计师牵头,沉淀多年高端产品打造经验,整合高端产品系同源知名设计师团队 , 甚至聘请灯光顾问的超细节设计作品。无论是材质、色彩还是造型,高度统一化设计,呈现出嘉定新城超规格的存在。

招商·林屿湖畔售楼处电话☎:400-998-9694
四大迭代产品力,第四代湖居迭新奢宅
作为招商蛇口在沪上的首部度假式湖居巨著,林屿湖畔雄踞嘉定新城CAZ核心,以"自然而然的贵重"为设计灵魂,融汇前沿的全球设计语汇,为当代高净值人群量身打造"重回一倍速"的湖畔度假生活方式。
招商·林屿湖畔售楼处电话☎:400-998-9694 四大核心产品力共同筑就4.0湖居沉浸式奢居新标杆:招商林屿湖畔,以湖居母本,成就献给城市的未来恒产,它以土地敬畏之心重构自然与奢居的关系,以人本洞察回应塔尖人群的精神诉求,以全球视野重塑“出门即繁华,归门即度假”的生活母本。

招商·林屿湖畔售楼处电话☎:400-998-9694

招商·林屿湖畔售楼处电话☎:400-998-9694
林屿湖畔采用"首席设计师负责制",由首席设计师统筹产品经理、大师团队及专业顾问,高效整合全球顶尖设计资源。
用料上,顶豪同款的铝板+石材。无需多言,这就是目前上海立面中更好、更昂贵的用料。
招商·林屿湖畔售楼处电话☎:400-998-9694 审美上,飞檐设计+阔景画框。最高约0.35的超大窗墙比,超越上海常规住宅标准。

招商·林屿湖畔售楼处电话☎:400-998-9694
林屿湖畔的大门,全跨约87米,是全嘉定首个超长全弧形叠石工艺的艺术门庭!近人位置的建筑片墙都采用大块“沙漠风”石材切割,同源市区16w+项目康定壹拾玖米黄石材,最大程度以原石肌理还原自然氛围,庄重优雅又不失松弛感。
招商·林屿湖畔售楼处电话☎:400-998-9694 采用大块切割打磨圆润弧度的沙漠风石材、约10cm递减旋转叠石,内藏灯带,形成了微妙的三角形透视视角,这种充满艺术感的向心性视线设计,在知名建筑卢浮宫的三角门头上也有使用。

招商·林屿湖畔售楼处电话☎:400-998-9694
总高约13.7米双层归家大堂、独立车马院以向心视觉设计,营造震撼的视觉冲击力与尊贵仪式感,显著提升归家动线的品质与社区形象,成为彰显楼盘档次的核心亮点。
招商·林屿湖畔售楼处电话☎:400-998-9694
同时,还有引入自然天光的阳光地库、下坡道及地下玄关,这是招商千万级顶豪的同款,是整个外环外最高颜值和规格的车库。

招商·林屿湖畔售楼处电话☎:400-998-9694

招商·林屿湖畔售楼处电话☎:400-998-9694
在社区内部景观上,招商也进行了大胆创新,别具一格的酒店度假超级公区,让人非常心动!
•招商·林屿湖畔售楼处电话☎:400-998-9694 立体浮岛:通过地上地下丰富动线串联下沉庭院、局部风雨连廊、戏水池、行车橱窗、垂直森系景观、嵌入式会所功能,创造一座立体视觉奇观的“漂浮的绿洲”。
•下沉峡谷:约420㎡丰富层次立体下沉庭院,区域首现悬浮水池,搭配4.3米飞瀑,塑造沉浸式度假感受。

招商·林屿湖畔售楼处电话☎:400-998-9694
峡谷秘境庭院:从单一景观功能,到酒店度假化超级公区
板块内领创“峡谷”意境的下沉式立体庭院,在约420平米的垂直面中,通过多层花池、叠水、软景塑造立体层次观感,遴选多种珍贵苗木,立体庭院贯通风雨连廊,给予五星级度假酒店般的空间体验。
招商·林屿湖畔售楼处电话☎:400-998-9694 下沉庭院四周设有不同功能空间,包括健身房、归家大堂、阳光地库光厅等,实现360度不同视角的景观体验。

招商·林屿湖畔售楼处电话☎:400-998-9694

招商·林屿湖畔售楼处电话☎:400-998-9694
精心设计十二重归家动线,从车马院迎宾车道、约87米奢阔门廊到约13.7米挑高的酒店式大堂等空间。

招商·林屿湖畔售楼处电话☎:400-998-9694
约2900平米地上地下泛会所及活动空间,给予生活度假般的感受,地下层设有国际标准壁球馆、园景健身房,地上架空层为最高悬挑越7.2米的泛会所空间,以休闲下沉卡座、水吧台、休闲会客区、联动室外水池,打造酒店式度假空间等柔化社区与自然的边界。


招商·林屿湖畔售楼处电话☎:400-998-9694
同时,打造了休闲下沉卡座、水吧台、休闲会客区、联动室外水池,打造酒店式度假居住体验。

招商·林屿湖畔售楼处电话☎:400-998-9694
架空层最高建筑层高约7.2米,共计约1700㎡。
一方面,超高架空层的存在,不仅在物理意义上将部分楼栋的社区生活平面整体托举,隔绝了地面层的喧嚣与干扰。还让低区的业主也能充分的享受阳光和视野。

招商·林屿湖畔售楼处电话☎:400-998-9694
推售信息
林屿湖畔首开产品,建面约 122、145㎡精装3-4房。超84%的使用率+超3.1米层高, 碾压级产品力 ,难得的梦中情房。

招商·林屿湖畔售楼处电话☎:400-998-9694
在空间革新上,好房子标准下,打造嘉定区域内开创性的3.1-3.15米层高,并配置多个约80公分飘窗灵活空间,带来通透奢阔的居住体验。主卧设置270°转角飘窗,带来更高舒适度与更大采光。双门厅礼仪,客餐分离升级社交款待维度,飞机户型+客厅双动线平衡通透与私密,营造出既有秩序又具仪式感的私密殿堂。

招商·林屿湖畔售楼处电话☎:400-998-9694
收纳设计大师打造超级收纳,建面约122与140户型全屋交付收纳量达约8.2m³与约8m³,约等于205个20寸行李箱(40L)的收纳空间,140户型预留收纳11m³,围绕 12 种场景应用,玄关、厨房、卫浴三大区域,让各类物品都有归属,生活更加从容舒适。
根据内部户型图来看,整体户型都还是比较不错的,高层全南北通,叠墅对比市面上的常规户型也有很大创新,其中大平层做到了五开间朝南,约8.6米横厅!
招商·林屿湖畔售楼处电话☎:400-998-9694 建面约122㎡3房2厅2卫双阳台:
进阶舒适改善户型!三口之家或三代同堂宜居!
三开间朝南设计,采光视野相当不错!
进门玄关步入式收纳空间,仪式感与实用性拉满!
招商·林屿湖畔售楼处电话☎:400-998-9694 厨房、餐厅、客厅及阳台一体化设计,层高迭代至约3.15米,尺度感十足!
南北双阳台配置+(边套)主卧约270°转角飘窗,居住舒适度、景观视野满分!
南次卧飘窗设计,有效延伸室内空间
北房间+阳台,实现超面积使用感!打造奢阔居住体验~

招商·林屿湖畔售楼处电话☎:400-998-9694
值得一提的是,约122㎡户型全屋交付收纳量达约8.2㎡!
约等于约205个20寸行李箱(40L)的收纳空间,围绕12 种场景应用,让各类物品都有归属,堪称招商收纳魔法!
玄关收纳:约1.75m³收纳空间,甚至可以收纳一辆山地自行车
厨房收纳:利用烟机管道两侧空间,收纳五谷杂粮;高柜安装天使拉篮等,让厨房实现普通户型约1.5倍的操作台空间(借用飘窗)
招商·林屿湖畔售楼处电话☎:400-998-9694 卫浴收纳:底部沥水层板+化妆镜、集成架、卫浴柜下翻板设计、预留扫地机位置+门板置物
建面约112㎡3房2厅2卫双南阳台:
招商·林屿湖畔售楼处电话☎:400-998-9694 年轻家庭舒适改善户型!三口之家或三代同堂宜居!
三开间朝南设计的全明户型,双南阳台+主卧约270°转角飘窗,层高约3.1米,空间感、采光视野都相当不错!

招商·林屿湖畔售楼处电话☎:400-998-9694
建面约122㎡的3房产品,有几大亮点。
第一,类一梯一户的设计。
这种 “隐形扩容” 设计,不仅重构家庭生活秩序,更解锁了N种生活场景的可能性。

招商·林屿湖畔售楼处电话☎:400-998-9694
第二,全屋交付收纳量达8.2m³,约等于205个20寸行李箱的收纳空间。
整个套内除了电梯厅外,还有大量的收纳空间。
例如进门的这个独立储藏空间:

招商·林屿湖畔售楼处电话☎:400-998-9694
还有餐边柜空间、大量的飘窗空间、厨房的柜子等等。

招商·林屿湖畔售楼处电话☎:400-998-9694


招商·林屿湖畔售楼处电话☎:400-998-9694
第三,约3.1米层高+边套户型4飘窗+建面约122㎡做3房,极致的尺度感。
建面约122㎡的3房本身就拥有超强的空间尺度感,再加上小高层的高得房率+多飘窗的设计,整个空间的尺度感相当惊人。
比如这个客餐厅:

招商·林屿湖畔售楼处电话☎:400-998-9694

招商·林屿湖畔售楼处电话☎:400-998-9694
这个尺度感一般也只有在约140㎡以上的大平层中能看到。
主卧豪华套房的设计+约270°的巨型飘窗,这个尺度感和实用性真的很强。


招商·林屿湖畔售楼处电话☎:400-998-9694 招商·林屿湖畔售楼处电话☎:400-998-9694
另外,由于双阳台的设计,北房间不仅能放下一张床,还有大量可以放下书桌、衣柜的空间,实用性超强。

这个户型真的是目前上海迭代到最新款的产品,真的可以想象这样一个产品对于周边本地改善客户的吸引力有多强,在未来的二手房市场会非常吃香。
招商·林屿湖畔售楼处电话☎:400-998-9694 建面约145㎡4房2厅2卫3阳台户型:
四开间朝南设计奢阔户型,搭配双门厅设计,半敞阳台及自由式飘窗,预计实际使用率约可达约87-91%,足以媲美约160㎡+尺度!
双南阳台+北阳台+约270°景观飘窗设计,有效延伸室内空间,空间相当奢阔!
主卧套房拥有充足衣帽收纳空间、双台盆主卫,生活仪式感满满!
餐厅设计了收纳柜空间,相当人性化!
招商·林屿湖畔售楼处电话☎:400-998-9694 客卫三分离设计,台盆外置更合理!
全屋交付收纳量达约8㎡约等于205个20寸行李箱(40L)的收纳空间,预留收纳约11㎡。

招商·林屿湖畔售楼处电话☎:400-998-9694
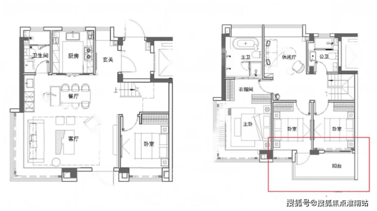
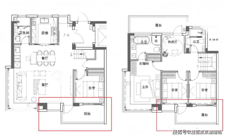
叠墅户型首曝:
建面约168m下叠,4房2厅3卫,共计约38套,独立入户玄关,附带地下室+花园,首层横厅+南向次卧+北向1厨1卫,二层三个卧室全朝南+北向公共休闲空间;边套户型客厅以及主卧为270°飘窗!
下图为边套户型过程稿,红框线范围内可能会对另外一个次卧的飘窗位置进行优化,优化为阳台,也就是南白两个次卧均带阳台!

招商·林屿湖畔售楼处电话☎:400-998-9694
建面约163m上叠,4房2厅3卫,共计约38套,上叠的户型布局其本与下叠一致,附赠南北露台,边套户型的客厅以及主卧同样也是270°飘窗!
下图为边套户型过程稿,红框线范围内可能会优化,一是客厅飘窗位置可能会优化为阳合,变为南向双阳台;是六层南白次卧飘窗位置优化为露台,两个次的露合连通!

招商·林屿湖畔售楼处电话☎:400-998-9694
建面约165m大平层,4房2厅3卫,共计约37套,一梯一户,五开间朝南,约8.6米横厅,双套房设计,边套户型主卧为270°转角飘窗!
下图为边套户型过程稿,红框线范围内可能会对餐厅位置飘窗进行优化,优化为阳合,使客餐厅阳台贯通!

招商·林屿湖畔售楼处电话☎:400-998-9694
区域版块
项目位于嘉定新城远香湖CAZ规划红线内,这是五个新城目前仅有的官宣的中央活动区,定位为嘉定新城中的综合功能中心与城市形象集中展示区,集聚国际住区、大型商业集群、摩天地标集群、科创科研企业集群、国际教育文化等功能为一体。 (规划内容来自上海嘉定微信公众号)
招商·林屿湖畔售楼处电话☎:400-998-9694 如果说陆家嘴-外滩是整个上海的核心资源所在,那整个嘉定新城的核心资源就在远香湖中央活动区。

招商·林屿湖畔售楼处电话☎:400-998-9694
远香湖中央活动区,就是整个嘉定新城的门面和“城市会客厅”。这是一个“被倾注了嘉定新城所有高端资源”的片区!
招商·林屿湖畔售楼处电话☎:400-998-9694 嘉定新城远香湖CAZ定位嘉定新城的综合功能中心与城市形象集中展示区,集聚国际住区、大型商业集群、摩天地标集群、科创科研企业集群、国际教育文化等功能为一体。(规划来自上海嘉定微信公众号)
整个片区总开发体量约531.4万㎡,规划公共服务建面约27.7万㎡,教育科研设计建面约71.6万㎡,商办体量约284.1万㎡。
这里将打造总部经济集群,涵盖汽车城、智能传感、瑞金创新中心精准医疗特色产业等,国北科技先进金融中心、世界500强绿地集团、海螺创业等企业总部已相继官宣落户。北侧有远香湖、保利大剧院、嘉定图书馆老三大件配套,以及地标级超高层建筑凯悦酒店。

招商·林屿湖畔售楼处电话☎:400-998-9694
未来,远香湖核心区还将建设文化环、未来塔、活力谷等城市“新三件套”,也在项目周边。文化环:除了现有嘉定图书馆、保利大剧院、江南书院、尚画美术馆外,围绕着远香湖未来还将打造立体儿童乐园、航模活动中心、嘉昆太路演中心等一系列高能级文化设施。

招商·林屿湖畔售楼处电话☎:400-998-9694
未来塔:位于CAZ的正中央,建成约300米,将成为嘉定甚至是上海西北第一高楼,是真正的C位地标
招商·林屿湖畔售楼处电话☎:400-998-9694 活力谷:集商业和办公于一体的休闲创意街区。周边现有教育资源非常丰富,包括上海市实验学校嘉定新城分校(九年一贯制公办学校)、远香湖幼儿园、中福会新城幼儿园、嘉定新城实验第二小学、马陆小学、上海市育才中学等。周边大体量商业体环伺,包括西云楼、宝龙广场、万达广场、大融城、理想之地配套商业(在建)等近40万方商业。

招商·林屿湖畔售楼处电话☎:400-998-9694

招商·林屿湖畔售楼处电话☎:400-998-9694
周边有三甲医院瑞金医院北院、嘉定区妇幼保健院、上海嘉定中医医院嘉定新院等优质医疗资源。
作为远香湖CAZ规划红线内最后一块住宅用地,招商林屿湖畔错过不再。
招商·林屿湖畔售楼处电话☎:400-998-9694 未来业主将于城市地标为邻,享受到的必然是与国际接轨的潮流生活!
从配套能级、步行范围内的资源浓郁、宜居程度、产品的规格等维度,招商林屿湖畔的表现都十分出众。

、查看五证
购买期房的话,则一定要确定开发商五证两书一表齐全,这是关于买房的基本知识中最重要的一项,所谓五证就是指《国有土地使用证》、《建筑用地规划许可证》、《建筑工程规划许可证》、《建筑工程施工许可证》和《商品房预售许可证》,有了五证两书才能办房产证,这是个先决条件,而且这个过程中开发商拿地的出让金都结清,楼盘本身没抵押才行。两书为质量保证书和使用说明书。这两书是房屋竣工并且通过验收后获得的。房子盖完了没有通过验收不行。一表为竣工备案表。这个是由当地质检站在所有验收工作完成以后加盖公章交给开发商的。
2、选择开发商
新手第一次买房注意事项中慎重选择开发商也很重要,因为一个好的开发公司它必然有一个好的理念和好的团队、好的物管服务,它已经开发和服务的小区是经得起时间的检验,可以得到业主的口碑传颂的。好口碑的开发商是房屋质量的保障,一般好的开发商资质高、资金充足。
3、挑选户型
新手购房须知,户型的挑选不能马虎,不同朝向、不同通风采光的户型会直接影响业主的居住舒适度,maigoo小编为大家整理了几点:1、南北通透,户型方正,采光通风俱佳;2、朝向优劣:正南>东南>西南>东>西>北;3、对侧通风,是通风条件最好的;4、房子内部,各功能区域面积分布均匀,开间:进深=1:1.5;5、动静分区,卧室与客餐厅、厨房不要挤在一起。
4、 挑选楼层
挑选楼层也像挑选户型一样重要,初次买房须知中的关键一项,不同的楼层,房子的通风采光、视野景观以及业主的私密性、居住舒适度,甚至噪音污染、出行便利性等都或多或少有所不同,一般来说,低楼层出行更方便,如遇意外也更容易逃生,但是通风、采光、视野等相对高楼层较差,私密性较差,噪音污染也严重;高楼层视野好、空气清新,通风采光都更佳,但是如果电梯故障,可能会影响出行,总的来说,一栋楼的1/3至2/3之间的楼层是较好的楼层,属于不高不低的“黄金楼”。

5、多学习选房知识
学无止境,能看到这篇买房须知的18个常识就说明读者朋友已经在努力了,很多购房者认为,当下房价过高,所以买房时,一般会在同等区域、同等地段选择价位便宜的楼盘,或者买房时看到区位好而不管户型、内部环境、物管服务、生活成本等,这就像买一件衣服,你只管款式而不管布料、价格等,正确的做法是多学习选房知识,关注户型好坏,房屋质量等干货。
6、评估购房能力
即使掌握了很多关于买房的基本知识,但很多人却对自己的经济能力认识不清,这也是很不明智的,买房之前一定要评估自己的购房能力,量力而行,对于刚需族来说,由于经济能力有限,所以都会采取贷款的方式买房。而贷款每个月需要交一定数额的月供,为了保证生活质量不受影响,避免断供的风险,maigoo小编建议月供的数额最好控制在总收入的50%以内。而且不仅要评估当前收入,还包括你接下来三至五年内短期的工作发展潜力以及未来十年至二十年后可能的职业安排,同时还包括你平时的消费习惯,以及家人的健康状况等,最后估算出一个数据。
7、看优惠
等待时机抓住又会也是买房须知的重要常识,买房子原本要花比较多的钱,买房子的时候能省一些算一些,所以购房者要懂得一些买房子的优惠政策。对于初次购买房屋的朋友来说,一般情况下都能享受首套房优惠政策,也就是说只要没买过房或没有贷款记录就可享受,开发商经常找“托”这样让购房者觉得“一房难求”在买房的时候职业顾问也会说再考虑一天就会被别人抢走房源,这样一来就会冲动消费,大家一定要耐住性子。
8多看多比较
年轻人买房时,最好不要好大喜贵,而且还想着一步到位,一定要像买东西一样货比三家,经过比较能获得有些经验,而房产综合性太强,它包含的面太宽,主要看你在比较过程中关心的内容全不全面,而且根据自己能承受的范围做出合理的决定,因为没有十全十美的房子,买房也不可能考虑到各方面的细节。
9、看规划
买房当然要挑楼盘,挑小区,挑户型,但是也不能只看房子,还要看房子的位置,这也是买房须知和注意事项中很重要的一点,内行人买房首先看的是地段,华人首富李嘉诚也说过:“决定房地产价值的因素,第一是地段,第二是地段,第三还是地段。”好地段的房产保值或升值的空间更大,购房风险相对城市偏远郊区较小,就算未来房价暴跌,首先下跌的也是地段较偏的房产,地段好的房产房价一般都是最后下降的。建议大家在购置房产时,要切记紧跟城市发展的方向。

10、楼间隔
什么是楼间隔?就好似两相邻楼的外墙面距离,同一个小区两栋相邻的楼与楼之间的距离,建筑间距的控制是为了保障人们工作、生活的质量与安全,大楼间隔宽的住宅区不一定能建造好的住宅区,大楼间隔特别宽也能建造好的住宅区,间隔宽是业主生活安静、隐私、视野广阔,也是景观建设的平台,但是利用平台建造景观安静、隐私、舒适的环境相反,大楼的间隔并不特别宽,但是这样的理念和团队创造了美丽、舒适、健康的环境,也被称为好的住宅区。
11、小区环境
重点看小区环境是买房须知的重要常识,小区景观、绿化、配套等与生活密切相关,更是楼盘质量的体现,大超市、医院、学校,关乎生活便捷度;是否是学区房,关乎小孩上学;附近的公交线路、地铁线路,交通是否便捷;好小区内部和周边的配套设施也相对完善一些,不仅水、电、燃气、煤气、宽带、停车场、公共厕所、多功能儿童活动空间、园区休闲场所、物业公司等内部配套设施能满足业主的日常居住需求,周边还有便利店、菜市场、食品店、药店、小型超市、学校、公交站点或者地铁站点等多功能服务配套满足业主以及孩子的衣食住行的更高需求。
12、避免楼层
选择楼层的时候经常是不随人愿,既然选不到“黄金楼层”,至少不要选到一些太糟糕的,比如极端层,顶层和底层不建议买,高层住宅如果选择低楼层的房子的话,采光可能就不是很好,而且容易潮湿,发霉,滋生蚊子。顶层容易出现漏水现象,虽然能修理但耗时耗力,修理时间极可能被无限延长。设备层则是专门供水,供电的中间楼层,要是常年居住在设备层的附近的话,不仅机器设备的噪音把人折磨得无法休息,连机器的辐射也会影响人的身体健康。
13、价格挑选
很多购房者认为房价才是买房最关键的因素,其实不然,适不适合自己才是最关键的。在自己能力范围内,如果房价偏高你也能接受,这样你就会觉得地段好、配套好、户型好、楼层好的房子才是最好的,就算房价贵点也愿意买。但是,如果你能力有限、购房资金有限,那么估计买哪里都会觉得贵,甚至觉得房价越便宜越好,价格挑选要比较个人承受范围、交通状况、社区环境、户型结构等条件衡量楼盘价格。

14、不要贪大
买房一定不要贪大是买房时的重要事项,面积以适用为原则,不要为大而大,现在年轻人都喜欢独自出来居住,所以一般买个80、90平的大两室或者小三室就完全足够居住,非要买大房子,不仅不实用,而且还会涉及到一定的税费,国家区分豪宅和普通住宅的分界线就是144平米,所以在购买房子的时候,不要超过140平,除了税费要多交不少,对于一些物业费取暖费等等各个方面都会高出很多,长时间算下来,多出的这些没准在日后还能多出一套首付钱。
15、考虑孩子问题
考虑孩子是买房时非常必要的,既然婚恋是买房子的重要原因,那么孩子就是一个不得不考虑的因素,首先在购房的户型上必须考虑孩子的房间,购房的户型最好要两居室以上;其次那就是注意考察周边的教育设施配套,孩子要上学,从幼儿园到小学到中学,同时还要考虑孩子路上的安全问题,尽量选择距离近的房子。这样可以给孩子节约大量的时间,让孩子有充裕的时间学习和休息。
16、了解物业
物管的好坏要看有没有专业的团队,有无完善的设施、健全的内部管理。不同的物业公司所做的服务千差万别,物业公司能否尽善尽美地完成自己的任务牵扯到小区的整体质量。保障安全、常规服务是物管的基本职责,好的物管主要看能否与业主达到共建和谐的社区环境,改变邻里关系为业主提供交流平台。活动的目的,不止热闹高兴,而是使业主与业主间、业主与物管间更加融洽,物管的用心和细心能不能坚持下去是最重要的,最后的评比结果是业主的口碑效益。
17、购房定金
“订金”与“定金”是不同的法律概念,这是开发商欲规避法律责任的惯用做法,《中华人民共和国担保法》规定:定金的数额由当事人约定,但不得超过主合同标的额的20%。商品房交易中,买家履行合同后,定金应当抵作价款或者收回;若买家不履行合同,无权要求返还定金,开发商不履行合同的,应双倍返还定金。而订金并非一个规范的法律概念,实际上它具有预付款的性质,并不具备担保性质。很多开发商会打出多少抵多少的优惠活动,但是需要缴纳一定的定金,要知道这里交了的定金是不能退的。辨别“订金”与“定金”是买房必知的重中之重。
18、签认购书
购房者应慎签认购书,认购书是商品房买卖的预约合同,是独立合同。签认购书时常会引发一系列纠纷,具体表现在购房者要收回定金,而发展商却不一定会退还。因此,为避免过多的麻烦,购房者在决定买房,可以向发展商提出看正式合同样本,房屋买卖合同一般只会对房子本身做出承诺,但是售房者很可能为了签单而给你很多的口头承诺,在觉得正式合同可以接受的情况下,再签署认购书,以免被套牢。
招商·林屿湖畔
售楼处电话☎:400-998-9694
如有问题欢迎来电咨询,来电即可享受买房优惠!
预约来电尊享购房优惠,可预约案场内部销售人员,专业一对一热情服务,让您用专业眼光去买房。
招商·林屿湖畔售楼处电话☎:400-998-9694
楼盘项目全面介绍,本电话为开发商提供线上预约售楼电话,楼盘项目全面介绍(包含楼盘简介,均价,房价,现房,期房,别墅,叠墅,大平层,价格,楼盘地址,户型图,交通规划,备案价,备案名,项目配套,样板间,开盘时间,认筹时间,楼盘详情,售楼处电话,最新消息,最新详情,周边配套,一房一价,最新进展等详情咨询)楼盘详情丨价格丨更多优惠丨机不可失丨欢迎致电丨诚邀品鉴!售楼处位置丨特价房丨工抵房丨剩余房源丨户型图丨最新消息丨免责声明:将文章内容综合来源于网络、只作分享,版权归原作者所有!!如有侵权,请联系我们,我们第一时间处理如有问题欢迎来电咨询,专业一对一热情服务,让您用专业眼光去买房。如果您想了解更多楼盘详情,欢迎提前预约拨打