万科朗拾花语(上海闵行)楼盘网站丨万科朗拾花语丨万科朗拾花语楼盘详情/价格

淮南楼市观察 2023-11-01 11:00:27
用手机看
扫描到手机,新闻随时看

扫一扫,用手机看文章
更加方便分享给朋友

上海闵行万科朗拾花语售楼处电话:400-9966-224【预约热线】

入门玄关开放式厨房客厅客厅阳台用餐空间次卧公用厕所儿童房主卧主卧卫生间西马屯泾与项目施工地仲盛世界商城,图片来源于网络

上海闵行「万科朗拾花语」

售楼处电话:400-9966-224【预约热线】(一对一热情服务)如有问题欢迎来电咨询,专业一对一热情服务,让您用专业眼光去买房。

上海闵行万科朗拾花语售楼处电话:400-9966-224【预约热线】其次,对于投资/自住,它是个好选择吗?

结合小编踩盘的结果来看,谦虚一下,以小编浅薄的知识来看,小编个人认为这是一个投资/自住的好选择。

对于自住,小编从三个重点来分析:户型、景观、配套

1.户型设计

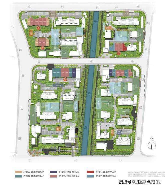
作为低密区难得的高层大盘,中国铁建&万科·朗拾花语拟建18幢17-26F主力建面约85-138㎡3-3+1房产品。

以目前开的95㎡样板间为例

实拍图以及装标如下:

设计亮点:①通过独特的“S墙”设计,既可以增加一块储物空间,又可以用来将“冰箱外移”,增大厨房操作空间,提升厨房的收纳量,使原本中小户型的L型厨房变成U型厨房。

②用玻璃移门+岛台的开放式厨房设计,透明的厨房及连接餐厅的岛台,增加了家庭互动的趣味,并加入了嵌入式洗碗机。

飘窗优化:例如北向儿童房采用等面宽飘窗,同时飘窗空间再延伸,这样可设计一张垫高的1.5米大床,有效拓宽卧室空间。

结构精细化设计客厅与南向次卧之间无结构墙,今后可拆除形成更大的活动空间。这个举措同时也会特别有利于资产的成长性,在二手房交易的时候,结构上的灵活性将是二手市场上很好的卖点。

2.景观

整个社区依托春申塘和西马屯泾汇聚而成的“T”型水域,舒朗排布与错动依水而建形成都市中的一座水上自然岛屿。

效果图

微风,落叶,潺潺的水声,光线渗透下,绿林的落影......那一刻脚步情不自禁的迟缓了下来,眼睛控制不住的细细欣赏每一处自然风光,松弛感扑面而来。

从这一刻开始,懂得了中国铁建&万科·朗拾花语的设计理念。用最纯粹的自然元素作为设计语言,以“人视角”景观设计,营造轻松惬意的归家氛围以及度假式的居住体验,打造一个雅中有奢,静谧精致的社区。

3.配套

首先最大的杀器是四轨并汇!

距离15号线虹梅南路站约400米,同时乘坐15号线9站30分钟就可以抵达徐家汇中央活动区;19号线沿黄浦江自南向北,串联起前滩,陆家嘴两大世界级CBD;未来的机场联络线华泾站。机场联络线时速达160公里,可极大地缩短上海虹桥、浦东两座机场之间的距离,可实现空铁直通。

不仅如此,虹梅南路高架,向北可以快速接入中环,银都路隧道向浦东,构筑梅陇城市热点版图。

商业方面:5公里范围有仲盛世界商城,凯德龙之梦,海梦一方,盒马,大润发等,可以满足日常消费需求;10公里左右可以触达前滩太古里,晶耀前滩,恒隆广场等顶级商圈;此外还会有百万繁华商业南方商务区,有中庚环球创意中心、百联南方购物中心及正在建设的造的三井商业体等十大商业商务板块构成,总建筑面积近130万平方米,将打响梅陇面向长三角的现代服务品牌。

教育方面:项目周边有闵行区实验小学、蔷薇小学、莘松中学、上海市第二中学等学校。(教育免责:政府不对预售房屋进行学区划分,项目对口学校最终以交房后教育主管部门公布为准)

医疗资源:三甲医院华东医院(闵行门诊部) ,复旦大学儿科医院、 闵行梅陇社区卫生服务中心等。

对投资来说,期待值拉满!

今年4月份闵行2035的规划发布,梅陇凭借其优势,在闵行的"中部崛起"战略指引下,如一匹黑马一跃成为区域中心。

而梅陇板块正好位于闵行中部,未来,梅陇将与一路之隔的华泾形成联动,依托4大轨交线,聚焦3大国家级产业区、5大科创中心、12大科创园、3000+企业等等资源铸就城市新名片。

示意图,仅供参考

朗拾花语所在的梅陇新中心就是其中之一。

梅陇新中心:围绕15号线虹梅南路站,以TOD理念打造功能无缝衔接的综合枢纽,沿景洪路两侧打造约120米城市高地,沿春申塘打造滨水地标,优化基础教育和公共服务布局。

其中,商办建筑规模约38万㎡,住宅建筑规模约37万㎡,重点培育超级主题商业综合体、活力商务、亲水品质住宅、文化娱乐、生态休闲等功能(信息来自:人文梅陇)。

实拍图

朗拾花语北侧的梅陇华鑫天地:上海首个镇级工业园区转型城市更新落地项目。规划有研发花园总部、高标商务中心、园区商业中心、园区会议中心、园区人才公寓、社区邻里中心、研发标准办公,预计2023年一期建成。

机场联络线华泾站上盖:紧挨着华之门,用地面积约139.4万㎡,地上总开发规模约67.5万㎡,其中商办面积达到了约47.8万㎡,未来也将成为热门商业地标。

华之门:地上总开发体量高达约81.28万㎡,超过新鸿基徐家汇中心ITC中心(约58万㎡)。

北杨人工智能小镇:定位为全球影响力的人工智能产业生态集聚区、人工智能全域应用的示范区以及国际化智能产城融合区。

示意图,仅供参考

在这片充满潜力的土地上,梅陇作为闵行的新中心汇集了超400万㎡的开发体量,这已超越了徐家汇中心ITC(约58万㎡),甚至也超过了香港置地西岸金融城(总建面约180万㎡)。

像梅陇这样的成熟又充满潜力的地段,地理位置优越。然而就在这个区域,土地供应却相当有限。除了2022年9月越秀仁恒天樾园和开盘入市,区域已近6年之久没有新房供应,因此积压了大量的改善居住需求,急待释放。

这就使得梅陇区域的品质二手房挂牌价站上了9万+/㎡左右。

例如,2005年建成的春申景城二手房源在*中介网上的挂牌价格大约在9.09-11.66万元/㎡之间。

上海闵行万科朗拾花语售楼处电话:400-9966-224【预约热线】这就说明了中国铁建&万科·朗拾花语是有很大的投资空间的

(以下日照分析均为实际楼层)

春分秋分(9-15时)在售楼栋日照时间和动图

春秋日照

夏至(9-15时)在售楼栋日照时间和动图

夏至日照

冬至(9-15时)在售楼栋日照时间和动图

冬至日照

免责:上述日照分析是专业规划师按照项目规划设计方案所作,不代表实际的日照,仅供参考。

噪音分析

噪音场分析的建模区域:

项目北侧为规划闲贤荟路,南侧为银都路,西侧是规划普旺路,东侧是规划贤学路。

基于如下假定对车流量进行估算:城市道路日间200辆/车道/小时,夜间50辆/车道/小时,限速按照城市道路限值确定。

按照实际道路和附近建筑情况建立场地平面:

建立的噪音场分析模型示意图:

分析结果:

注明:以下分析均为建筑外侧噪音预测值,室内在实际情况下,因隔音玻璃的作用,对噪音有不同程度的削减。

说明:分贝为声音响度单位,噪音每提高3分贝,响度增加一倍。

1.项目整体噪音分布

小区内噪音分布,采集位置为地面高度1.5m处,模拟人耳高度。

结论:

日间交通繁忙时间段内,项目北侧靠近规划闲贤荟路的最大噪音基本在66分贝以下,南侧靠近银都路的最大噪音基本在64分贝以下,西侧靠近规划普旺路的最大噪音基本在66分贝以下,东侧靠近规划贤学路的最大噪音基本在68分贝以下

夜间交通繁忙时间段内,项目北侧靠近规划闲贤荟路的最大噪音基本在61分贝以下,南侧靠近银都路的最大噪音基本在58分贝以下,西侧靠近规划普旺路的最大噪音基本在60分贝以下,东侧靠近规划贤学路的最大噪音基本在63分贝以下

上图如采用色块示意图(图中数字为分贝数)(结果是相同的,仅仅表达图像表现不同)

日间:

夜间:

2.各楼宇外立面噪音分布:

日间交通繁忙噪音最大值——住宅南面

夜间交通繁忙噪音最大值——住宅南面

日间交通繁忙噪音最大值——住宅北面

夜间交通繁忙噪音最大值——住宅北面

日间东

日间南

日间西

日间北

夜间东

夜间南

夜间西

夜间北

上海闵行万科朗拾花语售楼处电话:400-9966-224【预约热线】(一对一热情服务)如有问题欢迎来电咨询,专业一对一热情服务,让您用专业眼光去买房。

声明:本文由入驻焦点开放平台的作者撰写,除焦点官方账号外,观点仅代表作者本人,不代表焦点立场。