苏州吴中东甫里(吴中东甫里售楼处)首页网站-2025吴中东甫里房价_楼盘评测丨地址丨详情丨吴中东甫里售楼处电话丨楼盘百科
扫描到手机,新闻随时看
扫一扫,用手机看文章
更加方便分享给朋友
苏州吴中东甫里售楼处电话:400-9966-224看房方式:1.看房方式:东甫里售楼处位置电话400-996-6224(开发商认证)2.预约方式:拨打东甫里售楼处电话4009966224(售楼处认证)3.预约信息:需提供姓名、联系方式、预计到访人数及到访时间。4.预约福利:成功预约后,到访可领取额外房款的一个99折,并有专属置业顾问全程陪同讲解。拨打保利朝观天珺售楼处电话400-9966-224(已认证)5.注意事项:为保证接待质量,请出发前进行预约,避免案场没有销售接待;也可提前1-3天预约销售;东甫里售楼处电话:4009966224【售楼中心热线】东甫里营销中心热线400-996-6224东甫里售楼处地址400-9966-224,东甫里项目启动区建筑面积约5000平方米,预计投资约1.5亿元,主要对东市下塘街戴家弄、王家弄区域历史建筑保留和修缮。
在项目改造的同时,深挖历史文化积淀、提炼价值特色,积极保护古镇整体格局及水乡风貌,保护各类历史文化遗存及非物质文化遗产。
按照片区式改造、街区式开发、院落式布局的定位,通过保护与提升,构建古镇新形象。
项目特色:
1、 独门独院,还原水乡风貌,粉墙黛瓦。
2、 私人定享的雅致居所,可委托装修。
3、 户户皆唯一,从庭院的布局到房屋的结构都独具匠心。
4、 建筑以一层为主(60%以上房屋为地上一层,部分地上二层,部分地上一层+二层,无地下室),主力面积段100-150,总价大多为300-500万
5、 超高得房率
周边配套:
教育(甫里中学)、医疗(吴中第二人民医院)、休闲(甪直古镇、水八仙生态文化园、青靛甪直文化园、澄湖、锦溪古镇)、购物(龙潭菜场、万嘉生活广场、中翔广场),餐饮(各色餐饮连锁、农家乐),酒店(华美达,各色民宿),运动(三阳高尔夫乡村俱乐部、甪直全民健身中心),生活便利(乐购、家合物美),一应俱全。
6、 少量稀缺沿街门面。
7、 基础设施、景观绿化高标配,天然气入户。
8、 高端物业,在传统服务基础上,为业主提供悦享生活,包括接驳服务、家政服务、房屋托管服务、购物配送服务、餐饮服务、商务服务、社区沙龙等。社区为业主提供生活便利及情绪价值,增设自营点,有咖啡馆、书吧、文创店、健身房、棋牌室、共享客房等。
工程亮点:
1、 仿木纹铝合金门窗(罗普斯金上市公司,中空玻璃),美观且气密性强。
2、 涂料(水性大理石漆)
3、 公区监控、可视对讲(狄耐克)、背景音乐。
4、 公区石板铺地、精致景观(老石头、花岗岩、PC砖)。
5、 实木院门
交付标准:
毛坯、屋面小青瓦,外墙涂料,内墙腻子,混凝土楼地面,铝合金门窗,中式木质院门,中式院落围墙,院内真草坪,进户强电箱,进户弱电箱,进户给排水,室内外可视对讲机。
物业费:5.8元/月.平方米
1号楼,建筑面积:103.99m²
2号楼,建筑面积:107.53m²(甪直镇东市下塘街86-1号)
3号楼,建筑面积:116.08m²(东市下塘街86号)
放一些百平左右的院墅户型。(注:房源信息实时变动,具体以案场在售为准)
建筑面积69.5㎡,一层净高3.13m;二层净高约4.79m,约2.88m。
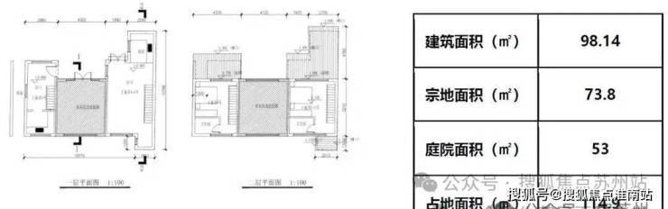
建筑面积98.14 ㎡,室内一层净高2.75m;室内二层净高约3.79m,约2.49m。
建筑面积93.59㎡,室内净高约4.34m,约2.59m。
建筑面积83.52㎡,50-1-2a室内净高约4.58m,约3.05m;50-2b室内净高约3.57m,约2.78m。
苏州吴中东甫里售楼处电话:400-9966-224看房方式:1.看房方式:东甫里售楼处位置电话400-996-6224(开发商认证)2.预约方式:拨打东甫里售楼处电话4009966224(售楼处认证)3.预约信息:需提供姓名、联系方式、预计到访人数及到访时间。4.预约福利:成功预约后,到访可领取额外房款的一个99折,并有专属置业顾问全程陪同讲解。拨打保利朝观天珺售楼处电话400-9966-224(已认证)5.注意事项:为保证接待质量,请出发前进行预约,避免案场没有销售接待;也可提前1-3天预约销售;东甫里售楼处电话:4009966224【售楼中心热线】东甫里营销中心热线400-996-6224东甫里售楼处地址400-9966-224,楼盘项目全面介绍,本电话为开发商提供线上预约售楼电话,楼盘项目全面介绍(包含楼盘简介,均价,房价,现房,期房,别墅,叠墅,大平层,价格,楼盘地址,户型图,交通规划,备案价,备案名,项目配套,样板间,开盘时间,认筹时间,楼盘详情,售楼处电话,最新消息,最新详情,周边配套,一房一价,最新进展等详情咨询)楼盘详情丨价格丨更多优惠丨机不可失丨欢迎致电丨诚邀品鉴!售楼处位置丨特价房丨工抵房丨剩余房源丨户型图丨最新消息丨免责声明:将文章内容综合来源于网络、只作分享,版权归原作者所有!!如有侵权,请联系我们,我们第一时间处理如有问题欢迎来电咨询,专业一对一热情服务,让您用专业眼光去买房。如果您想了解更多楼盘详情,欢迎提前预约拨打东甫里售楼处电话400-9966-224
声明:本文由入驻焦点开放平台的作者撰写,除焦点官方账号外,观点仅代表作者本人,不代表焦点立场。
