怀山望(售楼处电话)怀山望首页网站-怀山望销售中心(怀山望)-小区环境-户型-价格-地址-楼盘详情-周边配套-怀山望售楼处电话

淮南楼市观察 2025-09-10 08:45:32
用手机看
扫描到手机,新闻随时看

扫一扫,用手机看文章
更加方便分享给朋友

浦东怀山望售楼处24小时热线电话:400-891-9910上海浦东怀山望售楼处提供预约看房服务,主打低密度墅区,获GHDA设计大奖,展现东方人居理念。

怀山望售楼处电话:400-891-9910

浦东怀山望售楼处24小时热线电话:400-891-9910

上海浦东怀山望售楼处电话☎:400-891-9910【开发商售楼处预约看房热线】(一对一热情vip服务)

看房请提前致电预约,可享受内部渠道优惠!联系销售人员获取最新一房一价表,售楼处最新优惠底价!开发商销售人员将详细介绍每个户型的独特设计和优势,带您参观样板间,感受精装修的品质和温馨氛围。您还可以了解周边配套设施,包括高端购物中心、优质学校和便捷交通网络,让您的居住体验更加完美。

最新消息:浦东惠南宣桥全新0.87低密墅区——【怀山望】入市在即!

与大师携手,勇夺业界权威设计大奖!

上海浦东怀山望售楼处电话☎:400-891-9910【开发商售楼处预约看房热线】(一对一热情vip服务)

不止于一个项目,而是代言东方生活探索的可能性

上海浦东怀山望售楼处电话☎:400-891-9910【开发商售楼处预约看房热线】(一对一热情vip服务)

【怀山望】自面向市场以来,力求以"怀望世界·山外见山"的标准,拓展"十年一遇"约0.87公园墅区的可能性。

荣获GHDA环球人居设计大奖:建筑设计 居住建筑设计类2024-2025年度金奖!

源于以东方哲学,平衡自然自我的力量。

也鉴证了"怀山望"在业界中的引领力与独创性

GHDA环球人居设计大奖【简介】

上海浦东怀山望售楼处电话☎:400-891-9910【开发商售楼处预约看房热线】(一对一热情vip服务)

由新微设计媒体矩阵(国内最大设计类新媒体平台,粉丝超260万),联合 WHA 世界人居设计联合会发起。

50位国际评委,涵盖TOP50地产集团设计总监、国外知名设计机构负责人及国际设计大师

聚焦三大核心维度:前沿设计理念/空间独创性/技术创新。

【怀山望】塑造"公园旁"到"公园里"的绿色生态社区,并通过会所设计打造友好开放的创新性社区界面,以优圆弧线条、经典温润材质及精致细部设计打造新型海派建筑气韵。

引领者总是比他人走快一步,【怀山望】正是如此,携手建筑大师蒋愈/空间大师刘荣禄/景观大师宋淑华,致力于以业界引领者的标准,与大师共创新的作品!

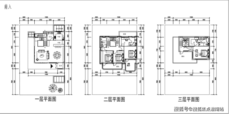
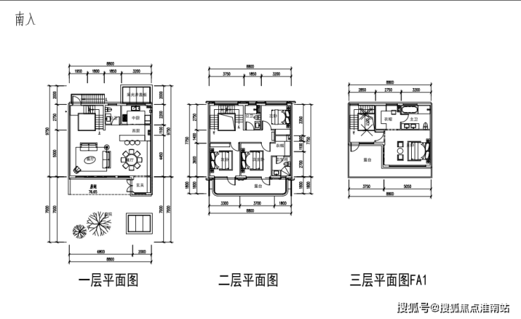
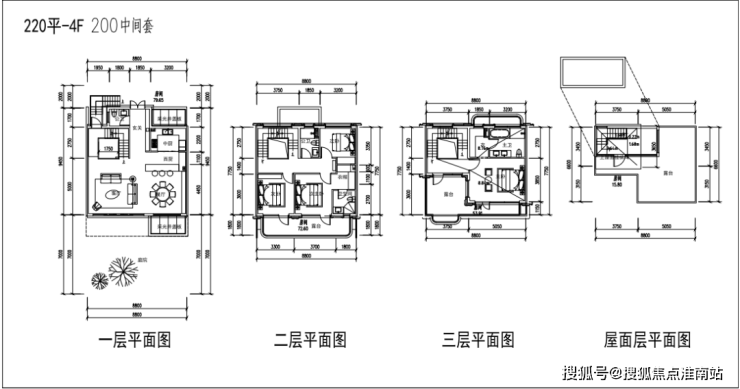
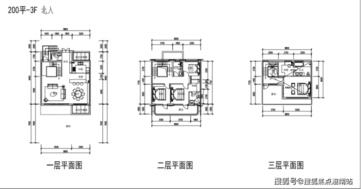
项目推售建面约156-180-200m²叠墅(4-6层)

建面约200-230-260m²联排

可售房源约415套,其中,叠墅332套,联排83套

预计首开176套!

4叠:中套160平、边套200平

下叠均独立电梯入户

上叠1梯2户、双开门

边套面宽9.3米、客厅6米

中间套面宽8米、客厅4.7米

6叠:中套156平、边套180平

边套带东西270度转角大露台

每叠 面宽都是8.1米含南套房

联排:200-230-250-260平

地上3层地下1层

三开间朝南 大面宽8-11米

厨卫均国际一线品牌

中央空调 地暖 新风系统

叠墅总价约500-800万

合院总价约900-1200万

上海浦东怀山望售楼处电话☎:400-891-9910【开发商售楼处预约看房热线】(一对一热情vip服务)

上海浦东怀山望售楼处电话☎:400-891-9910【开发商售楼处预约看房热线】(一对一热情vip服务)

展厅持续开放中,有兴趣的伙伴们,赶紧文中扫码,预约销售前来参观吧!

预计9月开放示范区,10月上旬开启入市认购!

上海浦东怀山望售楼处电话☎:400-891-9910【开发商售楼处预约看房热线】(一对一热情vip服务)

叠墅效果图

上海浦东怀山望售楼处电话☎:400-891-9910【开发商售楼处预约看房热线】(一对一热情vip服务)

上海浦东怀山望售楼处电话☎:400-891-9910【开发商售楼处预约看房热线】(一对一热情vip服务)

上海浦东怀山望售楼处电话☎:400-891-9910【开发商售楼处预约看房热线】(一对一热情vip服务)

6层叠墅户型平面图过程稿

上海浦东怀山望售楼处电话☎:400-891-9910【开发商售楼处预约看房热线】(一对一热情vip服务)

上海浦东怀山望售楼处电话☎:400-891-9910【开发商售楼处预约看房热线】(一对一热情vip服务)

联排户型图过程稿

上海浦东怀山望售楼处电话☎:400-891-9910【开发商售楼处预约看房热线】(一对一热情vip服务)

上海浦东怀山望售楼处电话☎:400-891-9910【开发商售楼处预约看房热线】(一对一热情vip服务)

上海浦东怀山望售楼处电话☎:400-891-9910【开发商售楼处预约看房热线】(一对一热情vip服务)

从电梯/室外楼梯到室内(地下室除外),皆为精装一体化交付,装标采用国内外优选品牌。

智能化:华为鸿蒙智家(或同等品牌)

厨电:德国Miele(或同等品牌)

厨卫体系:国际优选品牌

主卫:配备镜柜及美妆冰箱/浴缸(大部分户型)

主卫洁具五金:汉斯格雅/唯宝(或同等品牌)

未端净水设备:怡口/3M(或同等品牌)

空调新风地暖一体化

空调:大金(或同等品牌)

地暖:威能(或同等品牌)

新风:霍尼韦尔(或同等品牌)

上海浦东怀山望售楼处电话☎:400-891-9910【开发商售楼处预约看房热线】(一对一热情vip服务)

叠加客餐厅地面:简一大理石瓷砖(或同等品牌)

联排客餐厅地面:天然大理石

项目信息

项目位于宣桥镇核心区东南侧的别墅组团,紧邻艺泰一品花园,距离16号线野生动物园站约2.8km,整个片区居住氛围浓厚,低密产品堪为当地的名片。

上海浦东怀山望售楼处电话☎:400-891-9910【开发商售楼处预约看房热线】(一对一热情vip服务)

【怀山望】即【艺泰一品花园二期】品质非常值得期待,隔壁一期的艺泰一品花园,在惠南宣桥一直是标杆的存在。

当初就不惜重金力邀原“星河湾”设计团队,由美国WY国际设计机构担当规划设计,由景龙装饰设计公司担当室内设计,依据自然、环境、人文等因素潜心设计创新、打造出具有世界风范的国际级品质,独创南向卧室八角窗设计,270°观景尺度品位尊享;国际先进的酒店式服务理念,提供24小时全天候管家式物业服务;6000平米商业及专属会所......

上海浦东怀山望售楼处电话☎:400-891-9910【开发商售楼处预约看房热线】(一对一热情vip服务)

这使艺泰一品花园完全突破区域限制,造就出浦东难得的高品质的精品之作,如今的【怀山望】不仅继续延续往期精工细作的高品质,还推陈出新,势必再塑惠南宣桥新标杆。

取之山水 敬之上海

亚洲十大豪宅设计师

苏州桃花源/杭州凤起潮鸣/杭州武林壹号执笔者。

上海浦东怀山望售楼处电话☎:400-891-9910【开发商售楼处预约看房热线】(一对一热情vip服务)

擅用借景手法,将自然环境转化为居住体验,不止于剪裁山水,更是以超尺度展现曲水意境。

环园而置,引水入园

场地双面紧邻公园,达成完全的嵌入感,而约400米园轴与约2100m的集中园景,达成内园与外园呼应,游走其中营造收放感恢弘园林尺度,正是给了曲水入心的写意之境

蒋愈钟情于将社区变成生活场景,融入全龄精神配套,让社区超越单一居住功能,构建复合型社区。

一圆万般,俯仰大千

约1600m²的"禅圆会所",融合健身房/泳池/茶酒吧等功能,以其为圆心,画出诗意生活布局,让精神复合空间,变成精神场域界面。

上海浦东怀山望售楼处电话☎:400-891-9910【开发商售楼处预约看房热线】(一对一热情vip服务)

30x18米的悬浮景观廊架,从约9米的高度凌空而置,让走过曲水的每一位都能在峰谷的穿行中,感受不一样的风光。

蒋愈认为东方建筑的核心在于庭院,需满足"可赏、可游、可用",院里见东方

一墅立心,园中有院

上海浦东怀山望售楼处电话☎:400-891-9910【开发商售楼处预约看房热线】(一对一热情vip服务)

布局上海难得的合院,让庭院成为东方意蕴底色,更丰富的曲径通幽,围绕"禅圆"形成新景观组团,一面是亲切的交流,一面是直击人心的峰谷。在自然过渡的"曲水"营造,松弛有了隐贵质感

取之海纳敬之栋感

百年中国的第一眼是上海

百年上海的第一眼是法式

上海浦东怀山望售楼处电话☎:400-891-9910【开发商售楼处预约看房热线】(一对一热情vip服务)

上海浦东怀山望售楼处电话☎:400-891-9910【开发商售楼处预约看房热线】(一对一热情vip服务)

蒋愈在传统与创新的辩证中重塑"东方居住意境",不仅是物理空间营造,更是关于文化认同与当代生活的哲学实践。因而注重在地化的同时,寻求东西方交融的和谐之道。

上海浦东怀山望售楼处电话☎:400-891-9910【开发商售楼处预约看房热线】(一对一热情vip服务)

其更致力于复刻世界传统工法延续文化血脉,当高层现代成为美感的代表词,打造纯墅在有限的细节中寻求共鸣,回应上海海派传承中的精髓﹣﹣法式美学。

高技选新.艺术世纪

基于270°环幕全景舱,不止于窗墙比跃升,细化框线/屋顶及檐下空间,让光影雕琢立面,以三弧造型,同频西方苹果美学的大跨度玻面,通过纷繁的细节,平衡未来与经典。

新独栋感.法式世纪

上海浦东怀山望售楼处电话☎:400-891-9910【开发商售楼处预约看房热线】(一对一热情vip服务)

"三段式+古典黄金比例+合院孟莎顶",在轻重之间,找到美学与尊贵的平衡,纵横"骨架"提供分户感,以层台点缀变化,创造韵律。多色拼贴多材运用,细腻铝板手工感于石材的点缀中流淌,一眼震撼独栋感,更是质璞艺术感。

弧的境界·峯峦世纪

同频中心豪宅的高技墅造,以曲面重定生活边界,立面全采用 Low - E 三玻两腔中空玻璃,创造更静谧境界,展现更舒展的风景交融,三弧立面,会所圆弧廊架,曲水走向,以三位一体的弧线手法,写意出"峯峦曲水画廊"。

成品车库·高定精装设计

上海浦东怀山望售楼处电话☎:400-891-9910【开发商售楼处预约看房热线】(一对一热情vip服务)

地库地面采用无机水磨石铺装;入口顶部设计不锈钢镂空星空顶与发光灯膜;门厅萤石壁灯内嵌墙面,增添精致细节与柔和层次。

酒店式环岛·车马厅仪式·T台感车道

上海浦东怀山望售楼处电话☎:400-891-9910【开发商售楼处预约看房热线】(一对一热情vip服务)

车马厅设环形车道,诠释高端住宅的非凡品味定制渐进式入户仪式与灯光韵律

地下入户光厅,绘就光的质感叙事

上海浦东怀山望售楼处电话☎:400-891-9910【开发商售楼处预约看房热线】(一对一热情vip服务)

叠墅入口光厅墙面运用金属饰面与仿石岩板,金属的精致与岩板的质感相得益彰。六叠首层电梯厅天花与地面采用弧形元素;墙面岩板搭配不锈钢线条,增添细节与品质。

【怀山望】与蒋愈,因怀淌理想,在"十年一遇"约0.87的低密墅区相遇,让"生活容器"变成"诗意容器",那是舒展,更是予人更丰富的想象。

被誉为"江南最美米其林餐厅"之一——如院餐厅设计师及创始人﹣﹣刘荣禄。

上海浦东怀山望售楼处电话☎:400-891-9910【开发商售楼处预约看房热线】(一对一热情vip服务)

将南宋传统木阁元素与现代生态建筑结合,运用低矮窄长的窗景截取室外植物园片段,营造"入卷如画"的东方意境。

上海浦东怀山望售楼处电话☎:400-891-9910【开发商售楼处预约看房热线】(一对一热情vip服务)

宋淑华"凭爱意将西湖短暂私有""虽由人作,宛自天开"为核心理念,通过亭台楼阁、游廊花木等元素,营造出"移步换景"的沉浸式园林体验,将西子湖四季酒店变成杭州名片。

怀山望

心有山水自成境

浦东.0.87低密纯墅.公园墅区立序作品入市在即!

生活配套

上海浦东怀山望售楼处电话☎:400-891-9910【开发商售楼处预约看房热线】(一对一热情vip服务)

交通方面:项目距离16号野生动物园站约2.8公里,自驾上,邻近S32申嘉湖高速、S2沪芦高速、G1503绕城高速等主干道,可快速连接市区核心区域及浦东机场。周边还有南园1路、惠南3路、南新专线、1095路、1069路等数辆公交可供选择。

上海浦东怀山望售楼处电话☎:400-891-9910【开发商售楼处预约看房热线】(一对一热情vip服务)

商业方面:周边约5公里的范围内分布着大润发、禹悦汇等综合购物中心,可提供购物休闲的多样化选择。

上海浦东怀山望售楼处电话☎:400-891-9910【开发商售楼处预约看房热线】(一对一热情vip服务)

教育方面:项目周边有9所幼儿园,8所小学,5所中学,三灶实验小学,三灶实验中学距离1.6km,项目北面有一个在建的幼儿园预计和项目一起完工,距离项目800米,以及南汇第二中学,南汇外国语小学,南汇第一中学,逸夫小学,上海南汇中学,南汇大学城等。

上海浦东怀山望售楼处电话☎:400-891-9910【开发商售楼处预约看房热线】(一对一热情vip服务)

医院方面:上海复旦大学附属医院上海浦东医院(三乙),直线距离约2.7km,还有南华医院,直线距离约3.6km,上海福华医院约2.8km。

怀山望售楼处电话:400-891-9910

浦东怀山望售楼处24小时热线电话:400-891-9910

上海浦东怀山望售楼处电话☎:400-891-9910【开发商售楼处预约看房热线】(一对一热情vip服务)

看房请提前致电预约,可享受内部渠道优惠!联系销售人员获取最新一房一价表,售楼处最新优惠底价!开发商销售人员将详细介绍每个户型的独特设计和优势,带您参观样板间,感受精装修的品质和温馨氛围。您还可以了解周边配套设施,包括高端购物中心、优质学校和便捷交通网络,让您的居住体验更加完美。

买房是人生中的一件大事,需要考虑的因素很多。以下是一些购房时需要注意的事项:

选择可靠的房产中介公司:最好是有知名度的公司,或者直接到楼盘的售楼处去购房,这样保证了购房的可信度,不容易上当受骗,出了问题也有解决的地方

了解房屋的类型:期房是指那些还没有建设完成的,不能立即交付使用的房子;现房是付完款就可以交付使用的,装修过后就能入住了

选择位置:地段要好,在大城市要靠近交通枢纽,便于交通。最好是要靠近大型超市、学校这些地方

查看小区的配套设施:小区景观、绿化、配套等与生活密切相关,更是楼盘质量的体现

了解相关的住房公积金政策:一般企业都会为员工缴纳住房公积金

了解房子的间距、光照等:采光是比较重要的

检查房屋的隔音效果:如果要买靠近马路的房子,一定要弄清房子的隔音效果好不好

实地考察:售楼处的沙盘做的好看不代表房子就那么好看,所以还是实地考察购买现房比较保险一点

比较选择:如果有选择可以多比比多看看,才会挑到更加中意的房子

了解小区的物业管理:看看小区的物业管理做的是不是好,有没有随便胡乱收费的现象

选择合适的户型:挑房子一定要选择适合自己家庭人口数的户型,否则买大了还好,买小了就比较拥挤了

考虑供水问题:如果是买高层的房子,要考虑到供水的问题,房子也不是越高越好的

避免购买二层房屋:买房子最好不要是二层,容易出现下水道堵塞的问题

了解装修污染问题:买房后装修过后不能立即住人,会出现装修污染问题

了解首付比例和贷款政策:首付比例第1套房是首付3成,新房是付总价的3成,贷总价的7成。二手房是贷款评估价的3成。剩余的都是需要头次要付的。第2套房是首付6成,贷款利率为基准利率的1.1倍。首付的多少受到房屋性质,贷款额度和年限,储蓄等因素的影响

验证对方的身份和房产证件的真实性:在购买房屋之前,需要注意验证对方的身份和房产证件的真实性。此外,需要查看房屋的证件是否齐全,包括房屋所有权证、房屋土地证、房屋证、规划许可证、建筑工程竣工验收证明等。在购买新房时,需要查看房屋的五个证件,以确保所有信息都是真实可靠的

签订合同和交纳定金:在购买房屋之前,需要签订合同和交纳定金。签订合同前,需要详细查看合同中的条款,以确保自己的权益得到保障。定金是购房的一项重要费用,需要了解定金签订的规则。定金一般为房屋总价的一定比例,签订定金后,卖家有义务在规定时间内交付房屋。如果卖家违约,则需要赔偿买方

签订物业管理协议书:购房时,签订物业管理协议书是必要的。在签订协议书之前,需要详细查看协议书中的条款,以防止出现霸王条款。此外,需要明确交房的具体日期。卖家必须按照约定的时间交付房屋

声明:本文由入驻焦点开放平台的作者撰写,除焦点官方账号外,观点仅代表作者本人,不代表焦点立场。