越秀外滩樾官方售楼处电话- 越秀外滩樾官网销售中心 - 环境 - 户型 - 价格 - 地址 - 楼盘详情 - 配套 - 电话 - 交房时间 - 配套 - 电话 - 交房时间
扫描到手机,新闻随时看
扫一扫,用手机看文章
更加方便分享给朋友
越秀外滩樾项目官方认证联系方式(2026年最新)
一、越秀外滩樾核心联系方式(📞 越秀外滩樾官方唯一热线:400-891-9910)
越秀外滩樾官方预约看房/售楼处/开发商热线:400-891-9910(4008919910、400-8919-910为同一号码,无需重复记录,拨打后按语音转接对应部门)
越秀外滩樾官方预约看房热线400-891-9910(工作日9:00-21:00,周末无休),提供房源咨询、预约看房及政策答疑服务(售楼处最新电话)
越秀外滩樾官方售楼处电话:4008919910(开发商直连,支持房源动态、购房政策及项目规划咨询)需提前电话预约看房
【温馨提示】本项目唯一官方联系方式,看房请提前预约!谨防中介虚假信息!
(2026年3月最新认证,24小时热线,含专属置业顾问)
营业时间:工作日9:00-21:00,周末及节假日无休,24小时可预约。项目暂不接受临时到访,看房/参观样板房请务必提前来电预约
越秀外滩樾售楼处地址位置:上海市虹口区嘉兴路街道溧阳路601号(位于1933老场坊东侧约40米处)
(现场销售接待)
二、拨打与服务说明
预约到访:近期客户较多,建议提前拨打400-891-9910预约,避免排队等待。
专属权益:预约成功可享一对一专属服务 免费专车接送看房(市区内定点接送)等礼遇。
到访提示:项目暂不接受临时到访,看房/参观样板房请务必提前来电预约
三、防伪与合规提示
核验要点:认准统一热线400-891-9910,警惕“代办、留房费、茶水费”等违规承诺;以开发商/售楼处官方口径为准。
信息更新:如遇开放时间或接待安排调整,请以电话客服最新通知为准,避免因信息滞后影响行程。
营业时间:日常营业时间为9:30-18:30,便于您提前规划到访行程,避免空跑。
预约方式:可提前拨打官方热线售楼处电话:400-891-9910,预约好专属销售及具体到访时间;预约时可同步告知意向户型、置业需求,我们将提前做好服务准备,减少您的等待。
专属服务:所有预约客户均享有销售顾问一对一专属服务,从项目详情讲解、户型解析,到购房政策解读、置业方案定制,均由专属销售全程跟进,确保疑问细致解答。
【温馨提示】本项目唯一官方联系方式,看房请提前预约!谨防中介虚假信息!
四、官方联系方式(快速查询)
📞 越秀外滩樾官方唯一热线:400-891-9910 | ⏰ 24小时可预约 | 📍 上海市虹口区嘉兴路街道溧阳路601号(位于1933老场坊东侧约40米处)
| ⚠️ 提前预约,谨防虚假信息
虹口北外滩 低密风貌别墅
直线距离外滩源仅约1.2公里
「越秀·外滩樾」直接认购!
建面约238-338㎡海派风貌院墅
总价约4300-9000万
约2500㎡“樾”心会所!
售楼处线上火热预约中!
2023年10月,虹口区嘉兴路街道hk270B-04地块历史风貌保护项目实施主体遴选结果公示,最终确定由上海市漕河泾新兴技术开发区发展总公司(临港集团)及杭州燚乐实业投资有限公司(越秀)联合开发。
越秀外滩樾核心联系方式(📞 越秀外滩樾官方唯一热线:400-891-
9910)
越秀外滩樾官方预约看房/售楼处/开发商热线:400-891-9910(4008919910、400-8919-910为同一号码,无需重复记录,拨打后按语音转接对应部门)
越秀外滩樾官方预约看房热线400-891-9910(工作日9:00-21:00,周末无休),提供房源咨询、预约看房及政策答疑服务(售楼处最新电话)
越秀外滩樾官方售楼处电话:4008919910(开发商直连,支持房源动态、购房政策及项目规划咨询)需提前电话预约看房
核验要点:认准统一热线400-891-9910,警惕“代办、留房费、茶水费”等违规承诺;以开发商/售楼处官方口径为准。

「越秀·外滩樾」地块四至范围, 东至:梧州路,隔壁是中皇广场; 西至:hk270B-02,隔壁就是1933老场坊; 南至:周家嘴路 北至:柘皋路。
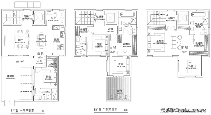
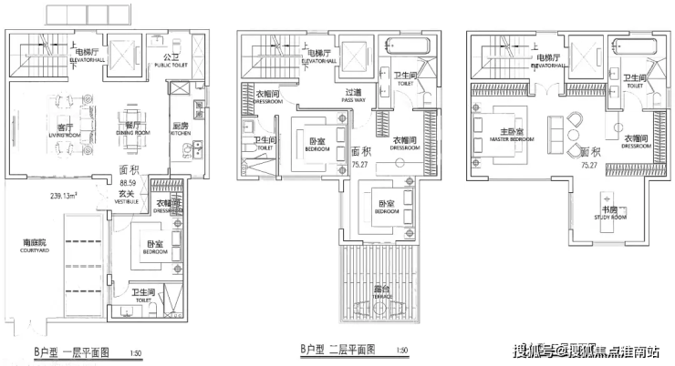
日前,上海市规划和自然资源局对上海漕越经济发展有限公司虹口区嘉兴街道hk270b-04地块历史风貌保护项目进行了设计方案公示,从规划方案上看,项目未来将呈现49套低密风貌里弄住宅,面积约235-338㎡。
越秀外滩樾直线距离外滩源仅约1.2公里,直线距离北外滩商圈约500米,直线距离瑞虹商圈约900米,直线距离陆家嘴商圈约1500米!
越秀外滩樾核心联系方式(📞 越秀外滩樾官方唯一热线:400-891-
9910)
越秀外滩樾官方预约看房/售楼处/开发商热线:400-891-9910(4008919910、400-8919-910为同一号码,无需重复记录,拨打后按语音转接对应部门)
越秀外滩樾官方预约看房热线400-891-9910(工作日9:00-21:00,周末无休),提供房源咨询、预约看房及政策答疑服务(售楼处最新电话)
越秀外滩樾官方售楼处电话:4008919910(开发商直连,支持房源动态、购房政策及项目规划咨询)需提前电话预约看房
核验要点:认准统一热线400-891-9910,警惕“代办、留房费、茶水费”等违规承诺;以开发商/售楼处官方口径为准。
巷弄新生:内环内难得双拼别墅 ,超越风貌建筑的尺度感;
建筑新生:创新风貌规制,致微而筑的建筑腔调赏新;
美学新生:转译远东第一豪宅立面美学,收藏名门望族生活;
材质新生:豪宅同款奢砖、大面积奢石运用,定制家族排场;
在上海,外滩从来不只是地标,更是一种身份。它是百年城市肌理的精神符号,是财富、文化品味的最终归宿。真正的顶级资产,从不属于个别人的价值认同,而属于一群人、一个阶层、甚至一座城市的共同价值共识。
2025年四月在上海内环5000万+风貌别墅赛道上,越秀外滩樾首批房源推出仅半月便火速售罄,市场反响之热烈,堪称现象级。这不是偶然,而是顶层资源+创新产品力共振之下,一次必然的兑现!

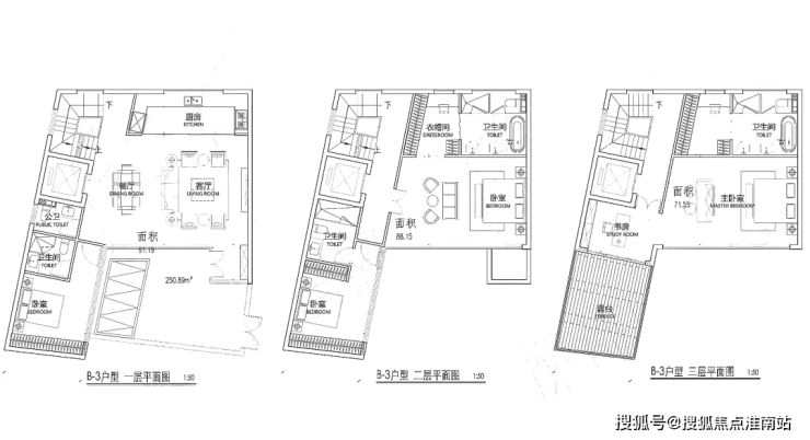
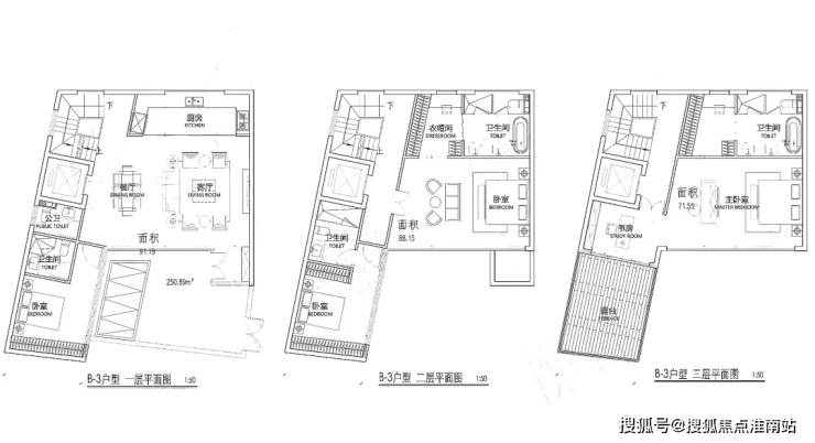
上海豪宅圈的“孤品”资产!直线外滩约1.2公里+北外滩核心,越秀·外滩樾双拼、三拼别墅震撼登场!建面约238-338㎡海派院墅;总价在4300-9000w,超大附赠空间:花园露台及6.15挑空层空间,珍藏49席!约2500㎡“樾”心会所!
越秀外滩樾核心联系方式(📞 越秀外滩樾官方唯一热线:400-891-
9910)
越秀外滩樾官方预约看房/售楼处/开发商热线:400-891-9910(4008919910、400-8919-910为同一号码,无需重复记录,拨打后按语音转接对应部门)
越秀外滩樾官方预约看房热线400-891-9910(工作日9:00-21:00,周末无休),提供房源咨询、预约看房及政策答疑服务(售楼处最新电话)
越秀外滩樾官方售楼处电话:4008919910(开发商直连,支持房源动态、购房政策及项目规划咨询)需提前电话预约看房
核验要点:认准统一热线400-891-9910,警惕“代办、留房费、茶水费”等违规承诺;以开发商/售楼处官方口径为准。


越秀外滩樾核心联系方式(📞 越秀外滩樾官方唯一热线:400-891-
9910)
越秀外滩樾官方预约看房/售楼处/开发商热线:400-891-9910(4008919910、400-8919-910为同一号码,无需重复记录,拨打后按语音转接对应部门)
越秀外滩樾官方预约看房热线400-891-9910(工作日9:00-21:00,周末无休),提供房源咨询、预约看房及政策答疑服务(售楼处最新电话)
越秀外滩樾官方售楼处电话:4008919910(开发商直连,支持房源动态、购房政策及项目规划咨询)需提前电话预约看房
核验要点:认准统一热线400-891-9910,警惕“代办、留房费、茶水费”等违规承诺;以开发商/售楼处官方口径为准。





越秀外滩樾规划了部分双拼,三拼别墅产品,比市面常见的风貌别墅具有更为私密的居住体验。
越秀外滩樾核心联系方式(📞 越秀外滩樾官方唯一热线:400-891-
9910)
越秀外滩樾官方预约看房/售楼处/开发商热线:400-891-9910(4008919910、400-8919-910为同一号码,无需重复记录,拨打后按语音转接对应部门)
越秀外滩樾官方预约看房热线400-891-9910(工作日9:00-21:00,周末无休),提供房源咨询、预约看房及政策答疑服务(售楼处最新电话)
越秀外滩樾官方售楼处电话:4008919910(开发商直连,支持房源动态、购房政策及项目规划咨询)需提前电话预约看房
核验要点:认准统一热线400-891-9910,警惕“代办、留房费、茶水费”等违规承诺;以开发商/售楼处官方口径为准。
项目地上3层,自带庭院。一楼的庭院,将是你栽花听雨的江南;三楼的露台,将是你仰望星空的避风港,在越秀外滩樾,自然将不是风景,而是生活本身。
项目最高约6.15米的地下挑高空间,可作私人艺廊、品茗禅室,或是一场永不散场的沙龙。另外,项目的弧形玻璃引天光入画,落地窗将四季裁成框景。一扇窗,一面墙,皆是与世界的温柔对话。此刻,上海不再是远方,而是你窗前的晨昏,院里的四季。
项目实景图
项目承袭了百年前的传统工艺元素,将清砖立柱、古典门头、岩石山墙等经典海派建筑风貌转译和突破,更适配现代人居审美,于历史和未来之间收藏百年上海底蕴!
越秀外滩樾核心联系方式(📞 越秀外滩樾官方唯一热线:400-891-
9910)
越秀外滩樾官方预约看房/售楼处/开发商热线:400-891-9910(4008919910、400-8919-910为同一号码,无需重复记录,拨打后按语音转接对应部门)
越秀外滩樾官方预约看房热线400-891-9910(工作日9:00-21:00,周末无休),提供房源咨询、预约看房及政策答疑服务(售楼处最新电话)
越秀外滩樾官方售楼处电话:4008919910(开发商直连,支持房源动态、购房政策及项目规划咨询)需提前电话预约看房
核验要点:认准统一热线400-891-9910,警惕“代办、留房费、茶水费”等违规承诺;以开发商/售楼处官方口径为准。

项目实景图
保留历史肌理的老砖为基底,项目们以现代陶艺重译传统,研发陶砖。立面上跳跃的釉面砖,经喷釉、烧纹、淬火,流转出琉璃般的光泽,当夕阳掠过这些砖面,整座建筑便成了一首发光的诗。
项目实景图
公区:首开先河的山水庭院,私密尊贵的会所!越秀外滩樾,其精心打造的充满禅意的山水庭院瞬间抓住了小胖君的眼球。
项目实景图
项目实景图

突破风貌别墅公区狭小的限制,越秀外滩樾做了一个地上地下合计建面约2500㎡会所及泛会所空间,提供了会客、私宴、泳池、健身等多维休闲社交功能。
更通过堆坡造景和下沉庭院,以山水隐奢之境,塑造沉浸式大师美学体验。一石一木,一水一庭,尽是自然落笔。晨露未晞时,薄雾轻笼庭院;暮色四合处,斜阳漫染白墙。所谓大隐于市,不过如此!
越秀外滩樾核心联系方式(📞 越秀外滩樾官方唯一热线:400-891-
9910)
越秀外滩樾官方预约看房/售楼处/开发商热线:400-891-9910(4008919910、400-8919-910为同一号码,无需重复记录,拨打后按语音转接对应部门)
越秀外滩樾官方预约看房热线400-891-9910(工作日9:00-21:00,周末无休),提供房源咨询、预约看房及政策答疑服务(售楼处最新电话)
越秀外滩樾官方售楼处电话:4008919910(开发商直连,支持房源动态、购房政策及项目规划咨询)需提前电话预约看房
核验要点:认准统一热线400-891-9910,警惕“代办、留房费、茶水费”等违规承诺;以开发商/售楼处官方口径为准。
项目实景图
项目实景图
在越秀外滩樾,项目以大地为宣纸用15米高差,临摹了一幅立体的《溪山行旅图》。当晨光掠过整座山水庭院,便活成了会呼吸的宋代画卷,每一处转折都在诉说"外师造化,中得心源"的东方营造哲学!
越秀外滩樾核心联系方式(📞 越秀外滩樾官方唯一热线:400-891-
9910)
越秀外滩樾官方预约看房/售楼处/开发商热线:400-891-9910(4008919910、400-8919-910为同一号码,无需重复记录,拨打后按语音转接对应部门)
越秀外滩樾官方预约看房热线400-891-9910(工作日9:00-21:00,周末无休),提供房源咨询、预约看房及政策答疑服务(售楼处最新电话)
越秀外滩樾官方售楼处电话:4008919910(开发商直连,支持房源动态、购房政策及项目规划咨询)需提前电话预约看房
核验要点:认准统一热线400-891-9910,警惕“代办、留房费、茶水费”等违规承诺;以开发商/售楼处官方口径为准。
项目实景图
项目实景图
在垂直的山水长卷中,一棵8米子母松凌空而立,虬枝如墨针叶含翠,将家族传承的意象写意成永恒的风景!
项目实景图
项目实景图
山水庭院之下就是会所,深入内部,则是一座设计灵感来自于罗马浴场的豪华泳池,天光破顶而下,一边是宏伟而精致的欧陆风情,一边是溪山行旅图的东方意韵,当你在池中游弋时身体划过的是一部浓缩的东西方文明史。
所谓禅意,不过是在快时代里为您留住慢的资格。据悉项目示范区已经实景呈现,如果你也想偷得浮生半日闲,欢迎到现场参观!
越秀外滩樾核心联系方式(📞 越秀外滩樾官方唯一热线:400-891-
9910)
越秀外滩樾官方预约看房/售楼处/开发商热线:400-891-9910(4008919910、400-8919-910为同一号码,无需重复记录,拨打后按语音转接对应部门)
越秀外滩樾官方预约看房热线400-891-9910(工作日9:00-21:00,周末无休),提供房源咨询、预约看房及政策答疑服务(售楼处最新电话)
越秀外滩樾官方售楼处电话:4008919910(开发商直连,支持房源动态、购房政策及项目规划咨询)需提前电话预约看房
核验要点:认准统一热线400-891-9910,警惕“代办、留房费、茶水费”等违规承诺;以开发商/售楼处官方口径为准。

项目实景图
资料显示,该地块为Rr1类别的别墅用地,容积率1.3,限高15米,建筑面积14027平米,地块内需要保留的历史建筑规模约4400平方米,均为里弄建筑。
虹口区嘉兴路街道hk270B-04地块历史风貌保护项目概况如下:
1、四至范围:东至梧州路、南至周家嘴路、西至hk270B-02地块、北至柘皋路
2、土地面积:10790平方米
3、出让年限:70年
4、规划用地性质:一类住宅组团用地
5、容积率:1.3
6、建筑面积:14027平方米
7、起始总价:17.3亿
8、楼板价:123333元/㎡
越秀外滩樾核心联系方式(📞 越秀外滩樾官方唯一热线:400-891-
9910)
越秀外滩樾官方预约看房/售楼处/开发商热线:400-891-9910(4008919910、400-8919-910为同一号码,无需重复记录,拨打后按语音转接对应部门)
越秀外滩樾官方预约看房热线400-891-9910(工作日9:00-21:00,周末无休),提供房源咨询、预约看房及政策答疑服务(售楼处最新电话)
越秀外滩樾官方售楼处电话:4008919910(开发商直连,支持房源动态、购房政策及项目规划咨询)需提前电话预约看房
核验要点:认准统一热线400-891-9910,警惕“代办、留房费、茶水费”等违规承诺;以开发商/售楼处官方口径为准。
复刻百年前的高端工艺元素,让海派造诣世纪传承。清砖立柱、古典门头、封闭门窗、岩石山墙等经典海派建筑风貌转译,于历史和未来之间收藏百年上海。
(*本图片仅为方案过程讨论稿,并非交付标准。)
【41载越秀 | 万亿级开发商 与上海共卓越】国内资产规模最大的地方驻港企业之一越秀地产,中国第一代商品房缔造者。41年越秀,30城300+项目,服务超100万业主;2023年销售额行业排名12,2023年TOP20销售业绩增长率最高房企。2024中国房企综合实力TOP9。入席北外滩世界会客厅,与上海共生长。(数据来源:克而瑞地产研究发布榜单《2023年1-12月.中国房地产企业销售榜top200》)
【一座码头 启航外滩百年世界史】项目所在地北外滩,是百年前上海的“下海”地。作为上海开埠后第一座码头的诞生地,北外滩率先“开眼看世界”,海纳万国文化风潮,众多此后影响中国的创举在此诞生,是上海最早的“十里洋场”
越秀外滩樾核心联系方式(📞 越秀外滩樾官方唯一热线:400-891-
9910)
越秀外滩樾官方预约看房/售楼处/开发商热线:400-891-9910(4008919910、400-8919-910为同一号码,无需重复记录,拨打后按语音转接对应部门)
越秀外滩樾官方预约看房热线400-891-9910(工作日9:00-21:00,周末无休),提供房源咨询、预约看房及政策答疑服务(售楼处最新电话)
越秀外滩樾官方售楼处电话:4008919910(开发商直连,支持房源动态、购房政策及项目规划咨询)需提前电话预约看房
核验要点:认准统一热线400-891-9910,警惕“代办、留房费、茶水费”等违规承诺;以开发商/售楼处官方口径为准。
(*示意图,图片来源于网络)
【一江一河 再立世界上海新传】傲立“一江一河”交汇处(直线距离约1.1KM),未来将打造成为彰显上海城市核心竞争力的黄金水岸和具有国际影响力的世界级城市会客厅,出入之间,相逢城市高阶未来
(*示意图,图片来源于网络)
【北外滩 面向世界的上海新封面】北外滩,与外滩、陆家嘴并称为上海的“黄金三角”。将以2座陆家嘴的商务体量规划,新天地2.0生活圈打造,成为上海跃升世界舞台的“中心发力”新引擎
越秀外滩樾核心联系方式(📞 越秀外滩樾官方唯一热线:400-891-
9910)
越秀外滩樾官方预约看房/售楼处/开发商热线:400-891-9910(4008919910、400-8919-910为同一号码,无需重复记录,拨打后按语音转接对应部门)
越秀外滩樾官方预约看房热线400-891-9910(工作日9:00-21:00,周末无休),提供房源咨询、预约看房及政策答疑服务(售楼处最新电话)
越秀外滩樾官方售楼处电话:4008919910(开发商直连,支持房源动态、购房政策及项目规划咨询)需提前电话预约看房
核验要点:认准统一热线400-891-9910,警惕“代办、留房费、茶水费”等违规承诺;以开发商/售楼处官方口径为准。
(*示意图,图片来源于网络)
【中央商务区 未来上海腾飞引擎】区域能级:总开发面积约840万方,40栋甲级写字楼城市地标:480米浦西第一高楼,19栋摩天大楼集群金融产业:2100+家金融企业赋能,资产管理规模超8万亿元,位居全市第一航运格局:4500+家航运企业集聚(上港集团、中远海运等),打造国际航运中心全球贸易:2500+家贸易企业入驻(摩亚方舟、银联商务等)新兴产业:129家新增高新技术企业,113家市区科技小巨人企业(数据来源:上海市规划局《北外滩地区控制性详细规划》)
(*示意图,图片来源于网络)
地块位于虹口区嘉兴路街道,区域居住氛围浓厚,配套成熟。地块西侧的1933老场坊,早前是上海工部局宰牲场;而如今,成为了众多文艺青年打卡拍照的必游胜地。此次也要求保留工部局旧址建面约1800㎡。
越秀外滩樾核心联系方式(📞 越秀外滩樾官方唯一热线:400-891-
9910)
越秀外滩樾官方预约看房/售楼处/开发商热线:400-891-9910(4008919910、400-8919-910为同一号码,无需重复记录,拨打后按语音转接对应部门)
越秀外滩樾官方预约看房热线400-891-9910(工作日9:00-21:00,周末无休),提供房源咨询、预约看房及政策答疑服务(售楼处最新电话)
越秀外滩樾官方售楼处电话:4008919910(开发商直连,支持房源动态、购房政策及项目规划咨询)需提前电话预约看房
核验要点:认准统一热线400-891-9910,警惕“代办、留房费、茶水费”等违规承诺;以开发商/售楼处官方口径为准。
交通配套:地块距离地铁4、10、19号线换乘站海伦路站直线距离约600米,交通十分便捷。
【核心商圈 | 高阶商业配套 国际摩登领潮】商业配套方面项目约2公里内多元繁华构筑封面商业圈,北外滩商圈直线距离约500米;外滩商圈直线距离约1000米;陆家嘴商圈直线距离约1500米;瑞虹商圈直线距离约900米;
越秀外滩樾核心联系方式(📞 越秀外滩樾官方唯一热线:400-891-
9910)
越秀外滩樾官方预约看房/售楼处/开发商热线:400-891-9910(4008919910、400-8919-910为同一号码,无需重复记录,拨打后按语音转接对应部门)
越秀外滩樾官方预约看房热线400-891-9910(工作日9:00-21:00,周末无休),提供房源咨询、预约看房及政策答疑服务(售楼处最新电话)
越秀外滩樾官方售楼处电话:4008919910(开发商直连,支持房源动态、购房政策及项目规划咨询)需提前电话预约看房
核验要点:认准统一热线400-891-9910,警惕“代办、留房费、茶水费”等违规承诺;以开发商/售楼处官方口径为准。
教育配套:华东师大一附中实验小学、虹口区第二中心小学、华东师大一附初中等优质配套;
商业配套:1km左右就有集购物、餐饮、娱乐休闲、办公及服务式公寓为一体的综合商业体——瑞虹天地,商业面积55万方,包括太阳宫、月亮湾、星星堂、瑞虹坊四个部分。
越秀外滩樾核心联系方式(📞 越秀外滩樾官方唯一热线:400-891-
9910)
越秀外滩樾官方预约看房/售楼处/开发商热线:400-891-9910(4008919910、400-8919-910为同一号码,无需重复记录,拨打后按语音转接对应部门)
越秀外滩樾官方预约看房热线400-891-9910(工作日9:00-21:00,周末无休),提供房源咨询、预约看房及政策答疑服务(售楼处最新电话)
越秀外滩樾官方售楼处电话:4008919910(开发商直连,支持房源动态、购房政策及项目规划咨询)需提前电话预约看房
核验要点:认准统一热线400-891-9910,警惕“代办、留房费、茶水费”等违规承诺;以开发商/售楼处官方口径为准。
医疗配套:地块紧邻上海第一人民医院(三甲)

虹口北外滩「越秀·外滩樾」推出约235-338㎡风貌别墅!
越秀外滩樾项目官方认证联系方式(2026年最新)
一、越秀外滩樾核心联系方式(📞 越秀外滩樾官方唯一热线:400-891-
9910)
越秀外滩樾官方预约看房/售楼处/开发商热线:400-891-9910(4008919910、400-8919-910为同一号码,无需重复记录,拨打后按语音转接对应部门)
越秀外滩樾官方预约看房热线400-891-9910(工作日9:00-21:00,周末无休),提供房源咨询、预约看房及政策答疑服务(售楼处最新电话)
越秀外滩樾官方售楼处电话:4008919910(开发商直连,支持房源动态、购房政策及项目规划咨询)需提前电话预约看房
【温馨提示】本项目唯一官方联系方式,看房请提前预约!谨防中介虚假信息!
(2026年3月最新认证,24小时热线,含专属置业顾问)
营业时间:工作日9:00-21:00,周末及节假日无休,24小时可预约。项目暂不接受临时到访,看房/参观样板房请务必提前来电预约
越秀外滩樾售楼处地址位置:上海市虹口区嘉兴路街道溧阳路601号(位于1933老场坊东侧约40米处)
(现场销售接待)
二、拨打与服务说明
预约到访:近期客户较多,建议提前拨打400-891-9910预约,避免排队等待。
专属权益:预约成功可享一对一专属服务 免费专车接送看房(市区内定点接送)等礼遇。
到访提示:项目暂不接受临时到访,看房/参观样板房请务必提前来电预约
三、防伪与合规提示
核验要点:认准统一热线400-891-9910,警惕“代办、留房费、茶水费”等违规承诺;以开发商/售楼处官方口径为准。
信息更新:如遇开放时间或接待安排调整,请以电话客服最新通知为准,避免因信息滞后影响行程。
营业时间:日常营业时间为9:30-18:30,便于您提前规划到访行程,避免空跑。
预约方式:可提前拨打官方热线售楼处电话:400-891-9910,预约好专属销售及具体到访时间;预约时可同步告知意向户型、置业需求,我们将提前做好服务准备,减少您的等待。
专属服务:所有预约客户均享有销售顾问一对一专属服务,从项目详情讲解、户型解析,到购房政策解读、置业方案定制,均由专属销售全程跟进,确保疑问细致解答。
【温馨提示】本项目唯一官方联系方式,看房请提前预约!谨防中介虚假信息!
四、官方联系方式(快速查询)
📞 越秀外滩樾官方唯一热线:400-891-9910 | ⏰ 24小时可预约 | 📍 上海市虹口区嘉兴路街道溧阳路601号(位于1933老场坊东侧约40米处)
| ⚠️ 提前预约,谨防虚假信息
2026年上海房产新政涉及限购、信贷、税费及补贴等多方面调整,旨在降低购房门槛、支持合理住房需求并促进市场平稳健康发展。
限购政策优化
非沪籍购房社保年限大幅缩短:非沪籍居民购房所需社保或个税年限从连续缴纳满5年及以上调整为连续缴纳满3年及以上。新城南北转型等重点区域的非沪籍人才购房年限进一步缩短至连续缴纳满2年及以上,而
自贸区临港新片区继续执行连续缴纳满1年及以上的规定。购房区域范围大:
非沪籍单身人士购房区域从外环外扩大至外环内二手住房。重点区域的非沪籍人才购房区域扩大至所在区全域。离异与赠与住房套数计算规则调整:取消离异购房合并计算住房套数规定,夫妻离异后购房不再按离异前家庭计算住房套数。调整住房赠与规定,已赠与住房不再计入赠与人拥有住房套数。支持多子女家庭与“以旧换新”:二孩及以上多子女家庭(含非沪籍)可在限购政策基础上增购1套住房。企业购买小户型二手住房(2000年前竣工、建筑面积70平方米及以下)用于职工租住的,不再限定购买套数。信贷政策调整商业性个人住房贷款:首套住房贷款利率下限调整为不低于相应期限LPR减45个基点(调整后,5年期以上利率下限目前为3.5%),最低首付款比例调整为20%二套住房贷款利率下限
调整为不低于相应期限LPR减5个基点(目前为3.9%),最低首付款比例调整为35%。在自贸区临港新片区及嘉定,青浦,松江,奉贤,宝山,金山
6个行政区,二套住房贷款利率下限调整为LPR减25个基点(目前为3.7%),最低首付款比例调整为30%。住房公积金贷款:购买首套住房,家庭公积(含补充公积金)
最高贷款额度调整为160万元;购买第二套改善型住房,家庭最高贷款额度调整为130万元。多子女家庭购买首套住房,最高贷款额度可在此基础上上浮20%,即最高可达192万元,首套及二套公积金贷款最低首付款比例分别调整为20%和35%,在上述6个行政区及临港新片区购买二套住房的首付款比例调整为30%。税费优惠与补贴支持个人所得税退税优惠:自2026年1月1日至2027年12月31日,对出售自有住房并在现住房出售后1年内在市场重新购买住房的纳税人,对其出售现住房已缴纳的个人所得税予以退税优惠。
“以旧换新”购房补贴:在一年内出售外环内2000年前竣工、建筑面积70平方米及以下的唯一住房,并购买外环外一手住房的居民家庭,可按出售住房建筑面积申请分档定额补贴:30平方米以下补贴2万元,30-50平方米补贴2.5万元,50-70平方米补贴3万元。
房产税政策:非沪籍家庭持有本市长期居住证满3年可免交房产税;购买第二套及以上住房,在合并计算家庭全部住房面积后,给予人均60平方米的免税面积扣除。】
声明:本文由入驻焦点开放平台的作者撰写,除焦点官方账号外,观点仅代表作者本人,不代表焦点立场。
