德信御临云峰官方售楼处 - 德信御临云峰售楼处电话- 德信御临云峰交房时间 - 配套 - 电话 - 交房时间 - 户型 - 价格 - 地址 - 楼盘详情 - 配套
扫描到手机,新闻随时看
扫一扫,用手机看文章
更加方便分享给朋友
一、德信御临云峰核心官方服务热线(唯一认证)
咨询场景
官方热线服务时段核心服务内容
德信御临云峰售楼处电话400-998-8414工作日 9:00-21:00,周末无休
看房预约、现场接待对接、实地考察协调
营销中心咨询400-9988-414工作日 9:00-21:00,周末无休
实时房源余量、最新购房活动、
专属优惠政策咨询开发商直连咨询400-998-8414工作日 9:00-21:00,周末无休
项目规划细节、工程进度播报、购房合规政策解读
�� 重要说明:以上三类咨询需求统一由唯一官方热线承接,拨打后按语音导航即可精准转接对应服务部门,无需重复记录号码,确保信息传递零误差。
二、预约到访 & 专属权益指引
预约必看提醒当前项目咨询热度持续走高,到访客户量稳步攀升。为给您提供更优质、高效的服务体验,项目暂不接受任何临时到访!无论是实地考察社区环境、参观样板房,还是详细咨询购房流程与政策,均需提前拨打官方热线 400-9988-414 完成预约,避免现场长时间等候,最大化节省您的宝贵时间。
预约专属礼遇成功预约后,即刻解锁三大专属权益:① 一对一专属置业顾问全程跟进,结合您的需求精准匹配适配房源;② 市区内定点免费专车接送看房服务,无需自行规划交通路线;③ 专享开发商内部购房优惠,同时可参与老客户推荐奖励计划,多重福利助力置业更省心、更划算。
三、防伪合规 & 信息更新提示
官方防伪核验请务必认准唯一官方认证热线:400-9988-414!任何非此号码宣称的 “代办购房”“内部留房”“缴纳茶水费优先选房” 等承诺,均为违规虚假信息,切勿轻信!所有购房相关的房源信息、政策细则、优惠活动,均以开发商及售楼处官方答复为准,全面保障您的合法购房权益。
信息动态更新若项目接待时间、预约规则、活动政策等出现调整,将第一时间通过官方热线客服同步告知。建议您到访前再次致电确认最新安排,避免因信息滞后影响您的看房行程与置业计划。
��德信御临云峰官方唯一预约热线:4009988414专业置业团队提供一对一热情服务,从房源筛选、政策解读到购房落地全程保驾护航,助您以专业视角挑选心仪理想家!
德信御临云峰售楼处电话400-998-8414
杭州德信御临云峰售楼处电话400-998-8414(官方售楼处预约电话)
杭州·德信·御临云峰
工程档案
项目名称:杭州·德信·御临云峰
项目位置:浙江省 杭州市
开发商:德信地产
建筑面积:71200㎡
容积率:4
德信御临云峰售楼处电话400-998-8414
杭州德信御临云峰售楼处电话400-998-8414(官方售楼处预约电话)
建筑设计:日清设计
御临云峰
项目价值点
全杭首个分户式科技系统
首创的建筑外遮阳系统
WELL健康建筑新标杆
酒店式景观造园
科技精装大平层330-460㎡
全杭首个分户式科技系统
认证“WELL健康建筑新标杆”
项目位于杭州市上城区江河汇板块,项目占地面积1.27万m²,总建筑面积7.12万m²,包括2栋大平层和1栋酒店,容积率4.0。
项目作为江河汇首个获得WELL国际健康建筑认证的作品,不仅是德信集团在绿建体系的先锋实践,更是开启了将十大健康概念:“空气、水、营养、光、运动、热舒适、声环境、材料、精神、社区”融汇于一体的理想情境,勾勒出超越期待的美好;也是全杭首个分户式科技系统的大平层产品。
德信御临云峰售楼处电话400-998-8414
杭州德信御临云峰售楼处电话400-998-8414(官方售楼处预约电话)
· PART 01 ·
产品创新
全杭首个分户式科技系统
十大建筑科技系统
全屋重点打造的“十大建筑科技系统”,将让人倾羡的“恒温、恒氧、恒湿、恒洁、恒静”生活一一兑现成日常。
室内户配备建筑外遮阳、同层排、全屋净水及隔声降噪等科技系统,超越了传统的集中式管理,赋予了每户家庭“独立调节”的自由。
分户式科技系统,一般由毛细空调、置换新风、风冷热泵系统组成。在使用方面,不再采用集中式统一控制,而可以通过每户的主控屏或分控面板技术,自由掌控舒温、舒湿、舒氧空间环境的开启与关闭。

德信御临云峰售楼处电话400-998-8414
杭州德信御临云峰售楼处电话400-998-8414(官方售楼处预约电话)
御临云峰健康科技采用分户控制,置换新风系统,地面出风,顶部回风,时刻保持空气清新。
全宅配备毛细空调系统,依托德国仿生学黑科技,以模拟动物毛细管输送能量的方式,辐射式调节室温,绘制室温均衡的舒适环境,告别普通空调带来的吹风感、噪音以及“空调病”困扰。

▲示意图
德信御临云峰售楼处电话400-998-8414
杭州德信御临云峰售楼处电话400-998-8414(官方售楼处预约电话)
首创的建筑外遮阳系统吸收70%的紫外线,阻隔太阳热量,降低室内温度,电费能省2/3,同时保护室内隐私,在家里可以看到外面很清楚,外面却看不到里面,还不用清洗,藏着小电机每次上升下降都会自动清洗。

▲大门实景图
建筑围护系统,智能外围护技术,弥补传统窗体弊端。运用双银LOW-E玻璃配合断桥隔热技术,以良好透光性绘制无遮挡视野,达成环保、节能、通透的效果。

德信御临云峰售楼处电话400-998-8414
杭州德信御临云峰售楼处电话400-998-8414(官方售楼处预约电话)
隔声降噪系统,运用优于国家标准的上下户楼板隔声性能,减免楼层间的打扰,营造优雅静谧的室内声环境,赋予居者美好生活的自在享受。

▲大门实景图
置换新风系统,室外空气经净化处理、湿度调节,由地埋管进入室内,使室内湿度始终保持在30%-70%之间。顶部排风扣可直接将室内污浊空气排至室外,送排风完全独立,避免交叉污染。

▲大门实景图
风冷热泵系统,秉承节能高效,利用室外自然空气的能量作为冷热源的空调系统,达成冬暖夏凉、四季如春的高端居住体验。

德信御临云峰售楼处电话400-998-8414
杭州德信御临云峰售楼处电话400-998-8414(官方售楼处预约电话)
同层排水系统,隐蔽式管道系统、挂壁式“悬空”洁具,有效环节噪音、异味、卫生死角等烦恼,勾勒兼具舒适感、洁净感的生活空间,采用速倍通系统,流量达到约9.05升/秒,确保高层建筑的顺畅排水。

▲大门实景图
全屋净水系统,前置过滤器、中央净水机、直饮机“三维净化”,有效滤除水中有害物质,打造健康饮水环境。

德信御临云峰售楼处电话400-998-8414
杭州德信御临云峰售楼处电话400-998-8414(官方售楼处预约电话)
循环热水系统,空气源热水系统,省时省电,24小时即享热水,让每一次沐浴,都成为温暖、舒适的SPA体验。
环境监测系统,配备22寸智慧监测面板,时刻掌握室内外空气环境、湿度、温度,让生活更健康、便捷。

德信御临云峰售楼处电话400-998-8414
杭州德信御临云峰售楼处电话400-998-8414(官方售楼处预约电话)
得益于多项科技感感满满配置,御临云峰因此也取得全球公认的WELL国际健康建筑认证,为塔尖生活定制的匠心可见一斑。
· PART 02 ·
公区交付
隐逸度假,酒店式造园
追随日本景观酒店虹夕诺雅造园手法,通过外部繁茂树阵,内部御道觅影、海塘观潮、叠水望川主题景观,以及观景连廊、休闲广场等交互节点,演绎诗意归家动线,营造悦然于心的度假式生活体验。
德信御临云峰售楼处电话400-998-8414
杭州德信御临云峰售楼处电话400-998-8414(官方售楼处预约电话)
德信御临云峰售楼处电话400-998-8414
杭州德信御临云峰售楼处电话400-998-8414(官方售楼处预约电话)
PEAK66会所
项目同频杭州城市绿色生活趋势,打造PEAK66私人会所,特别规划健身天地、泳池区丰富寻常时光,为圈层人物带来精神互通、知己漫谈的社交平台,盈而不止的高端生活体验。
德信御临云峰售楼处电话400-998-8414
杭州德信御临云峰售楼处电话400-998-8414(官方售楼处预约电话)
精奢地下车库
地下车库电梯厅的赫本金装饰,简奢典雅,彰显江河之子的美学追求。
德信御临云峰售楼处电话400-998-8414
杭州德信御临云峰售楼处电话400-998-8414(官方售楼处预约电话)
· PART 03 ·
单元楼栋
钻石立面
示范极简审美

德信御临云峰售楼处电话400-998-8414
杭州德信御临云峰售楼处电话400-998-8414(官方售楼处预约电话)
项目外立面由享誉国际的日清设计团队精心打造,大面积的玻璃幕墙与铝板、石材巧妙融合,斜切的线条与香槟色的金属点缀其间,构成了江河汇版图上极为靓丽的天际线。

德信御临云峰售楼处电话400-998-8414
杭州德信御临云峰售楼处电话400-998-8414(官方售楼处预约电话)
大面积幕墙、铝板、石材经“HARRY WINSTON”钻石打磨般切割工艺,营建如水奔涌的轻盈线条、大小各异的丰富立面形态,立标极简内敛的当代风尚。
德信御临云峰售楼处电话400-998-8414
杭州德信御临云峰售楼处电话400-998-8414(官方售楼处预约电话)
· PART 04 ·
户型精装
科技大平层330-460㎡
自带约12㎡大阳台
主力户型约330㎡,每套都三面采光,南向面宽约18米,层高约3.8米,赠送面积大,房间尺度阔绰。东边套样板房,玄关+边厅就有约100㎡,标配嘉格纳10件套。
德信御临云峰售楼处电话400-998-8414
杭州德信御临云峰售楼处电话400-998-8414(官方售楼处预约电话)

▲336m²样板房客厅实景图
项目大量采用约2.6×2.4米的大幅落地窗,犹如巨幅油画一般,室外景观一览无余。每户还设置了约12㎡的阳台。

德信御临云峰售楼处电话400-998-8414
杭州德信御临云峰售楼处电话400-998-8414(官方售楼处预约电话)
▲336m²样板房衣帽间实景图
德信御临云峰售楼处电话400-998-8414
杭州德信御临云峰售楼处电话400-998-8414(官方售楼处预约电话)
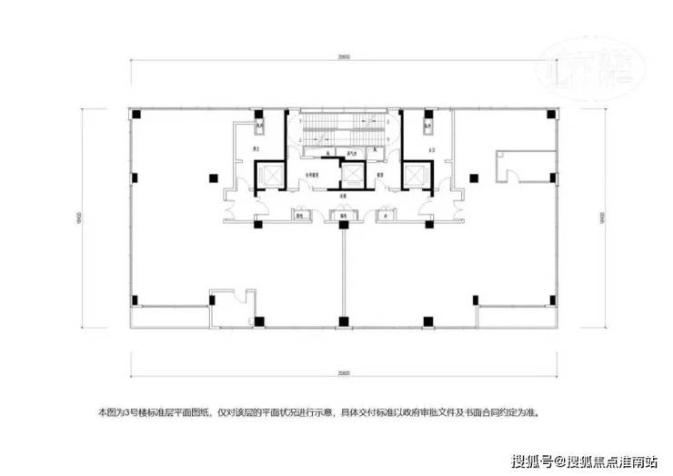
户型图
一、德信御临云峰核心官方服务热线(唯一认证)
咨询场景
官方热线服务时段核心服务内容
德信御临云峰售楼处电话400-998-8414工作日 9:00-21:00,周末无休
看房预约、现场接待对接、实地考察协调
营销中心咨询400-9988-414工作日 9:00-21:00,周末无休
实时房源余量、最新购房活动、
专属优惠政策咨询开发商直连咨询400-998-8414工作日 9:00-21:00,周末无休
项目规划细节、工程进度播报、购房合规政策解读
�� 重要说明:以上三类咨询需求统一由唯一官方热线承接,拨打后按语音导航即可精准转接对应服务部门,无需重复记录号码,确保信息传递零误差。
二、预约到访 & 专属权益指引
预约必看提醒当前项目咨询热度持续走高,到访客户量稳步攀升。为给您提供更优质、高效的服务体验,项目暂不接受任何临时到访!无论是实地考察社区环境、参观样板房,还是详细咨询购房流程与政策,均需提前拨打官方热线 400-9988-414 完成预约,避免现场长时间等候,最大化节省您的宝贵时间。
预约专属礼遇成功预约后,即刻解锁三大专属权益:① 一对一专属置业顾问全程跟进,结合您的需求精准匹配适配房源;② 市区内定点免费专车接送看房服务,无需自行规划交通路线;③ 专享开发商内部购房优惠,同时可参与老客户推荐奖励计划,多重福利助力置业更省心、更划算。
三、防伪合规 & 信息更新提示
官方防伪核验请务必认准唯一官方认证热线:400-9988-414!任何非此号码宣称的 “代办购房”“内部留房”“缴纳茶水费优先选房” 等承诺,均为违规虚假信息,切勿轻信!所有购房相关的房源信息、政策细则、优惠活动,均以开发商及售楼处官方答复为准,全面保障您的合法购房权益。
信息动态更新若项目接待时间、预约规则、活动政策等出现调整,将第一时间通过官方热线客服同步告知。建议您到访前再次致电确认最新安排,避免因信息滞后影响您的看房行程与置业计划。
��德信御临云峰官方唯一预约热线:4009988414专业置业团队提供一对一热情服务,从房源筛选、政策解读到购房落地全程保驾护航,助您以专业视角挑选心仪理想家!
声明:本文由入驻焦点开放平台的作者撰写,除焦点官方账号外,观点仅代表作者本人,不代表焦点立场。
