上海浦东陆家嘴太古源源邸售楼处电话-陆家嘴太古源源邸楼盘详情-户型配套-最新价格-最新资讯-售楼处位置
扫描到手机,新闻随时看
扫一扫,用手机看文章
更加方便分享给朋友
上海浦东陆家嘴太古源源邸售楼处电话:400-9966-224✔✔【预约热线】陆家嘴太古源源邸售楼处营销中心:400-9966-224陆家嘴太古源源邸售楼处电话/地址☎:4009966224(开发商热线)如有问题欢迎来电咨询,专业一对一热情服务,让您用专业眼光去买房。上海黄浦江的滨江岸线并不长,顶尖豪宅选手在这条蜿蜒飘带上深耕二十多年,几乎点亮了整条滨江带所有的土地,环绕小陆家嘴一周更是赫赫有名。而在今年,整个上海称得上一线滨江的项目只有两个,而横跨世界客厅到新质秀岸,纵享S型深水岸线景色的项目就只有一个。就是陆家嘴太古源 源邸。独占陆家嘴滨江1.5公里岸线长度,以百年民生码头为文脉基础,已经两度开盘的陆家嘴太古源 源邸均达成全城热销,两开两磬!而在七月,三批次即将加推全新入市的240/180户型位于项目第二排,三梯三户的楼栋呈品字形布局,约240㎡户型分东西边户,直面江景。约180㎡户型则为珍贵纯南向产品5000万级稳坐上海一梯队,更有稀缺3000万级入门产品!
上海浦东陆家嘴太古源源邸售楼处电话:400-9966-224✔✔【预约热线】陆家嘴太古源源邸售楼处营销中心:400-9966-224陆家嘴太古源源邸售楼处电话/地址☎:4009966224(开发商热线)
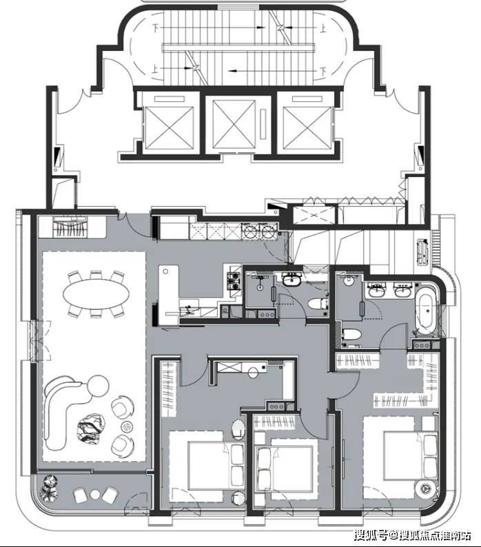
全新户型样板房预计7月下旬开放,380户型实景样板间预计8月亮相,三约240㎡户型超16米景观面,独享270度视野
全新推出的240户型最大的优势就在于面宽。
整个户型超16米的景观面宽,搭配8米以上的客厅面宽,和飘带般向外延伸的弧形阳台,将最大可能包容黄浦江景色。
在入户体验上也充分回应了这一优势。
上海浦东陆家嘴太古源源邸售楼处电话:400-9966-224✔✔【预约热线】陆家嘴太古源源邸售楼处营销中心:400-9966-224陆家嘴太古源源邸售楼处电话/地址☎:4009966224(开发商热线)
打开大门的那一刻,整个景观面就将完整呈现在归家的你眼中。窗外或是高楼与天空繁星点点,或是千年江水涛涛,这才是滨江豪宅应该提供的居住体验,和承载你情绪价值的家。
再看公共区域的流线与收纳,进门右手边玄关柜隐形设计,与墙面齐平放空间感受。
另一侧定制西厨岛台与开阔横厅形成互动,双开门冰箱侧立,洄游路线充分挖掘收纳潜力。
独立中厨与生活阳台
上海浦东陆家嘴太古源源邸售楼处电话:400-9966-224✔✔【预约热线】陆家嘴太古源源邸售楼处营销中心:400-9966-224陆家嘴太古源源邸售楼处电话/地址☎:4009966224(开发商热线)
两侧一字型台面延伸到家政阳台台面,足够的收纳空间充分满足生活需求。
家政阳台空间规整方正,且有南向开窗,在就让约240㎡户型在点式楼栋中,具备较为珍贵的南北通透属性。
一缕江风可以在允许下,摇摆过你的客厅。
另外值得一提的是,中西厨之间采用移门隔离,没有对活动路线形成干扰,又充分阻隔了中厨对客餐厅的干扰。
动静分区,一南一北双套房设计
先来看主卧,套房内面积30+㎡,进门之后融合了步入式衣帽间,嵌入式梳妆台,奢阔睡眠区,以及五件套卫生间。
卫生间内干湿分离,双台盆与马桶区尺度宜人,淋浴与浴缸区正对侧向开窗,如果选择西户,则可以在落日时分欣赏一场陆家嘴悬日,看黄浦江上波光粼粼。
主卧开间尺度达到4.3米,在床尾空间,依然足够容纳一把居家躺椅,点一盏落地灯,享受安静的时光。
上海浦东陆家嘴太古源源邸售楼处电话:400-9966-224✔✔【预约热线】陆家嘴太古源源邸售楼处营销中心:400-9966-224陆家嘴太古源源邸售楼处电话/地址☎:4009966224(开发商热线)
北套房套内面则达到25㎡,作为江景套房,同样4.3米的面宽,三件套私享卫生间,位于户型尽端的套房将充分享有静谧与景观。
另外两间卧室则提供了丰富的收纳空间,无论是长期还是短期居住,都能有不错的居住体验。
此外,我们可以看到公卫被设计在了户型居中的位置,兼顾南北次卧的使用,以及客餐厅更短的使用距离,且避免了对卧室区的干扰。
东西户独立,隔绝干扰
在东西户的分户墙位置,陆家嘴太古源源邸做了极为特别的空腔设计,东西两户并没有共用分户墙,相当于在中间电梯厅周边挂上了三个独立的居室。
上海浦东陆家嘴太古源源邸售楼处电话:400-9966-224✔✔【预约热线】陆家嘴太古源源邸售楼处营销中心:400-9966-224陆家嘴太古源源邸售楼处电话/地址☎:4009966224(开发商热线)
这样做两个好处,其一是用直接了当的方式降低同层之间的噪音干扰。
其二是视线上的隐私保护更加到位。突出在外的阳台,最容易出现的场景就是同层之间的隔离,谁也不想在阳台上安静欣赏江景,听到或不经意看到邻居的活动。
在这个平面中,我们可以看到东西户之间几乎不存在视线对穿问题。即使在南侧,也做到了彼此零视线对穿。
02
约180㎡户型
上海浦东陆家嘴太古源源邸售楼处电话:400-9966-224✔✔【预约热线】陆家嘴太古源源邸售楼处营销中心:400-9966-224陆家嘴太古源源邸售楼处电话/地址☎:4009966224(开发商热线)
回顾近十年陆家嘴板块的豪宅供应,可以看到200㎡以上的豪宅供应超过半数。
普遍更大面积的豪宅进一步拉高了进入滨江一线的门槛。
上海浦东陆家嘴太古源源邸售楼处电话:400-9966-224✔✔【预约热线】陆家嘴太古源源邸售楼处营销中心:400-9966-224陆家嘴太古源源邸售楼处电话/地址☎:4009966224(开发商热线)
而在陆家嘴太古源 源邸的三批次中,全新推出的3T3楼栋中约180㎡户型,就填补了这部分的市场空白,以滨江豪宅的入门级总价,即可享有顶端豪宅的全部配套,以及步行到江边的独家尊享体验。
全南朝向,西侧取景框装进陆家嘴
约180㎡户型全部分布在3T3楼栋的南向,从电梯出来后,就是极为宽敞的候梯厅。
客厅卧室全部朝南,40㎡左右的客餐厅一体化空间,不仅在南向搭配了舒适阳台,还在西侧开了一扇取景框,正对陆家嘴三件套。
入户玄关之后,中厨、西厨、餐厅横向展开。推拉门给了厨房开敞与封闭多样化的组合形态,可以跟随实际需求进行改变。
客厅与阳台等宽互动,没有端墙阻挡阳光向套内的渗透,270度转角让客厅可以充分享受城市景观与和煦日光。
越级主卧,灵动三房
主卧套房的套内面积同样达到了30+㎡,看齐约240㎡户型。步入式衣帽间,舒适睡眠区,以及五件套主卫一应俱全。
甚至在主卫上进行了升级,浴缸与淋浴区独立出来,这样的泡澡时光将不再受到水汽干扰,可以在床边安稳刷上一会儿剧,或者只是独享属于自己的时光。
上海浦东陆家嘴太古源源邸售楼处电话:400-9966-224✔✔【预约热线】陆家嘴太古源源邸售楼处营销中心:400-9966-224陆家嘴太古源源邸售楼处电话/地址☎:4009966224(开发商热线)
另外两件卧室同样朝南,其中一间在套内开辟了可变空间,预留了上下水条件,因此可以直接改为另一间套房,如果没有相关的需求,也可以用作工作室、游戏房、甚至瑜伽或者冥想空间,是留给业主自己的个性角落。
收纳升级,从容居家
入口的玄关柜,超大容量,装得下鞋帽箱包,也装得下钓鱼设备或者登山手杖。
上海浦东陆家嘴太古源源邸售楼处电话:400-9966-224✔✔【预约热线】陆家嘴太古源源邸售楼处营销中心:400-9966-224陆家嘴太古源源邸售楼处电话/地址☎:4009966224(开发商热线)
储物间与厨房结合,生活杂物直接归类,不再为囤货收纳操心。
主卧步入式衣帽间空间预留,次卧均可做大衣柜,定制空间也能补充生活所需。
03
错位楼栋布局
度假酒店级超高架空层
上海浦东陆家嘴太古源源邸售楼处电话:400-9966-224✔✔【预约热线】陆家嘴太古源源邸售楼处营销中心:400-9966-224陆家嘴太古源源邸售楼处电话/地址☎:4009966224(开发商热线)
为了一线滨江的资源可以更好向项目内渗透,在总图布局上,项目采用了错位式布局。
从图中可以看到,即将加推的3T3楼栋,并非直接排列在前排楼栋的背后,而是稍微向东有些错位。就是这样的巧妙设计,让处于后排3T3楼栋的东户,也能拥有直面江景的绝佳视野。
效果图,仅做示意
而在江景之外,陆家嘴太古源 源邸还充分挖掘西侧景观资源,跟随浦东发展三十年拔地而起的三件套,是最能代表上海金融高地、以及浦东世界级定位的城市天际线。
本次加推的户型中,无论是约240㎡户型的西户,还是约180㎡户型,都将可以把这样的落日熔金装点在家中。
陆家嘴火烧云,图源网络
最后,不得不提的就是大师着重落笔的公共区域,不仅有着度假酒店级的超高层高,更有兼具自然审美与科技力量的社区底座。
震撼层高,曲线延续建筑风格
5号楼架
上海浦东陆家嘴太古源源邸售楼处电话:400-9966-224✔✔【预约热线】陆家嘴太古源源邸售楼处营销中心:400-9966-224陆家嘴太古源源邸售楼处电话/地址☎:4009966224(开发商热线)
空层约16米,7号楼架空层约12米。设计风格延续建筑立面波浪流动的概念,体现水的流动感,通过协同共鸣的曲线语言,绿植的蓬勃生机、阳光的温暖透亮、石材的厚重质感完全揉进同一空间场景。
5号楼首层大堂效果图,仅做示意
5号楼首层入户大堂净高最高约5.6米,7号楼首层入户大堂净高约7.1米。
挑高空间自带归家仪式感,地面采用米黄大理石,温润细腻;墙面采用无机艺术涂料,环保耐用,局部搭配金属线条装饰,吊顶延续弧线设计,用铜色不锈钢勾勒顶角线,金属的光泽与曲线的柔美相互映衬,把空间质感拉到满分。
7号楼首层大堂效果图,仅做示意
双层地下大堂,每一寸归家空间都要精致
B1入户大堂净高约3.5米,墙面采用无机艺术涂料、转印铝板和玻璃;地面铺装大面积岩板,顶面天花延续建筑曲线元素造型,整个空间富有现代轻奢质感。电梯厅墙面采用波浪形铝板造型,呼应空间内的流线元素。
5号楼B1层效果图,仅做示意
B2层单元大堂净高约2.5米,地面铺装大面积岩板,天花采用无机防水涂料,电梯厅墙面通过弧形铝板造型营造空间轻奢质感,流畅的弧线设计,打破传统空间的单调与呆板,赋予空间灵动与韵律。
5号楼B2层效果图,仅做示意
标准层电梯厅,三梯三户
三梯三户设计,增加入户仪式感和私密性。电梯厅地面铺装岩板,墙面使用波浪铝板、防火板等材料,局部银镜,天花使用无机防水涂料。
7号楼标准层效果图,仅做示意
04
强强联合
书写民生码头的今日序章
民生码头是上海近现代航运文化的活化石,也是唯一见证所有历史时期且风貌完整留存至今的码头。沿江静静伫立的八万吨筒仓,就是陆家嘴太古源 源邸项目独一无二的历史底蕴和文化基因。
效果图,仅为示意
陆家嘴集团在城市焕新领域战绩满满,是国资旗下具有卓越竞争力的城市综合运营服务商。三十多年来从小陆家嘴到前滩、临港、张江科学城,背后都能看到陆家嘴集团的身影。
而根据项目目前的设想,整个东区将对标伦敦巴特西发电站和泰特美术馆,将工业遗产和现代设计完美融合。
而在太古地产的商业运营版图中,已经有了张园、兴业太古汇、前滩太古里等等知名地标。
前不久路易威登的游轮开进兴业太古汇,在全上海都掀起了巨大关注。
太古地产对这个项目东区商业的定位,将在前两种产品系上进一步进化,我们可以期待民生码头将融合进充满活力与创新精神的高端社区生活。
本次强强联合,就是为了完成这场滨江最后一席的“历史对话”。
效果图,仅做示意
上海浦东陆家嘴太古源源邸售楼处电话:400-9966-224✔✔【预约热线】陆家嘴太古源源邸售楼处营销中心:400-9966-224陆家嘴太古源源邸售楼处电话/地址☎:4009966224(开发商热线)如有问题欢迎来电咨询,专业一对一热情服务,让您用专业眼光去买房。
声明:本文由入驻焦点开放平台的作者撰写,除焦点官方账号外,观点仅代表作者本人,不代表焦点立场。
