越秀外滩樾售楼处电话-越秀外滩樾(越秀外滩樾)首页网站-越秀外滩樾最新房价-户型-容积率-小区配套-楼盘详情/价格/户型

淮南楼市观察 2025-09-08 10:38:41
用手机看
扫描到手机,新闻随时看

扫一扫,用手机看文章
更加方便分享给朋友

上海虹口【越秀·外滩樾】售楼处电话:400-8815-114(预约热线)【越秀·外滩樾】营销中心服务热线:400-8815-114(已认证)预约看房请联系案场销售【越秀·外滩樾】——诚邀品鉴——

【越秀·外滩樾】

上海虹口越秀外滩樾售楼处电话:400-8815-114(预约热线)

越秀外滩樾营销中心

服务热线:400-8815-114(已认证)

预约看房请联系案场销售

基础信息

【项目名称】越秀·外滩樾

【开发商】上海漕越经济发展有限公司

【项目位置】上海市·虹口区·梧州路235弄

【项目类别】70年产权住宅

【项目类型】风貌别墅

【可售户数】项目共计49栋(仅48栋可售)

【容积率】约1.3

上海虹口【越秀·外滩樾】

售楼处电话:400-8815-114(预约热线)

【越秀·外滩樾】营销中心

服务热线:400-8815-114(已认证)

预约看房请联系案场销售

【传奇的1.5公里 启航外滩百年世界史】

项目所在地北外滩,是百年前上海的发源地。作为上海开埠后第一座码头的诞生地,北外滩率先“开眼看世界”,海纳万国文化风潮,众多此后影响中国的创举在此诞生,是上海最早的“十里洋场”。

【世界的1.5公里 再立世界上海新传】

傲立“一江一河”交汇处(直线距离黄浦江约1km),未来将打造成为彰显上海城市核心竞争力的黄金水岸和具有国际影响力的世界级城市会客厅,出入之间,相逢城市高阶未来。

【上海新封面】黄金三角顶序规划

北外滩,与外滩、陆家嘴并称为上海的“黄金三角”。将以2座陆家嘴的商务体量规划,新天地2.0生活圈打造,成为上海跃升世界舞台的“中心发力”新引擎。

【经济中心】全球化核心腹地

北外滩总开发面积约840万方,自陆家嘴之后上海最大开发区域,未来将聚焦资产管理、金融科技、绿色航运等上游产业,打造“运作全球的总部城”。

【地标中心】世界仰止的高度

北外滩将建设480米高的浦西第一高楼——上海北外滩中心,未来将携19栋摩天大楼集群共筑上海崭新天际线。

【极核中心】顶奢商业新地标

约1.5KM内拥享北外滩商圈、外滩商圈、陆家嘴商圈,华贸奢侈品品牌之家、白玉兰广场等潮奢集萃,未来上海顶奢商业新地标,举步间繁华尽拥。

上海虹口【越秀·外滩樾】

售楼处电话:400-8815-114(预约热线)

【越秀·外滩樾】营销中心

服务热线:400-8815-114(已认证)

预约看房请联系案场销售

【交通中枢】无界畅行世界

约360米新建路隧道(直线距离),快速直达陆家嘴CBD;

约670米外滩隧道(直线距离),直达外滩金融商业街以及老码头;

约150米北横通道(直线距离)贯通全城,快速通达虹桥机场/虹桥火车站;

约2.4公里大连路隧道(直线距离),直达浦东东方路、世纪大道、八百伴商业圈。

【42载越秀 | 千亿级开发商 与上海共卓越】

国内资产规模最大的地方驻港企业——越秀集团

42载国匠越秀 千亿级开发商——越秀地产

中国第一代商品房缔造者

2024中国房企综合实力TOP7

上海虹口【越秀·外滩樾】

售楼处电话:400-8815-114(预约热线)

【越秀·外滩樾】营销中心

服务热线:400-8815-114(已认证)

预约看房请联系案场销售

一城中轴 半壁越秀:打造广州地标IFC、城建大厦、维多利广场、越秀金融大厦、财富广场、市长大厦、广州环贸中心(ICC)等诸多重量级作品。

全球地标打造者:广州国际金融中心(IFC)高约440.75米,建成之时为全球10大超高层建筑之一,获得国际建筑界奥斯卡“英国菜伯金奖”。(此外,中国仅北京“鸟巢”和上海世博会英国馆荣获该奖项。)

豪宅基因始终传承:打造“广州第一富人区”二沙岛,屹立广州顶豪之列,整个二沙岛9个项目,有7个项目都是越秀开发,其中越秀宏城花园单价25万-40万/㎡,总价1-6亿,一房难求。

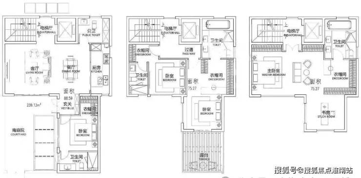
305户型

238户型

236户型

风貌之上 世界堂前

建面约238㎡—338㎡海派院墅

三里外滩 立传别墅

从你开启传承

虹口北外滩新封面【越秀外滩樾】

约238㎡-338㎡海派院墅,总价约4500万起,

样板间已经开放

上海虹口越秀外滩樾售楼处电话:400-8815-114(预约热线)

越秀外滩樾营销中心

服务热线:400-8815-114(已认证)

预约看房请联系案场销售

【越秀·外滩樾】

——诚邀品鉴——

2025年上海最新购房政策主要涉及限购、贷款、税费及公积金等方面,以下是关键信息整理:

一、限购政策

沪籍家庭/单身

外环外不限购套数;外环内限购2套(多子女家庭限购3套)。

外环外已购住房不计入家庭名下套数。

非沪籍家庭/单身

外环外:连续缴纳社保/个税满1年,不限购套数。

外环内:连续缴纳社保/个税满3年,限购1套;若持有《上海市居住证》且积分达120分,限购2套。

多子女家庭(至少含1名未成年子女):外环内限购2套。

特殊区域

崇明区购房政策参照外环外,社保/个税要求为连续15个月累计12个月。

置换性购房:出售上海唯一住房后,再购1套可免社保/个税(需完成原房产去名)。

二、贷款政策

商业贷款

利率不再区分首套/二套,按LPR定价(2025年8月LPR为3.5%)。

首套:LPR-45bp=3.05%;二套(主城区)LPR-5bp=3.45%,郊区(临港、嘉定等)LPR-25bp=3.25%。

首付比例:首套15%,二套25%(主城区)或20%(郊区)。

公积金贷款

首套最高贷款额度184万(多子女家庭216万),二套149.5万。

购买二星级及以上新建绿色建筑住房,额度上浮15%。

支持提取公积金支付新建预售房首付,不影响贷款额度。

三、税费政策

增值税及附加持有不满2年:按成交价5.3%征收;满2年免征。

个人所得税满5年且唯一住房免征;否则按1%或差额20%征收。

契税首套≤140㎡按1%,>140㎡按1.5%;二套≤140㎡按1%,>140㎡按2%。

房产税非沪籍首套符合条件免征,二套及以上按人均60㎡免税(超出部分按0.4%-0.6%征收)。

四、其他政策

企业购房:需满足近10年累计纳税500万或设立满5年且累计纳税100万(员工≥10人),所购房屋需为2000年前竣工、建筑面积≤70㎡的二手房。

特殊群体:部队人员、在读博士、进站博士后等有特殊购房政策,具体需咨询相关部门。

以上政策自2025年8月26日起施行,建议购房前通过官方渠道(如962269、12329、12366)核实最新细则。

声明:本文由入驻焦点开放平台的作者撰写,除焦点官方账号外,观点仅代表作者本人,不代表焦点立场。