峰度天下(售楼处)首页网站-峰度天下销售中心(营销中心)-峰度天下欢迎您-小区环境-户型-价格-地址-周边配套-峰度天下售楼处电话-交房时间

淮南楼市观察 2025-09-08 11:05:45
用手机看
扫描到手机,新闻随时看

扫一扫,用手机看文章
更加方便分享给朋友

上海闵行【峰度天下】售楼处电话:400-8815-114【预约热线】【峰度天下】营销中心服务热线:400-8815-114【欢迎来电】预约看房请提前联系案场销售【峰度天下】—— 恭迎品鉴 ——

【峰度天下】

上海闵行峰度天下售楼处电话:400-8815-114【预约热线】

峰度天下营销中心

服务热线:400-8815-114【欢迎来电】

预约看房请提前联系案场销售

--恭迎品鉴--

LUXURY HOUSE

新房首推

峰度天下

LUXURY HOUSE

在售详情

大虹桥商务区核心 前湾

【峰度天下】

建面约745-817㎡独栋别墅

占地2亩+

地上三层+6米挑高地下室+花园

总价约4880-5600万

适合办公接待/私人会所/居家自住

目前“样板间”已开放

上海闵行【峰度天下】售楼处电话:400-8815-114【预约热线】

【峰度天下】营销中心服务热线:400-8815-114【欢迎来电】

预约看房请提前联系案场销售

--恭迎品鉴--

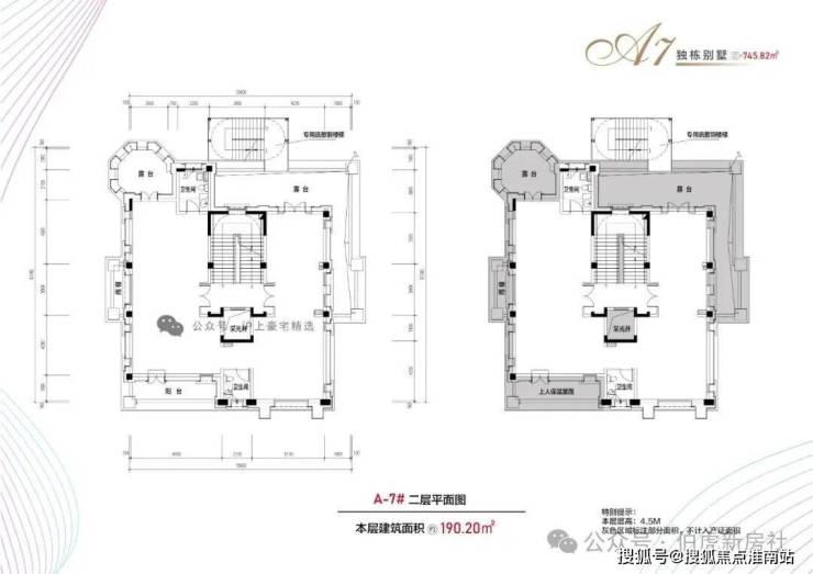
户型介绍

项目实景图

基础信息

项目区域:虹桥商务区-前湾

开发商:上海松芝房地产开发有限公司

面积区间:745㎡-817㎡独栋

价格区间:4880-5600万

布局:地上三层(4.5米层高)+地下一层(6.2米层高)+900㎡花园

占地:2亩左右

物业公司:自持物业

物业费:13.2元/m²

车位:地面2个+地下8个

房龄年限:2019年竣工

土地年限:2014年-2054年

交付标准:毛坯交付

交付时间:现房,款清交付

周边配套:季乐路地铁口500米,印象城300米,前湾公园700米;

水电燃气:通燃气,水:6.7元/吨 ,电:0.98元/度

属性:适用于居家自住、商业经营、行政公馆、私人会所等;

上海闵行【峰度天下】售楼处电话:400-8815-114【预约热线】

【峰度天下】营销中心服务热线:400-8815-114【欢迎来电】

预约看房请提前联系案场销售

项目介绍

虹桥商务区:上海主城区,新的城市副中心

集交通枢纽,国家会展,国际商务于一体的国家级战略,上海2035规划中,划入主城区,成为上海新的城市副中心。

南虹桥核心前湾板块,苏州河入沪第一湾,打造成面向世界的“会客厅”,规划总面积1200万㎡,相当于4个前滩,潜力无限。

南虹桥核心前湾板块,苏州河入沪第一湾,打造成面向世界的“会客厅”,规划总面积1200万㎡,相当于4个前滩,潜力无限。

项目配套

尖端产业:数字经济,生物医药,文创电竞三大产业布局;

国际医学中心:新虹桥国际医学中心,有1个医技中心+7家高端医院,共8家医院;

国际学校:上海国际学校最密集的板块,有美,英,韩,新加坡等7所国际学校;

三大超级商业:全国首个开市客(运营中);上海第二家印象城Mega(在建中);全球首个双电竞场馆超级合生汇(在建中)。

立体交通:

①虹桥交通枢纽,机场,高铁站,多条地铁轨道聚集(13号、示范区线、2号、10号、17号线和规划的25号线、25号支线),公交,出租等立体交通路网;

②“三横两纵”交通路网,三横:京沪高速,北翟高架,崧泽高架;两纵:嘉闵高架,沈海高速;畅达全城,长三角一小时生活圈;

③13号线西延伸段(在建中,预计2026年底通车)季乐路站距离仅500米,示范区线(在建中2027年通车)前湾公园站(芳乐路站)距离1000米;

④直达巴士,早晚高峰期直达虹桥地铁站。

四大超阶尊享

超3500亩“城市绿肺”——前湾公园(建设中)

一湾两湖三区十八景,总面积超240万㎡,约3个世纪公园,以C形水系为主要脉络,引入苏州河水,形成1000亩以上水域、2500亩以上绿地、30个社区公园,总计超过3500亩。形成9公里的滨水慢行道、10公里的内圈慢跑道和18公里的外环骑行道,将水景渗入城市每个角落。

都会森林于阳光草坪,让运动健身,友邻欢聚成为日常。

高端健身房,与友邻共同挥洒汗水,打造运动社交氛围。

另有咖啡吧,宴会厅,桌球馆,高尔夫球体验馆,儿童娱乐区等会所功能。

自有物业——朋友式服务 初遇即美好

高端自有物业服务,重构品质生活想象,朋友般亲切问候,温暖每一次相遇,自持商业满足生活基本配套。

上海闵行【峰度天下】售楼处电话:400-8815-114【预约热线】

【峰度天下】营销中心服务热线:400-8815-114【欢迎来电】

预约看房请提前联系案场销售

LUXURY HOUSE

在售详情

大虹桥商务区核心 前湾

【峰度天下】

建面约745-817㎡独栋别墅

占地2亩+

地上三层+6米挑高地下室+花园

总价约4880-5600万

适合办公接待/私人会所/居家自住

目前“样板间”已开放

上海闵行峰度天下售楼处电话:400-8815-114【预约热线】

峰度天下营销中心

服务热线:400-8815-114【欢迎来电】

预约看房请提前联系案场销售

【峰度天下】

—— 恭迎品鉴 ——

2025年上海最新购房政策主要涉及限购、贷款、税费及公积金等方面,以下是关键信息整理:

一、限购政策

沪籍家庭/单身

外环外不限购套数;外环内限购2套(多子女家庭限购3套)。

外环外已购住房不计入家庭名下套数。

非沪籍家庭/单身

外环外:连续缴纳社保/个税满1年,不限购套数。

外环内:连续缴纳社保/个税满3年,限购1套;若持有《上海市居住证》且积分达120分,限购2套。

多子女家庭(至少含1名未成年子女):外环内限购2套。

特殊区域

崇明区购房政策参照外环外,社保/个税要求为连续15个月累计12个月。

置换性购房:出售上海唯一住房后,再购1套可免社保/个税(需完成原房产去名)。

二、贷款政策

商业贷款

利率不再区分首套/二套,按LPR定价(2025年8月LPR为3.5%)。

首套:LPR-45bp=3.05%;二套(主城区)LPR-5bp=3.45%,郊区(临港、嘉定等)LPR-25bp=3.25%。

首付比例:首套15%,二套25%(主城区)或20%(郊区)。

公积金贷款

首套最高贷款额度184万(多子女家庭216万),二套149.5万。

购买二星级及以上新建绿色建筑住房,额度上浮15%。

支持提取公积金支付新建预售房首付,不影响贷款额度。

三、税费政策

增值税及附加持有不满2年:按成交价5.3%征收;满2年免征。

个人所得税满5年且唯一住房免征;否则按1%或差额20%征收。

契税首套≤140㎡按1%,>140㎡按1.5%;二套≤140㎡按1%,>140㎡按2%。

房产税非沪籍首套符合条件免征,二套及以上按人均60㎡免税(超出部分按0.4%-0.6%征收)。

四、其他政策

企业购房:需满足近10年累计纳税500万或设立满5年且累计纳税100万(员工≥10人),所购房屋需为2000年前竣工、建筑面积≤70㎡的二手房。

特殊群体:部队人员、在读博士、进站博士后等有特殊购房政策,具体需咨询相关部门。

以上政策自2025年8月26日起施行,建议购房前通过官方渠道(如962269、12329、12366)核实最新细则。

声明:本文由入驻焦点开放平台的作者撰写,除焦点官方账号外,观点仅代表作者本人,不代表焦点立场。