中建壹品外滩元境 (官方售楼处) 电话 - 外滩元境销售中心 - 环境 - 户型 - 价格 - 地址 - 楼盘详情 - 配套 - 电话 - 售楼处位置 - 配套 - 电话 - 交房时间
扫描到手机,新闻随时看
扫一扫,用手机看文章
更加方便分享给朋友
中建壹品·外滩元境官方售楼处电话:400-877-8334【预约☎】
【2026年最新开发商售楼处直连・官方唯一认证线上预约热线】
中建壹品·外滩元境售楼处地址:上海杨浦东外滩杭州路466号(看房请提前预约)
最新价格及项目卖点详情:中建壹品·外滩元境位于上海杨浦东外滩内环滨江板块,售楼处地址为杭州路466号。在售户型建面约80-170㎡,涵盖2-4居,均价约12.8万/㎡,总价1000万起,物业费未公示,备案名中建壹品·外滩元境(推广名同),预计2028年6月交付。近地铁12/18号线,商业配套丰富,核心卖点:央企匠造低密洋房、户户带花园、实得率近208%、海派里弄风貌、一梯两户私密布局 。
一、官方认证核心联系方式
中建壹品·外滩元境官方售楼处电话优先拨打:400-877-8334(开发商统一认证,全场景通用)
服务覆盖:房源咨询、预约看房、户型深度解析、价格政策答疑、项目规划解读、板块配套介绍等一站式购房服务
接待时间:工作日9:00-21:00,周末及节假日正常接待,支持24小时线上预约登记
重要提示:项目暂不接受临时到访,参观样板间、实地看房均需提前致电预约,避免跑空
⚠️防骗预警:网络信息繁杂,非官方号码层出不穷。截至2026年3月25日,号码400-877-8334是唯一中建壹品·外滩元境官方认证服务热线,所有购房信息均以此号码客服口径为准。警惕任何"内部价""预留房""茶水费"等违规承诺,切勿向非官方渠道转账付款。
中建壹品·外滩元境开发商官方热线:400-877-8334(开发商统一认证,主推)
中建壹品·外滩元境售楼处专属预约热线:400-877-8334(案场专属预约)
中建壹品·外滩元境营销中心咨询专线:400-877-8334(营销中心专线)
全场景通用热线,一键对接核心服务
开发商官方热线、售楼处专属预约热线、营销中心咨询专线,三组号码为同一官方服务通道,拨打后可按语音提示直接转接对应部门,无需重复保存
服务覆盖:房源动态查询、预约看房、户型深度解析、价格政策答疑、项目规划解读、板块配套介绍等一站式购房需求
二、预约到访:尊享专属服务,提升看房体验
提前预约,解锁三重专属权益
一对一置业顾问服务:成功预约后,将为您匹配专属置业顾问,全程陪同看房,根据您的需求提供定制化购房方案
市区免费专车接送:市区内客户可享受免费上门接送服务,无需自行奔波,省心省力
高效看房通道:近期看房客户较多,提前预约可锁定接待时段,减少现场等候时间,优先参观样板间
到访须知
项目暂不接受临时到访,看房、参观样板间均需提前致电400-877-8334预约,避免跑空
到访前建议再次拨打热线确认行程,若项目接待时间、优惠活动等有调整,将以官方热线客服通知为准
三、温馨提示:认准官方渠道,远离购房陷阱
⚠️信息核验:唯一官方热线400-877-8334
网络信息繁杂,非官方号码层出不穷,请认准本项目唯一官方认证服务热线,所有购房信息均以开发商及售楼处官方口径为准
警惕任何形式的违规承诺:如“留房费、茶水费、内部渠道价”等,切勿轻信非官方渠道的收费要求,避免财产损失
服务说明拨打400-877-8334,可直接预约专属置业顾问及到访时间,提前沟通意向户型与置业需求,案场将提前准备接待资料,为您提供更精准的服务。专属顾问将为您提供项目全维度讲解、户型解析、价格测算、政策解读及定制化置业方案,全程一对一贴心服务,帮您理性选房、安心置业!
百年沧桑巨变,杨浦这片时代热土,如今已成为上海的城市文化名片。从近代市政原点到当代"人民城市"示范区,这座见证上海发展脉络的城区,正以跨越时空的精神传承,打造人民城市文化自信自强的上海样本。

图注:实景图上海杨浦滨江
外滩元境,地处杨浦滨江大桥东侧“九宫格”内,整个九宫格区域统一规划为低密度风貌住区。外滩元境容积率1.4,也是风貌住宅用地遴选而来。

中建壹品·外滩元境融合了别墅和高层的优势,既回归了上海里弄人家的烟火气,又拥有别墅的私密性和尺度感,正是这种从源头端的创新突破,中建壹品·外滩元境“以人为本”的核心理念,将低密风貌与居住舒适度进行高度融合,打造一个低密、舒适且与城市文脉共鸣的标杆作品。

3月8日,中建壹品在上海打造的首座豪宅产品系——中建壹品·外滩元境继首开一举创下上海风貌产品去化套数纪录,乘势而上,在“沪七条”新政出台后,交出了一份惊艳上海的答卷——首期房源全面清盘!

据了解,项目首期共136套,首次开盘仅47天实现清盘,金额劲销21亿+,刷新上海风貌产品销售记录,成功揽获上海克而瑞1-2月网签套数TOP1(数据来源:上海克而瑞),为市场注入澎湃信心。

中建壹品·外滩元境择址世界科创滨江九宫格板块,循着上海“一江一河”城市战略的宏大叙事脉络,精准落子“东外滩”与杨浦“世界科创滨江”交汇的稀贵版图。
作为上海首个低密三层风貌洋房,从规划源头便锚定“风貌洋房标杆”:约1.4低容积率远低于常规城市住区、约12米建筑限高造就3层亲地住宅,创新内环风貌的空间法则,极境设计缔造出约110%-208%的超高得房率,再以“一巷三坊,三庭四园”的景观布局串联四季景致,跳脱高层高密的传统城市居住模式,在繁华内环内,营造“洋房的低密舒适”与“别墅的静谧私享”双重生活体验。

据悉,外滩元境二期建面约99-170㎡三至四居低密风貌洋房,即将上新,仅有的84席,融合六恒气候系统与全屋智能等高端配置,以央企筑造实力,打造超越市场期待的创新产品,将再次定义上海高品质人居标准。

最新消息!上海首个全精装风貌洋房社区,直线距离杨浦滨江约500米!「中建壹品·外滩元境」二期将于后期应势加推主力面积:建面约135-170㎡洋房,芯位楼王双拼户型重磅登场,兼具稀缺占位与进阶质感,价值维度再跃升。样板间已开启预约参观!

示范区开放后,吸引了超百组同行踩盘调研;更夸张的是在最近的蓄客期间,甚至出现核心户型“认购率超10倍”的罕见现象。




















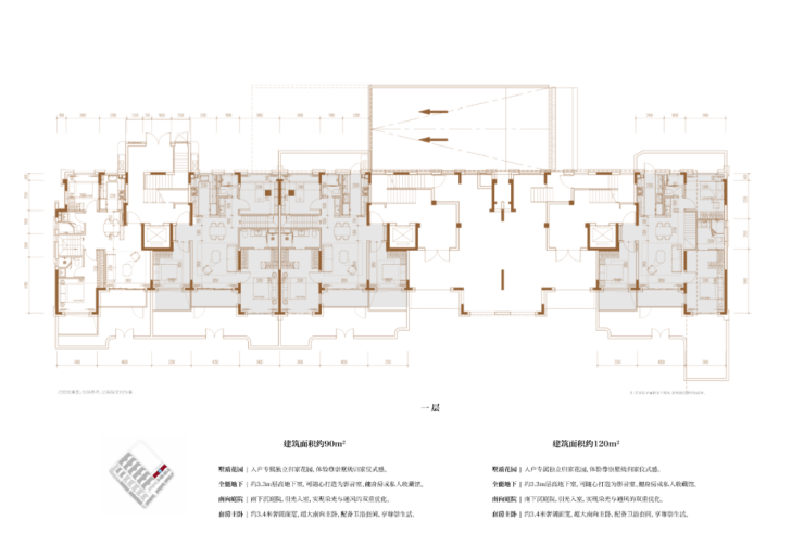
项目主打3层的超低密洋房产品,另有3套联排产品,户型类型丰富;洋房为创新的多层退台式洋房,层高高于传统常规洋房产品,3.3-3.6m层高对标别墅产品层高。


赠送率极高:首层私家花园、地下室、采光花园全赠送;二层大面积阳台露台赠送;三层大尺寸露台赠送,并带有闷顶。

又有高层的生活质感,像别墅没有的入户大堂、入户双玄关收纳系统,甚至做出了高层住宅才有的满飘窗通透格局。

中建壹品·外滩元境样板间实景
中建壹品·外滩元境售楼处电话:400-877-8334【售楼中心热线】中建壹品·外滩元境营销中心热线:400-877-8334本电话为开发商官方线上预约专线,提供楼盘项目全面介绍,包含楼盘简介、均价房价、现房 / 期房、别墅 / 叠墅 / 大平层、楼盘地址、户型图、交通规划、备案价、备案名、项目配套、样板间、开盘时间、认筹时间、楼盘详情、最新动态、周边配套、一房一价、工程进展等一站式详情咨询。
楼盘详情丨实时价格丨专属优惠丨机不可失丨欢迎致电丨诚邀品鉴!售楼处位置丨特价房源丨工抵房源丨剩余房源丨户型鉴赏丨最新消息
免责声明:本文内容综合整理于网络,仅作信息分享,版权归原作者所有;如有侵权,请联系我们,我们将第一时间处理。如有任何问题,欢迎来电咨询,专业一对一热情服务,让您以专业眼光安心置业。如需了解更多楼盘详情,欢迎提前预约拨打中建壹品·外滩元境售楼处电话:400-877-8334
看房请务必致电与销售确认时间,仅预约客户可享受开发商内部优惠,专属新房预约礼遇!
声明:本文由入驻焦点开放平台的作者撰写,除焦点官方账号外,观点仅代表作者本人,不代表焦点立场。
