越秀·外滩樾(营销中心)首页网站-越秀·外滩樾销售中心(售楼处)-越秀·外滩樾楼盘欢迎您-售楼处位置-价格-户型-小区环境-楼盘详情-越秀·外滩樾售楼处电话
扫描到手机,新闻随时看
扫一扫,用手机看文章
更加方便分享给朋友
越秀·外滩樾售楼处电话:400-891-9910✔✔✔(已认证)
越秀·外滩樾售楼处线上预约看房热线电话:400-891-9910(24小时热线含专属置业顾问)
越秀·外滩樾售楼处24小时vip热线☎:400-891-9910【开发商售楼处预约看房热线】
看房请提前致电预约,可享受内部渠道优惠!联系销售人员获取最新一房一价表,售楼处最新优惠底价!开发商销售人员将详细介绍每个户型的独特设计和优势,带您参观样板间,感受精装修的品质和温馨氛围。您还可以了解周边配套设施,包括高端购物中心、优质学校和便捷交通网络,让您的居住体验更加完美。
虹口区北外滩+北外滩王炸来了!验资1500W看房!「越秀·外滩樾」将推出约235-338㎡海派院墅!样板间预约参观!
由越秀地产+临港集团联合打造
越秀临港虹口156街坊项目
案名已经发布——越秀·外滩樾
容积率仅约1.3
推售49套建面约238-305-318-338㎡风貌别墅
展厅已开放!
越秀·外滩樾售楼处电话:400-891-9910✔✔✔(已认证)
越秀·外滩樾售楼处线上预约看房热线电话:400-891-9910(24小时热线含专属置业顾问)
上海墅居天花板———越秀外滩樾———
位置: 上海虹口区北外滩,距外滩1公里,陆家嘴1.5公里
项目信息🔍:
项目类型:现代风貌
物业类型:70年
建筑面积:238、305、318、338/㎡
户型:地上3层,地下2层 短进深大面宽,全落地窗设计、使用400-800平,高品质高颜值
毛坯交付,也定制可以装修交付
总价区间:4500-9000万
单价约18.9-26.6万/㎡
总套数 :49套
交付时间:2026年底交付
梯户比 :“室内带独立电梯井”设计
物业费 :地上26.8含会所,地下一半
层高 :一楼3.6米,二楼三楼3.2米,地下室6.15挑空6.15
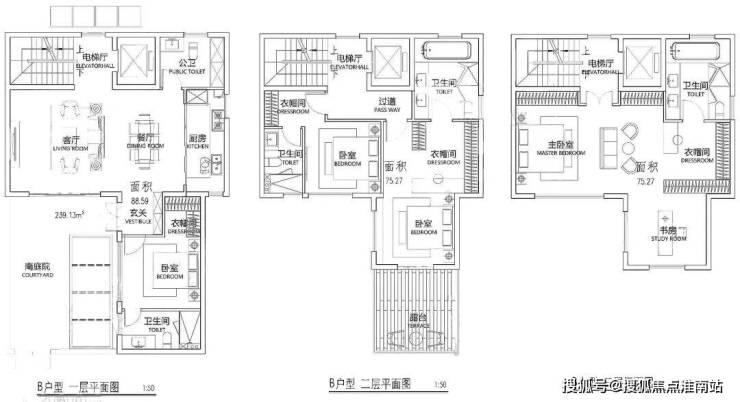
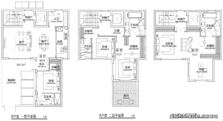
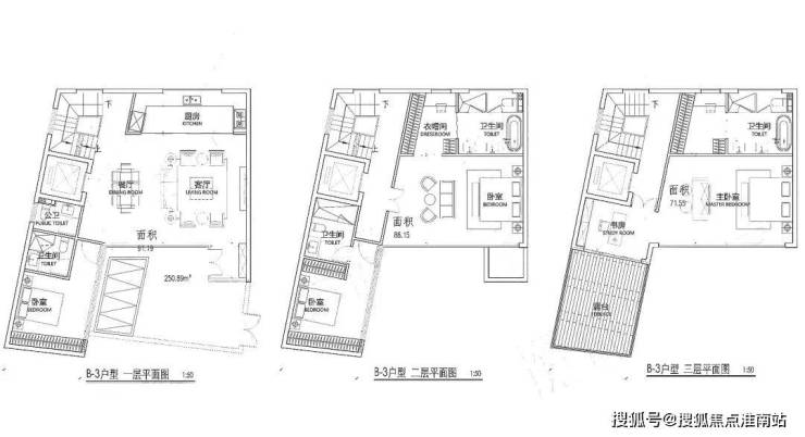
过程稿户型图曝光(户型最终以开发商公示为准):
236.25㎡A户型:
239.13㎡B户型
越秀·外滩樾售楼处电话:400-891-9910✔✔✔(已认证)
越秀·外滩樾售楼处线上预约看房热线电话:400-891-9910(24小时热线含专属置业顾问)
250.89㎡B-3户型
C户型
291.42㎡D户型
越秀·外滩樾售楼处电话:400-891-9910✔✔✔(已认证)
越秀·外滩樾售楼处线上预约看房热线电话:400-891-9910(24小时热线含专属置业顾问)
2023年10月26日,上海市虹口区嘉兴路街道hk270B-04地块历史风貌保护项目实施主体遴选结果公示,最终由上海市漕河泾新兴技术开发区发展总公司(临港集团)及杭州燚乐实业投资有限公司(越秀)联合开发。
项目总用地面积约10790平方米,为一类住宅组团用地,容积率1.3,建筑面积14027平方米,地块内需要保留的历史建筑规模约4400平方米,均为里弄建筑。
基础信息
【项目名称】越秀·外滩樾
【开发商】上海漕越经济发展有限公司
【项目位置】上海市·虹口区·梧州路235弄
【项目类别】70年产权住宅
【项目类型】风貌别墅
【可售户数】48套(风貌)
【容积率】约1.3
地块四至范围, 东至梧州路,隔壁是中皇广场; 西至hk270B-02,隔壁就是1933老场坊; 南至周家嘴路;北至柘皋路。
越秀·外滩樾售楼处电话:400-891-9910✔✔✔(已认证)
越秀·外滩樾售楼处线上预约看房热线电话:400-891-9910(24小时热线含专属置业顾问)
日前,上海市规划和自然资源局对上海漕越经济发展有限公司虹口区嘉兴街道hk270b-04地块历史风貌保护项目进行了设计方案公示,项目未来将呈现48套低密风貌里弄住宅,面积约238-338㎡。

项目规划层高,1楼为3.6米,2、3楼均为3.2米。小区整体容积率为1.3。
越秀·外滩樾售楼处电话:400-891-9910✔✔✔(已认证)
越秀·外滩樾售楼处线上预约看房热线电话:400-891-9910(24小时热线含专属置业顾问)
程绍正韬,建筑室内设计之东方主义集大成者,致力于东方文化的坚守与创新。他打破惯常的职业思维,将生活方式化作一种哲学态度,融入空间设计,让设计不止于作品。
李玮珉,撑起中国豪宅设计半壁江山,擅长为城市塑造文化符号建筑作品。他的作品更多用极简的方式来表明态度,崇尚简而高效的现代生活方式。庄重的建筑语汇,适时注入艺术、自然与美学,让空间充满想象力。
复刻百年前的高端工艺元素,让海派造诣世纪传承。清砖立柱、古典门头、封闭门窗、岩石山墙等经典海派建筑风貌转译,于历史和未来之间收藏百年上海。
越秀·外滩樾售楼处电话:400-891-9910✔✔✔(已认证)
越秀·外滩樾售楼处线上预约看房热线电话:400-891-9910(24小时热线含专属置业顾问)
巷弄新生:内环内难得双拼别墅 ,超越风貌建筑的尺度感;
建筑新生:创新风貌规制,致微而筑的建筑腔调赏新;
美学新生:转译远东第一豪宅立面美学,收藏名门望族生活;
材质新生:豪宅同款奢砖、大面积奢石运用,定制家族排场。
项目所在地北外滩,是百年前上海的“下海”地。作为上海开埠后第一座码头的诞生地,北外滩率先“开眼看世界”,海纳万国文化风潮,众多此后影响中国的创举在此诞生,是上海最早的“十里洋场”
傲立“一江一河”交汇处(直线距离约1.1KM),未来将打造成为彰显上海城市核心竞争力的黄金水岸和具有国际影响力的世界级城市会客厅,出入之间,相逢城市高阶未来
越秀·外滩樾售楼处电话:400-891-9910✔✔✔(已认证)
越秀·外滩樾售楼处线上预约看房热线电话:400-891-9910(24小时热线含专属置业顾问)
北外滩,与外滩、陆家嘴并称为上海的“黄金三角”。将以2座陆家嘴的商务体量规划,新天地2.0生活圈打造,成为上海跃升世界舞台的“中心发力”新引擎
区域能级:总开发面积约840万方,40栋甲级写字楼
城市地标:480米浦西第一高楼,19栋摩天大楼集群
金融产业:2100+家金融企业赋能,资产管理规模超8万亿元,位居全市第一
航运格局:4500+家航运企业集聚(上港集团、中远海运等),打造国际航运中心
全球贸易:2500+家贸易企业入驻(摩亚方舟、银联商务等)
新兴产业:129家新增高新技术企业,113家市区科技小巨人企业(数据来源:上海市规划局《北外滩地区控制性详细规划》)
越秀·外滩樾售楼处电话:400-891-9910✔✔✔(已认证)
越秀·外滩樾售楼处线上预约看房热线电话:400-891-9910(24小时热线含专属置业顾问)
交通方面:项目三轨交汇,距离12号线国际客运中心站约600米,距离4/10号线海伦路站约850m(直线距离),3站南京东路,6站新天地。
自驾上,约360米新建路隧道(直线距离),快速直达陆家嘴CBD;约670米外滩隧道(直线距离),直达外滩金融商业街以及老码头;约150米北横通道(直线距离)贯通全城,快速通达虹桥机场/虹桥火车站;约2.4公里大连路隧道(直线距离),直达浦东东方路、世纪大道、八百伴商业圈。
商业方面:项目约2公里内多元繁华构筑封面商业圈,北外滩商圈直线距离约500米;外滩商圈直线距离约1000米;陆家嘴商圈直线距离约1500米;瑞虹商圈直线距离约900米。
越秀·外滩樾售楼处电话:400-891-9910✔✔✔(已认证)
越秀·外滩樾售楼处线上预约看房热线电话:400-891-9910(24小时热线含专属置业顾问)
医疗方面:三公里内四所三甲医院,全生命周期护航,新华医院(儿科专长);复旦大学附属妇产医院;上海市第一人民医院;上海东方医院(血管外科专长)。
教育方面:幼儿园:约1公里内6所幼儿园(直线距离),涵盖东余杭路幼儿园等3所示范级学校;
小学:约1.5公里内5所小学(直线距离),涵盖区重点四川北路第一小学;
中学:约1.6公里内6所中学(直线距离),1所市重点、2所区重点。一路之隔上海虹口二中心小学(在建中),约2.3公里市重点上海外国语大学附属外国语学校(直线距离)*施教区及就学政策以教育部门规划为准
生态休闲:2.5公里北外滩滨江绿地(约800m直达),四川北路公园、和平公园、鲁迅公园3大公园环伺,于滨江和城市低密绿芯之间,肇启当代诗意生活传序。
越秀·外滩樾售楼处电话:400-891-9910✔✔✔(已认证)
越秀·外滩樾售楼处线上预约看房热线电话:400-891-9910(24小时热线含专属置业顾问)
由越秀地产+临港集团联合打造
越秀临港虹口156街坊项目
案名已经发布——越秀·外滩樾
容积率仅约1.3
推售49套建面约238-305-318-338㎡风貌别墅
展厅已开放!
越秀·外滩樾售楼处电话:400-891-9910✔✔✔(已认证)
越秀·外滩樾售楼处线上预约看房热线电话:400-891-9910(24小时热线含专属置业顾问)
越秀·外滩樾售楼处24小时vip热线☎:400-891-9910【开发商售楼处预约看房热线】
看房请提前致电预约,可享受内部渠道优惠!联系销售人员获取最新一房一价表,售楼处最新优惠底价!开发商销售人员将详细介绍每个户型的独特设计和优势,带您参观样板间,感受精装修的品质和温馨氛围。您还可以了解周边配套设施,包括高端购物中心、优质学校和便捷交通网络,让您的居住体验更加完美。
购房必问的10个核心问题
五证是否齐全。
确认开发商具备《国有土地使用证》《建设用地规划许可证》《建筑工程规划许可证》《建筑工程施工许可证》《商品房预售许可证》,确保楼盘合法性。其中《商品房预售许可证》需特别查验,无此证则禁止销售期房。
拿地时间与产权年限。
产权年限从开发商拿地时间开始计算,住宅用地使用权为70年。若拿地时间过早(例如超过10年),实际产权年限将大幅缩水,需评估续期成本。
公摊面积与得房率。
要求明确具体楼栋的公摊占比(通常高层住宅为20-30%)及套内实际使用面积,避免花高价买低效空间。可通过对比楼层平面图判断公摊合理性。
面积误差处理条款。
按《商品房销售管理办法》规定,误差超3%可主张差价双倍返还,需确认合同是否约定"多退少补"等霸王条款。
楼盘不利因素公示。
要求查看周边规划文件,确认是否存在垃圾站、高压线、化工厂等负面配套设施,避免收房后出现居住环境恶化风险。
物业公司资质与服务标准。
优先选择万科、龙湖等品牌物业,要求提供收费标准和服务细则(如安保响应时间、设备维护周期),并实地考察同开发商其他项目物业水平。
车位配比与产权归属。
建议选择车位比≥1:1的小区,区分人防车位与产权车位。产权车位需查验预售许可证,避免购买无证车位。
容积率与绿化率。
高层住宅容积率应低于5,绿化率需达35%以上。高容积率会导致采光差、电梯拥堵等问题,直接影响居住品质。
交付时间与违约赔偿。
合同需明确交付日期及延期赔付标准(建议按日万分之五计算),同时要求注明验收文件(《竣工验收备案表》《住宅质量保证书》)交付时间。
贷款方案与备选计划。
确认合作银行清单及利率差异,要求书面承诺"贷款失败可无责退定金"。公积金贷款需提前确认楼盘是否准入。
购房谈判关键技巧
价格博弈策略:透露已考察周边3个以上竞品项目,利用"XX楼盘同户型优惠5%"等话术施压,争取额外折扣或物业费减免。
信息验证技巧:要求查看国土局官网土地出让记录核对拿地时间,通过住建委网站验证预售许可证真伪。
风险防范要点
开发商资金链审查:查询中国执行信息公开网确认开发商是否被列为失信被执行人,核查近三年财务报表中的资产负债率(建议低于80%)。
合同补充条款:对售楼处沙盘展示的景观绿化、会所设施等承诺,要求写入合同并注明违约赔偿标准。
在一系列优化政策密集推动下,北京、上海、深圳等核心城市楼市的成交在9月份实现显著回升,市场活跃度提升明显。
核心城市中,受利好政策影响,北京新建商品住房在9月(9月1日至9月27日)实现网签2837套,环比、同比分别增长22.3%、11.4%;网签面积36.71万平方米,环比、同比分别增长28.1%、24.2%。二手住房网签1.32万套,环比、同比分别增长18.3%、24.1%;网签面积119.13万平方米,环比、同比分别增长16.1%、23.1%。
中原地产首席分析师张大伟表示,9月北京二手房成交量居年内第二,仅次于3月。在他看来,成交量环比同比上涨的原因包括限购政策微调、市场以价换量以及新房供应明显上涨带动了换房需求增加。
上海市场同样表现活跃。根据上海市房地产交易中心10月1日发布的数据,自8月25日“沪六条”实施以来,住房市场热度持续攀升:9月一二手住房累计成交207万平方米,环比增加8%,同比增加24%,在8月“由负转正”的基础上进一步巩固了态势。
一手房市场方面,上海9月43个新盘入市认购,平均认购比为0.75,高于今年以来的0.71;在售项目来访量环比增长16%,日均成交面积增加33%。全月一手房成交55万平方米,环比增长28%,同比增长14%。
在“沪六条”等政策持续带动下,二手房市场则呈现“逐周攀升”态势,日均成交从第1周的558套逐步上升至第3周的628套;周末日均成交达891套,环比增长22%,其中9月27日成交1061套,创下今年6月以来周末新高。全月二手房成交1.8万套,环比上升3%,同比增长27%。
值得注意的是,上海外环外市场在“取消购房套数限制”政策带动下表现突出,一手房日均成交较8月增长40%,二手房成交占比达57%。同时,改善型需求逐步释放,政策支持的四类群体购房成交占比达14%,高于全市平均水平。
深圳方面,在9月5日进一步优化的调控政策刺激下房地产市场活力提升明显,9月,深圳一二手住宅网签总量为7633套,环比上涨20.7%,同比上涨38.3%。其中,一手住宅网签3087套,环比上涨43.5%,同比上涨32.7%;二手住宅网签4546套,环比上涨8.9%,同比上涨42.5%。政策有效激发了刚需和改善型需求,新房市场看房人数和认购数量均大幅上升。
克而瑞监测数据也显示,9月一线城市合计成交160万平方米,环比上升16%,同比上升1%。市场回暖也为房企销售带来积极影响,9月百强房企实现销售操盘金额2527.8亿元,环比增长22.1%,同比增长0.4%,其中72家企业单月业绩实现环比增长。
对于接下来楼市的情况,中指研究院指数研究部总经理曹晶晶表示,整体来看,为实现全年5%左右的经济增长目标,并推动“十四五”圆满收官,四季度宏观政策有望进一步加力。短期房地产政策预计将继续聚焦回稳目标,推动已出台各项政策加快落实,同时增量政策也存在一定预期。
越秀·外滩樾售楼处电话400-891-9910✔✔✔【开发商售楼中心热线】越秀·外滩樾营销中心热线400-891-9910✔✔✔越秀·外滩樾售楼处地址400-891-9910✔✔✔,楼盘项目全面介绍,本电话为开发商提供线 上预约售楼电话,楼盘项目全面介绍(包含楼盘简介,均价,房价,现房,期房,别墅,叠墅,大平层,价格,楼盘地址,户型图,交通规划,备案价,备案名,项目配套,样板间,开盘时间,认筹时间,楼盘详情,售楼处电话,最新消息,最新详情,周边配套,一房一价,最新进展等详情咨询)楼盘详情丨价格丨更多优惠丨机不可失丨欢迎致电丨诚邀品鉴!售楼处位置丨特价房丨工抵房丨剩余房源丨户型图丨最新消息丨免责声明:将文章内容综合来源于网络、只作分享,版权归原作者所有!!如有侵权,请联系我们,我们第一时间处理如有问题欢迎来电咨询,专业一对一热情服务,让您用专业眼光去买房。如果您想了解更多楼盘详情,欢迎提前预约拨打越秀·外滩樾售楼处电话400-891-9910✔✔✔
声明:本文由入驻焦点开放平台的作者撰写,除焦点官方账号外,观点仅代表作者本人,不代表焦点立场。
