(华润外滩瑞府售楼处)首页网站-2025华润外滩瑞府房价_楼盘评测丨地址丨详情丨华润外滩瑞府售楼处电话丨楼盘百科
扫描到手机,新闻随时看
扫一扫,用手机看文章
更加方便分享给朋友
☑️华润外滩瑞府售楼处电话:400-9966-224☑️华润【外滩瑞府】
坐落于外滩-陆家嘴-北外滩世界级黄金三角
2025外滩生活圈2000-3000万级优选
华润置地上海首座“瑞系”顶序作品☑️华润外滩瑞府售楼处电话:400-9966-224☑️
共计119套房源
外滩瑞府三期已过会!☑️华润外滩瑞府售楼处电话:400-9966-224☑️
93席,建面约124-165m²3-4房
过会均价14.85万/m²
☑️华润外滩瑞府售楼处电话:400-9966-224☑️
区位板块:外滩板块
容积率:3.87
建筑规划:24-32F高层住宅
主力面积:约124-240㎡
交付标准:精装交付
项目第一次开盘是在2025年9月14日,推出119套房,共有194组有效客户认筹,认筹率163%,备案均价14.78万/平。
第二次开盘是在2025年10月25日,推出146套房源,备案均价14.83万/平。
三批次蕞新已过会!
「外滩瑞府」是华润置地上海首座“瑞系”顶序作品,它位处上海城市封面的外滩“15分钟生活圈“内,至外白渡桥直线距离只有约一公里。
☑️华润外滩瑞府售楼处电话:400-9966-224☑️
认购时间:2025年12月11日至12月15日;
认购地点:上海市静安区山西北路99号苏河湾MT43层外滩瑞府展厅;
三批次一房一价表如下:
☑️华润外滩瑞府售楼处电话:400-9966-224☑️
☑️华润外滩瑞府售楼处电话:400-9966-224☑️
建面约124㎡3房:
建面约165㎡4房:
☑️华润外滩瑞府售楼处电话:400-9966-224☑️
当下2000万级已经完全买不进黄浦核芯地段,而外滩瑞府不仅能以2000万级入手,更是今年2000-5000万级上海位置更好、更值得入手的豪宅!
☑️华润外滩瑞府售楼处电话:400-9966-224☑️
☑️华润外滩瑞府售楼处电话:400-9966-224☑️
☑️华润外滩瑞府售楼处电话:400-9966-224☑️
☑️华润外滩瑞府售楼处电话:400-9966-224☑️
☑️华润外滩瑞府售楼处电话:400-9966-224☑️
☑️华润外滩瑞府售楼处电话:400-9966-224☑️
☑️华润外滩瑞府售楼处电话:400-9966-224☑️
☑️华润外滩瑞府售楼处电话:400-9966-224☑️
☑️华润外滩瑞府售楼处电话:400-9966-224☑️
☑️华润外滩瑞府售楼处电话:400-9966-224☑️
☑️华润外滩瑞府售楼处电话:400-9966-224☑️
☑️华润外滩瑞府售楼处电话:400-9966-224☑️
华润置地2025 TOP瑞系首座
外滩瑞府加推
建面约124-330㎡内环臻稀户型
均价14.83万/㎡
入主“黄金三角”的绝佳时机!
正在认购!
看房认购关注
项目基本信息
☑️华润外滩瑞府售楼处电话:400-9966-224☑️
☑️华润外滩瑞府售楼处电话:400-9966-224☑️
好社区:与城共生的恒贵生活场
☑️华润外滩瑞府售楼处电话:400-9966-224☑️

RÊVE
外滩的每一寸土地都沉淀着历史的温度,外滩瑞府从未将自己定义为“孤立的华宅”,而是以央企担当融入城市更新脉络,让社区生长于城市的烟火与文脉之中。
01
虹口嘉兴01单元:海派艺文的价值高地
☑️华润外滩瑞府售楼处电话:400-9966-224☑️
项目落址虹口嘉兴路01单元这一城市核心更新板块,近享“虹口港+音乐谷”双重红线外配套——这里是外滩文脉的当代延伸,更是海派艺文的新生高地。不同于传统华宅“划界独享”的思路,外滩瑞府将“社区底盘”延伸至城市公共空间:从风貌街区的业态规划到滨水归家路的功能设计,实现“与外滩同频生长”的社区理想。
02
7000㎡艺术邻里新弄堂:安福路级文化地标
☑️华润外滩瑞府售楼处电话:400-9966-224☑️
☑️华润外滩瑞府售楼处电话:400-9966-224☑️
携手政府打造的「艺术邻里新弄堂」,以7000㎡沉浸式空间成为外滩下一个文化打卡地:既有党群服务中心、邻里便利生活综合体满足日常所需,又植入社区咖啡、艺术工坊、便民市集等多元业态,让文艺气息与人间烟火在此交融——这里既是虹口人民的生活客厅,更是外滩的“安福路2.0”。
03
九龙路至美归家路:复刻徐汇滨江的松弛感
☑️华润外滩瑞府售楼处电话:400-9966-224☑️
归家的仪式,从踏入九龙路滨水空间开始:宠物友好花园配拾便箱与饮水器,让爱宠自在撒欢;滨河艺术步道串联观景平台与水法雕塑,步移景异间暂别都市喧嚣;文化记忆景墙镌刻虹口港百年故事,唤醒城市的人文温度;再加上适老化座椅与无障碍步道的贴心设计,让全龄居者都能在这条“同频徐汇滨江”的归家路上,重拾身心的松弛。
☑️华润外滩瑞府售楼处电话:400-9966-224☑️
好产品:长住主义的传世恒产
☑️华润外滩瑞府售楼处电话:400-9966-224☑️
☑️华润外滩瑞府售楼处电话:400-9966-224☑️
外滩的土地稀缺性,决定了居住的核心是“可传承的长期主义”。外滩瑞府以「健康、舒适、从容」为内核,打造「六境」超级建筑性能系统,让高端不止于符号,更成为融入日常的安心与奢适。
01
建筑与园林:海派美学的现代叙事
☑️华润外滩瑞府售楼处电话:400-9966-224☑️
围合布局,楼栋平权:将楼栋从五栋优化为四栋并科学偏转,实现“极致视野、极致景观、极致日照”——低楼层浸享园林绿意,中高楼层无遮挡揽收外滩天际线与虹口港滨水风光;
三段式立面,古今共生:底部「海派王权基座」复刻石库门弧形拱券,中部「卢浮宫流光之幕」以超大面积玻璃幕墙保障采光,顶部「外滩百老汇之冠」呼应外滩现代建筑群,让海派历史与现代美学自然融合;
六大艺廊花园,自然入席:以内环罕见的3200㎡中央花园为核心,承袭巴黎杜乐丽花园造园哲思:“星夜回廊”是归家疗愈的水镜秘境,“峡谷秘境”复刻大西洋海岸的嬉水体验,“绮梦花廊”编织南法风情的季相画卷——让自然成为日常的艺术背景。
基于对塔尖家庭生活方式的深度调研,外滩瑞府突破传统空间逻辑,打造覆盖不同生命阶段的户型矩阵:
02
户型矩阵:适配塔尖的全生命周期场域
☑️华润外滩瑞府售楼处电话:400-9966-224☑️
约240㎡官邸户型:官邸式双开门+“凡尔赛镜厅”级玄关营造恢弘仪式感,LDKB家族超级厅堂承载社交主场,“五进制”宫殿式主卧构筑私密领地;
☑️华润外滩瑞府售楼处电话:400-9966-224☑️
约123㎡边厅全景舱:三房布局满足“入住外滩”的主流需求,无遮挡边套视野将外滩天际线化为私藏画卷;
外滩瑞府|百年外滩的长住主义理想生活
尚嘉豪宅G已关注
已同步到看一看写下你的评论
视频详情
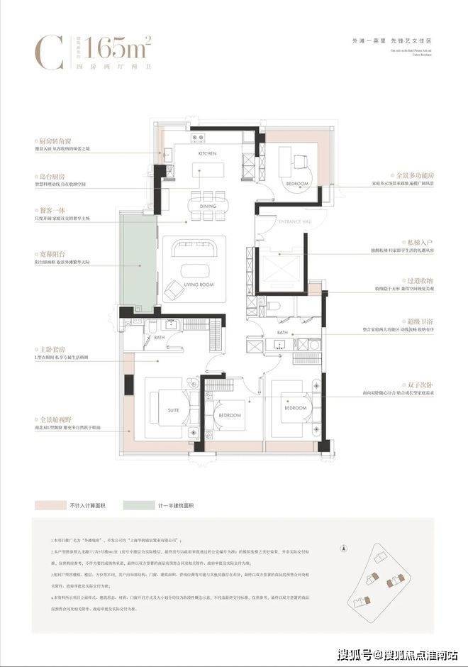
约164㎡奢享四房:内环少见的“真四房”设计,三卧朝南+环幕视野,精准契合改善家庭的核心诉求。
03
六境系统:藏在细节里的长住奢适
从“无忧社交厨房”到“家的阿尔卑斯山泉”,从“博物馆级艺术光影”到“繁华里的静音舱”,外滩瑞府以「六境」系统重构生活的舒适边界:
境·味:无忧社交厨房
☑️华润外滩瑞府售楼处电话:400-9966-224☑️
中式厨房的“烟火气”不再是健康负担——外滩瑞府联合两百年品牌格洛瑞格打造“无油烟厨房”:大风量油烟机置顶捕烟,搭配厨房专用空调过滤残余油烟,再加上中央排烟系统阻隔回窜,让煎炒烹炸间只有牛排焦香与红酒醇香,厨房成为家庭欢聚的轻松场域。
☑️华润外滩瑞府售楼处电话:400-9966-224☑️
境·水:家的阿尔卑斯山泉
以“医用级健康”为标准,全屋采用316L不锈钢水管(同高端医疗器械材质),从源头阻断污染;联动怡口、滨特尔定制四重过滤系统:前置滤除重金属,中央还原水的本真,软水机呵护肌肤与家电,末端直饮可直接入口;更有AI智能零冷水系统,≤5秒出热水,深夜水流声亦是安心助眠的背景音。
☑️华润外滩瑞府售楼处电话:400-9966-224☑️
境·光:博物馆级艺术光影
☑️华润外滩瑞府售楼处电话:400-9966-224☑️
与朗得万斯联袂定制“私人采光系统”:全屋搭载RG0级低蓝光灯具(达到眼科护眼标准),灯光渐亮缓暗实现自然“匀光”;厨房区域选用Ra97高显色性灯具,精准还原食材本真色泽——让光线贴合生活节奏,每一刻都有恰到好处的明亮。
境·声:繁华外滩的静音舱
☑️华润外滩瑞府售楼处电话:400-9966-224☑️
从建筑到生活末梢的全维度降噪:进口双玻系统隔绝外界车流至“图书馆级”安静,20cm厚混凝土墙+多层隔音构造筑牢声学壁垒;电梯井隔音处理、同层排水静音管道、门窗密封系统、五金阻尼缓冲——让窗外的繁华与室内的静谧互不打扰,深夜归家也不会打断家人的安睡。
☑️华润外滩瑞府售楼处电话:400-9966-224☑️
境·气:会呼吸的微气候
主动调节的“空气管家”:大金中央空调+全屋地暖打造四季舒适的基础体感,高效热交换新风系统实现“除霾、换气、恒温”三效合一,PM2.5、CO₂指标全程监控;甚至延伸至地下车库的空气质量管理,让归家的每一处都能安心呼吸。
境·式:外滩的不私藏收纳
以「秩序」为核心,将收纳融入建筑美学:独创S墙设计隐藏高窗深腔柜,入门展柜遵循科学动线,搭配燕尾抽屉、高柜拉篮等博洛尼定制收纳;步入式衣帽间、卫浴隐藏镜柜、家政独立储物——让每一件物品都有妥帖归处,生活回归优雅与从容。
☑️华润外滩瑞府售楼处电话:400-9966-224☑️
好服务:全维赋能的塔尖场域

☑️华润外滩瑞府售楼处电话:400-9966-224☑️
RÊVE
真正的奢享,是从社区延伸至生活全域的贴心守护。外滩瑞府以五大服务体系,让“舒适”成为生活的底色,让资产价值在长期中稳步生长。
01
3000㎡泛会所:一栋一世界的生活场
☑️华润外滩瑞府售楼处电话:400-9966-224☑️
以“一栋一主题一功能”打造塔尖专属场域,由万象生活专业运营:
1#楼「公啡花房」:承接高端商务与私宴需求,是款待贵宾的格调主场;
2#楼「温莎廊吧」:家庭互动的休闲天地,承载亲子时光与邻里小聚;
3#楼「子恺乐园」:全龄共融的童梦空间,以“寓教于乐”适配亲子家庭需求;
4#楼「Gym CLUB」:配备瑜伽室、力量训练区,满足业主的健康管理需求。
02
定制与礼仕服务:专属的生活表达
☑️华润外滩瑞府售楼处电话:400-9966-224☑️
四大定制服务:以“汽车选配”逻辑,实现空间调整、收纳优化、风格焕新、材质选装——让家不再是标准化产品,而是适配个人偏好的专属方案;
礼仕服务体系:基础服务以“资产守护”为核心,通过专业维护让空间与设施历久弥新;定制服务链接健康、教育、财富等高端资源,主动回应居者全生命周期的成长需求。
03
权益与社群:无界的奢享与共鸣
万象挚友权益:依托华润万象生活的商业运营能力,整合苏河湾乃至全球跨界资源,打造业主专属“私人生活库”,让每一份权益都精准匹配高阶需求;
☑️华润外滩瑞府售楼处电话:400-9966-224☑️
瑞club社群:升级华润“润比邻”体系,以体系化运营营造全龄艺术圈层——让邻里从“熟悉的陌生人”,升华为“志趣相投的挚友”,构建超越物理空间的精神共同体。
声明:本文由入驻焦点开放平台的作者撰写,除焦点官方账号外,观点仅代表作者本人,不代表焦点立场。
