招商序(售楼处)首页网站-上海招商序售楼处欢迎您-招商序楼盘详情-户型配套-最新价格-最新资讯-售楼处位置

淮南楼市观察 2025-09-10 08:40:54
用手机看
扫描到手机,新闻随时看

扫一扫,用手机看文章
更加方便分享给朋友

上海宝山招商序售楼处电话:400-8815-114(预约热线)招商序营销中心服务热线:400-8815-114(已认证)预约看房请提前联系案场销售【招商序】——诚邀品鉴——

【招商序】

上海宝山招商序售楼处电话:400-8815-114(预约热线)

招商序营销中心

服务热线:400-8815-114(已认证)

预约看房请提前联系案场销售

如今的楼市,开发商都在卷产品力,招商序作为今年第一个三阳台户型入市的产品,首批次入市就凭借惊艳的户型设计与产品力出圈,而如何在最内卷的示范区,卷出新花样,招商序这次的实景示范区首秀给出了一个不错的答案。

六个字总结:全方面超规格

从首席制的设计操刀,六重归家的尊崇、堪称“石材博物馆”的公区立面,到四层悬浮式下沉庭院,手工定制的艺术品,甚至连社区的灯光与会所花艺都由名师执掌。

招商序可以说用完全超规格的配置直接把700万级的产品力拉升到了千万级以上的层级,将内环豪宅的基因与理念注入到了一个700万的项目中。我们从实景示范区中感受到了如同康定壹拾玖一般的产品用心程度。

上海宝山招商序

售楼处电话:400-8815-114(预约热线)

招商序营销中心

服务热线:400-8815-114(已认证)

预约看房请提前联系案场销售

01

超规格团队

启序系奢宅首席大师共创

首先一个“序”字,开宗明义,它来自招商旗舰顶奢产品序列“启序系”。

从西安序、武昌序到金陵序,每一座启序系皆择址中国名城的文化源点,在继承本土渊源的基础上融汇全球视野,集结大师共创,所落子皆标杆。

而招商序,在承袭过往启序系产品积淀之上,再次迭代升级。择址百年吴淞,将在地文化和具有前瞻意义的社区理念,融入当下更为前沿的生活方式中,创造出了极具文化感知力的招商序

豪华大师天团共创

秉持着“非大师 不执序”的理念,招商序遵循首席设计师制,建立覆盖全维度的专家顾问团队,聚集享誉业界的大师天团——gad杰地设计、31.DESIGN、GVL怡境、德森建筑设计、NNS纳沃设计、Bluemoon布鲁盟、关永权灯光设计等,大师执笔,以极富远见的艺术理念以及对在地文化的深刻理解,打造了又一座超规格的启序作品!

编辑

上海宝山招商序

售楼处电话:400-8815-114(预约热线)

招商序营销中心

服务热线:400-8815-114(已认证)

预约看房请提前联系案场销售

02

超规格礼序

六进制归家,情绪价值拉满

自古以来,从皇家贵族、世家大族到府第门庭,名门望族皆讲究以“礼”为制,以“仪”为序,“礼”是中华文化观的根基,渗透着国人骨子里的风雅和处世之道。

而招商序深谙人的崇礼之道,整个人文造艺会客厅将“超规格礼序”贯彻到了极致!突破性打造六进制归家!六重礼序,从门庭环岛落客的仪式,到迎宾楼的礼归,到精神游廊的情绪切换,到转换厅的空间变换,再到风雨连廊的闲庭信步,最后到酒店式入户大堂

这样的礼序递进让回家成为一场穿越风景的享受,彻底放松身心,仪式感拉满!

堪比内环千万级鼎豪的超尺门庭

归家的第一重仪式,便是约66米宽、约6.7米高的上海之冕门庭,此尺度,完全不输内中环千万级起步豪宅门头,是尊崇感,更是身份认同感。

编辑

此外,招商序还藉由“吴淞灯塔”及其形制,原创落客雕塑“源流”,定制的云石玻璃、保加利亚进口的沉香米黄石材的底座,搭配以安哥拉黑大理石,营造温润的归家昭示。整个前庭形成艺术感与实用性兼具的环岛式落客区,进一步提升仪式感。

编辑

而在酒店式落客区之后,招商序打造约4.5m高的王府规制的大门与迎宾楼,给到了业主更多元和更具仪式感的归家场景。

同源招商玺系手法创造

通过迎宾楼,便来到了约20米长的精神游廊,该精神游廊同源招商玺“树宅相守”的设计手法,更致敬建筑诗人斯卡帕“以自然光感去创造时间驻留感”的理念,通过对光线、材质与空间的创新打造,营造充满宁静的归家场域。

顶部定制发光云石亚克力与圆弧形的古铜色铝板交相辉映,8个西班牙宫殿沉香米黄石柱提升了尊崇感,漫步其间,揽风入怀,树影斑驳映入眼帘,水声潺潺入耳,归家的轻松感油然而生,笔者随手一拍,都非常的出圈。

编辑

编辑

上海宝山招商序

售楼处电话:400-8815-114(预约热线)

招商序营销中心

服务热线:400-8815-114(已认证)

预约看房请提前联系案场销售

03

超规格审美

上海此前未见的空间重塑

不夸张的说,看过无数个“下沉式庭园”,招商序仍然拿出了很有创意的设计想法,创新式打造4层悬浮式下沉园林,整个立体庭园,汲取了海派大师邬达克封笔之作「曾经的远东第一豪宅-吴宅」精髓,力求“宅、园、水、院”立体交融,借天地之景,纳四时之变,将人间春色凝于一园。

点睛之笔在于4层悬浮式阶梯,设计理念据说来自全球十二大奢华酒店之一的迪拜丽晶公寓,每一个观景露台都种植着不同的植被,一步一景,更重要的是,不同的露台对应着不同的观景视野点,将不同高度的下沉式庭院景观,通过极其优雅的方式传递给了业主。这个归家体验可以说是拉满了!

编辑

编辑

把手工艺术品填满会所

除了庭院,招商序堪称一座手作慢艺的殿堂,许多珍贵的非遗绝技于此重获新生。从入户大堂巨幅火烧金箔艺术画作、秸秆镶嵌精妙入微的艺术装置、到源于西周的螺钿工艺的流光溢彩,每一个艺术品与画作都有着在地文化的故事,通常只能在内环豪宅中方可见到如此之多的手工艺术品,甚至连私宴厅的屏风,都是由进口卡里冰玉奢石打造而成,整个会所的高级感直接拉满。

招商序的会所花艺设计也大为考究,以定制“沪上繁花”艺术主题流转,特邀专业顾问LV合作花艺师,呈现四季繁花的美轮美奂。

编辑

编辑

此外值得一提的是,空间之大、尺度之豪!

招商序会所+架空层达到了约4000㎡的面积,直接越级打造,对标翠湖天地、融创外滩壹号院这样的内环顶级豪宅配置

涵盖恒温泳池、健身房、室内高尔夫、私宴厅、棋牌室等多元空间!业主可以在社区内运动、游泳、健身、会客、遛娃、学习、放松甚至是家庭聚餐等需求,免费享用顶尖豪宅才有的配置!

最让我心动的是这个无边泳池!招商序以“室内外自然无界”的设计手法,将无边泳池与庭院美景在视觉上连成一体,当阳光映照跃动的蔚蓝,业主畅游的同时还能包揽庭园诗意;深色木架构撑起白色帏幔,池边躺椅的设计也极具豪华酒店的优雅与尊贵,穹顶则延续着海派穹顶的经典设计元素,以细腻的木纹铝板打造。以往只在奢华度假酒店的体验在家楼下的会所也能拥有!

上海宝山招商序

售楼处电话:400-8815-114(预约热线)

招商序营销中心

服务热线:400-8815-114(已认证)

预约看房请提前联系案场销售

编辑

编辑

而业主专享的私宴厅则是将“尊贵感”说到了极致!臻选奢石营造雅致屏风,墙上大师匠呈繁花艺作,定制灯具璀璨生辉,摩登意蕴充盈其中,匹配大人物品位。除了敞阔的就餐空间,还独立配置吧台、品茗休息区。暮色四合,华灯初上,谈笑风生中展现风雅从容,觥筹交错间皆是繁华丰茂。

编辑

编辑

上海宝山招商序

售楼处电话:400-8815-114(预约热线)

招商序营销中心

服务热线:400-8815-114(已认证)

预约看房请提前联系案场销售

会所更配备了健身房与高端的室内高尔夫,目前已全面开放,可预约参观

不计成本的弧形美学打造

弧形温润,是贯彻招商序始终的审美语言。

弧形石材工艺因其造价高、耗料多而闻名,而招商序从门庭、游廊、转换厅、风雨连廊到下沉式庭院,一以贯之的弧形石材,形成了统一的设计语言,营造视觉上的柔和高级感,招商序将这种传统豪宅的设计手法应用到了700万级的产品之上,真的是降维打击。

招商序通过国际视野的设计,在地定制化的艺术呈现,重新定义了审美的力量。

编辑

编辑

中环之上18号线口(长江西路站直线仅约200米)

700万级 100-143㎡小高层

配备约4000㎡的泳池会所+架空层

超规格人文造艺奢宅三批次即将加推

上海宝山招商序

售楼处电话:400-8815-114(预约热线)

招商序营销中心

服务热线:400-8815-114(已认证)

预约看房请提前联系案场销售

04

超规格奢材

不计成本的用料、工艺

人文与造艺的殿堂

一条爱马仕丝巾从选题开始,经由设计、配色、着色到手工卷边等工序,前后需时超过18个月。

而招商序之所以能做到如此超规格的实景兑现,答案就在其,与高定奢侈品精神一样,不计成本的疯狂堆料,以及执着追求工法。

招商序用料之扎实,肉眼可见。

整个公区的引入沉香米黄、透光云石、安哥拉黑、福鼎黑、橙皮红、宝格丽紫等近二十种全球奢石,宛如一座流动的奢石博物馆。

比如入口处精选北京钓鱼台国宾馆同款的水墨玉天然石材,运用于通高大门、迎宾楼背景墙等处,品质感尽显。

编辑

名木也是传世之选。举个例子,招商序的游廊转换厅窗外,是从深山精选的丛生乌桕,树形对映成趣,这窗外之景本身就是艺术,

编辑

而关于工艺,讲一个细节。

一块游廊上的锤纹铜板深深打动了我,锤纹最早源于金银铜器的加工,“手落为一锤 四锤为一纹”,这块铜板需要通过匠人千百次的手工捶打才能形成阡陌纵横的纹路变化。这样的手工慢艺,在招商序的会所之中不止一处,在如今机械化模板化的时代之下,这份用心实为珍贵。

编辑

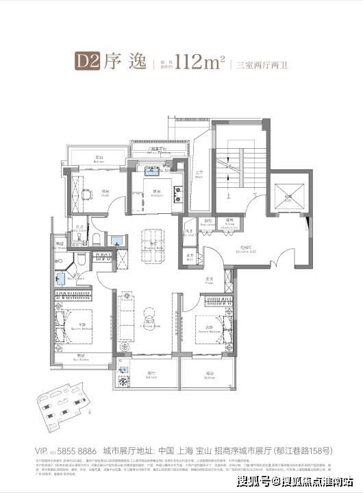
招商序首开与二开均热销,本身项目所在的淞南板块咫尺江湾,背靠杨浦,是700万级别的新房中最临近市区的板块之一了,地段优渥,且招商序距离18号线长江西路站仅约200米,真正的地铁上盖,周边配套成熟,首开阶段,招商序凭借出彩的三阳台户型设计引起了上海市场的轰动,此次实景公区的开放,更是奠定了“超规格”的项目标签!,此次143㎡的与112㎡实体样板间也随公区开放,南向三阳台+270度飘窗的设计让人惊叹!据悉目前仅剩余少量房源在售,三批次即将加推,有兴趣的小伙伴抓紧预约参观

编辑

编辑

编辑

上海宝山招商序

售楼处电话:400-8815-114(预约热线)

招商序营销中心

服务热线:400-8815-114(已认证)

预约看房请提前联系案场销售

结语:

重重叠加的超规格,成就了不可复制的招商序。

对真正的奢宅来说,当原创设计、奢华用料、极致工艺共同筑成一条护城河,本质上是将房子转化成了“非标资产”,对于倡导“好房子”的当下,招商序便是一次极具代表性的产品力超配模版

百闻不如一见

建议各位到场鉴赏了解

唯有亲临方能领略其中真谛

上海宝山招商序售楼处电话:400-8815-114(预约热线)

招商序营销中心

服务热线:400-8815-114(已认证)

预约看房请提前联系案场销售

【招商序】

——诚邀品鉴——

上海购房步骤

上海购房步骤因新房和二手房而有所不同,以下是具体流程:

一、新房购房步骤

前期准备

确认购房资格:根据户籍、社保/税单缴纳年限等确定购房资格(如沪籍单身外环内限购2套,非沪籍需社保满3年)。

准备材料:身份证、户口本、婚姻证明、社保/税单、存款证明等(具体要求因户籍和购房类型而异)。

认购阶段

关注项目信息:通过开发商官网或“网上房地产”平台获取新盘信息,包括认购时间、金额等。

提交材料:线上或线下提交认购材料,缴纳认购金(一般为房源最低价的20%),获取《认购意向书》。

积分审核:若认购率超过1:1.3,触发积分制,需提交材料审核积分,入围后参与摇号。

摇号与选房

公证摇号:由东方公证处组织电脑摇号,确定选房顺序。

选房签约:按顺序选房,签订《认购书》,认购金转为定金,补足首付并签订贷款合同。

后续流程

合同备案与预告登记:同步办理,提交材料至交易中心。

贷款办理:银行审核通过后放款,开发商收到款项后交付房屋。

交房与办证:验收房屋,缴纳契税等税费,领取不动产权证书。

二、二手房购房步骤

前期协商

签署定金合同:支付不超过房价5%的定金,锁定房源。

资金监管:除贷款外的资金进入监管账户,确保交易安全。

贷款与过户

办理贷款:买方提交材料申请商业贷款或公积金贷款,卖方若有抵押需提前还清。

过户登记:双方携带材料至房产交易中心办理,审核通过后缴纳税费(如增值税、个人所得税、契税等)。

交割与放款

物业交割:房东交付房屋钥匙,买方支付尾款。

银行放款:贷款审批通过后,银行将款项支付给卖方。

注意事项

限购政策:沪籍和非沪籍家庭购房套数有差异,需提前确认资格。

税费计算:二手房需缴纳增值税、个人所得税、契税等,具体税率根据房屋年限和家庭情况而定。

风险提示:二手房交易需注意房屋抵押、查封等问题,建议通过正规中介或律师协助。

购房流程复杂,建议提前咨询专业人士或相关部门,确保交易顺利。

声明:本文由入驻焦点开放平台的作者撰写,除焦点官方账号外,观点仅代表作者本人,不代表焦点立场。